4.9
Рейтинг на основании 120 отзывов
Дмитров
Опорный проезд 28Б
(индустриальный парк Ниагара)
Бренд "Дмитров-Дело" c 2008 года на рынке строительства в Дмитрове
Звоните 9:00 до 18:00 8 (915) 055-33-61
Бренд "Дмитров-Дело" c 2008 года на рынке строительства в Дмитрове

ИНБРИГ-2.130

Стоимость проекта от:
62 550 ₽
БЕСПЛАТНО! ПРИ ЗАКАЗЕ СТРОИТЕЛЬСТВА
Стоимость строительства от:
9 897 360 ₽
Артикул ART-11607
Дата 25.12.2025
Архитектурный стиль Классический
Количество надземных этажей 2
Круглогодичное проживание Да
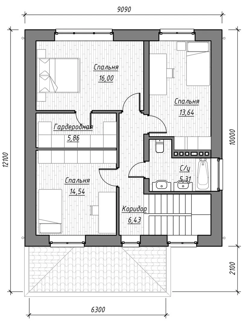
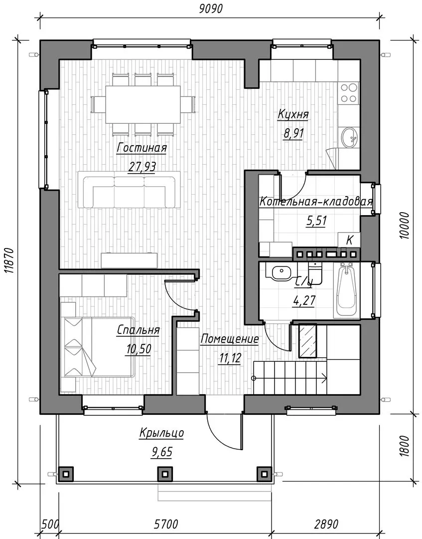
Площадь дома 139 м2
Санузлы 2
Спальни 4

Описание

Сомневаемся, где ещё можно найти идеальный баланс между уютом и классическим стилем? ИНБРИГ‑2.130 — это дом, который вписывается в любой городской пейзаж, сохраняя при этом свой неповторимый шарм. Два надземных этажа создают просторное, светлое пространство, где каждая комната ощущает прохладу летнего воздуха и тёплые лучи осеннего солнца. Керамический блок, используемый в облицовке внешних стен, гарантирует тепло и шумоизоляцию, а четырёхскатная (вальмовая) крыша подчёркивает элегантность всей конструкции, словно классический антикварный портрет, который с каждым годом становится только более ценным. Несмотря на строгую классическую архитектуру, дом не лишён практичности: круглогодичное проживание здесь возможно благодаря надежной теплоизоляции и продуманному дизайну помещений. Внутреннее пространство обыграно так, чтобы каждая зона чувствовала себя личной: от уютной гостиной до функциональной кухни, от спальной комнаты, где всегда будет тихо, до балкона, которым можно пользоваться даже в холодные дни благодаря отсутствию сквозняков. А наличие чердачного помещения добавляет вам гибкости — будь то дополнительный кабинет, кладовая или даже спальная площадка для гостей. Этот дом — ваш новый старт, уединённый и комфортный, но при этом полностью открытый миру. Если вам хочется качественно жить и чувствовать, что каждый день начинается со свежего вдохновения, ИНБРИГ‑2.130 — идеальный выбор. Позвоните нам, и мы покажем, как простое сочетание традиций и современности может стать вашим собственным пространством.

Характеристики дома

Архитектурный стиль
Автоматизированное регулирование параметров теплоносителя
Нет
Балконы/лоджии
Отсутствуют
Чердачное помещение
Да
Датчики протечки воды
Нет
Эксплуатируемая или зеленая кровля
Нет
Электроснабжение
Центральное
Газоснабжение
Центральное
Изоляция воздушного шума
Нет
Камин
Нет
Класс энергоэффективности
-
Класс энергосбережения
-
Количество надземных этажей
2
Круглогодичное проживание
Да
Материал кровли
Битумная черепица
Материал перекрытий
Сборные железобетонные многопустотные плиты
Материал внешних стен
Материал внутренних перегородок
Кирпичные
Модульное строительство с конструкциями заводского изготовления
Нет
Объем надземной части
628 м3
Основной материал фасадов
Облицовочный кирпич
Отопление
Индивидуальное
Площадь дома
139 м2
Площадь застройки
90 м2
Подвальное помещение
Нет
Показатель компактности здания
-
Приборы учета тепловой энергии
Нет
Пристроенный гараж/крытая автостоянка
Нет
Противопожарная система
Нет
Санузлы
2
Совмещенная кухня-гостиная
Да
Спальни
4
Терраса
Нет
Тип фундамента
Свайно-ростверковый
Толщина внешних стен
520 мм
Толщина внутренних перегородок
120 мм
Улучшенные шумовые характеристики
Нет
Вентиляция
Естественная
Веранда
Нет
Водоотведение
Локальные очистные сооружения
Водоснабжение
Индивидуальное
Высота дома
8.33 м
Высота потолков
3 м

Планировка

Фасад дома

Александр

Закажите выезд инженера

Александр

Выездной инженер
Закажите выезд инженера для точной диагностики и профессиональной консультации по инженерным системам. Специалист приедет в удобное время, проведёт осмотр, рассчитает стоимость работ и подберёт оптимальные решения для вашего дома.


    Похожие проекты

    Ипотека и
    рассрочка
    Загородный дом 60
    Стоимость от:
    5 339 620
    Проект от: 31 950
    Этажей 1
    Санузлы 1
    Спальни 2
    Смотреть
    Ипотека и
    рассрочка
    Скаут
    Стоимость от:
    7 006 560
    Проект от: 39 600
    Этажей 1
    Санузлы 2
    Спальни 3
    Смотреть
    Ипотека и
    рассрочка
    Двухэтажный дом Атаман
    Стоимость от:
    11 364 480
    Проект от: 68 400
    Этажей 2
    Санузлы 1
    Спальни 5
    Смотреть
    Ипотека и
    рассрочка
    Фаворит 6х8
    Стоимость от:
    5 027 400
    Проект от: 37 800
    Этажей 2
    Санузлы 1
    Спальни 4
    Смотреть
    Ипотека и
    рассрочка
    G-BOX-88
    Стоимость от:
    5 345 780
    Проект от: 31 050
    Этажей 1
    Санузлы 1
    Спальни 2
    Смотреть
    Ипотека и
    рассрочка
    Каркасный двухэтажный дом КД-66
    Стоимость от:
    6 233 760
    Проект от: 46 800
    Этажей 2
    Санузлы 2
    Спальни 3
    Смотреть

    Как узнать стоимость дома

    back
    Оставляете заявку
    Вы заполняете форму на сайте или звоните нам. Менеджер Лайвкрафт связывается с вами для уточнения деталей: тип дома, площадь, материалы, участок строительства.
    back
    Консультация и подбор решения
    Наш специалист помогает выбрать оптимальный тип дома и конструкцию с учётом бюджета, сроков и целей — будь то дом для постоянного проживания или дача.
    back
    Расчёт предварительной стоимости
    Инженер делает первичный расчёт стоимости строительства по вашим параметрам: фундамент, коробка, кровля, отделка. Вы получаете смету с разбивкой по этапам.
    back
    Корректировка и утверждение сметы
    При необходимости вносим изменения — например, замену материалов или сокращение этапов. После согласования формируется окончательная фиксированная смета.
    back
    Заключение договора и старт работ
    После утверждения сметы заключаем официальный договор с гарантией. Вы получаете прозрачный график и точную стоимость — без скрытых расходов.

    Заказать конусльтацию по:ИНБРИГ-2.130

    Фото 1 ИНБРИГ-2.130


      Наши
      контакты

      Дмитров
      Опорный проезд 28Б
      (индустриальный парк Ниагара)
      9:00 до 18:00

      Корзина