4.9
Рейтинг на основании 120 отзывов
Дмитров
Опорный проезд 28Б
(индустриальный парк Ниагара)
Бренд "Дмитров-Дело" c 2008 года на рынке строительства в Дмитрове
Звоните 9:00 до 18:00 8 (915) 055-33-61
Бренд "Дмитров-Дело" c 2008 года на рынке строительства в Дмитрове

Индивидуальный проект двухэтажного дома

Стоимость проекта от:
96 750 ₽
БЕСПЛАТНО! ПРИ ЗАКАЗЕ СТРОИТЕЛЬСТВА
Стоимость строительства от:
15 022 800 ₽
Артикул ART-5487
Дата 26.12.2025
Архитектурный стиль Классический
Количество надземных этажей 2
Круглогодичное проживание Да
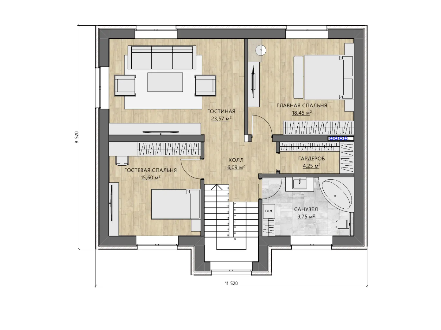
Площадь дома 215 м2
Санузлы 2
Спальни 3

Описание

Погрузитесь в атмосферу настоящего роскошного семейного дома, выполненного в безупречном классическом стиле, который сочетает в себе вечную элегантность и современную практичность. Это не просто жильё – это ваша личная крепость, откуда открывается панорама удобных пространств на двух уровнях, созданных для круглогодичного комфорта. Величественные фасады из газобетонных блоков придают дому лёгкость и тепло, а многощипковая крыша подчёркивает его изысканность, создавая гармоничный образ на любой ландшафт. Дом оснащён всеми удобствами, которые делают жизнь более простыми и приятными: просторный прицепной гараж, защищённый от непогоды, обеспечивает уединённое пространство для автомобилей и хранения. На территории разместилась уютная терраса, идеальная для семейных барбекю и летних вечеров, при этом в доме отсутствуют балконы и веранда, что означает большую площадь пола и возможность сконцентрировать свет и тепло в каждом уголке. Никакого чердачного пространства, а всё внимание уделено функциональному использованию основных этажей, где каждая комната наполнена светом и гармонией. Этот дом – идеальный выбор для тех, кто ценит семейную уединённость, элегантный дизайн и практические решения. Позвольте себе ощущение уюта и благополучия в каждом дне. С нами вы найдёте настоящий приток вдохновения и благородства, которые останутся с вами вечно.

Характеристики дома

Архитектурный стиль
Автоматизированное регулирование параметров теплоносителя
-
Балконы/лоджии
Отсутствуют
Чердачное помещение
Нет
Датчики протечки воды
-
Эксплуатируемая или зеленая кровля
-
Электроснабжение
Центральное
Газоснабжение
Центральное
Изоляция воздушного шума
-
Камин
Нет
Класс энергоэффективности
-
Класс энергосбережения
-
Количество надземных этажей
2
Круглогодичное проживание
Да
Материал кровли
Металлочерепица
Материал перекрытий
Деревянные
Материал внешних стен
Материал внутренних перегородок
Блочные
Модульное строительство с конструкциями заводского изготовления
Нет
Объем надземной части
1719 м3
Основной материал фасадов
Облицовочный кирпич
Отопление
2 варианта
Площадь дома
215 м2
Площадь застройки
180 м2
Подвальное помещение
Нет
Показатель компактности здания
-
Приборы учета тепловой энергии
-
Пристроенный гараж/крытая автостоянка
Да
Противопожарная система
Нет
Санузлы
2
Совмещенная кухня-гостиная
Да
Спальни
3
Терраса
Да
Тип фундамента
Плитный
Тип кровли
Толщина внешних стен
400 мм
Толщина внутренних перегородок
150 мм
Улучшенные шумовые характеристики
-
Вентиляция
Естественная
Веранда
Нет
Водоотведение
Центральное
Водоснабжение
Центральное
Высота дома
9.55 м
Высота потолков
3 м

Планировка

Фасад дома

Александр

Закажите выезд инженера

Александр

Выездной инженер
Закажите выезд инженера для точной диагностики и профессиональной консультации по инженерным системам. Специалист приедет в удобное время, проведёт осмотр, рассчитает стоимость работ и подберёт оптимальные решения для вашего дома.


    Похожие проекты

    Ипотека и
    рассрочка
    Марматер 88
    Стоимость от:
    5 266 800
    Проект от: 39 600
    Этажей 2
    Санузлы 2
    Спальни 3
    Смотреть
    Ипотека и
    рассрочка
    Европейский- 80 кв.м
    Стоимость от:
    5 114 560
    Проект от: 30 600
    Этажей 1
    Санузлы 2
    Спальни 3
    Смотреть
    Ипотека и
    рассрочка
    Одноэтажный дом Fixplans — 0422
    Стоимость от:
    7 909 440
    Проект от: 50 400
    Этажей 1
    Санузлы 1
    Спальни 2
    Смотреть
    Ипотека и
    рассрочка
    Дом Люкс 160 м2
    Стоимость от:
    10 975 920
    Проект от: 74 700
    Этажей 2
    Санузлы 2
    Спальни 3
    Смотреть
    Ипотека и
    рассрочка
    Одноэтажный дом Fixplans-7982
    Стоимость от:
    10 875 480
    Проект от: 69 300
    Этажей 1
    Санузлы 2
    Спальни 3
    Смотреть
    Ипотека и
    рассрочка
    Райт
    Стоимость от:
    25 334 160
    Проект от: 166 050
    Этажей 2
    Санузлы 4
    Спальни 6
    Смотреть

    Как узнать стоимость дома

    back
    Оставляете заявку
    Вы заполняете форму на сайте или звоните нам. Менеджер Лайвкрафт связывается с вами для уточнения деталей: тип дома, площадь, материалы, участок строительства.
    back
    Консультация и подбор решения
    Наш специалист помогает выбрать оптимальный тип дома и конструкцию с учётом бюджета, сроков и целей — будь то дом для постоянного проживания или дача.
    back
    Расчёт предварительной стоимости
    Инженер делает первичный расчёт стоимости строительства по вашим параметрам: фундамент, коробка, кровля, отделка. Вы получаете смету с разбивкой по этапам.
    back
    Корректировка и утверждение сметы
    При необходимости вносим изменения — например, замену материалов или сокращение этапов. После согласования формируется окончательная фиксированная смета.
    back
    Заключение договора и старт работ
    После утверждения сметы заключаем официальный договор с гарантией. Вы получаете прозрачный график и точную стоимость — без скрытых расходов.

    Заказать конусльтацию по:Индивидуальный проект двухэтажного дома

    Фото 1 Индивидуальный проект двухэтажного дома


      Наши
      контакты

      Дмитров
      Опорный проезд 28Б
      (индустриальный парк Ниагара)
      9:00 до 18:00

      Корзина