4.9
Рейтинг на основании 120 отзывов
Дмитров
Опорный проезд 28Б
(индустриальный парк Ниагара)
Бренд "Дмитров-Дело" c 2008 года на рынке строительства в Дмитрове
Звоните 9:00 до 18:00 8 (915) 055-33-61
Бренд "Дмитров-Дело" c 2008 года на рынке строительства в Дмитрове

Индивидуальный проект каркасного дома

Стоимость проекта от:
45 450 ₽
БЕСПЛАТНО! ПРИ ЗАКАЗЕ СТРОИТЕЛЬСТВА
Стоимость строительства от:
6 410 470 ₽
Артикул ART-15271
Дата 25.12.2025
Архитектурный стиль Скандинавский
Количество надземных этажей 1
Круглогодичное проживание Да
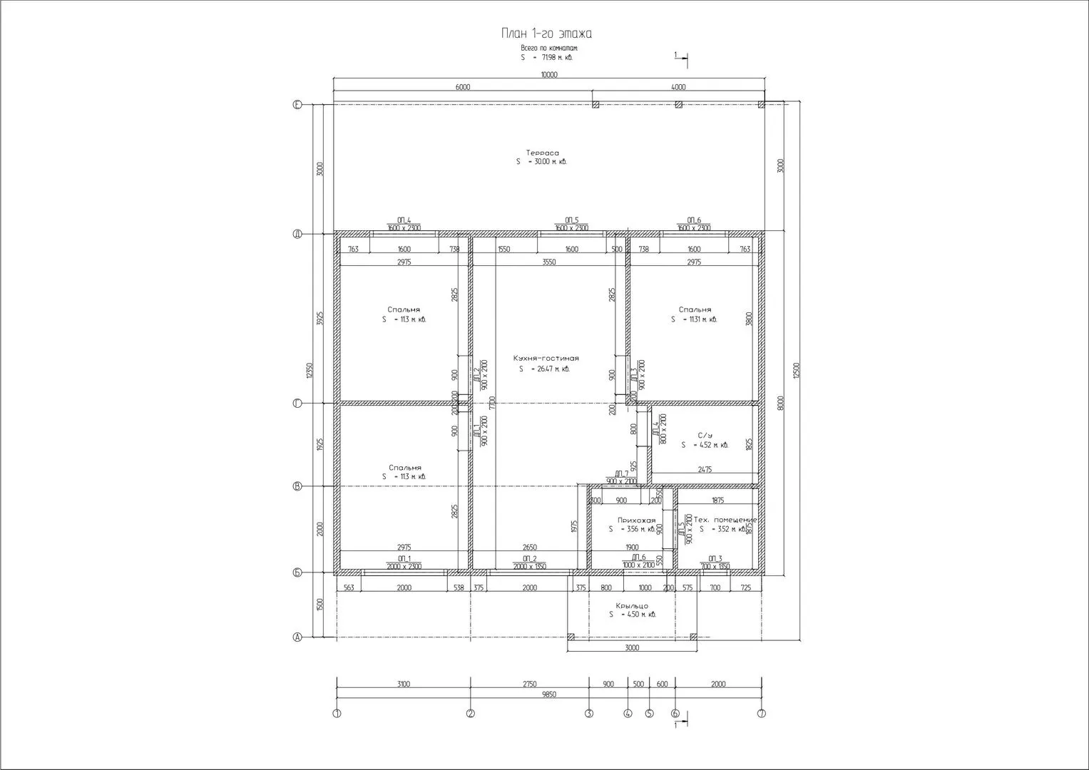
Площадь дома 101 м2
Санузлы 1
Спальни 3

Описание

Представляем уникальный каркасно‑панельный дом, выполненный в скандинавском стиле, идеально подходящий для круглогодичного проживания. Уже с первого взгляда вы почувствуете, как простота и открытость скандинавского дизайна проникают в каждый уголок: светлые стены, большие окна и аккуратная двускатная крыша создают ощущение воздушности и бесконечного пространства. Дом спроектирован без лишних балконов и веранд, что делает его компактным и одновременно функциональным, а наличие чердачного помещения и уютной террасы предоставляет дополнительные возможности для хранения и приятного отдыха на свежем воздухе. Каркасно‑панельная технология внешних стен обеспечивает высокую энергоэффективность и минимальный уход: тепло сохраняется в холодное время года, а в летний период приятная прохлада. Внутреннее пространство открытое, что поддерживает естественную вентиляцию, а архитектурные решения подчёркивают элегантность скандинавского подхода без лишних деталей. На одном надземном этаже удобно расположен все необходимое: современная кухня, гостеприимная гостиная, спальня и ванная – всё в гармонии с природой, но при этом с гарантией комфорта. Если вы ищете дом, где каждая деталь продумана, а стиль сочетается с практичностью, этот проект станет вашим идеальным выбором. Позвольте себе почувствовать лёгкость скандинавского мира: ваш новый уютный дом уже ждёт, чтобы стать частью вашей жизни. Сделайте первый шаг к комфортной, экологичной и эстетически привлекательной жилой площади – закажите проект уже сегодня!

Характеристики дома

Архитектурный стиль
Автоматизированное регулирование параметров теплоносителя
Да
Балконы/лоджии
Отсутствуют
Чердачное помещение
Да
Датчики протечки воды
Нет
Эксплуатируемая или зеленая кровля
Нет
Электроснабжение
Индивидуальное
Газоснабжение
Не предусмотрено
Изоляция воздушного шума
Да
Камин
Нет
Класс энергоэффективности
-
Класс энергосбережения
-
Количество надземных этажей
1
Круглогодичное проживание
Да
Материал кровли
Металлочерепица
Материал перекрытий
Деревянные
Материал внешних стен
Материал внутренних перегородок
Деревянные
Модульное строительство с конструкциями заводского изготовления
Нет
Объем надземной части
265 м3
Основной материал фасадов
Дерево
Отопление
Индивидуальное
Площадь дома
101 м2
Площадь застройки
114 м2
Подвальное помещение
Нет
Показатель компактности здания
-
Приборы учета тепловой энергии
Да
Пристроенный гараж/крытая автостоянка
Нет
Противопожарная система
Нет
Санузлы
1
Совмещенная кухня-гостиная
Да
Спальни
3
Терраса
Да
Тип фундамента
Свайный
Тип кровли
Толщина внешних стен
260 мм
Толщина внутренних перегородок
150 мм
Улучшенные шумовые характеристики
Да
Вентиляция
Принудительная
Веранда
Нет
Водоотведение
Не предусмотрено
Водоснабжение
Индивидуальное
Высота дома
6 м
Высота потолков
3 м

Планировка

Фасад дома

Александр

Закажите выезд инженера

Александр

Выездной инженер
Закажите выезд инженера для точной диагностики и профессиональной консультации по инженерным системам. Специалист приедет в удобное время, проведёт осмотр, рассчитает стоимость работ и подберёт оптимальные решения для вашего дома.


    Похожие проекты

    Ипотека и
    рассрочка
    Одноэтажный дом ПГ — 4
    Стоимость от:
    5 414 640
    Проект от: 32 400
    Этажей 1
    Санузлы 1
    Спальни 2
    Смотреть
    Ипотека и
    рассрочка
    Дом из кирпича S061
    Стоимость от:
    7 140 100
    Проект от: 42 750
    Этажей 1
    Санузлы 2
    Спальни 3
    Смотреть
    Ипотека и
    рассрочка
    Дом из профилированного бруса 24-10-01
    Стоимость от:
    4 134 900
    Проект от: 31 500
    Этажей 1
    Санузлы 1
    Спальни 3
    Смотреть
    Ипотека и
    рассрочка
    Двухэтажный БАРНХАУС 102м2
    Стоимость от:
    6 389 280
    Проект от: 45 900
    Этажей 2
    Санузлы 1
    Спальни 3
    Смотреть
    Ипотека и
    рассрочка
    Дом двухэтажный «Большая семья»
    Стоимость от:
    6 139 680
    Проект от: 36 900
    Этажей 2
    Санузлы 2
    Спальни 3
    Смотреть
    Ипотека и
    рассрочка
    Двухэтажный жилой дом НОТТИНГЕМ
    Стоимость от:
    14 399 760
    Проект от: 89 550
    Этажей 2
    Санузлы 2
    Спальни 3
    Смотреть

    Как узнать стоимость дома

    back
    Оставляете заявку
    Вы заполняете форму на сайте или звоните нам. Менеджер Лайвкрафт связывается с вами для уточнения деталей: тип дома, площадь, материалы, участок строительства.
    back
    Консультация и подбор решения
    Наш специалист помогает выбрать оптимальный тип дома и конструкцию с учётом бюджета, сроков и целей — будь то дом для постоянного проживания или дача.
    back
    Расчёт предварительной стоимости
    Инженер делает первичный расчёт стоимости строительства по вашим параметрам: фундамент, коробка, кровля, отделка. Вы получаете смету с разбивкой по этапам.
    back
    Корректировка и утверждение сметы
    При необходимости вносим изменения — например, замену материалов или сокращение этапов. После согласования формируется окончательная фиксированная смета.
    back
    Заключение договора и старт работ
    После утверждения сметы заключаем официальный договор с гарантией. Вы получаете прозрачный график и точную стоимость — без скрытых расходов.

    Заказать конусльтацию по:Индивидуальный проект каркасного дома

    Фото 1 Индивидуальный проект каркасного дома


      Наши
      контакты

      Дмитров
      Опорный проезд 28Б
      (индустриальный парк Ниагара)
      9:00 до 18:00

      Корзина