4.9
Рейтинг на основании 120 отзывов
Дмитров
Опорный проезд 28Б
(индустриальный парк Ниагара)
Бренд "Дмитров-Дело" c 2008 года на рынке строительства в Дмитрове
Звоните 9:00 до 18:00 8 (915) 055-33-61
Бренд "Дмитров-Дело" c 2008 года на рынке строительства в Дмитрове

Индивидуальный жилой дом

Стоимость проекта от:
73 350 ₽
БЕСПЛАТНО! ПРИ ЗАКАЗЕ СТРОИТЕЛЬСТВА
Стоимость строительства от:
11 511 060 ₽
Артикул ART-17297
Дата 26.12.2025
Архитектурный стиль Классический
Количество надземных этажей 1
Круглогодичное проживание Да
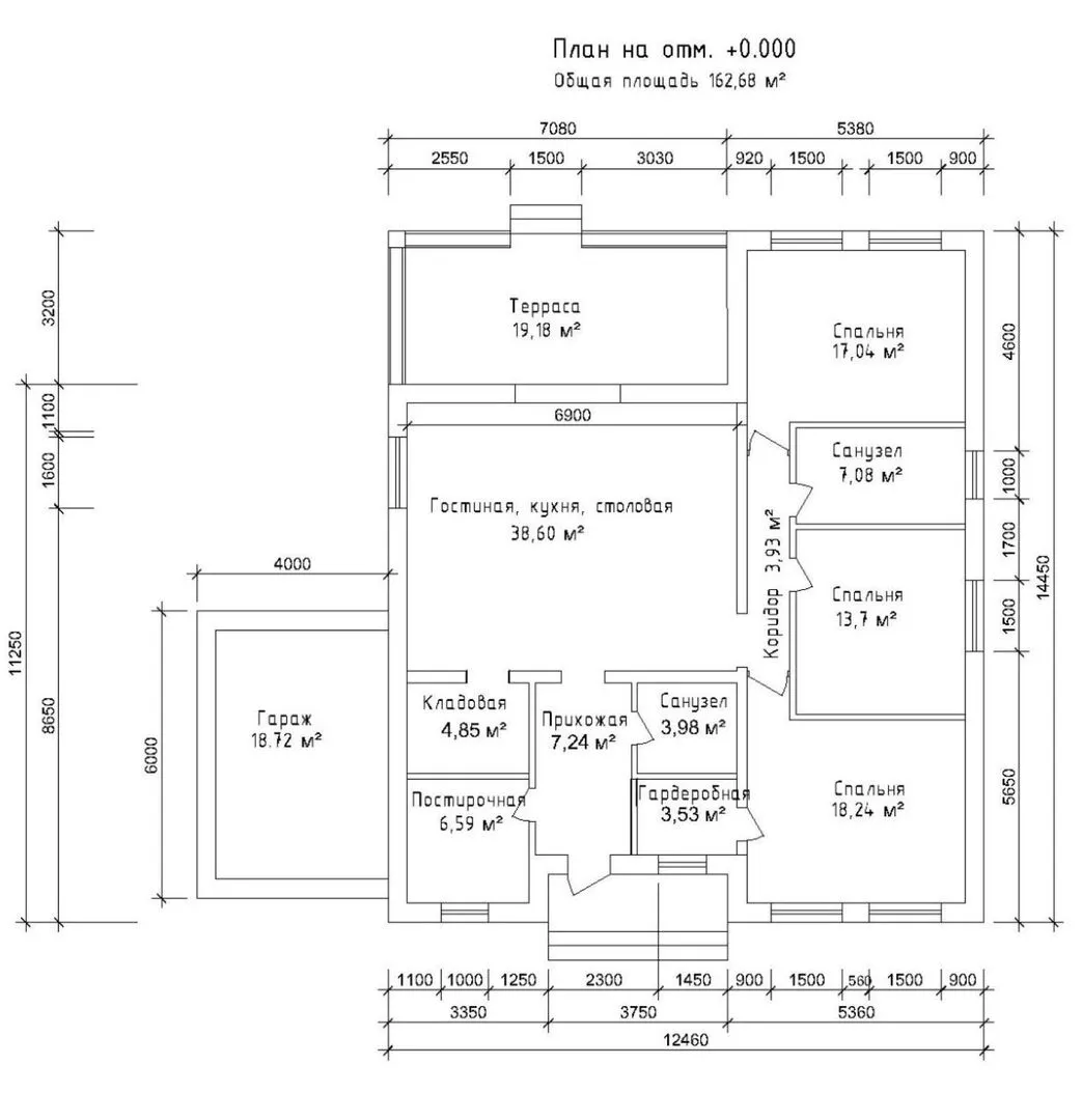
Площадь дома 163 м2
Санузлы 2
Спальни 3

Описание

Насколько чудесно можно представить уют, где каждый уголок пропитан теплом и классическим стилем? Этот одноквартирный дом, выполненный в традиционном классическом дизайне, обрамлен строгими кирпичными стенами, которые в сочетании с четырёхскатной вальмовой крышей создают ощущение непоколебимой стабильности и элегантности. Каждый элемент дома – от продуманной планировки до аккуратного вида фасада – говорит о безупречном качестве и продуманной детализации, подходящей для тех, кто ценит классику в современном исполнении. Круглогодичное проживание стало не просто словом, а гарантией уюта при любой погоде: теплоизоляция, надёжные окна и плотные двери позволяют наслаждаться комфортом в любое время года. Чердачное помещение, не стесняясь пространства, превращается в многофункциональную зону отдыха или творческого студии. Добавьте к этому просторную террасу, и вы получите идеальное место для летних барбекю и уютных вечеров в компании семьи и друзей. Кавалерийский гараж придаёт практичность, а крытая автостоянка защищает ваше транспортное средство от непогоды, обеспечивая спокойствие и порядок. Этот дом – не просто строение, а место, где каждая деталь, от кирпичины до крыши, звучит гармонией и приглашает вас погрузиться в атмосферу спокойствия и благополучия. Здесь каждый найдет свой уголок уюта, а каждое утро будет начинаться с тепла и надежды. Приглашаем вас открыть для себя это место и почувствовать, что комфорт и традиции могут жить в гармонии.

Характеристики дома

Архитектурный стиль
Автоматизированное регулирование параметров теплоносителя
Нет
Балконы/лоджии
Отсутствуют
Чердачное помещение
Да
Датчики протечки воды
Нет
Эксплуатируемая или зеленая кровля
Нет
Электроснабжение
Центральное
Газоснабжение
Центральное
Изоляция воздушного шума
Да
Камин
Нет
Класс энергоэффективности
-
Класс энергосбережения
-
Количество надземных этажей
1
Круглогодичное проживание
Да
Материал кровли
Металлочерепица
Материал перекрытий
Деревянные
Материал внешних стен
Материал внутренних перегородок
Блочные
Модульное строительство с конструкциями заводского изготовления
Нет
Объем надземной части
-
Основной материал фасадов
Облицовочный кирпич
Отопление
Индивидуальное
Площадь дома
163 м2
Площадь застройки
195 м2
Подвальное помещение
Нет
Показатель компактности здания
-
Приборы учета тепловой энергии
Нет
Пристроенный гараж/крытая автостоянка
Да
Противопожарная система
Нет
Санузлы
2
Совмещенная кухня-гостиная
Да
Спальни
3
Терраса
Да
Тип фундамента
Плитный
Толщина внешних стен
400 мм
Толщина внутренних перегородок
100 мм
Улучшенные шумовые характеристики
Да
Вентиляция
Естественная
Веранда
Нет
Водоотведение
Центральное
Водоснабжение
Центральное
Высота дома
5.92 м
Высота потолков
3 м

Планировка

Фасад дома

Александр

Закажите выезд инженера

Александр

Выездной инженер
Закажите выезд инженера для точной диагностики и профессиональной консультации по инженерным системам. Специалист приедет в удобное время, проведёт осмотр, рассчитает стоимость работ и подберёт оптимальные решения для вашего дома.


    Похожие проекты

    Ипотека и
    рассрочка
    72 Барн Песочнево
    Стоимость от:
    4 170 375
    Проект от: 33 750
    Этажей 1
    Санузлы 2
    Спальни 2
    Смотреть
    Ипотека и
    рассрочка
    МОЦАРТ 112
    Стоимость от:
    7 663 040
    Проект от: 50 400
    Этажей 1
    Санузлы 2
    Спальни 3
    Смотреть
    Ипотека и
    рассрочка
    Хай-Тек
    Стоимость от:
    9 042 880
    Проект от: 55 800
    Этажей 1
    Санузлы 2
    Спальни 3
    Смотреть
    Ипотека и
    рассрочка
    Скандинавский кирпич
    Стоимость от:
    10 262 780
    Проект от: 58 050
    Этажей 1
    Санузлы 2
    Спальни 3
    Смотреть
    Ипотека и
    рассрочка
    Загородный дом Пион
    Стоимость от:
    5 649 600
    Проект от: 36 000
    Этажей 1
    Санузлы 2
    Спальни 3
    Смотреть
    Ипотека и
    рассрочка
    Одноэтажный дом 100 кв м РХ 100
    Стоимость от:
    7 440 180
    Проект от: 44 550
    Этажей 1
    Санузлы 1
    Спальни 3
    Смотреть

    Как узнать стоимость дома

    back
    Оставляете заявку
    Вы заполняете форму на сайте или звоните нам. Менеджер Лайвкрафт связывается с вами для уточнения деталей: тип дома, площадь, материалы, участок строительства.
    back
    Консультация и подбор решения
    Наш специалист помогает выбрать оптимальный тип дома и конструкцию с учётом бюджета, сроков и целей — будь то дом для постоянного проживания или дача.
    back
    Расчёт предварительной стоимости
    Инженер делает первичный расчёт стоимости строительства по вашим параметрам: фундамент, коробка, кровля, отделка. Вы получаете смету с разбивкой по этапам.
    back
    Корректировка и утверждение сметы
    При необходимости вносим изменения — например, замену материалов или сокращение этапов. После согласования формируется окончательная фиксированная смета.
    back
    Заключение договора и старт работ
    После утверждения сметы заключаем официальный договор с гарантией. Вы получаете прозрачный график и точную стоимость — без скрытых расходов.

    Заказать конусльтацию по:Индивидуальный жилой дом

    Фото 1 Индивидуальный жилой дом


      Наши
      контакты

      Дмитров
      Опорный проезд 28Б
      (индустриальный парк Ниагара)
      9:00 до 18:00

      Корзина