4.9
Рейтинг на основании 120 отзывов
Дмитров
Опорный проезд 28Б
(индустриальный парк Ниагара)
Бренд "Дмитров-Дело" c 2008 года на рынке строительства в Дмитрове
Звоните 9:00 до 18:00 8 (915) 055-33-61
Бренд "Дмитров-Дело" c 2008 года на рынке строительства в Дмитрове

Индивидуальный жилой дом 907-12-05/23-АР

Стоимость проекта от:
47 250 ₽
БЕСПЛАТНО! ПРИ ЗАКАЗЕ СТРОИТЕЛЬСТВА
Стоимость строительства от:
7 609 200 ₽
Артикул ART-3832
Дата 26.12.2025
Архитектурный стиль Классический
Количество надземных этажей 2
Круглогодичное проживание Да
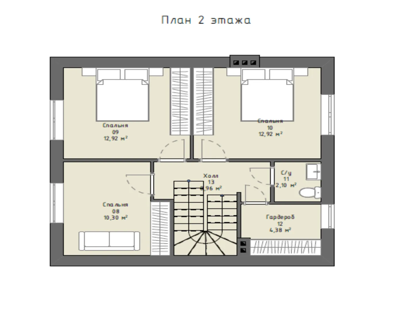
Площадь дома 105 м2
Санузлы 2
Спальни 3

Описание

Индивидуальный жилой дом 907‑12‑05/23‑АР — это воплощение безупречного классического дизайна, гармонично вписанное в современный городской пейзаж. Два надземных этажа, обрамленные изящными линиями двускатной крыши, создают уютную, но просторную среду, где каждый уголок радует глаз и сердце. Стены из газобетонных блоков, известные своей непревзойще хорошей тепло- и звукоизоляцией, гарантируют комфортное проживание в любое время года. Дом обустроен с умом: просторные, светлые комнаты, продуманные детали отделки и оптимально подобранная планировка позволят вам сразу почувствовать себя как дома. Классический стиль архитектуры придаёт зданию элегантность и утонченность, а отсутствие балконов и веранды делает пространство более защищённым и приватным. Это идеальный вариант для тех, кто ценит простоту и практичность без лишних усложнений: здесь нет пристроенного гаража или крытой автостоянки, но вы найдёте достаточное место для парковки. Пройдя несколько шагов по уютной подъездной части с изогнутыми окнами, вы окажетесь в доме, где каждый сантиметр продуман для вашего комфорта. Это не просто недвижимость, а пространство, которое вы можете назвать своим. Наслаждайтесь атмосферой домашнего уюта, простоты и уверенности в надежности – это ваш будущий дом, создающий атмосферу спокойствия и уединения, в которой легко строить свою жизнь.

Характеристики дома

Архитектурный стиль
Автоматизированное регулирование параметров теплоносителя
-
Балконы/лоджии
Отсутствуют
Чердачное помещение
Нет
Датчики протечки воды
-
Эксплуатируемая или зеленая кровля
-
Электроснабжение
Центральное
Газоснабжение
Не предусмотрено
Изоляция воздушного шума
-
Камин
Нет
Класс энергоэффективности
-
Класс энергосбережения
-
Количество надземных этажей
2
Круглогодичное проживание
Да
Материал кровли
Металлочерепица
Материал перекрытий
Иной вид материалов перекрытий
Материал внешних стен
Материал внутренних перегородок
Блочные
Модульное строительство с конструкциями заводского изготовления
Нет
Объем надземной части
317 м3
Основной материал фасадов
Сайдинг
Отопление
Индивидуальное
Площадь дома
105 м2
Площадь застройки
105 м2
Подвальное помещение
Нет
Показатель компактности здания
-
Приборы учета тепловой энергии
-
Пристроенный гараж/крытая автостоянка
Нет
Противопожарная система
Нет
Санузлы
2
Совмещенная кухня-гостиная
Да
Спальни
3
Терраса
Нет
Тип фундамента
Свайно-ростверковый
Тип кровли
Толщина внешних стен
400 мм
Толщина внутренних перегородок
100 мм
Улучшенные шумовые характеристики
-
Вентиляция
Естественная
Веранда
Нет
Водоотведение
Центральное
Водоснабжение
2 варианта
Высота дома
7.58 м
Высота потолков
3 м

Планировка

Фасад дома

Александр

Закажите выезд инженера

Александр

Выездной инженер
Закажите выезд инженера для точной диагностики и профессиональной консультации по инженерным системам. Специалист приедет в удобное время, проведёт осмотр, рассчитает стоимость работ и подберёт оптимальные решения для вашего дома.


    Похожие проекты

    Ипотека и
    рассрочка
    Проект двухэтажного дома «АРИАДНА-МЧ» 15,0х8,3
    Стоимость от:
    11 391 120
    Проект от: 73 350
    Этажей 2
    Санузлы 2
    Спальни 5
    Смотреть
    Ипотека и
    рассрочка
    Типовой дом 1
    Стоимость от:
    9 650 640
    Проект от: 58 950
    Этажей 2
    Санузлы 3
    Спальни 4
    Смотреть
    Ипотека и
    рассрочка
    Газобетонный дом «Тиас»
    Стоимость от:
    11 530 800
    Проект от: 74 250
    Этажей 2
    Санузлы 2
    Спальни 3
    Смотреть
    Ипотека и
    рассрочка
    Меркурий
    Стоимость от:
    5 473 600
    Проект от: 36 000
    Этажей 1
    Санузлы 1
    Спальни 1
    Смотреть
    Ипотека и
    рассрочка
    23НШ11.00 KOPORE
    Стоимость от:
    6 839 415
    Проект от: 55 350
    Этажей 1
    Санузлы 2
    Спальни 3
    Смотреть
    Ипотека и
    рассрочка
    Дом с мансардным этажом
    Стоимость от:
    7 816 320
    Проект от: 48 600
    Этажей 2
    Санузлы 2
    Спальни 3
    Смотреть

    Как узнать стоимость дома

    back
    Оставляете заявку
    Вы заполняете форму на сайте или звоните нам. Менеджер Лайвкрафт связывается с вами для уточнения деталей: тип дома, площадь, материалы, участок строительства.
    back
    Консультация и подбор решения
    Наш специалист помогает выбрать оптимальный тип дома и конструкцию с учётом бюджета, сроков и целей — будь то дом для постоянного проживания или дача.
    back
    Расчёт предварительной стоимости
    Инженер делает первичный расчёт стоимости строительства по вашим параметрам: фундамент, коробка, кровля, отделка. Вы получаете смету с разбивкой по этапам.
    back
    Корректировка и утверждение сметы
    При необходимости вносим изменения — например, замену материалов или сокращение этапов. После согласования формируется окончательная фиксированная смета.
    back
    Заключение договора и старт работ
    После утверждения сметы заключаем официальный договор с гарантией. Вы получаете прозрачный график и точную стоимость — без скрытых расходов.

    Заказать конусльтацию по:Индивидуальный жилой дом 907-12-05/23-АР

    Фото 1 Индивидуальный жилой дом 907-12-05/23-АР


      Наши
      контакты

      Дмитров
      Опорный проезд 28Б
      (индустриальный парк Ниагара)
      9:00 до 18:00

      Корзина