4.9
Рейтинг на основании 120 отзывов
Дмитров
Опорный проезд 28Б
(индустриальный парк Ниагара)
Бренд "Дмитров-Дело" c 2008 года на рынке строительства в Дмитрове
Звоните 9:00 до 18:00 8 (915) 055-33-61
Бренд "Дмитров-Дело" c 2008 года на рынке строительства в Дмитрове

Индивидуальный жилой дом «Нордик»

Стоимость проекта от:
77 850 ₽
БЕСПЛАТНО! ПРИ ЗАКАЗЕ СТРОИТЕЛЬСТВА
Стоимость строительства от:
11 880 720 ₽
Артикул ART-18970
Дата 26.12.2025
Архитектурный стиль Скандинавский
Количество надземных этажей 2
Круглогодичное проживание Да
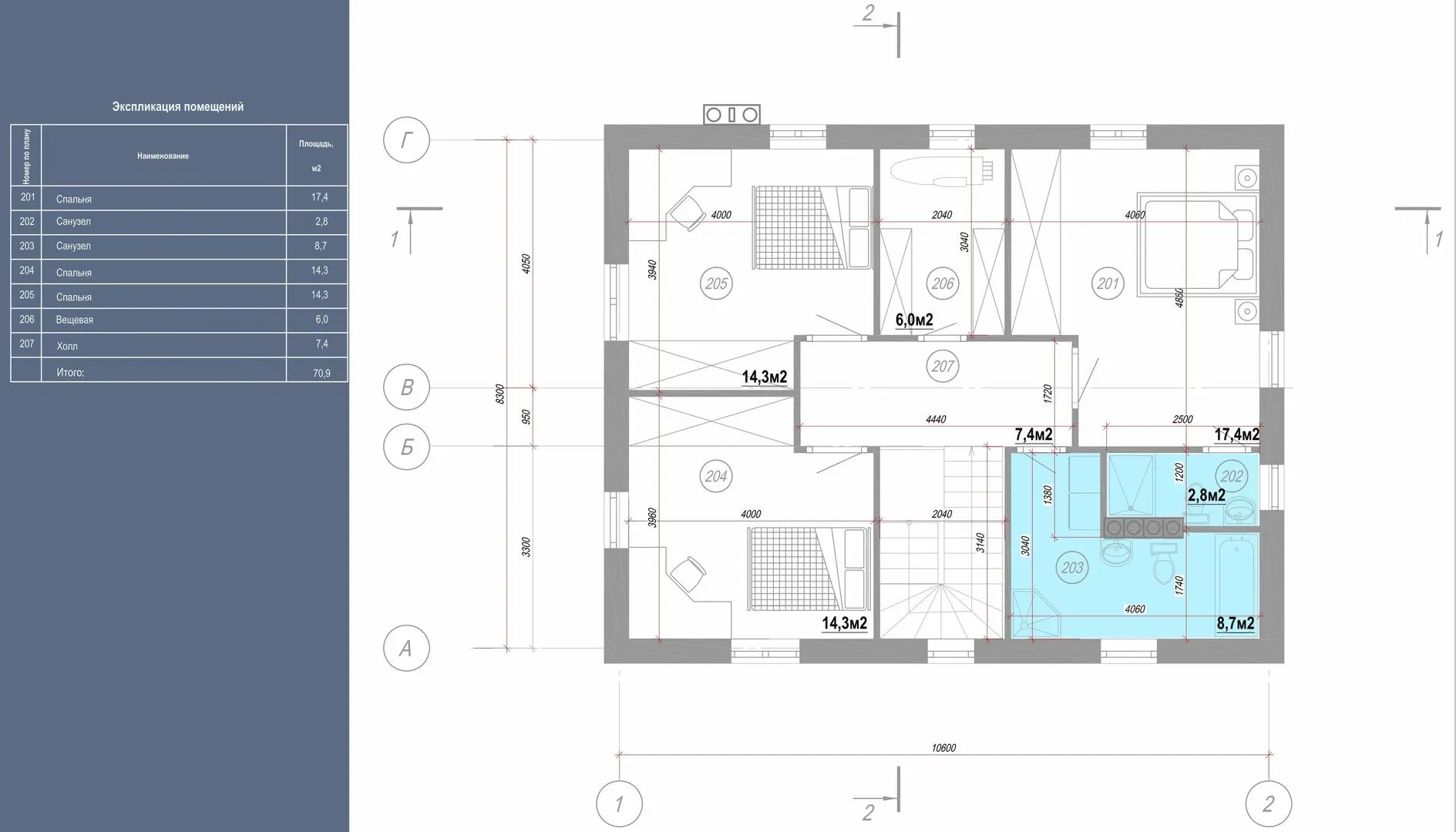
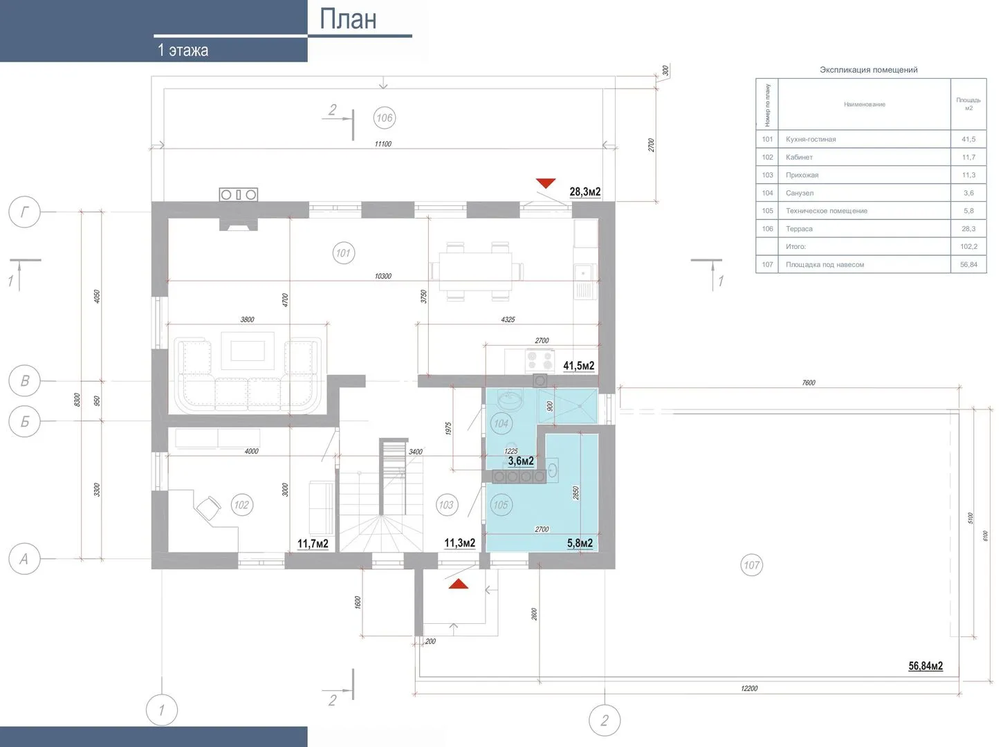
Площадь дома 173 м2
Санузлы 3
Спальни 3

Описание

Индивидуальный жилой дом «Нордик» — это идеальное сочетание скандинавского шика и практичности, созданное с учётом всех потребностей современного семейного жилья. На два надземных этажа разложены уютные, светлые жилые зоны, где каждая деталь продумана: просторные кухни, открытая гостинная, светлые спальни и тихие уголки для отдыха. Структура дома позволяет круглогодичную комфортную жизнедеятельность без лишних потерь тепла и энергии – благодаря утепленному газобетонному облику, который одновременно защищает от холода и создает приятную теплоизоляцию. Крыша в традиционном двускатном виде прекрасно вписывается в скандинавскую эстетику, подчёркнутую лаконичностью линий и простотой форм. Отсутствие балконов и веранд не ставит преград для естественного света: большие окна, высокие потолки и открытая планировка наполняют все помещения мягким светом и создают ощущение простора. А всё это сочетается с практической террасой на заднем дворе, где можно поюжить в тёплый летний вечер, а приоткрыть окно и вдохнуть свежий воздух. Наличие прицепной крытой автостоянки и гаража — удобно для владельцев автомобилей, а отсутствие чердачного помещения избавляет от лишних складских зон, сохраняя внутреннее пространство чистым и функциональным. Дом «Нордик» сочетает в себе не только эстетическую привлекательность и функциональность, но и экологичность, используя качественные газобетонные блоки и современные технологии строительства. Это ваш новый оазис уюта, где каждый день начинается с яркого света и заканчивается спокойствием.

Характеристики дома

Архитектурный стиль
Автоматизированное регулирование параметров теплоносителя
Да
Балконы/лоджии
Отсутствуют
Чердачное помещение
Нет
Датчики протечки воды
Нет
Эксплуатируемая или зеленая кровля
Нет
Электроснабжение
Центральное
Газоснабжение
Центральное
Изоляция воздушного шума
Нет
Камин
Нет
Класс энергоэффективности
-
Класс энергосбережения
-
Количество надземных этажей
2
Круглогодичное проживание
Да
Материал кровли
Композитная черепица
Материал перекрытий
Сборные железобетонные
Материал внешних стен
Материал внутренних перегородок
Пенобетонные
Модульное строительство с конструкциями заводского изготовления
Нет
Объем надземной части
640 м3
Основной материал фасадов
Штукатурка
Отопление
Индивидуальное
Площадь дома
173 м2
Площадь застройки
189 м2
Подвальное помещение
Нет
Показатель компактности здания
-
Приборы учета тепловой энергии
Нет
Пристроенный гараж/крытая автостоянка
Да
Противопожарная система
Нет
Санузлы
3
Совмещенная кухня-гостиная
Да
Спальни
3
Терраса
Да
Тип фундамента
Плитный
Тип кровли
Толщина внешних стен
400 мм
Толщина внутренних перегородок
300 мм
Улучшенные шумовые характеристики
Нет
Вентиляция
Естественная
Веранда
Нет
Водоотведение
Локальные очистные сооружения
Водоснабжение
Индивидуальное
Высота дома
6.85 м
Высота потолков
3.1 м

Планировка

Фасад дома

Александр

Закажите выезд инженера

Александр

Выездной инженер
Закажите выезд инженера для точной диагностики и профессиональной консультации по инженерным системам. Специалист приедет в удобное время, проведёт осмотр, рассчитает стоимость работ и подберёт оптимальные решения для вашего дома.


    Похожие проекты

    Ипотека и
    рассрочка
    Проект одноэтажного дома «ДЕМИРА-ГЧш» 15,0х9,0
    Стоимость от:
    6 842 000
    Проект от: 45 000
    Этажей 1
    Санузлы 2
    Спальни 3
    Смотреть
    Ипотека и
    рассрочка
    Остфольд
    Стоимость от:
    7 184 100
    Проект от: 47 250
    Этажей 1
    Санузлы 2
    Спальни 3
    Смотреть
    Ипотека и
    рассрочка
    ФД 96
    Стоимость от:
    5 508 360
    Проект от: 35 100
    Этажей 1
    Санузлы 1
    Спальни 3
    Смотреть
    Ипотека и
    рассрочка
    Проект дома КС-7
    Стоимость от:
    6 768 300
    Проект от: 38 250
    Этажей 1
    Санузлы 1
    Спальни 2
    Смотреть
    Ипотека и
    рассрочка
    Современный дом МЕЛИНА-130
    Стоимость от:
    9 079 200
    Проект от: 58 500
    Этажей 2
    Санузлы 2
    Спальни 4
    Смотреть
    Ипотека и
    рассрочка
    Проект загородного дома NHD-169
    Стоимость от:
    5 789 740
    Проект от: 34 650
    Этажей 1
    Санузлы 1
    Спальни 2
    Смотреть

    Как узнать стоимость дома

    back
    Оставляете заявку
    Вы заполняете форму на сайте или звоните нам. Менеджер Лайвкрафт связывается с вами для уточнения деталей: тип дома, площадь, материалы, участок строительства.
    back
    Консультация и подбор решения
    Наш специалист помогает выбрать оптимальный тип дома и конструкцию с учётом бюджета, сроков и целей — будь то дом для постоянного проживания или дача.
    back
    Расчёт предварительной стоимости
    Инженер делает первичный расчёт стоимости строительства по вашим параметрам: фундамент, коробка, кровля, отделка. Вы получаете смету с разбивкой по этапам.
    back
    Корректировка и утверждение сметы
    При необходимости вносим изменения — например, замену материалов или сокращение этапов. После согласования формируется окончательная фиксированная смета.
    back
    Заключение договора и старт работ
    После утверждения сметы заключаем официальный договор с гарантией. Вы получаете прозрачный график и точную стоимость — без скрытых расходов.

    Заказать конусльтацию по:Индивидуальный жилой дом «Нордик»

    Фото 1 Индивидуальный жилой дом «Нордик»


      Наши
      контакты

      Дмитров
      Опорный проезд 28Б
      (индустриальный парк Ниагара)
      9:00 до 18:00

      Корзина