4.9
Рейтинг на основании 120 отзывов
Дмитров
Опорный проезд 28Б
(индустриальный парк Ниагара)
Бренд "Дмитров-Дело" c 2008 года на рынке строительства в Дмитрове
Звоните 9:00 до 18:00 8 (915) 055-33-61
Бренд "Дмитров-Дело" c 2008 года на рынке строительства в Дмитрове

Индивидуальный жилой дом площадью площадью 105 м2

Стоимость проекта от:
47 250 ₽
БЕСПЛАТНО! ПРИ ЗАКАЗЕ СТРОИТЕЛЬСТВА
Стоимость строительства от:
8 356 700 ₽
Артикул ART-14954
Дата 25.12.2025
Архитектурный стиль Европейский
Количество надземных этажей 1
Круглогодичное проживание Да
Площадь дома 105 м2
Санузлы 2
Спальни 3

Описание

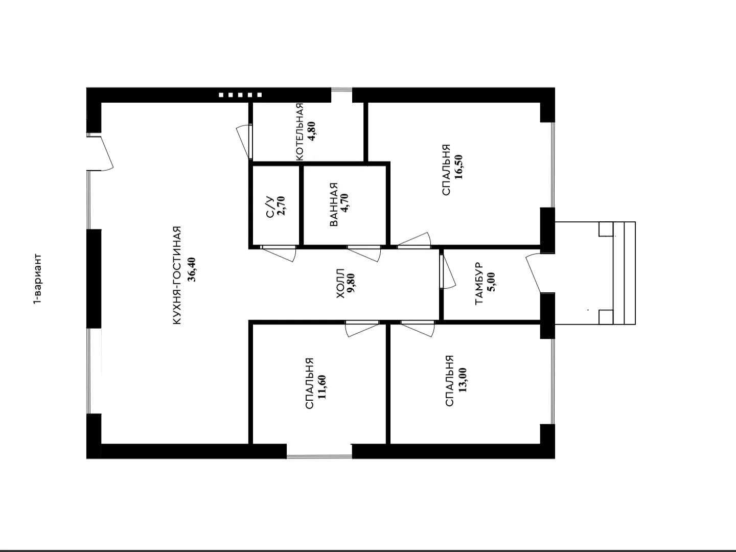
Индивидуальный дом площадью 105 м², в котором сочетание европейского стиля и функциональности создаёт ощущение уюта и современности. Сочетание газобетонных блоков в стенах и строгий четырёхскатный (валмовый) скатный покров подчёркивают чистую геометрию линий, при этом гарантируют тепло- и шумоизоляцию, позволяющая комфортно проживать круглый год. Отсутствие балконов и веранд не ограничивает простор внутри, а открытая крытая часть с чердачным пространством раскрывает дополнительные возможности для хранения или создания уютного уголка для чтения в любой момент. Внутренний план оптимизирован под повседневный комфорт: просторная гостинная с обильным естественным освещением, функциональная кухонная зона, где встречаются качество материалов и эргономичность, несколько светлых спален с удобными гардеробами и ванная — всё это создаёт гармоничное единство внутри единого уровня без лишних переходов. Чердачное помещение добавляет в проект гибкость: его можно превратить в студию творчества, детскую комнату или домашний офис. Каждый элемент дома подчеркивает практичность: нет необходимости в отдельном гараже — всё, что нужно, уже в одной зоне, экономишь время и пространство. Этот дом – идеальное решение для тех, кто ценит сочетание европейского вкуса, безупречного качества и практичности. Он приглашает вас окунуться в мир тишины и уюта, где каждая деталь создана для вашего благополучия. Пройдитесь по этому уникальному проекту и убедитесь, что ваш новый дом может стать настоящим оазисом комфорта и спокойствия.

Характеристики дома

Архитектурный стиль
Автоматизированное регулирование параметров теплоносителя
Нет
Балконы/лоджии
Отсутствуют
Чердачное помещение
Да
Датчики протечки воды
Нет
Эксплуатируемая или зеленая кровля
Нет
Электроснабжение
Индивидуальное
Газоснабжение
Индивидуальное
Изоляция воздушного шума
Нет
Камин
Нет
Класс энергоэффективности
-
Класс энергосбережения
-
Количество надземных этажей
1
Круглогодичное проживание
Да
Материал кровли
Металлочерепица
Материал перекрытий
Монолитные железобетонные
Материал внешних стен
Материал внутренних перегородок
Кирпичные
Модульное строительство с конструкциями заводского изготовления
Нет
Объем надземной части
381 м3
Основной материал фасадов
Облицовочный кирпич
Отопление
Индивидуальное
Площадь дома
105 м2
Площадь застройки
127 м2
Подвальное помещение
Нет
Показатель компактности здания
-
Приборы учета тепловой энергии
Нет
Пристроенный гараж/крытая автостоянка
Нет
Противопожарная система
Нет
Санузлы
2
Совмещенная кухня-гостиная
Да
Спальни
3
Терраса
Нет
Тип фундамента
Ленточный
Толщина внешних стен
380 мм
Толщина внутренних перегородок
120 мм
Улучшенные шумовые характеристики
Нет
Вентиляция
Естественная
Веранда
Нет
Водоотведение
Локальные очистные сооружения
Водоснабжение
Индивидуальное
Высота дома
6 м
Высота потолков
3 м

Планировка

Фасад дома

Александр

Закажите выезд инженера

Александр

Выездной инженер
Закажите выезд инженера для точной диагностики и профессиональной консультации по инженерным системам. Специалист приедет в удобное время, проведёт осмотр, рассчитает стоимость работ и подберёт оптимальные решения для вашего дома.


    Похожие проекты

    Ипотека и
    рассрочка
    VDOM 60
    Стоимость от:
    4 782 800
    Проект от: 27 000
    Этажей 1
    Санузлы 1
    Спальни 2
    Смотреть
    Ипотека и
    рассрочка
    Загородный особняк «Гринфилд»
    Стоимость от:
    18 133 700
    Проект от: 110 250
    Этажей 3
    Санузлы 2
    Спальни 4
    Смотреть
    Ипотека и
    рассрочка
    Космос
    Стоимость от:
    4 584 240
    Проект от: 27 450
    Этажей 2
    Санузлы 2
    Спальни 2
    Смотреть
    Ипотека и
    рассрочка
    Ддом-41
    Стоимость от:
    6 384 000
    Проект от: 45 000
    Этажей 2
    Санузлы 2
    Спальни 4
    Смотреть
    Ипотека и
    рассрочка
    Одноэтажный дом FIXPLANS — 1628
    Стоимость от:
    10 977 560
    Проект от: 62 100
    Этажей 1
    Санузлы 2
    Спальни 3
    Смотреть
    Ипотека и
    рассрочка
    Возведение — 13
    Стоимость от:
    10 024 520
    Проект от: 56 700
    Этажей 1
    Санузлы 2
    Спальни 3
    Смотреть

    Как узнать стоимость дома

    back
    Оставляете заявку
    Вы заполняете форму на сайте или звоните нам. Менеджер Лайвкрафт связывается с вами для уточнения деталей: тип дома, площадь, материалы, участок строительства.
    back
    Консультация и подбор решения
    Наш специалист помогает выбрать оптимальный тип дома и конструкцию с учётом бюджета, сроков и целей — будь то дом для постоянного проживания или дача.
    back
    Расчёт предварительной стоимости
    Инженер делает первичный расчёт стоимости строительства по вашим параметрам: фундамент, коробка, кровля, отделка. Вы получаете смету с разбивкой по этапам.
    back
    Корректировка и утверждение сметы
    При необходимости вносим изменения — например, замену материалов или сокращение этапов. После согласования формируется окончательная фиксированная смета.
    back
    Заключение договора и старт работ
    После утверждения сметы заключаем официальный договор с гарантией. Вы получаете прозрачный график и точную стоимость — без скрытых расходов.

    Заказать конусльтацию по:Индивидуальный жилой дом площадью площадью 105 м2

    Фото 1 Индивидуальный жилой дом площадью площадью 105 м2


      Наши
      контакты

      Дмитров
      Опорный проезд 28Б
      (индустриальный парк Ниагара)
      9:00 до 18:00

      Корзина