4.9
Рейтинг на основании 120 отзывов
Дмитров
Опорный проезд 28Б
(индустриальный парк Ниагара)
Бренд "Дмитров-Дело" c 2008 года на рынке строительства в Дмитрове
Звоните 9:00 до 18:00 8 (915) 055-33-61
Бренд "Дмитров-Дело" c 2008 года на рынке строительства в Дмитрове

ИНДИВИДУАЛЬНЫЙ ЖИЛОЙ ДОМ“MIKEA5 FRONT”

Стоимость проекта от:
84 600 ₽
БЕСПЛАТНО! ПРИ ЗАКАЗЕ СТРОИТЕЛЬСТВА
Стоимость строительства от:
12 862 960 ₽
Артикул ART-13602
Дата 25.12.2025
Архитектурный стиль Европейский
Количество надземных этажей 1
Круглогодичное проживание Да
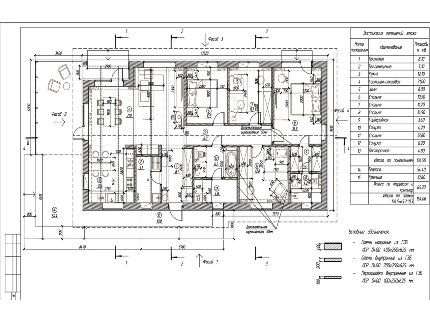
Площадь дома 188 м2
Санузлы 2
Спальни 4

Описание

Погрузитесь в атмосферу истинного европейского уюта с уникальным домом «MIKEA5 FRONT». Это одноэтажная жемчужина, где каждый уголок пронизан комфортом круглогодичного проживания. Архитектурный стиль, вдохновленный европейскими традициями, сочетает в себе простоту и элегантность: чистые линии, гармоничные пропорции и светлые фасады, выполненные из прочных газобетонных блоков, создают ощущение тепла и надёжности. Внутри вам откроется просторный жилой план, где отдалённость от городской суеты будет соприконтироваться с современными удобствами. Отсутствие балконов и веранд не умаляет комфорта — вместо этого в гостиной будет просторное пространство, где можно наслаждаться тихими вечерами. Двускатный чердачный кабинет придаёт дому характер, а открытая терраса приглашает к летним беседам и уютным вечерним обедам на свежем воздухе. Дом без прицепленного гаража отлично подходит для тех, кто ценит открытость и простоту городской жизни, а креативные решения по внутреннему порядку позволят создать индивидуальное пространство, полностью отражающее ваш стиль и предпочтения.

Характеристики дома

Архитектурный стиль
Автоматизированное регулирование параметров теплоносителя
Нет
Балконы/лоджии
Отсутствуют
Чердачное помещение
Да
Датчики протечки воды
Нет
Эксплуатируемая или зеленая кровля
Нет
Электроснабжение
Центральное
Газоснабжение
Не предусмотрено
Изоляция воздушного шума
Нет
Камин
Да
Класс энергоэффективности
-
Класс энергосбережения
-
Количество надземных этажей
1
Круглогодичное проживание
Да
Материал кровли
Фальцевая кровля Кликфальц
Материал перекрытий
Деревянные по металлическим балкам
Материал внешних стен
Материал внутренних перегородок
Блочные
Модульное строительство с конструкциями заводского изготовления
Нет
Объем надземной части
700 м3
Основной материал фасадов
Штукатурка
Отопление
Индивидуальное
Площадь дома
188 м2
Площадь застройки
233 м2
Подвальное помещение
Нет
Показатель компактности здания
-
Приборы учета тепловой энергии
Нет
Пристроенный гараж/крытая автостоянка
Нет
Противопожарная система
Нет
Санузлы
2
Совмещенная кухня-гостиная
Да
Спальни
4
Терраса
Да
Тип фундамента
Плитный
Тип кровли
Толщина внешних стен
400 мм
Толщина внутренних перегородок
100 мм
Улучшенные шумовые характеристики
Нет
Вентиляция
Естественная
Веранда
Нет
Водоотведение
Локальные очистные сооружения
Водоснабжение
Индивидуальное
Высота дома
5.73 м
Высота потолков
2.8 м

Планировка

Фасад дома

Александр

Закажите выезд инженера

Александр

Выездной инженер
Закажите выезд инженера для точной диагностики и профессиональной консультации по инженерным системам. Специалист приедет в удобное время, проведёт осмотр, рассчитает стоимость работ и подберёт оптимальные решения для вашего дома.


    Похожие проекты

    Ипотека и
    рассрочка
    Одноэтажный дом СКАЙ-81
    Стоимость от:
    5 720 220
    Проект от: 36 450
    Этажей 1
    Санузлы 2
    Спальни 2
    Смотреть
    Ипотека и
    рассрочка
    Одноэтажный дом «Бавария»
    Стоимость от:
    10 977 560
    Проект от: 62 100
    Этажей 1
    Санузлы 2
    Спальни 3
    Смотреть
    Ипотека и
    рассрочка
    Загородный дом 15
    Стоимость от:
    12 683 880
    Проект от: 78 300
    Этажей 1
    Санузлы 2
    Спальни 3
    Смотреть
    Ипотека и
    рассрочка
    Дом Dreamy (Мечтательный)
    Стоимость от:
    3 336 300
    Проект от: 27 000
    Этажей 1
    Санузлы 1
    Спальни 2
    Смотреть
    Ипотека и
    рассрочка
    Z-7
    Стоимость от:
    6 464 920
    Проект от: 38 700
    Этажей 1
    Санузлы 1
    Спальни 3
    Смотреть
    Ипотека и
    рассрочка
    Одноэтажный дом с тремя спальнями и террасой. Проект 44-23КД
    Стоимость от:
    5 331 480
    Проект от: 37 800
    Этажей 1
    Санузлы 2
    Спальни 3
    Смотреть

    Как узнать стоимость дома

    back
    Оставляете заявку
    Вы заполняете форму на сайте или звоните нам. Менеджер Лайвкрафт связывается с вами для уточнения деталей: тип дома, площадь, материалы, участок строительства.
    back
    Консультация и подбор решения
    Наш специалист помогает выбрать оптимальный тип дома и конструкцию с учётом бюджета, сроков и целей — будь то дом для постоянного проживания или дача.
    back
    Расчёт предварительной стоимости
    Инженер делает первичный расчёт стоимости строительства по вашим параметрам: фундамент, коробка, кровля, отделка. Вы получаете смету с разбивкой по этапам.
    back
    Корректировка и утверждение сметы
    При необходимости вносим изменения — например, замену материалов или сокращение этапов. После согласования формируется окончательная фиксированная смета.
    back
    Заключение договора и старт работ
    После утверждения сметы заключаем официальный договор с гарантией. Вы получаете прозрачный график и точную стоимость — без скрытых расходов.

    Заказать конусльтацию по:ИНДИВИДУАЛЬНЫЙ ЖИЛОЙ ДОМ“MIKEA5 FRONT”

    Фото 1 ИНДИВИДУАЛЬНЫЙ ЖИЛОЙ ДОМ“MIKEA5 FRONT”


      Наши
      контакты

      Дмитров
      Опорный проезд 28Б
      (индустриальный парк Ниагара)
      9:00 до 18:00

      Корзина