4.9
Рейтинг на основании 120 отзывов
Дмитров
Опорный проезд 28Б
(индустриальный парк Ниагара)
Бренд "Дмитров-Дело" c 2008 года на рынке строительства в Дмитрове
Звоните 9:00 до 18:00 8 (915) 055-33-61
Бренд "Дмитров-Дело" c 2008 года на рынке строительства в Дмитрове

Индивидуальный жилой проект ОС-24-32

Стоимость проекта от:
44 550 ₽
БЕСПЛАТНО! ПРИ ЗАКАЗЕ СТРОИТЕЛЬСТВА
Стоимость строительства от:
7 880 180 ₽
Артикул ART-5836
Дата 26.12.2025
Архитектурный стиль Классический
Количество надземных этажей 1
Круглогодичное проживание Да
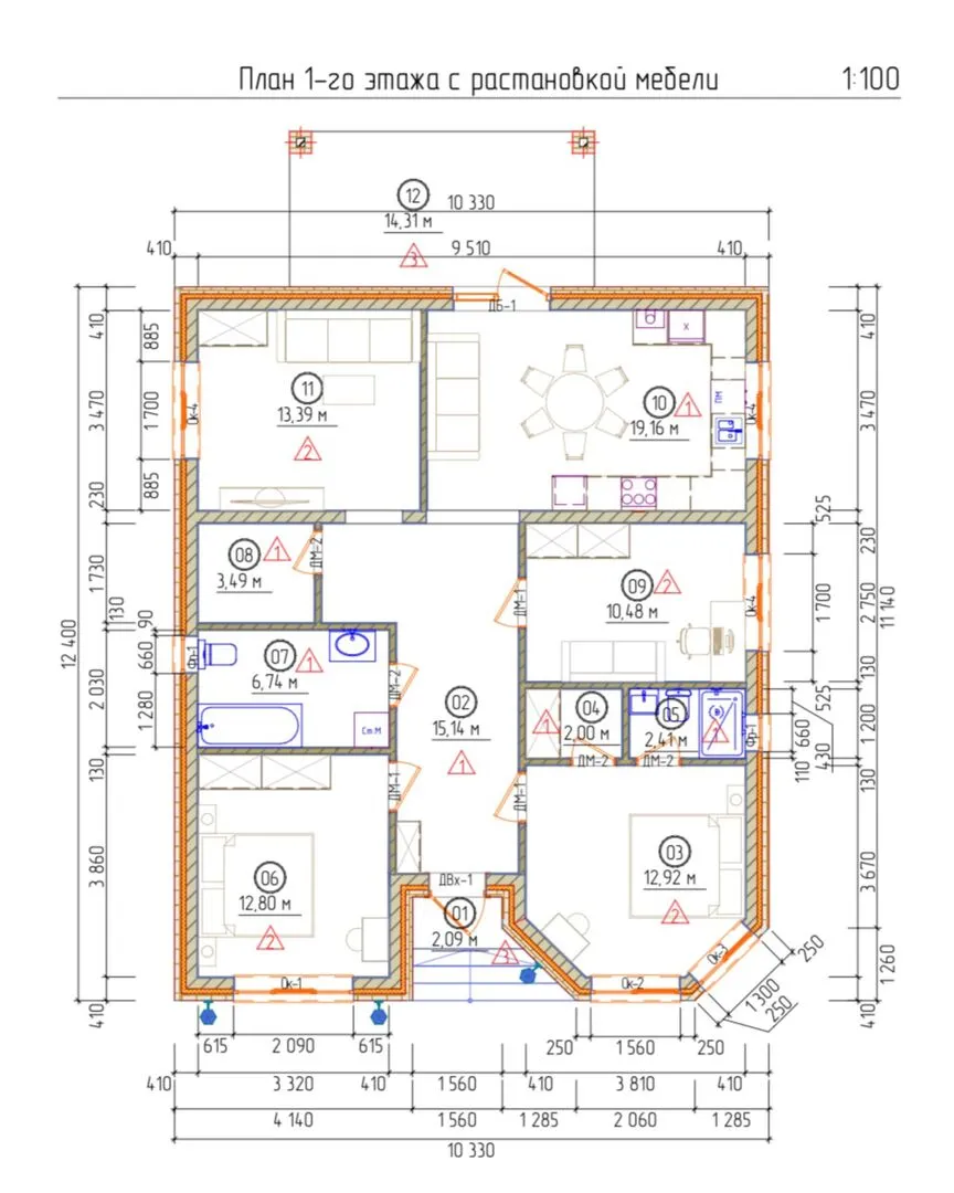
Площадь дома 99 м2
Санузлы 2
Спальни 3

Описание

Небольшой, но элегантный, классический дом ОС‑24‑32 — ваш идеальный уголок в мире уюта и комфорта. Одиннадцатый этаж — это целая жизнь, открытая круглый год, где каждая комната обретает собственный характер и свет. Внешний вид дома подчеркнут гармоничными кирпичными стенами, которые впитывают тепло и отражают тепло окружающей природы. Вытолкованная вальмовой кровля придаёт зданию особую строгость и элегантность, словно скульптурный холм над спокойным садом. Устойчивый и практичный, проект без балконов и веранд оставляет достаточно открытого пространства для уютных вечеров у камина или на террасе. Терраса, как живое продолжение дома, приглашает к прогулкам в любое время года: в солнечный день она становится тёплым уголком для чтения, а в прохладное утро — идеальным местом для ароматного кофейного ранка. Без прикольных автостоянок и чердачников вы получаете чистую, свободную территорию для творчества: можно превратить её в цветочный уголок, детскую площадку или уютный гриль-рай. Подобный дом станет прекрасной инвестицией в ваш комфорт и благополучие. Классический стиль объединён с современными удобствами: просторные ванные комнаты, продуманные зоны хранения и качественная отделка внутри помещения. В итоге вы получаете место, где каждый день начинается и заканчивается гармонией, а ваш дом становится не просто местом проживания, а настоящим убежищем от повседневной суеты. 🌟

Характеристики дома

Архитектурный стиль
Автоматизированное регулирование параметров теплоносителя
-
Балконы/лоджии
Отсутствуют
Чердачное помещение
Нет
Датчики протечки воды
-
Эксплуатируемая или зеленая кровля
-
Электроснабжение
Центральное
Газоснабжение
Центральное
Изоляция воздушного шума
-
Камин
Нет
Класс энергоэффективности
-
Класс энергосбережения
-
Количество надземных этажей
1
Круглогодичное проживание
Да
Материал кровли
Металлочерепица
Материал перекрытий
Деревянные
Материал внешних стен
Материал внутренних перегородок
Кирпичные
Модульное строительство с конструкциями заводского изготовления
Нет
Объем надземной части
114 м3
Основной материал фасадов
Облицовочный кирпич
Отопление
Индивидуальное
Площадь дома
99 м2
Площадь застройки
131 м2
Подвальное помещение
Нет
Показатель компактности здания
-
Приборы учета тепловой энергии
-
Пристроенный гараж/крытая автостоянка
Нет
Противопожарная система
Да
Санузлы
2
Совмещенная кухня-гостиная
Да
Спальни
3
Терраса
Да
Тип фундамента
Ленточный
Толщина внешних стен
400 мм
Толщина внутренних перегородок
130 мм
Улучшенные шумовые характеристики
-
Вентиляция
Естественная
Веранда
Нет
Водоотведение
2 варианта
Водоснабжение
Центральное
Высота дома
6 м
Высота потолков
3 м

Планировка

Фасад дома

Александр

Закажите выезд инженера

Александр

Выездной инженер
Закажите выезд инженера для точной диагностики и профессиональной консультации по инженерным системам. Специалист приедет в удобное время, проведёт осмотр, рассчитает стоимость работ и подберёт оптимальные решения для вашего дома.


    Похожие проекты

    Ипотека и
    рассрочка
    Одноэтажный дом FIXPLANS — 0638
    Стоимость от:
    20 526 000
    Проект от: 135 000
    Этажей 1
    Санузлы 5
    Спальни 3
    Смотреть
    Ипотека и
    рассрочка
    Загородный дом MAKS-1
    Стоимость от:
    11 916 480
    Проект от: 72 900
    Этажей 2
    Санузлы 2
    Спальни 2
    Смотреть
    Ипотека и
    рассрочка
    Дом ИЖС 100К
    Стоимость от:
    8 968 740
    Проект от: 57 150
    Этажей 1
    Санузлы 1
    Спальни 3
    Смотреть
    Ипотека и
    рассрочка
    Двухэтажный дом ЦН-123
    Стоимость от:
    7 953 960
    Проект от: 55 350
    Этажей 2
    Санузлы 2
    Спальни 3
    Смотреть
    Ипотека и
    рассрочка
    Одноэтажный кирпичный дом BUSINESS — 131 m2 Серый облицовочный кирпич
    Стоимость от:
    7 800 760
    Проект от: 44 100
    Этажей 1
    Санузлы 2
    Спальни 3
    Смотреть
    Ипотека и
    рассрочка
    Загородный дом АС-263
    Стоимость от:
    8 677 440
    Проект от: 52 200
    Этажей 2
    Санузлы 3
    Спальни 2
    Смотреть

    Как узнать стоимость дома

    back
    Оставляете заявку
    Вы заполняете форму на сайте или звоните нам. Менеджер Лайвкрафт связывается с вами для уточнения деталей: тип дома, площадь, материалы, участок строительства.
    back
    Консультация и подбор решения
    Наш специалист помогает выбрать оптимальный тип дома и конструкцию с учётом бюджета, сроков и целей — будь то дом для постоянного проживания или дача.
    back
    Расчёт предварительной стоимости
    Инженер делает первичный расчёт стоимости строительства по вашим параметрам: фундамент, коробка, кровля, отделка. Вы получаете смету с разбивкой по этапам.
    back
    Корректировка и утверждение сметы
    При необходимости вносим изменения — например, замену материалов или сокращение этапов. После согласования формируется окончательная фиксированная смета.
    back
    Заключение договора и старт работ
    После утверждения сметы заключаем официальный договор с гарантией. Вы получаете прозрачный график и точную стоимость — без скрытых расходов.

    Заказать конусльтацию по:Индивидуальный жилой проект ОС-24-32

    Фото 1 Индивидуальный жилой проект ОС-24-32


      Наши
      контакты

      Дмитров
      Опорный проезд 28Б
      (индустриальный парк Ниагара)
      9:00 до 18:00

      Корзина