4.9
Рейтинг на основании 120 отзывов
Дмитров
Опорный проезд 28Б
(индустриальный парк Ниагара)
Бренд "Дмитров-Дело" c 2008 года на рынке строительства в Дмитрове
Звоните 9:00 до 18:00 8 (915) 055-33-61
Бренд "Дмитров-Дело" c 2008 года на рынке строительства в Дмитрове

Истра

Стоимость проекта от:
94 050 ₽
БЕСПЛАТНО! ПРИ ЗАКАЗЕ СТРОИТЕЛЬСТВА
Стоимость строительства от:
14 603 760 ₽
Артикул ART-20328
Дата 26.12.2025
Архитектурный стиль Классический
Количество надземных этажей 2
Круглогодичное проживание Да
Площадь дома 209 м2
Санузлы 3
Спальни 5

Описание

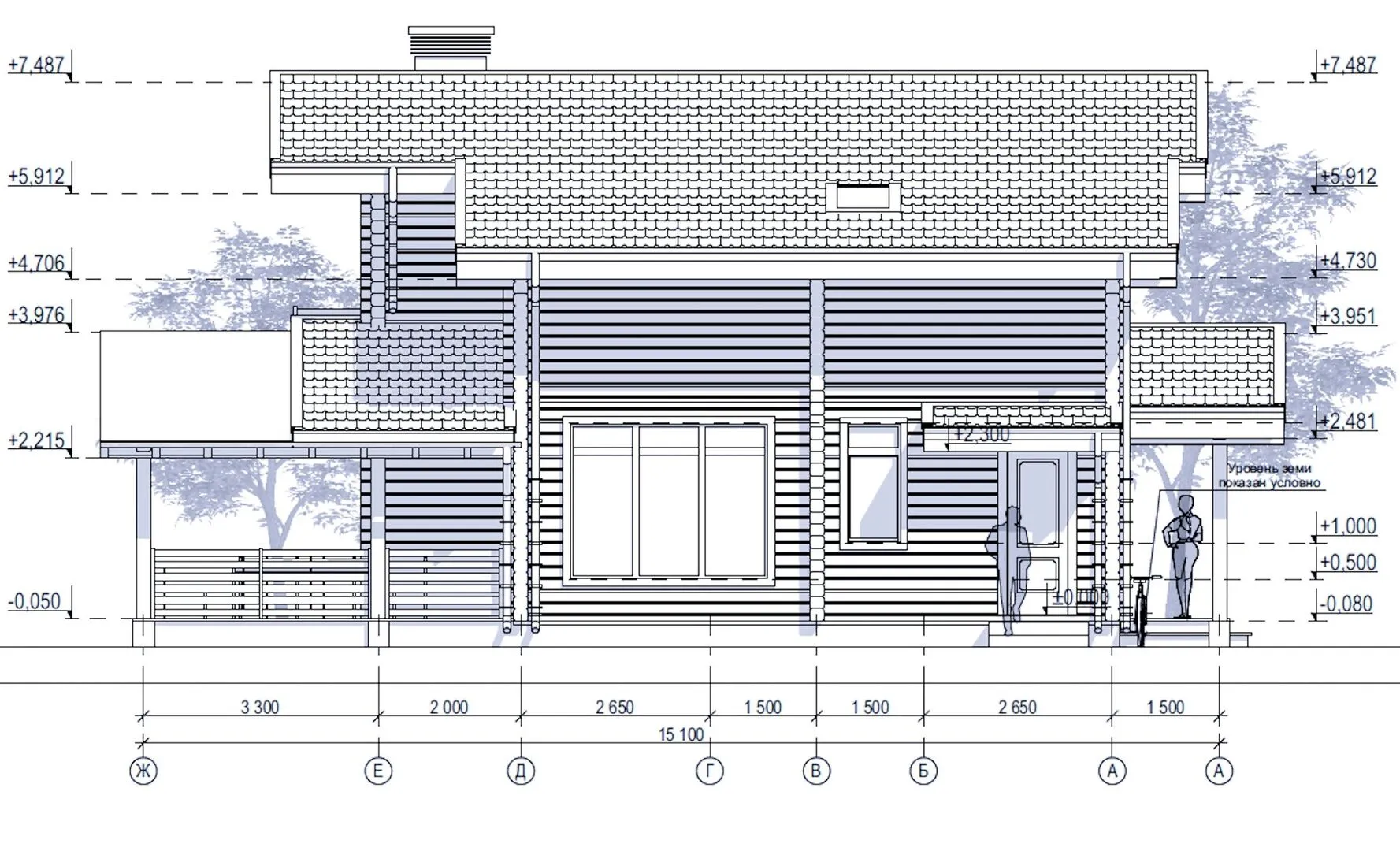
Прекрасно очаровательный двухэтажный поместок в классическом стиле создан для тех, кто ценит уют, тепло и гармонию с природой. Его деревянные, клеёные брусы, словно отживший летний лес, создают ощущение безопасности и естественности. От первого взгляда дом раскрывает свои просторы: изящный двухскатный конический крытый фасад, строгая симметрия линий и приглушённые оттенки древесины делают его одним из тех редких, где классика встречается с комфортом современности. Внутри – просторные, светлые комнаты, где каждая деталь продумана до мелочей. На первом этаже расположена уютная гостиная, где можно разжечь камин, а на втором – спальни, где легко погрузиться в мир снов. Особое внимание уделено балкону (или лоджии) и террасы: в любое время года они становятся вашим личным уголком спокойствия, открывая виды на сад или лес. Отсутствие прицепленного гаража и веранд добавляет чистоты и простоты внешнему облику, подчёркивая его естественность. Дом спроектирован с мыслью о круглогодичном проживании: хорошо изолированные стены, качественная система обогрева и вентиляции, а также надёжный двухскатный кровельный профиль гарантируют комфорт даже в самые холодные дни. Это – идеальный выбор для семей, которые хотят жить в гармонии с природой, без лишних забот, но сохраняя дух классической архитектуры.

Характеристики дома

Архитектурный стиль
Автоматизированное регулирование параметров теплоносителя
Нет
Балконы/лоджии
1
Чердачное помещение
Нет
Датчики протечки воды
Нет
Эксплуатируемая или зеленая кровля
Нет
Электроснабжение
Не предусмотрено
Газоснабжение
Не предусмотрено
Изоляция воздушного шума
Нет
Камин
Да
Класс энергоэффективности
-
Класс энергосбережения
-
Количество надземных этажей
2
Круглогодичное проживание
Да
Материал кровли
Металлочерепица
Материал перекрытий
Деревянные
Материал внешних стен
Материал внутренних перегородок
Деревянные
Модульное строительство с конструкциями заводского изготовления
Нет
Объем надземной части
-
Основной материал фасадов
Дерево
Отопление
Не предусмотрено
Площадь дома
209 м2
Площадь застройки
136 м2
Подвальное помещение
Нет
Показатель компактности здания
-
Приборы учета тепловой энергии
Нет
Пристроенный гараж/крытая автостоянка
Нет
Противопожарная система
Нет
Санузлы
3
Совмещенная кухня-гостиная
Да
Спальни
5
Терраса
Да
Тип фундамента
Плитный
Тип кровли
Толщина внешних стен
204 мм
Толщина внутренних перегородок
204 мм
Улучшенные шумовые характеристики
Нет
Вентиляция
Естественная
Веранда
Нет
Водоотведение
Не предусмотрено
Водоснабжение
Не предусмотрено
Высота дома
8 м
Высота потолков
3 м

Планировка

Фасад дома

Александр

Закажите выезд инженера

Александр

Выездной инженер
Закажите выезд инженера для точной диагностики и профессиональной консультации по инженерным системам. Специалист приедет в удобное время, проведёт осмотр, рассчитает стоимость работ и подберёт оптимальные решения для вашего дома.


    Похожие проекты

    Ипотека и
    рассрочка
    Нарцисс
    Стоимость от:
    8 151 840
    Проект от: 61 200
    Этажей 2
    Санузлы 2
    Спальни 4
    Смотреть
    Ипотека и
    рассрочка
    S 2-125
    Стоимость от:
    8 972 160
    Проект от: 55 800
    Этажей 2
    Санузлы 2
    Спальни 4
    Смотреть
    Ипотека и
    рассрочка
    Одноэтажный дом с крыльцом и терассой БРАИТ-5
    Стоимость от:
    8 992 060
    Проект от: 50 850
    Этажей 1
    Санузлы 1
    Спальни 2
    Смотреть
    Ипотека и
    рассрочка
    Одноэтажный дом Fixplans — 0989
    Стоимость от:
    275 880
    Проект от: 51 300
    Этажей 1
    Санузлы 2
    Спальни 2
    Смотреть
    Ипотека и
    рассрочка
    СТРЕМГЛАВ РЕНУАР
    Стоимость от:
    10 617 360
    Проект от: 73 800
    Этажей 2
    Санузлы 2
    Спальни 3
    Смотреть
    Ипотека и
    рассрочка
    Одноэтажный дом FIXPLANS — 1862
    Стоимость от:
    8 589 020
    Проект от: 49 950
    Этажей 1
    Санузлы 2
    Спальни 3
    Смотреть

    Как узнать стоимость дома

    back
    Оставляете заявку
    Вы заполняете форму на сайте или звоните нам. Менеджер Лайвкрафт связывается с вами для уточнения деталей: тип дома, площадь, материалы, участок строительства.
    back
    Консультация и подбор решения
    Наш специалист помогает выбрать оптимальный тип дома и конструкцию с учётом бюджета, сроков и целей — будь то дом для постоянного проживания или дача.
    back
    Расчёт предварительной стоимости
    Инженер делает первичный расчёт стоимости строительства по вашим параметрам: фундамент, коробка, кровля, отделка. Вы получаете смету с разбивкой по этапам.
    back
    Корректировка и утверждение сметы
    При необходимости вносим изменения — например, замену материалов или сокращение этапов. После согласования формируется окончательная фиксированная смета.
    back
    Заключение договора и старт работ
    После утверждения сметы заключаем официальный договор с гарантией. Вы получаете прозрачный график и точную стоимость — без скрытых расходов.

    Заказать конусльтацию по:Истра

    Фото 1 Истра


      Наши
      контакты

      Дмитров
      Опорный проезд 28Б
      (индустриальный парк Ниагара)
      9:00 до 18:00

      Корзина