4.9
Рейтинг на основании 120 отзывов
Дмитров
Опорный проезд 28Б
(индустриальный парк Ниагара)
Бренд "Дмитров-Дело" c 2008 года на рынке строительства в Дмитрове
Звоните 9:00 до 18:00 8 (915) 055-33-61
Бренд "Дмитров-Дело" c 2008 года на рынке строительства в Дмитрове

ИЖД площадью 72 кв.м.

Стоимость проекта от:
32 400 ₽
БЕСПЛАТНО! ПРИ ЗАКАЗЕ СТРОИТЕЛЬСТВА
Стоимость строительства от:
5 735 840 ₽
Артикул ART-4201
Дата 26.12.2025
Архитектурный стиль Классический
Количество надземных этажей 1
Круглогодичное проживание Да
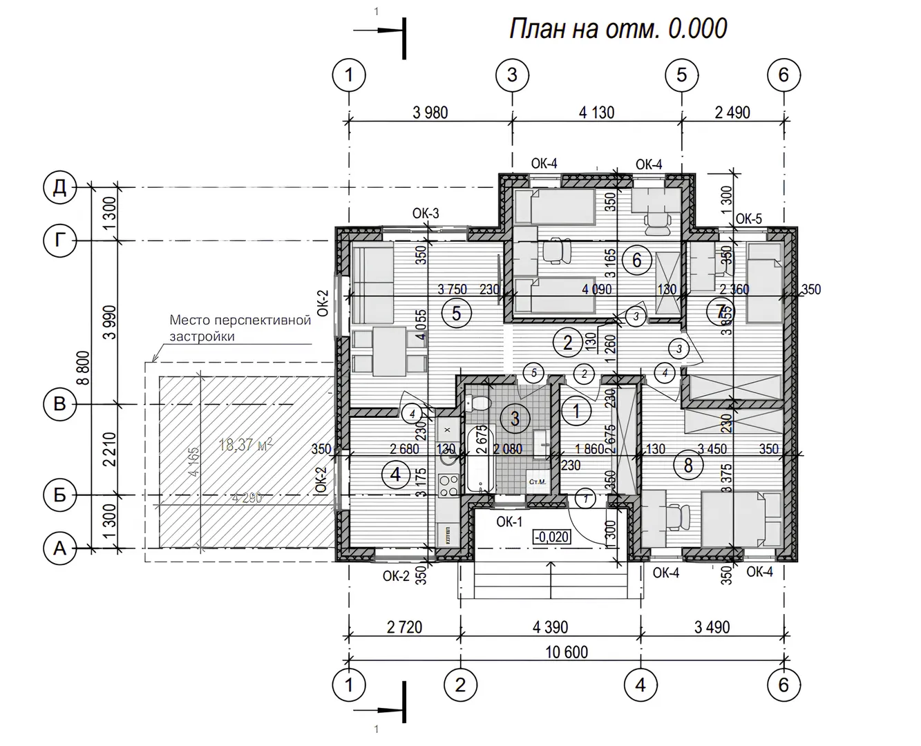
Площадь дома 72 м2
Санузлы 1
Спальни 3

Описание

Живите в ую́тном доме площадью 72 м², где каждая деталь подчеркивает классический характер архитектуры. На одном надземном этаже уютно расположились просторные гостиные, светло­васные спальни и функциональная кухня, которые обеспечивают комфорт круглый год. Высокие окна пропускают свет, а с потолка ниспадающий скат создаёт ощущение простора и гармонии. Дом обрамлен из керамзитобетонных блоков, что гарантирует теплоизоляцию и долговечность наружных стен. Вместе с этим в гостеприимной внутренней веранде можно провести вечера в компании друзей или наслаждаться ароматным кофе, наблюдая за жизнью в саду. Отсутствие перегородов придает дому открытость, а чердак служит дополнительным пространством для хранения или уютной домашней мастерской. Быть в этом доме — это значит ценить качество, эстетику и практичность: круглогодичный уют, простая эксплуатация и возможность адаптировать пространство под ваши нужды, не ограничиваясь лишними гаражами или террасами. Приглашает к жизни, где каждый момент наполнен тёплой атмосферой и вниманием к деталям.

Характеристики дома

Архитектурный стиль
Автоматизированное регулирование параметров теплоносителя
-
Балконы/лоджии
Отсутствуют
Чердачное помещение
Да
Датчики протечки воды
-
Эксплуатируемая или зеленая кровля
-
Электроснабжение
Центральное
Газоснабжение
Центральное
Изоляция воздушного шума
-
Камин
Нет
Класс энергоэффективности
-
Класс энергосбережения
-
Количество надземных этажей
1
Круглогодичное проживание
Да
Материал кровли
Металлочерепица
Материал перекрытий
Деревянные
Материал внешних стен
Материал внутренних перегородок
Блочные
Модульное строительство с конструкциями заводского изготовления
Нет
Объем надземной части
350 м3
Основной материал фасадов
Штукатурка
Отопление
Индивидуальное
Площадь дома
72 м2
Площадь застройки
78 м2
Подвальное помещение
Нет
Показатель компактности здания
-
Приборы учета тепловой энергии
-
Пристроенный гараж/крытая автостоянка
Нет
Противопожарная система
Да
Санузлы
1
Совмещенная кухня-гостиная
Нет
Спальни
3
Терраса
Нет
Тип фундамента
Ленточный
Тип кровли
Толщина внешних стен
300 мм
Толщина внутренних перегородок
120 мм
Улучшенные шумовые характеристики
-
Вентиляция
Естественная
Веранда
Да
Водоотведение
2 варианта
Водоснабжение
Центральное
Высота дома
5.8 м
Высота потолков
2.95 м

Планировка

Фасад дома

Александр

Закажите выезд инженера

Александр

Выездной инженер
Закажите выезд инженера для точной диагностики и профессиональной консультации по инженерным системам. Специалист приедет в удобное время, проведёт осмотр, рассчитает стоимость работ и подберёт оптимальные решения для вашего дома.


    Похожие проекты

    Ипотека и
    рассрочка
    Светлый
    Стоимость от:
    6 450 620
    Проект от: 36 450
    Этажей 1
    Санузлы 1
    Спальни 2
    Смотреть
    Ипотека и
    рассрочка
    Загородный дом «Светлогорск 115»
    Стоимость от:
    6 920 760
    Проект от: 44 100
    Этажей 1
    Санузлы 2
    Спальни 3
    Смотреть
    Ипотека и
    рассрочка
    Аристократ
    Стоимость от:
    11 572 800
    Проект от: 72 000
    Этажей 2
    Санузлы 5
    Спальни 6
    Смотреть
    Ипотека и
    рассрочка
    Проект А 31
    Стоимость от:
    9 958 320
    Проект от: 59 850
    Этажей 2
    Санузлы 2
    Спальни 3
    Смотреть
    Ипотека и
    рассрочка
    Загородный дом «Гармония»
    Стоимость от:
    8 151 840
    Проект от: 61 200
    Этажей 2
    Санузлы 2
    Спальни 3
    Смотреть
    Ипотека и
    рассрочка
    Проект загородного дома NHD-174
    Стоимость от:
    5 864 760
    Проект от: 35 100
    Этажей 1
    Санузлы 1
    Спальни 3
    Смотреть

    Как узнать стоимость дома

    back
    Оставляете заявку
    Вы заполняете форму на сайте или звоните нам. Менеджер Лайвкрафт связывается с вами для уточнения деталей: тип дома, площадь, материалы, участок строительства.
    back
    Консультация и подбор решения
    Наш специалист помогает выбрать оптимальный тип дома и конструкцию с учётом бюджета, сроков и целей — будь то дом для постоянного проживания или дача.
    back
    Расчёт предварительной стоимости
    Инженер делает первичный расчёт стоимости строительства по вашим параметрам: фундамент, коробка, кровля, отделка. Вы получаете смету с разбивкой по этапам.
    back
    Корректировка и утверждение сметы
    При необходимости вносим изменения — например, замену материалов или сокращение этапов. После согласования формируется окончательная фиксированная смета.
    back
    Заключение договора и старт работ
    После утверждения сметы заключаем официальный договор с гарантией. Вы получаете прозрачный график и точную стоимость — без скрытых расходов.

    Заказать конусльтацию по:ИЖД площадью 72 кв.м.

    Фото 1 ИЖД площадью 72 кв.м.


      Наши
      контакты

      Дмитров
      Опорный проезд 28Б
      (индустриальный парк Ниагара)
      9:00 до 18:00

      Корзина