4.9
Рейтинг на основании 120 отзывов
Дмитров
Опорный проезд 28Б
(индустриальный парк Ниагара)
Бренд "Дмитров-Дело" c 2008 года на рынке строительства в Дмитрове
Звоните 9:00 до 18:00 8 (915) 055-33-61
Бренд "Дмитров-Дело" c 2008 года на рынке строительства в Дмитрове

ИЖС ЭП-Ч6-2024

Стоимость проекта от:
57 600 ₽
БЕСПЛАТНО! ПРИ ЗАКАЗЕ СТРОИТЕЛЬСТВА
Стоимость строительства от:
7 420 160 ₽
Артикул ART-14356
Дата 25.12.2025
Архитектурный стиль Классический
Количество надземных этажей 1
Круглогодичное проживание Да
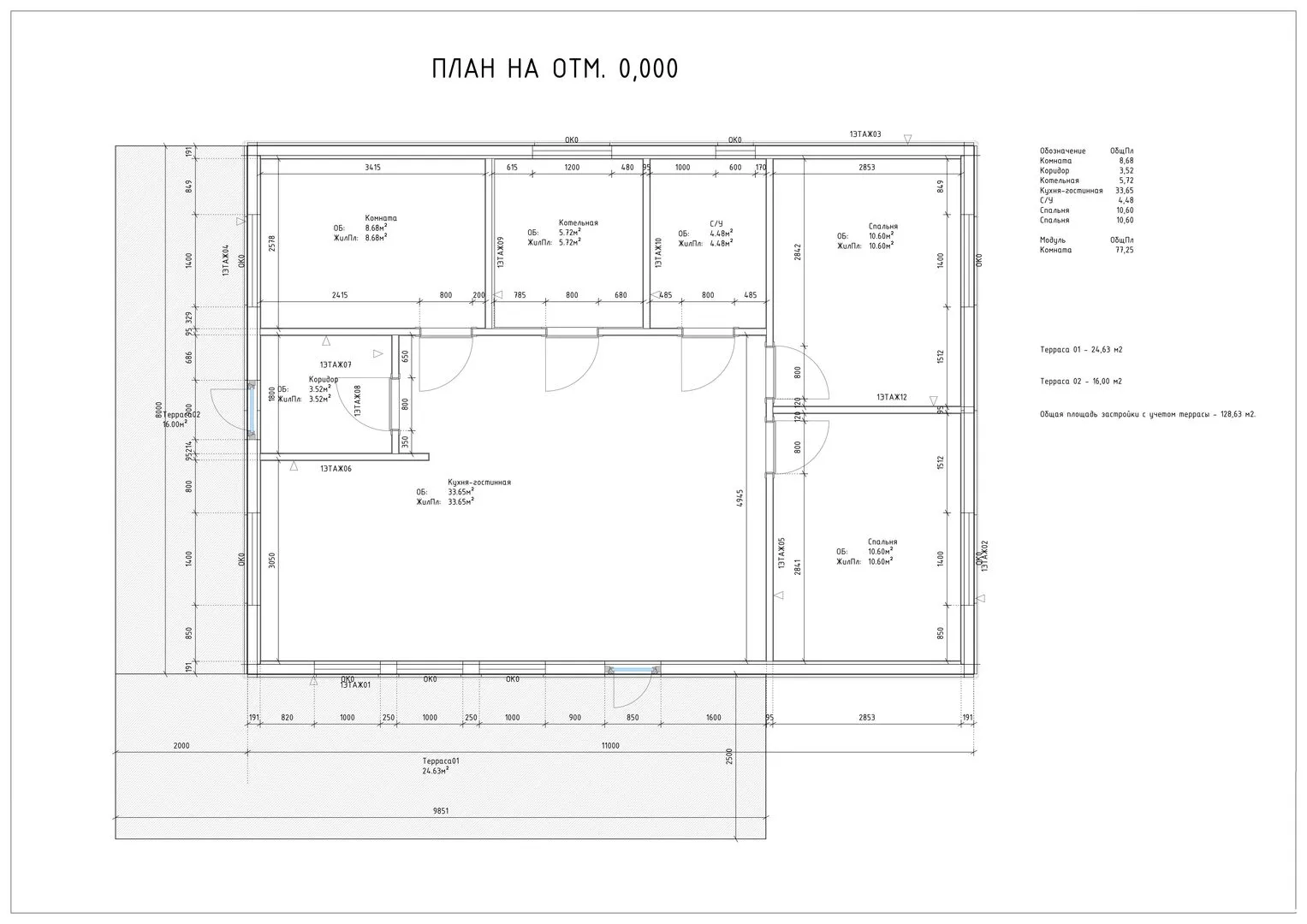
Площадь дома 128 м2
Санузлы 1
Спальни 3

Описание

Добро пожаловать в уютный уголок современного дома, где традиционная элегантность встречается с практичностью. Классический архитектурный стиль, выполненный в деревянном каркасном облике, излучает тепло и гостеприимство. Стены, окрашенные в мягкие, природные оттенки, пропитаны качественными материалами, которые сохраняют энергоэффективность и комфорт в любую пору года. Простая, но изысканная двухскатная крыша подчёркивает строгость линий, а широкая терраса приглашает к весёлым вечерам под звёздами и к неспешным завтракам с видом на ухоженный сад. Внутри вас ждёт уютная и функциональная планировка всего с одного надземного этажа. Просторные комнаты с высокими потолками создают ощущение свободы и легкости, а классический интерьер легко адаптируется под любые дизайнерские решения – от уюта минимализма до роскошного декора. Благодаря использованию только высококачественных материалов, каждая деталь обретает особый характер, отражая вашу индивидуальность. Здесь вы можете наслаждаться теплом семейных вечеров и ощущать, что ваш дом – это надёжный и надёжный друг, который всегда готов к новым приключениям.

Характеристики дома

Архитектурный стиль
Автоматизированное регулирование параметров теплоносителя
Да
Балконы/лоджии
Отсутствуют
Чердачное помещение
Нет
Датчики протечки воды
Нет
Эксплуатируемая или зеленая кровля
Нет
Электроснабжение
Центральное
Газоснабжение
Центральное
Изоляция воздушного шума
Да
Камин
Нет
Класс энергоэффективности
B
Класс энергосбережения
A
Количество надземных этажей
1
Круглогодичное проживание
Да
Материал кровли
Металлочерепица
Материал перекрытий
Деревянные
Материал внешних стен
Материал внутренних перегородок
Деревянные
Модульное строительство с конструкциями заводского изготовления
Нет
Объем надземной части
264 м3
Основной материал фасадов
Дерево
Отопление
Индивидуальное
Площадь дома
128 м2
Площадь застройки
128 м2
Подвальное помещение
Нет
Показатель компактности здания
0.82
Приборы учета тепловой энергии
Да
Пристроенный гараж/крытая автостоянка
Нет
Противопожарная система
Нет
Санузлы
1
Совмещенная кухня-гостиная
Да
Спальни
3
Терраса
Да
Тип фундамента
Свайный
Тип кровли
Толщина внешних стен
200 мм
Толщина внутренних перегородок
120 мм
Улучшенные шумовые характеристики
Да
Вентиляция
2 варианта
Веранда
Нет
Водоотведение
Локальные очистные сооружения
Водоснабжение
Индивидуальное
Высота дома
5.26 м
Высота потолков
3 м

Планировка

Фасад дома

Александр

Закажите выезд инженера

Александр

Выездной инженер
Закажите выезд инженера для точной диагностики и профессиональной консультации по инженерным системам. Специалист приедет в удобное время, проведёт осмотр, рассчитает стоимость работ и подберёт оптимальные решения для вашего дома.


    Похожие проекты

    Ипотека и
    рассрочка
    Одноэтажный дом в классическом стиле «Диана»
    Стоимость от:
    8 504 980
    Проект от: 60 300
    Этажей 1
    Санузлы 2
    Спальни 3
    Смотреть
    Ипотека и
    рассрочка
    Одноэтажный дом Акира 83 в.1
    Стоимость от:
    5 861 460
    Проект от: 37 350
    Этажей 1
    Санузлы 1
    Спальни 2
    Смотреть
    Ипотека и
    рассрочка
    МБ-128
    Стоимость от:
    6 057 240
    Проект от: 45 450
    Этажей 2
    Санузлы 1
    Спальни 2
    Смотреть
    Ипотека и
    рассрочка
    Загородный дом АС-228
    Стоимость от:
    7 175 760
    Проект от: 44 550
    Этажей 2
    Санузлы 2
    Спальни 3
    Смотреть
    Ипотека и
    рассрочка
    «Максимачева»
    Стоимость от:
    8 561 760
    Проект от: 64 350
    Этажей 2
    Санузлы 2
    Спальни 5
    Смотреть
    Ипотека и
    рассрочка
    Афрейм-70
    Стоимость от:
    3 945 660
    Проект от: 27 450
    Этажей 2
    Санузлы 1
    Спальни 1
    Смотреть

    Как узнать стоимость дома

    back
    Оставляете заявку
    Вы заполняете форму на сайте или звоните нам. Менеджер Лайвкрафт связывается с вами для уточнения деталей: тип дома, площадь, материалы, участок строительства.
    back
    Консультация и подбор решения
    Наш специалист помогает выбрать оптимальный тип дома и конструкцию с учётом бюджета, сроков и целей — будь то дом для постоянного проживания или дача.
    back
    Расчёт предварительной стоимости
    Инженер делает первичный расчёт стоимости строительства по вашим параметрам: фундамент, коробка, кровля, отделка. Вы получаете смету с разбивкой по этапам.
    back
    Корректировка и утверждение сметы
    При необходимости вносим изменения — например, замену материалов или сокращение этапов. После согласования формируется окончательная фиксированная смета.
    back
    Заключение договора и старт работ
    После утверждения сметы заключаем официальный договор с гарантией. Вы получаете прозрачный график и точную стоимость — без скрытых расходов.

    Заказать конусльтацию по:ИЖС ЭП-Ч6-2024

    Фото 1 ИЖС ЭП-Ч6-2024


      Наши
      контакты

      Дмитров
      Опорный проезд 28Б
      (индустриальный парк Ниагара)
      9:00 до 18:00

      Корзина