4.9
Рейтинг на основании 120 отзывов
Дмитров
Опорный проезд 28Б
(индустриальный парк Ниагара)
Бренд "Дмитров-Дело" c 2008 года на рынке строительства в Дмитрове
Звоните 9:00 до 18:00 8 (915) 055-33-61
Бренд "Дмитров-Дело" c 2008 года на рынке строительства в Дмитрове

ИЗУМРУД

Стоимость проекта от:
49 500 ₽
Стоимость строительства от:
7 526 200 ₽
Артикул ART-12615
Дата 25.12.2025
Архитектурный стиль Европейский
Количество надземных этажей 1
Круглогодичное проживание Да
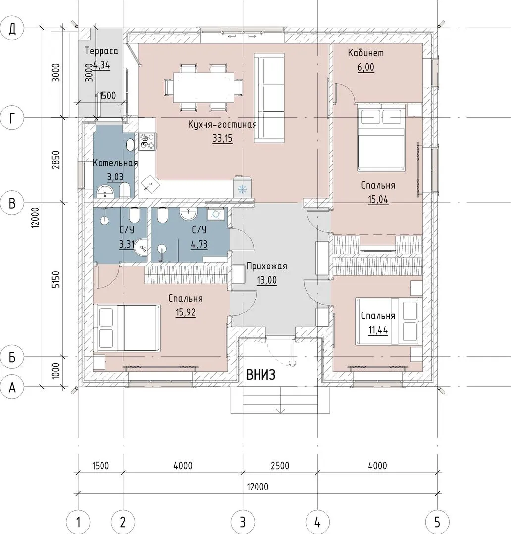
Площадь дома 110 м2
Санузлы 2
Спальни 3

Описание

ИЗУМРУД – это уютный одноэтажный дом, созданный с мыслью о комфорте и гармонии жизни круглый год. Великолепная европейская архитектура, выполненная из прочных газобетонных блоков, обеспечивает тепло и шумоизоляцию, создавая ощущение спокойствия даже в самые холодные и жаркие дни. Просторные внутренние помещения открывают перед жильцами панорамные видовые зоны, а беззвучный, аккуратный фасад добавляет шарма в любой окружении – в парке, на берегу, у дороги. Отсутствие балконов и веранд не умоляет привлекательности! На каждом уровне предусмотрен собственный выход на свежий воздух – удобная терраса, где можно устроить маленький пикник или просто наслаждаться рассветом. Чердачное помещение превратит дом в ещё один уютный уголок: это может стать творческим мастерской, уютной гостиной или тихим уголком для чтения. Четырехскатная, вальмовая крыша делает внешний вид дома лаконичным и элегантным, а при этом гарантирует прочность и долговечность конструкции. ИЗУМРУД — это дом, где каждая деталь продумана: от изнурительного года жизни до светлых уютных уголков, где можно почувствовать себя дома. Если вы ищете место, где гармония с природой сочетается с комфортом современности, этот одноэтажный шедевр станет идеальным выбором. Он приглашает жить в спокойствии, наслаждаясь простотой, уютом и красивыми, неприкрытыми ветрами европейских стилей.

Характеристики дома

Архитектурный стиль
Европейский
Автоматизированное регулирование параметров теплоносителя
Да
Балконы/лоджии
Отсутствуют
Чердачное помещение
Да
Датчики протечки воды
Да
Эксплуатируемая или зеленая кровля
Нет
Электроснабжение
Центральное
Газоснабжение
Центральное
Изоляция воздушного шума
Да
Камин
Нет
Класс энергоэффективности
A
Класс энергосбережения
A+
Количество надземных этажей
1
Круглогодичное проживание
Да
Материал кровли
Металлические листовые гофрированные профили
Материал перекрытий
Деревянные
Материал внешних стен
Газобетонные блоки
Материал внутренних перегородок
Блочные
Модульное строительство с конструкциями заводского изготовления
Нет
Объем надземной части
590 м3
Основной материал фасадов
Фасадная плитка
Отопление
Индивидуальное
Площадь дома
110 м2
Площадь застройки
144 м2
Подвальное помещение
Нет
Показатель компактности здания
1
Приборы учета тепловой энергии
Да
Пристроенный гараж/крытая автостоянка
Нет
Противопожарная система
Нет
Санузлы
2
Совмещенная кухня-гостиная
Да
Спальни
3
Терраса
Да
Тип фундамента
Плитный
Тип кровли
Четырехскатная (вальмовая)
Толщина внешних стен
300 мм
Толщина внутренних перегородок
200 мм
Улучшенные шумовые характеристики
Да
Вентиляция
3 варианта
Веранда
Нет
Водоотведение
2 варианта
Водоснабжение
2 варианта
Высота дома
6.5 м
Высота потолков
3 м

Планировка

Фасад дома

Александр

Закажите выезд инженера

Александр

Выездной инженер
Закажите выезд инженера для точной диагностики и профессиональной консультации по инженерным системам. Специалист приедет в удобное время, проведёт осмотр, рассчитает стоимость работ и подберёт оптимальные решения для вашего дома.


    Похожие проекты

    Ипотека и
    рассрочка
    Одноэтажный дом № 4 (150 м2)
    Стоимость от:
    10 898 140
    Проект от: 61 650
    Этажей 1
    Санузлы 1
    Спальни 3
    Смотреть
    Ипотека и
    рассрочка
    Серия «КЛАССИКА» КД-5
    Стоимость от:
    9 020 160
    Проект от: 64 800
    Этажей 2
    Санузлы 2
    Спальни 3
    Смотреть
    Ипотека и
    рассрочка
    Одноэтажный дом 85 м2
    Стоимость от:
    6 768 300
    Проект от: 38 250
    Этажей 1
    Санузлы 1
    Спальни 3
    Смотреть
    Ипотека и
    рассрочка
    Кирпичный дом 124 м² (Вознесение)
    Стоимость от:
    8 972 160
    Проект от: 55 800
    Этажей 2
    Санузлы 2
    Спальни 4
    Смотреть
    Ипотека и
    рассрочка
    Одноэтажный Family 99
    Стоимость от:
    8 332 720
    Проект от: 61 200
    Этажей 1
    Санузлы 2
    Спальни 3
    Смотреть
    Ипотека и
    рассрочка
    Одноэтажный дом Олики
    Стоимость от:
    8 615 640
    Проект от: 54 900
    Этажей 1
    Санузлы 2
    Спальни 3
    Смотреть

    Как узнать стоимость дома

    back
    Оставляете заявку
    Вы заполняете форму на сайте или звоните нам. Менеджер Лайвкрафт связывается с вами для уточнения деталей: тип дома, площадь, материалы, участок строительства.
    back
    Консультация и подбор решения
    Наш специалист помогает выбрать оптимальный тип дома и конструкцию с учётом бюджета, сроков и целей — будь то дом для постоянного проживания или дача.
    back
    Расчёт предварительной стоимости
    Инженер делает первичный расчёт стоимости строительства по вашим параметрам: фундамент, коробка, кровля, отделка. Вы получаете смету с разбивкой по этапам.
    back
    Корректировка и утверждение сметы
    При необходимости вносим изменения — например, замену материалов или сокращение этапов. После согласования формируется окончательная фиксированная смета.
    back
    Заключение договора и старт работ
    После утверждения сметы заключаем официальный договор с гарантией. Вы получаете прозрачный график и точную стоимость — без скрытых расходов.

    Заказать конусльтацию по:ИЗУМРУД

    Фото 1 ИЗУМРУД


      Наши
      контакты

      Дмитров
      Опорный проезд 28Б
      (индустриальный парк Ниагара)
      9:00 до 18:00