4.9
Рейтинг на основании 120 отзывов
Дмитров
Опорный проезд 28Б
(индустриальный парк Ниагара)
Бренд "Дмитров-Дело" c 2008 года на рынке строительства в Дмитрове
Звоните 9:00 до 18:00 8 (915) 055-33-61
Бренд "Дмитров-Дело" c 2008 года на рынке строительства в Дмитрове

K 1-70-1

Стоимость проекта от:
31 500 ₽
БЕСПЛАТНО! ПРИ ЗАКАЗЕ СТРОИТЕЛЬСТВА
Стоимость строительства от:
5 264 600 ₽
Артикул ART-11938
Дата 25.12.2025
Архитектурный стиль Европейский
Количество надземных этажей 1
Круглогодичное проживание Да
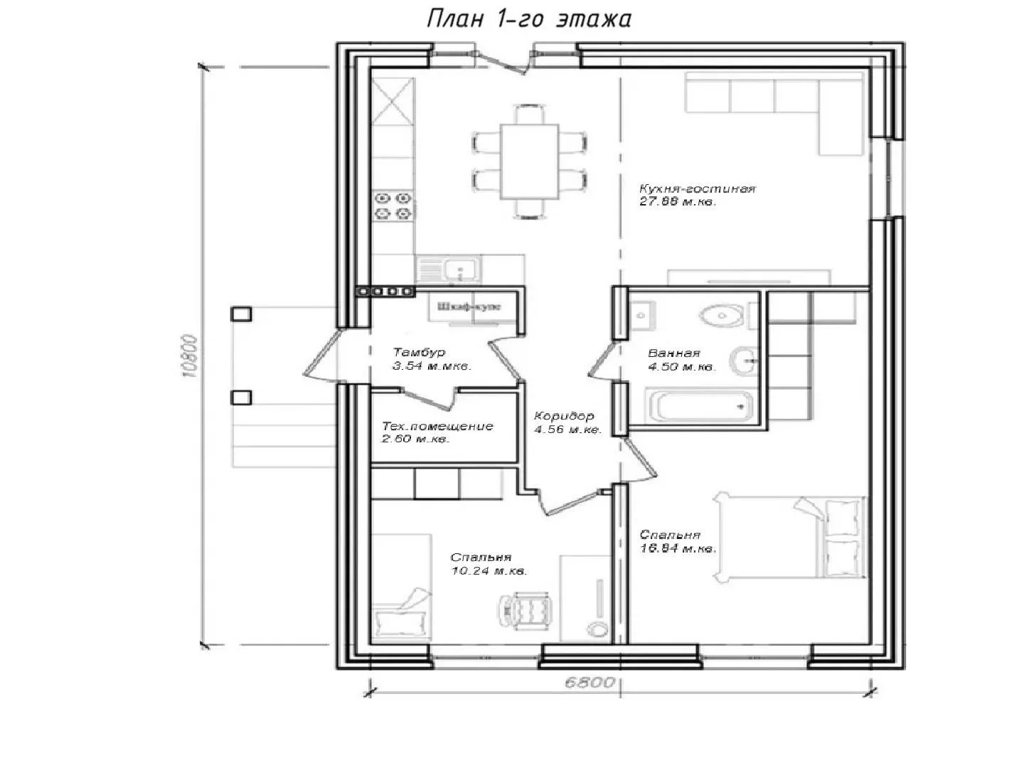
Площадь дома 70 м2
Санузлы 1
Спальни 2

Описание

Добро пожаловать в уголок европейского уюта, где каждый элемент продуман до мельчайших деталей. Дом с планировкой **K 1‑70‑1** представляет собой современное сочетание простоты и элегантности: его единственный надземный этаж открывается просторными комнатами с обильным естественным светом. Круглогодняя комфортность достигается благодаря плотной теплоизоляции и качественным материалам: внешние стены выполнены из керамзитобетонных блоков, которые подчеркивают устойчивость и долговечность строения, а при этом придают дому приятный, светлый внешний вид. Стиль дома – чистый европейский, где линии просты, а атмосфера воздушна. Без балконов и террас, но отворяемые окна создают иллюзию открытого пространства, а двускатная крыша добавляет характер и защищает от непогоды. Внутреннее пространство легко адаптируемо под любые нужды: от семейного уютного дома до стиля «гурман-кухня» с открытым планом. При этом архитектурная гармония достигается даже без прицепной гаражей и веранд – благодаря вниманию к деталям и сбалансированному дизайну. Ваша новая резиденция станет местом, где каждая пора года ощущается по‑разному, но всегда комфортно. Элегантность европейского стиля, прочные строительные решения и продуманная планировка создают дом, который будет радовать и вдохновлять вам и вашим окружению долгие годы.

Характеристики дома

Архитектурный стиль
Автоматизированное регулирование параметров теплоносителя
Нет
Балконы/лоджии
Отсутствуют
Чердачное помещение
Нет
Датчики протечки воды
Нет
Эксплуатируемая или зеленая кровля
Нет
Электроснабжение
Центральное
Газоснабжение
Не предусмотрено
Изоляция воздушного шума
Нет
Камин
Нет
Класс энергоэффективности
-
Класс энергосбережения
-
Количество надземных этажей
1
Круглогодичное проживание
Да
Материал кровли
Металлочерепица
Материал перекрытий
Сборные железобетонные
Материал внешних стен
Материал внутренних перегородок
Блочные
Модульное строительство с конструкциями заводского изготовления
Нет
Объем надземной части
370 м3
Основной материал фасадов
Облицовочный кирпич
Отопление
Индивидуальное
Площадь дома
70 м2
Площадь застройки
94 м2
Подвальное помещение
Нет
Показатель компактности здания
-
Приборы учета тепловой энергии
Нет
Пристроенный гараж/крытая автостоянка
Нет
Противопожарная система
Нет
Санузлы
1
Совмещенная кухня-гостиная
Да
Спальни
2
Терраса
Нет
Тип фундамента
Свайно-ростверковый
Тип кровли
Толщина внешних стен
200 мм
Толщина внутренних перегородок
100 мм
Улучшенные шумовые характеристики
Нет
Вентиляция
Естественная
Веранда
Нет
Водоотведение
Локальные очистные сооружения
Водоснабжение
Центральное
Высота дома
5.7 м
Высота потолков
2.72 м

Планировка

Фасад дома

Александр

Закажите выезд инженера

Александр

Выездной инженер
Закажите выезд инженера для точной диагностики и профессиональной консультации по инженерным системам. Специалист приедет в удобное время, проведёт осмотр, рассчитает стоимость работ и подберёт оптимальные решения для вашего дома.


    Похожие проекты

    Ипотека и
    рассрочка
    Прага-150-90-С
    Стоимость от:
    9 901 760
    Проект от: 57 600
    Этажей 1
    Санузлы 1
    Спальни 2
    Смотреть
    Ипотека и
    рассрочка
    FL 77 – Дом с 3-мя спальнями и 2-мя санузлами
    Стоимость от:
    5 521 230
    Проект от: 44 550
    Этажей 1
    Санузлы 2
    Спальни 3
    Смотреть
    Ипотека и
    рассрочка
    Загородный дом Фахверк
    Стоимость от:
    10 365 960
    Проект от: 62 100
    Этажей 1
    Санузлы 2
    Спальни 3
    Смотреть
    Ипотека и
    рассрочка
    Двухэтажный каркасный дом 7*9 «БС-174»
    Стоимость от:
    7 043 760
    Проект от: 49 950
    Этажей 2
    Санузлы 2
    Спальни 3
    Смотреть
    Ипотека и
    рассрочка
    КСКДОМ №9
    Стоимость от:
    6 190 470
    Проект от: 49 950
    Этажей 1
    Санузлы 2
    Спальни 3
    Смотреть
    Ипотека и
    рассрочка
    Одноэтажный дом ПГ — 3
    Стоимость от:
    6 426 420
    Проект от: 40 950
    Этажей 1
    Санузлы 1
    Спальни 2
    Смотреть

    Как узнать стоимость дома

    back
    Оставляете заявку
    Вы заполняете форму на сайте или звоните нам. Менеджер Лайвкрафт связывается с вами для уточнения деталей: тип дома, площадь, материалы, участок строительства.
    back
    Консультация и подбор решения
    Наш специалист помогает выбрать оптимальный тип дома и конструкцию с учётом бюджета, сроков и целей — будь то дом для постоянного проживания или дача.
    back
    Расчёт предварительной стоимости
    Инженер делает первичный расчёт стоимости строительства по вашим параметрам: фундамент, коробка, кровля, отделка. Вы получаете смету с разбивкой по этапам.
    back
    Корректировка и утверждение сметы
    При необходимости вносим изменения — например, замену материалов или сокращение этапов. После согласования формируется окончательная фиксированная смета.
    back
    Заключение договора и старт работ
    После утверждения сметы заключаем официальный договор с гарантией. Вы получаете прозрачный график и точную стоимость — без скрытых расходов.

    Заказать конусльтацию по:K 1-70-1

    Фото 1 K 1-70-1


      Наши
      контакты

      Дмитров
      Опорный проезд 28Б
      (индустриальный парк Ниагара)
      9:00 до 18:00

      Корзина