4.9
Рейтинг на основании 120 отзывов
Дмитров
Опорный проезд 28Б
(индустриальный парк Ниагара)
Бренд "Дмитров-Дело" c 2008 года на рынке строительства в Дмитрове
Звоните 9:00 до 18:00 8 (915) 055-33-61
Бренд "Дмитров-Дело" c 2008 года на рынке строительства в Дмитрове

K 1-70-2

Стоимость проекта от:
31 500 ₽
БЕСПЛАТНО! ПРИ ЗАКАЗЕ СТРОИТЕЛЬСТВА
Стоимость строительства от:
5 264 600 ₽
Артикул ART-11946
Дата 25.12.2025
Архитектурный стиль Европейский
Количество надземных этажей 1
Круглогодичное проживание Да
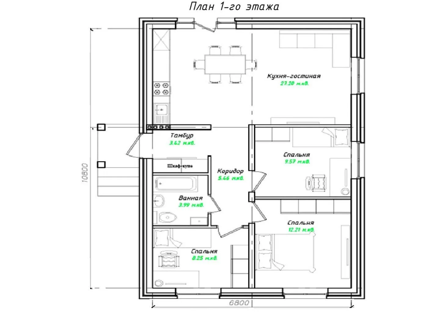
Площадь дома 70 м2
Санузлы 1
Спальни 3

Описание

Пусть во всей его простоте и строгой элегантности вы почувствуете душу настоящего европейского дома. 1‑этажный объект, выполненный в традиционном европейском стиле, дарит атмосферу уютного уголка, где каждая деталь продумана до мелочей. Керамзитобетонные блоки, использованные в облике стен, не только обеспечивают высокую тепло- и звукоизоляцию, но и придают фасаду ровный, благородный вид. Двускатная крыша, сочетающаяся с элегантностью линий, подчёркивает традиционную форму, сохраняя при этом современные стандарты энергосберегательных технологий. Отсутствие балконов, веранд и чердачних помещений делает план дома более открытым и свободным от «гостевых» пространств – всё пространство открытыми, светлыми и функциональными зонами. Дом ориентирован на круглогодичное проживание, поэтому каждый уголок, каждая дверь, каждая стенка способствовали бытному комфорту независимо от погоды. Просторные комнаты с высокими потолками создают ощущение лёгкости, а большие окна пропускают естественный свет, делая внутренний ландшафт ярким и приятным. Пристроенный гараж отсутствует, но это вовсе не является недостатком – это возможность подобрать место для вашего авто по собственному вкусу, а также создать небольшую, приватную парковку в соответствии с вашими потребностями. Такая гибкость в планировании позволяет превратить ваш будущий дом в настоящий оазис уюта, где каждый элемент отвечает именно вашим стремлениям к свободе, простоте и стилю.

Характеристики дома

Архитектурный стиль
Автоматизированное регулирование параметров теплоносителя
Нет
Балконы/лоджии
Отсутствуют
Чердачное помещение
Нет
Датчики протечки воды
Нет
Эксплуатируемая или зеленая кровля
Нет
Электроснабжение
Центральное
Газоснабжение
Не предусмотрено
Изоляция воздушного шума
Нет
Камин
Нет
Класс энергоэффективности
-
Класс энергосбережения
-
Количество надземных этажей
1
Круглогодичное проживание
Да
Материал кровли
Металлочерепица
Материал перекрытий
Сборные железобетонные
Материал внешних стен
Материал внутренних перегородок
Блочные
Модульное строительство с конструкциями заводского изготовления
Нет
Объем надземной части
370 м3
Основной материал фасадов
Облицовочный кирпич
Отопление
Индивидуальное
Площадь дома
70 м2
Площадь застройки
94 м2
Подвальное помещение
Нет
Показатель компактности здания
-
Приборы учета тепловой энергии
Нет
Пристроенный гараж/крытая автостоянка
Нет
Противопожарная система
Нет
Санузлы
1
Совмещенная кухня-гостиная
Да
Спальни
3
Терраса
Нет
Тип фундамента
Свайно-ростверковый
Тип кровли
Толщина внешних стен
200 мм
Толщина внутренних перегородок
100 мм
Улучшенные шумовые характеристики
Нет
Вентиляция
Естественная
Веранда
Нет
Водоотведение
Локальные очистные сооружения
Водоснабжение
Центральное
Высота дома
5.7 м
Высота потолков
2.72 м

Планировка

Фасад дома

Александр

Закажите выезд инженера

Александр

Выездной инженер
Закажите выезд инженера для точной диагностики и профессиональной консультации по инженерным системам. Специалист приедет в удобное время, проведёт осмотр, рассчитает стоимость работ и подберёт оптимальные решения для вашего дома.


    Похожие проекты

    Ипотека и
    рассрочка
    Фёльд
    Стоимость от:
    6 260 760
    Проект от: 48 600
    Этажей 1
    Санузлы 1
    Спальни 2
    Смотреть
    Ипотека и
    рассрочка
    Загородный дом Сибиряк -96
    Стоимость от:
    6 779 520
    Проект от: 43 200
    Этажей 1
    Санузлы 1
    Спальни 3
    Смотреть
    Ипотека и
    рассрочка
    «Неаполь с тамбуром»
    Стоимость от:
    7 542 720
    Проект от: 48 600
    Этажей 2
    Санузлы 2
    Спальни 4
    Смотреть
    Ипотека и
    рассрочка
    Дом с мансардным этажом «Акбет»
    Стоимость от:
    7 340 400
    Проект от: 47 250
    Этажей 2
    Санузлы 2
    Спальни 4
    Смотреть
    Ипотека и
    рассрочка
    Загородный дом. Серия «Вирилит» 1-128
    Стоимость от:
    9 615 760
    Проект от: 57 600
    Этажей 1
    Санузлы 1
    Спальни 3
    Смотреть
    Ипотека и
    рассрочка
    СОВРЕМЕННЫЙ КОМФОРТ
    Стоимость от:
    14 577 200
    Проект от: 90 000
    Этажей 1
    Санузлы 3
    Спальни 3
    Смотреть

    Как узнать стоимость дома

    back
    Оставляете заявку
    Вы заполняете форму на сайте или звоните нам. Менеджер Лайвкрафт связывается с вами для уточнения деталей: тип дома, площадь, материалы, участок строительства.
    back
    Консультация и подбор решения
    Наш специалист помогает выбрать оптимальный тип дома и конструкцию с учётом бюджета, сроков и целей — будь то дом для постоянного проживания или дача.
    back
    Расчёт предварительной стоимости
    Инженер делает первичный расчёт стоимости строительства по вашим параметрам: фундамент, коробка, кровля, отделка. Вы получаете смету с разбивкой по этапам.
    back
    Корректировка и утверждение сметы
    При необходимости вносим изменения — например, замену материалов или сокращение этапов. После согласования формируется окончательная фиксированная смета.
    back
    Заключение договора и старт работ
    После утверждения сметы заключаем официальный договор с гарантией. Вы получаете прозрачный график и точную стоимость — без скрытых расходов.

    Заказать конусльтацию по:K 1-70-2

    Фото 1 K 1-70-2


      Наши
      контакты

      Дмитров
      Опорный проезд 28Б
      (индустриальный парк Ниагара)
      9:00 до 18:00

      Корзина