4.9
Рейтинг на основании 120 отзывов
Дмитров
Опорный проезд 28Б
(индустриальный парк Ниагара)
Бренд "Дмитров-Дело" c 2008 года на рынке строительства в Дмитрове
Звоните 9:00 до 18:00 8 (915) 055-33-61
Бренд "Дмитров-Дело" c 2008 года на рынке строительства в Дмитрове

К 13

Стоимость проекта от:
82 350 ₽
БЕСПЛАТНО! ПРИ ЗАКАЗЕ СТРОИТЕЛЬСТВА
Стоимость строительства от:
13 469 520 ₽
Артикул ART-6403
Дата 26.12.2025
Архитектурный стиль Скандинавский
Количество надземных этажей 2
Круглогодичное проживание Да
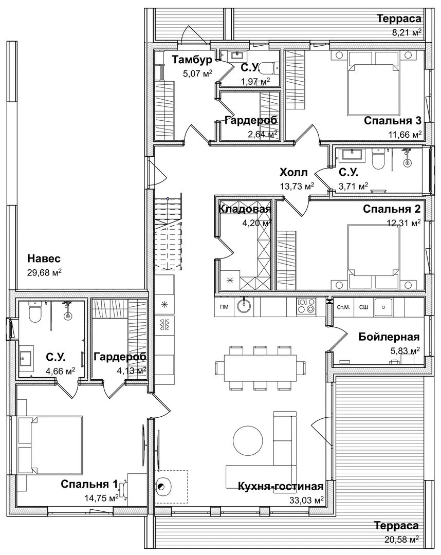
Площадь дома 183 м2
Санузлы 3
Спальни 4

Описание

Утопический уют скандинавского стиля встречается здесь в двухэтажной каркасно‑панельной архитектуре, где каждая линия и каждый уголок говорят о простоте и чистоте. Звёздный северный климат не утомляет – ведь этот дом предназначен для круглогодичного проживания: тепло, свет и комфорт сохраняются даже в самые холодные дни. Внешние стены, возведённые по современной технологии каркасно‑панельного строительства, обеспечивают исключительную энергоэффективность и защиту от сквозняков. Тепло и светопроницаемость усиливает открытое пространство при помощи просторной террасы, где можно наслаждаться рассветами и закатами, а также устроить романтическую обстановку на закате. Для удобства и безопасности предусмотрена пристроенная крытая автостоянка, позволяющая вам оставаться в комфорте даже во время дождя. Отсутствие балконов и веранд не снижает ощущения просторности – наоборот, позволяет вам полностью погрузиться в атмосферу уединённого убежища на фоне живописного пейзажа. Этот дом – идеальное сочетание гармонии с природой и современных удобств, где каждый элемент продуман для вашего комфорта и уюта. Придите и убедитесь сами, как уютно может быть жить в месте, где северное простое вдыхает жизнь в каждую комнату.

Характеристики дома

Архитектурный стиль
Автоматизированное регулирование параметров теплоносителя
Нет
Балконы/лоджии
Отсутствуют
Чердачное помещение
Нет
Датчики протечки воды
Да
Эксплуатируемая или зеленая кровля
Нет
Электроснабжение
2 варианта
Газоснабжение
2 варианта
Изоляция воздушного шума
Нет
Камин
Нет
Класс энергоэффективности
-
Класс энергосбережения
-
Количество надземных этажей
2
Круглогодичное проживание
Да
Материал кровли
Битумная черепица
Материал перекрытий
Деревянные по металлическим балкам
Материал внешних стен
Материал внутренних перегородок
Деревянные
Модульное строительство с конструкциями заводского изготовления
Нет
Объем надземной части
850 м3
Основной материал фасадов
Дерево
Отопление
Индивидуальное
Площадь дома
183 м2
Площадь застройки
185 м2
Подвальное помещение
Нет
Показатель компактности здания
-
Приборы учета тепловой энергии
Нет
Пристроенный гараж/крытая автостоянка
Да
Противопожарная система
Нет
Санузлы
3
Совмещенная кухня-гостиная
Да
Спальни
4
Терраса
Да
Тип фундамента
Ленточный
Тип кровли
Толщина внешних стен
350 мм
Толщина внутренних перегородок
300 мм
Улучшенные шумовые характеристики
Нет
Вентиляция
Рекуперация
Веранда
Нет
Водоотведение
Локальные очистные сооружения
Водоснабжение
2 варианта
Высота дома
5.6 м
Высота потолков
2.6 м

Планировка

Фасад дома

Александр

Закажите выезд инженера

Александр

Выездной инженер
Закажите выезд инженера для точной диагностики и профессиональной консультации по инженерным системам. Специалист приедет в удобное время, проведёт осмотр, рассчитает стоимость работ и подберёт оптимальные решения для вашего дома.


    Похожие проекты

    Ипотека и
    рассрочка
    Скандинавский с террасой 17-23КД.
    Стоимость от:
    5 775 770
    Проект от: 40 950
    Этажей 1
    Санузлы 2
    Спальни 2
    Смотреть
    Ипотека и
    рассрочка
    Одноэтажный деревянный дом «Эллин»
    Стоимость от:
    10 331 420
    Проект от: 67 950
    Этажей 1
    Санузлы 1
    Спальни 2
    Смотреть
    Ипотека и
    рассрочка
    Барнхаус 61 кв м
    Стоимость от:
    3 401 970
    Проект от: 27 450
    Этажей 1
    Санузлы 1
    Спальни 2
    Смотреть
    Ипотека и
    рассрочка
    Cветлый Яр 115
    Стоимость от:
    7 586 400
    Проект от: 51 750
    Этажей 2
    Санузлы 2
    Спальни 4
    Смотреть
    Ипотека и
    рассрочка
    Жилой одноэтажный дом
    Стоимость от:
    7 838 820
    Проект от: 49 950
    Этажей 1
    Санузлы 2
    Спальни 3
    Смотреть
    Ипотека и
    рассрочка
    Проект загородного дома NHD-113
    Стоимость от:
    9 342 960
    Проект от: 58 050
    Этажей 2
    Санузлы 2
    Спальни 3
    Смотреть

    Как узнать стоимость дома

    back
    Оставляете заявку
    Вы заполняете форму на сайте или звоните нам. Менеджер Лайвкрафт связывается с вами для уточнения деталей: тип дома, площадь, материалы, участок строительства.
    back
    Консультация и подбор решения
    Наш специалист помогает выбрать оптимальный тип дома и конструкцию с учётом бюджета, сроков и целей — будь то дом для постоянного проживания или дача.
    back
    Расчёт предварительной стоимости
    Инженер делает первичный расчёт стоимости строительства по вашим параметрам: фундамент, коробка, кровля, отделка. Вы получаете смету с разбивкой по этапам.
    back
    Корректировка и утверждение сметы
    При необходимости вносим изменения — например, замену материалов или сокращение этапов. После согласования формируется окончательная фиксированная смета.
    back
    Заключение договора и старт работ
    После утверждения сметы заключаем официальный договор с гарантией. Вы получаете прозрачный график и точную стоимость — без скрытых расходов.

    Заказать конусльтацию по:К 13

    Фото 1 К 13


      Наши
      контакты

      Дмитров
      Опорный проезд 28Б
      (индустриальный парк Ниагара)
      9:00 до 18:00

      Корзина