4.9
Рейтинг на основании 120 отзывов
Дмитров
Опорный проезд 28Б
(индустриальный парк Ниагара)
Бренд "Дмитров-Дело" c 2008 года на рынке строительства в Дмитрове
Звоните 9:00 до 18:00 8 (915) 055-33-61
Бренд "Дмитров-Дело" c 2008 года на рынке строительства в Дмитрове

К 2-125

Стоимость проекта от:
55 800 ₽
БЕСПЛАТНО! ПРИ ЗАКАЗЕ СТРОИТЕЛЬСТВА
Стоимость строительства от:
8 972 160 ₽
Артикул ART-11329
Дата 25.12.2025
Архитектурный стиль Европейский
Количество надземных этажей 2
Круглогодичное проживание Да
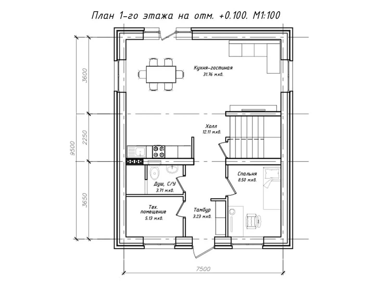
Площадь дома 124 м2
Санузлы 2
Спальни 4

Описание

Добро пожаловать в уютный уголок, где европейская элегантность встречается с современным удобством. Дом «К 2‑125» – это два надземных этажа, спроектированные под круглогодичное проживание. Его строгий, но в то же время теплый образ выполнен в стиле классической европейской архитектуры: ровные линии, симметричные окна и аккуратная черешуя навесов создают ощущение гармонии и спокойствия. Внутреннее пространство открыто и светло – каждый элемент продуман до мелочей, чтобы вы чувствовали себя как дома уже с первых минут. Экологичные и прочные керамзитобетонные блоки – основа фасада, обеспечивающая теплоизоляцию и долговечность. Крыша с двойной скатной конструкцией не только подчеркивает эстетический вид, но и защищает ваш дом от суровых погодных условий, делая каждое утро живописным и приятным. Хотя в этом доме нет балконов, веранд, гаражей и террас – у нас есть пространство, которое наполнено уютом и функциональностью: просторные комнаты, продуманные планировочные решения, и всё необходимое для комфортной жизни вне зависимости от сезона. Выбирая «К 2‑125», вы выбираете не просто место для проживания, а стильно оформленную среду, где каждая деталь работает на ваш комфорт. Здесь вы сможете наслаждаться семейными моментами, отдыхать после трудного дня и строить воспоминания в атмосфере домашнего уюта. Добро пожаловать в ваш новый дом, где простота в дизайне сочетается с высшим уровнем качества и удобства.

Характеристики дома

Архитектурный стиль
Автоматизированное регулирование параметров теплоносителя
Нет
Балконы/лоджии
Отсутствуют
Чердачное помещение
Нет
Датчики протечки воды
Нет
Эксплуатируемая или зеленая кровля
Нет
Электроснабжение
Центральное
Газоснабжение
Не предусмотрено
Изоляция воздушного шума
Нет
Камин
Нет
Класс энергоэффективности
-
Класс энергосбережения
-
Количество надземных этажей
2
Круглогодичное проживание
Да
Материал кровли
Металлочерепица
Материал перекрытий
Сборные железобетонные
Материал внешних стен
Материал внутренних перегородок
Блочные
Модульное строительство с конструкциями заводского изготовления
Нет
Объем надземной части
536 м3
Основной материал фасадов
Облицовочный кирпич
Отопление
Индивидуальное
Площадь дома
124 м2
Площадь застройки
91 м2
Подвальное помещение
Нет
Показатель компактности здания
-
Приборы учета тепловой энергии
Нет
Пристроенный гараж/крытая автостоянка
Нет
Противопожарная система
Нет
Санузлы
2
Совмещенная кухня-гостиная
Да
Спальни
4
Терраса
Нет
Тип фундамента
Свайно-ростверковый
Тип кровли
Толщина внешних стен
300 мм
Толщина внутренних перегородок
100 мм
Улучшенные шумовые характеристики
Нет
Вентиляция
Естественная
Веранда
Нет
Водоотведение
Локальные очистные сооружения
Водоснабжение
Центральное
Высота дома
8.1 м
Высота потолков
2.8 м

Планировка

Фасад дома

Александр

Закажите выезд инженера

Александр

Выездной инженер
Закажите выезд инженера для точной диагностики и профессиональной консультации по инженерным системам. Специалист приедет в удобное время, проведёт осмотр, рассчитает стоимость работ и подберёт оптимальные решения для вашего дома.


    Похожие проекты

    Ипотека и
    рассрочка
    Удобный 01
    Стоимость от:
    4 289 340
    Проект от: 25 650
    Этажей 1
    Санузлы 1
    Спальни 2
    Смотреть
    Ипотека и
    рассрочка
    Классический проект двухэтажного дома 8,0х11,0
    Стоимость от:
    7 432 560
    Проект от: 55 800
    Этажей 2
    Санузлы 1
    Спальни 3
    Смотреть
    Ипотека и
    рассрочка
    Индивидуальный проект. Дом Филипповых
    Стоимость от:
    5 663 100
    Проект от: 38 700
    Этажей 2
    Санузлы 2
    Спальни 3
    Смотреть
    Ипотека и
    рассрочка
    Барн-баня 6*9
    Стоимость от:
    5 210 160
    Проект от: 39 150
    Этажей 2
    Санузлы 1
    Спальни 2
    Смотреть
    Ипотека и
    рассрочка
    Проект 85 м2 три спальни
    Стоимость от:
    6 002 700
    Проект от: 38 250
    Этажей 1
    Санузлы 1
    Спальни 3
    Смотреть
    Ипотека и
    рассрочка
    Одноэтажный дом Сканди М
    Стоимость от:
    4 173 840
    Проект от: 32 400
    Этажей 1
    Санузлы 1
    Спальни 2
    Смотреть

    Как узнать стоимость дома

    back
    Оставляете заявку
    Вы заполняете форму на сайте или звоните нам. Менеджер Лайвкрафт связывается с вами для уточнения деталей: тип дома, площадь, материалы, участок строительства.
    back
    Консультация и подбор решения
    Наш специалист помогает выбрать оптимальный тип дома и конструкцию с учётом бюджета, сроков и целей — будь то дом для постоянного проживания или дача.
    back
    Расчёт предварительной стоимости
    Инженер делает первичный расчёт стоимости строительства по вашим параметрам: фундамент, коробка, кровля, отделка. Вы получаете смету с разбивкой по этапам.
    back
    Корректировка и утверждение сметы
    При необходимости вносим изменения — например, замену материалов или сокращение этапов. После согласования формируется окончательная фиксированная смета.
    back
    Заключение договора и старт работ
    После утверждения сметы заключаем официальный договор с гарантией. Вы получаете прозрачный график и точную стоимость — без скрытых расходов.

    Заказать конусльтацию по:К 2-125

    Фото 1 К 2-125


      Наши
      контакты

      Дмитров
      Опорный проезд 28Б
      (индустриальный парк Ниагара)
      9:00 до 18:00

      Корзина