4.9
Рейтинг на основании 120 отзывов
Дмитров
Опорный проезд 28Б
(индустриальный парк Ниагара)
Бренд "Дмитров-Дело" c 2008 года на рынке строительства в Дмитрове
Звоните 9:00 до 18:00 8 (915) 055-33-61
Бренд "Дмитров-Дело" c 2008 года на рынке строительства в Дмитрове

Калифорния

Стоимость проекта от:
31 950 ₽
БЕСПЛАТНО! ПРИ ЗАКАЗЕ СТРОИТЕЛЬСТВА
Стоимость строительства от:
4 104 155 ₽
Артикул ART-15201
Дата 25.12.2025
Архитектурный стиль Европейский
Количество надземных этажей 1
Круглогодичное проживание Да
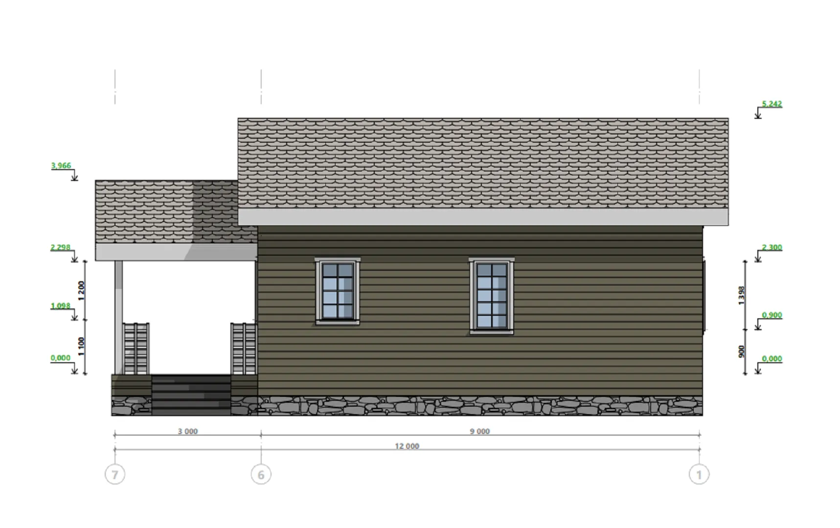
Площадь дома 71 м2
Санузлы 1
Спальни 2

Описание

Наслаждайтесь лёгким дыханием ветра у порога этого очаровательного калифорнийского уголка, где тепло Европейской классики сливается с непринуждённой атмосферой летнего штата. Величественные, открывающиеся деревянные стены, сотканные из прочного каркаса, создают ощущение гармонии и уюта, а комбинированный тип кровли дарует естественную защиту от солнца и дождя, позволяя наслаждаться круглогодичным комфортом. На одном уровне расположены все зоны жизни – гостиная, кухня, спальня – гармонично соединёнными и украшенными уютными световыми акцентами, которые делают каждый уголок этого дома идеальным для семейных встреч и долгих, спокойных вечеров. Терраса, выходящая из открытого пространства, приглашает к бесконечным прогулкам по тёплым калифорнийским вечерам, где можно вздохнуть свежим морским бризом и впитать солнечные лучи в каждое мгновение. Чердачное помещение, скрытое под живописной крышей, превращается в идеальный уголок для творчества, работы или тихой вечеринки, где легко скрывать секреты и мечты. Отсутствие веранд и балконов добавляет дискретности, подчёркивая чистоту линий и чистый стиль, придающий этому дому ощущение простоты и элегантной изысканности. Этот дом – не просто жильё, а полноценный образ жизни. Любой, кто вступит в его стены, почувствует, насколько уютно и спокойно можно быть в одном месте, соединяя европейскую традицию с калифорнийским стилем. Выбирая здесь, вы выбираете идеальное сочетание комфорта, функциональности и эстетики – истинное воплощение современной жизни в открытой, но уютной обстановке.

Характеристики дома

Архитектурный стиль
Автоматизированное регулирование параметров теплоносителя
Нет
Балконы/лоджии
Отсутствуют
Чердачное помещение
Да
Датчики протечки воды
Нет
Эксплуатируемая или зеленая кровля
Нет
Электроснабжение
Центральное
Газоснабжение
Не предусмотрено
Изоляция воздушного шума
Нет
Камин
Нет
Класс энергоэффективности
-
Класс энергосбережения
-
Количество надземных этажей
1
Круглогодичное проживание
Да
Материал кровли
Металлочерепица
Материал перекрытий
Деревянные
Материал внешних стен
Материал внутренних перегородок
Деревянные
Модульное строительство с конструкциями заводского изготовления
Нет
Объем надземной части
499 м3
Основной материал фасадов
Дерево
Отопление
Индивидуальное
Площадь дома
71 м2
Площадь застройки
88 м2
Подвальное помещение
Нет
Показатель компактности здания
-
Приборы учета тепловой энергии
Нет
Пристроенный гараж/крытая автостоянка
Нет
Противопожарная система
Нет
Санузлы
1
Совмещенная кухня-гостиная
Да
Спальни
2
Терраса
Да
Тип фундамента
Свайно-винтовой
Тип кровли
Толщина внешних стен
290 мм
Толщина внутренних перегородок
240 мм
Улучшенные шумовые характеристики
Нет
Вентиляция
Принудительная
Веранда
Нет
Водоотведение
Локальные очистные сооружения
Водоснабжение
Индивидуальное
Высота дома
5.2 м
Высота потолков
2.8 м

Планировка

Фасад дома

Александр

Закажите выезд инженера

Александр

Выездной инженер
Закажите выезд инженера для точной диагностики и профессиональной консультации по инженерным системам. Специалист приедет в удобное время, проведёт осмотр, рассчитает стоимость работ и подберёт оптимальные решения для вашего дома.


    Похожие проекты

    Ипотека и
    рассрочка
    А108
    Стоимость от:
    8 594 960
    Проект от: 48 600
    Этажей 1
    Санузлы 1
    Спальни 3
    Смотреть
    Ипотека и
    рассрочка
    Двухэтажный каркасный дом Лаванда
    Стоимость от:
    8 031 960
    Проект от: 60 300
    Этажей 2
    Санузлы 2
    Спальни 5
    Смотреть
    Ипотека и
    рассрочка
    Уютный №1
    Стоимость от:
    5 974 100
    Проект от: 33 750
    Этажей 1
    Санузлы 1
    Спальни 3
    Смотреть
    Ипотека и
    рассрочка
    К.1.-91
    Стоимость от:
    6 840 020
    Проект от: 40 950
    Этажей 1
    Санузлы 1
    Спальни 3
    Смотреть
    Ипотека и
    рассрочка
    Одноэтажный дом «Анапский»
    Стоимость от:
    4 064 280
    Проект от: 24 300
    Этажей 1
    Санузлы 2
    Спальни 3
    Смотреть
    Ипотека и
    рассрочка
    ЭС-93
    Стоимость от:
    11 374 660
    Проект от: 64 350
    Этажей 1
    Санузлы 2
    Спальни 4
    Смотреть

    Как узнать стоимость дома

    back
    Оставляете заявку
    Вы заполняете форму на сайте или звоните нам. Менеджер Лайвкрафт связывается с вами для уточнения деталей: тип дома, площадь, материалы, участок строительства.
    back
    Консультация и подбор решения
    Наш специалист помогает выбрать оптимальный тип дома и конструкцию с учётом бюджета, сроков и целей — будь то дом для постоянного проживания или дача.
    back
    Расчёт предварительной стоимости
    Инженер делает первичный расчёт стоимости строительства по вашим параметрам: фундамент, коробка, кровля, отделка. Вы получаете смету с разбивкой по этапам.
    back
    Корректировка и утверждение сметы
    При необходимости вносим изменения — например, замену материалов или сокращение этапов. После согласования формируется окончательная фиксированная смета.
    back
    Заключение договора и старт работ
    После утверждения сметы заключаем официальный договор с гарантией. Вы получаете прозрачный график и точную стоимость — без скрытых расходов.

    Заказать конусльтацию по:Калифорния

    Фото 1 Калифорния


      Наши
      контакты

      Дмитров
      Опорный проезд 28Б
      (индустриальный парк Ниагара)
      9:00 до 18:00

      Корзина