4.9
Рейтинг на основании 120 отзывов
Дмитров
Опорный проезд 28Б
(индустриальный парк Ниагара)
Бренд "Дмитров-Дело" c 2008 года на рынке строительства в Дмитрове
Звоните 9:00 до 18:00 8 (915) 055-33-61
Бренд "Дмитров-Дело" c 2008 года на рынке строительства в Дмитрове

Каменный одноэтажный коттедж Тверь

Стоимость проекта от:
150 300 ₽
БЕСПЛАТНО! ПРИ ЗАКАЗЕ СТРОИТЕЛЬСТВА
Стоимость строительства от:
22 852 280 ₽
Артикул ART-2344
Дата 26.12.2025
Архитектурный стиль Хайтек
Количество надземных этажей 1
Круглогодичное проживание Да
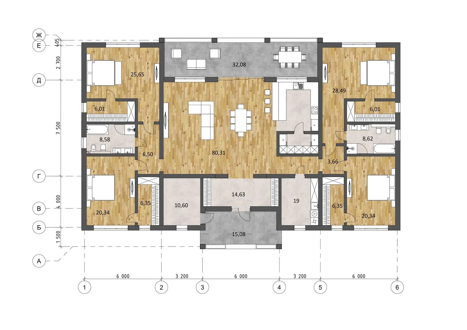
Площадь дома 334 м2
Санузлы 3
Спальни 4

Описание

В сердце Твери, где природа встречает современные стремления к комфорту, вы можете найти настоящий каменный коттедж, спроектированный как шедевр хай‑тек‑архитектуры. Одноэтажный и ориентированный на круглогодичное проживание, он вобрал в себя лаконичность и практичность: от современных газобетонных стен до четырёхскатной, вальмовой крыши, обеспечивающей защиту и тепло. Вечернее солнце, отражающееся в стеклянных фасадах, создаёт ощущение лёгкости и свободы, а веранда, словно открытая площадка, приглашает насладиться прохладой осени или тёплым летним вечерком. Без традиционных балконов и лоджий, этот дом акцентирует внимание на открытых пространствах, где каждый уголок напоминает о гармонии с природой. Вместо гаража или крытой автостоянки предусмотрена продуманная зона организации транспорта, позволяющая сохранить чистую линию внешнего облика. Внутри – просторные, светлые комнаты с просторными проёмами, которые усиливают чувство простора и открытости. Это место, где современный комфорт встречается с уютом, где каждый ваш день может начинаться с чашки кофе на веранде, а закончиться под звёздами на тихой тишине вашего собственного уголка.

Характеристики дома

Архитектурный стиль
Автоматизированное регулирование параметров теплоносителя
-
Балконы/лоджии
Отсутствуют
Чердачное помещение
Нет
Датчики протечки воды
-
Эксплуатируемая или зеленая кровля
-
Электроснабжение
Не предусмотрено
Газоснабжение
Не предусмотрено
Изоляция воздушного шума
-
Камин
Да
Класс энергоэффективности
-
Класс энергосбережения
-
Количество надземных этажей
1
Круглогодичное проживание
Да
Материал кровли
Фальцевая кровля из алюминиевых листов
Материал перекрытий
Монолитные железобетонные
Материал внешних стен
Материал внутренних перегородок
Блочные
Модульное строительство с конструкциями заводского изготовления
Нет
Объем надземной части
1200 м3
Основной материал фасадов
Искусственный камень
Отопление
Не предусмотрено
Площадь дома
334 м2
Площадь застройки
360 м2
Подвальное помещение
Нет
Показатель компактности здания
-
Приборы учета тепловой энергии
-
Пристроенный гараж/крытая автостоянка
Нет
Противопожарная система
Нет
Санузлы
3
Совмещенная кухня-гостиная
Да
Спальни
4
Терраса
Нет
Тип фундамента
Плитный
Толщина внешних стен
375 мм
Толщина внутренних перегородок
200 мм
Улучшенные шумовые характеристики
-
Вентиляция
Естественная
Веранда
Да
Водоотведение
Не предусмотрено
Водоснабжение
Не предусмотрено
Высота дома
5 м
Высота потолков
3 м

Планировка

Фасад дома

Александр

Закажите выезд инженера

Александр

Выездной инженер
Закажите выезд инженера для точной диагностики и профессиональной консультации по инженерным системам. Специалист приедет в удобное время, проведёт осмотр, рассчитает стоимость работ и подберёт оптимальные решения для вашего дома.


    Похожие проекты

    Ипотека и
    рассрочка
    «Индивидуальный жилой дом 24-08-07»
    Стоимость от:
    4 684 570
    Проект от: 33 300
    Этажей 1
    Санузлы 1
    Спальни 2
    Смотреть
    Ипотека и
    рассрочка
    Проект дома Манчестер 83
    Стоимость от:
    6 239 860
    Проект от: 37 350
    Этажей 1
    Санузлы 1
    Спальни 3
    Смотреть
    Ипотека и
    рассрочка
    Двухэтажный дом Д-105
    Стоимость от:
    7 868 400
    Проект от: 47 250
    Этажей 2
    Санузлы 2
    Спальни 4
    Смотреть
    Ипотека и
    рассрочка
    Дом 90 кв. 4 спальни
    Стоимость от:
    6 567 000
    Проект от: 40 500
    Этажей 1
    Санузлы 2
    Спальни 4
    Смотреть
    Ипотека и
    рассрочка
    Авторский проект «Рашмор»
    Стоимость от:
    9 218 880
    Проект от: 59 400
    Этажей 2
    Санузлы 2
    Спальни 2
    Смотреть
    Ипотека и
    рассрочка
    HOUSE170B
    Стоимость от:
    12 005 400
    Проект от: 76 500
    Этажей 1
    Санузлы 2
    Спальни 4
    Смотреть

    Как узнать стоимость дома

    back
    Оставляете заявку
    Вы заполняете форму на сайте или звоните нам. Менеджер Лайвкрафт связывается с вами для уточнения деталей: тип дома, площадь, материалы, участок строительства.
    back
    Консультация и подбор решения
    Наш специалист помогает выбрать оптимальный тип дома и конструкцию с учётом бюджета, сроков и целей — будь то дом для постоянного проживания или дача.
    back
    Расчёт предварительной стоимости
    Инженер делает первичный расчёт стоимости строительства по вашим параметрам: фундамент, коробка, кровля, отделка. Вы получаете смету с разбивкой по этапам.
    back
    Корректировка и утверждение сметы
    При необходимости вносим изменения — например, замену материалов или сокращение этапов. После согласования формируется окончательная фиксированная смета.
    back
    Заключение договора и старт работ
    После утверждения сметы заключаем официальный договор с гарантией. Вы получаете прозрачный график и точную стоимость — без скрытых расходов.

    Заказать конусльтацию по:Каменный одноэтажный коттедж Тверь

    Фото 1 Каменный одноэтажный коттедж Тверь


      Наши
      контакты

      Дмитров
      Опорный проезд 28Б
      (индустриальный парк Ниагара)
      9:00 до 18:00

      Корзина