4.9
Рейтинг на основании 120 отзывов
Дмитров
Опорный проезд 28Б
(индустриальный парк Ниагара)
Бренд "Дмитров-Дело" c 2008 года на рынке строительства в Дмитрове
Звоните 9:00 до 18:00 8 (915) 055-33-61
Бренд "Дмитров-Дело" c 2008 года на рынке строительства в Дмитрове

«Каммертон» проект элегантного двухэтажного дома

Стоимость проекта от:
79 200 ₽
БЕСПЛАТНО! ПРИ ЗАКАЗЕ СТРОИТЕЛЬСТВА
Стоимость строительства от:
12 080 640 ₽
Артикул ART-11140
Дата 25.12.2025
Архитектурный стиль Классический
Количество надземных этажей 2
Круглогодичное проживание Да
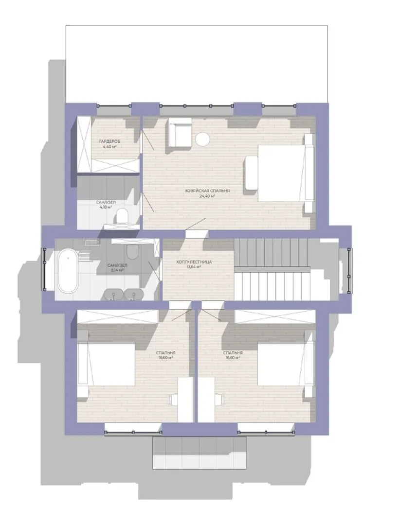
Площадь дома 176 м2
Санузлы 3
Спальни 4

Описание

**Каммертон** – это воплощение истинной классической элегантности в современном двухэтажном доме, созданном для тех, кто ценит комфорт круглый год. Хозяйственная планировка с минималистичным дизайном, объединённая изысканными традициями, позволяет наслаждаться просторными комнатами и световыми потоками. Внутри встречается гармония формы и функциональности: от открыто заграничных дверей до гармонично расставленных окон, обеспечивающих достаточное естественное освещение. Текстурированные газобетонные фасады передают ощущение тепла и прочности, а чётверскатная вальмовая крыша добавляет монументальности и защищает от непогоды. Утренний свет ласкает балконы, превращенные в террасы, где уютно разложить палки ароматного кофе над видом живописного сада. Здесь каждый угол говорит о заботе о комфорте: от надежно встроенных систем отопления до теплоизолированной конструкции, чтобы ваше лето было теплым, а зима – душевно приятной. Выбирая **Каммертон**, вы выбираете стильный, уютный и надежный дом, где каждая деталь, от простых дверных рам до изысканных оконных проемов, продумана до мелочей. Приглашаем вас открыть для себя новый уровень жизни – место, где гармония архитектуры и современного комфорта встречаются, создавая пространство, которое будет не просто вашим домом, а вашим личным убежищем.

Характеристики дома

Архитектурный стиль
Автоматизированное регулирование параметров теплоносителя
Нет
Балконы/лоджии
Отсутствуют
Чердачное помещение
Нет
Датчики протечки воды
Нет
Эксплуатируемая или зеленая кровля
Нет
Электроснабжение
2 варианта
Газоснабжение
2 варианта
Изоляция воздушного шума
Нет
Камин
Нет
Класс энергоэффективности
-
Класс энергосбережения
-
Количество надземных этажей
2
Круглогодичное проживание
Да
Материал кровли
Битумная черепица
Материал перекрытий
Монолитные железобетонные
Материал внешних стен
Материал внутренних перегородок
Пенобетонные
Модульное строительство с конструкциями заводского изготовления
Нет
Объем надземной части
1024 м3
Основной материал фасадов
Штукатурка
Отопление
2 варианта
Площадь дома
176 м2
Площадь застройки
153 м2
Подвальное помещение
Нет
Показатель компактности здания
-
Приборы учета тепловой энергии
Нет
Пристроенный гараж/крытая автостоянка
Нет
Противопожарная система
Нет
Санузлы
3
Совмещенная кухня-гостиная
Да
Спальни
4
Терраса
Да
Тип фундамента
Плитный
Толщина внешних стен
375 мм
Толщина внутренних перегородок
100 мм
Улучшенные шумовые характеристики
Да
Вентиляция
3 варианта
Веранда
Нет
Водоотведение
2 варианта
Водоснабжение
2 варианта
Высота дома
8.59 м
Высота потолков
3.2 м

Планировка

Фасад дома

Александр

Закажите выезд инженера

Александр

Выездной инженер
Закажите выезд инженера для точной диагностики и профессиональной консультации по инженерным системам. Специалист приедет в удобное время, проведёт осмотр, рассчитает стоимость работ и подберёт оптимальные решения для вашего дома.


    Похожие проекты

    Ипотека и
    рассрочка
    Хайтек 115 одноэтажный дом
    Стоимость от:
    7 868 300
    Проект от: 51 750
    Этажей 1
    Санузлы 2
    Спальни 3
    Смотреть
    Ипотека и
    рассрочка
    Каркасный дом «Инсбрук»
    Стоимость от:
    5 275 270
    Проект от: 40 950
    Этажей 1
    Санузлы 2
    Спальни 2
    Смотреть
    Ипотека и
    рассрочка
    Иня
    Стоимость от:
    5 367 120
    Проект от: 34 200
    Этажей 1
    Санузлы 2
    Спальни 2
    Смотреть
    Ипотека и
    рассрочка
    СК 2-х этажный 154м2
    Стоимость от:
    9 956 100
    Проект от: 69 300
    Этажей 2
    Санузлы 2
    Спальни 3
    Смотреть
    Ипотека и
    рассрочка
    D 306
    Стоимость от:
    12 089 440
    Проект от: 68 400
    Этажей 1
    Санузлы 2
    Спальни 4
    Смотреть
    Ипотека и
    рассрочка
    Одноэтажный дом в стиле современного минимализма S3-168 (Zx111)
    Стоимость от:
    14 766 620
    Проект от: 85 950
    Этажей 1
    Санузлы 3
    Спальни 3
    Смотреть

    Как узнать стоимость дома

    back
    Оставляете заявку
    Вы заполняете форму на сайте или звоните нам. Менеджер Лайвкрафт связывается с вами для уточнения деталей: тип дома, площадь, материалы, участок строительства.
    back
    Консультация и подбор решения
    Наш специалист помогает выбрать оптимальный тип дома и конструкцию с учётом бюджета, сроков и целей — будь то дом для постоянного проживания или дача.
    back
    Расчёт предварительной стоимости
    Инженер делает первичный расчёт стоимости строительства по вашим параметрам: фундамент, коробка, кровля, отделка. Вы получаете смету с разбивкой по этапам.
    back
    Корректировка и утверждение сметы
    При необходимости вносим изменения — например, замену материалов или сокращение этапов. После согласования формируется окончательная фиксированная смета.
    back
    Заключение договора и старт работ
    После утверждения сметы заключаем официальный договор с гарантией. Вы получаете прозрачный график и точную стоимость — без скрытых расходов.

    Заказать конусльтацию по:«Каммертон» проект элегантного двухэтажного дома

    Фото 1 «Каммертон» проект элегантного двухэтажного дома


      Наши
      контакты

      Дмитров
      Опорный проезд 28Б
      (индустриальный парк Ниагара)
      9:00 до 18:00

      Корзина