4.9
Рейтинг на основании 120 отзывов
Дмитров
Опорный проезд 28Б
(индустриальный парк Ниагара)
Бренд "Дмитров-Дело" c 2008 года на рынке строительства в Дмитрове
Звоните 9:00 до 18:00 8 (915) 055-33-61
Бренд "Дмитров-Дело" c 2008 года на рынке строительства в Дмитрове

Кантри 65Л

Стоимость проекта от:
29 250 ₽
БЕСПЛАТНО! ПРИ ЗАКАЗЕ СТРОИТЕЛЬСТВА
Стоимость строительства от:
3 768 050 ₽
Артикул ART-17393
Дата 26.12.2025
Архитектурный стиль Барнхаус
Количество надземных этажей 1
Круглогодичное проживание Да
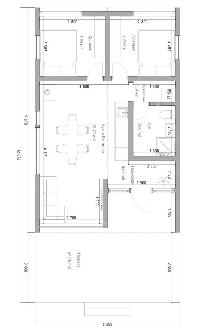
Площадь дома 65 м2
Санузлы 1
Спальни 2

Описание

**Кантри 65 Л – ваша ода простоте и уюта** Вдохновлённый традицией английских барнхаусов, Кантри 65 Л – это уютный дом с открытой планировкой, в котором дерево и металл плотно сплетаются с теплом светлых стен. Его деревянный каркасный фасад, покрытый натуральной отделкой, и классический двускатный профиль придают ему неповторимый, почти сказочный вид. Дом рассчитан на круглогодичное проживание, а широкие окна впускают максимум дневного света, создавая ощущение лёгкости и свежести даже в самые прохладные дни. На первом этаже простраивается просторная гостиня, объединённая с кухней в одну открытую площадку – идеальное место для семейных ужинов и общения. Спальня – тихий уголок уединения, а ванные комнаты выполнены в светлых тонах, подчеркивая свежесть и чистоту. Отдых можно не только в интерьере, но и на уютной наружной террасе, где можно наслаждаться рассветом или закатом над тихими огородами и лугами. Несмотря на простоту без балконов, веранд и крытых стоянок, дом сохраняет аутентичность и практичность, а отсутствие чердачего помещения позволяет использовать пространство максимально эффективно. Кантри 65 Л – это не просто дом, а образ жизни. Его простая архитектура, материал из дерева и прочный бревенчатый каркас делают его надёжным и удобным для проживания в любой сезон. Вы сможете открыть для себя ритм жизни на природе, не отказываясь от комфорта и уюта. Это идеальное место для тех, кто ценит простоту, но при этом хочет жить в гармонии с природой и не забыть про удобства современного быта.

Характеристики дома

Архитектурный стиль
Автоматизированное регулирование параметров теплоносителя
Нет
Балконы/лоджии
Отсутствуют
Чердачное помещение
Нет
Датчики протечки воды
Нет
Эксплуатируемая или зеленая кровля
Нет
Электроснабжение
2 варианта
Газоснабжение
Индивидуальное
Изоляция воздушного шума
Нет
Камин
Да
Класс энергоэффективности
-
Класс энергосбережения
-
Количество надземных этажей
1
Круглогодичное проживание
Да
Материал кровли
Металлочерепица
Материал перекрытий
Деревянные
Материал внешних стен
Материал внутренних перегородок
Деревянные
Модульное строительство с конструкциями заводского изготовления
Нет
Объем надземной части
110 м3
Основной материал фасадов
Дерево
Отопление
Индивидуальное
Площадь дома
65 м2
Площадь застройки
89 м2
Подвальное помещение
Нет
Показатель компактности здания
-
Приборы учета тепловой энергии
Нет
Пристроенный гараж/крытая автостоянка
Нет
Противопожарная система
Нет
Санузлы
1
Совмещенная кухня-гостиная
Да
Спальни
2
Терраса
Да
Тип фундамента
Свайный
Тип кровли
Толщина внешних стен
150 мм
Толщина внутренних перегородок
100 мм
Улучшенные шумовые характеристики
Нет
Вентиляция
2 варианта
Веранда
Нет
Водоотведение
2 варианта
Водоснабжение
2 варианта
Высота дома
3.4 м
Высота потолков
2.9 м

Планировка

Фасад дома

Александр

Закажите выезд инженера

Александр

Выездной инженер
Закажите выезд инженера для точной диагностики и профессиональной консультации по инженерным системам. Специалист приедет в удобное время, проведёт осмотр, рассчитает стоимость работ и подберёт оптимальные решения для вашего дома.


    Похожие проекты

    Ипотека и
    рассрочка
    Каркасный дом Ирадус 122
    Стоимость от:
    9 399 660
    Проект от: 70 650
    Этажей 2
    Санузлы 2
    Спальни 4
    Смотреть
    Ипотека и
    рассрочка
    Проект дома из сип-панелей «Альтаир»
    Стоимость от:
    9 300 840
    Проект от: 63 450
    Этажей 2
    Санузлы 2
    Спальни 3
    Смотреть
    Ипотека и
    рассрочка
    Бергамо 102
    Стоимость от:
    6 474 160
    Проект от: 50 400
    Этажей 1
    Санузлы 1
    Спальни 3
    Смотреть
    Ипотека и
    рассрочка
    Проект Ольга Ш-71
    Стоимость от:
    5 418 160
    Проект от: 30 600
    Этажей 1
    Санузлы 2
    Спальни 2
    Смотреть
    Ипотека и
    рассрочка
    Проект 60м2
    Стоимость от:
    4 382 400
    Проект от: 27 000
    Этажей 1
    Санузлы 1
    Спальни 2
    Смотреть
    Ипотека и
    рассрочка
    Нолька — 90
    Стоимость от:
    6 915 040
    Проект от: 41 400
    Этажей 1
    Санузлы 2
    Спальни 3
    Смотреть

    Как узнать стоимость дома

    back
    Оставляете заявку
    Вы заполняете форму на сайте или звоните нам. Менеджер Лайвкрафт связывается с вами для уточнения деталей: тип дома, площадь, материалы, участок строительства.
    back
    Консультация и подбор решения
    Наш специалист помогает выбрать оптимальный тип дома и конструкцию с учётом бюджета, сроков и целей — будь то дом для постоянного проживания или дача.
    back
    Расчёт предварительной стоимости
    Инженер делает первичный расчёт стоимости строительства по вашим параметрам: фундамент, коробка, кровля, отделка. Вы получаете смету с разбивкой по этапам.
    back
    Корректировка и утверждение сметы
    При необходимости вносим изменения — например, замену материалов или сокращение этапов. После согласования формируется окончательная фиксированная смета.
    back
    Заключение договора и старт работ
    После утверждения сметы заключаем официальный договор с гарантией. Вы получаете прозрачный график и точную стоимость — без скрытых расходов.

    Заказать конусльтацию по:Кантри 65Л

    Фото 1 Кантри 65Л


      Наши
      контакты

      Дмитров
      Опорный проезд 28Б
      (индустриальный парк Ниагара)
      9:00 до 18:00

      Корзина