4.9
Рейтинг на основании 120 отзывов
Дмитров
Опорный проезд 28Б
(индустриальный парк Ниагара)
Бренд "Дмитров-Дело" c 2008 года на рынке строительства в Дмитрове
Звоните 9:00 до 18:00 8 (915) 055-33-61
Бренд "Дмитров-Дело" c 2008 года на рынке строительства в Дмитрове

КАРИБСКИЙ КОРАБЛЬ

Стоимость проекта от:
70 200 ₽
Стоимость строительства от:
8 700 120 ₽
Артикул ART-16270
Дата 26.12.2025
Архитектурный стиль Европейский
Количество надземных этажей 1
Круглогодичное проживание Да
Площадь дома 156 м2
Санузлы 2
Спальни 3

Описание

Знакомьтесь — **КАРИБСКИЙ КОРАБЛЬ**: воплощение лёгкости и свободы, где каждый уголок напоминает о незабвенных морских путешествиях. Одиннадцатая палуба, открытая на бесконечную панораму, дарит ощущение постоянной вольной вёсла по океанскому ветру. Структура из светлых деревянных каркасов, защищённых современным комбинированным покрытием, словно качающаяся лента отеля, где каждая деталь продумана до мелочей. С 20‑летним климатическим комфортом – плавная температура в любое время года, и вы всегда будете рядом с тёплым солнцем Карибского региона. Внутренняя часть – просторный лобби, где мягкое освещение подчеркивает характерные морские мотивы и создаёт атмосферу уюта. Пальма‑подсветки и живые растительные акценты обрамляют уютные зоны, которые мгновенно перенесут вас в идиллическое место отдыха. В этом доме каждая деталь продумана: от комфорта до эстетики. Тихая и воздушная атмосфера вдохновит на новые идеи и поможет забыть о суете повседневной жизни. Снаружи, на просторной террасе, открываются безграничные возможности: от романтических закатов до безмятежных завтраков на открытом воздухе. Никаких балконов и веранд, но терраса становится живой площадкой для вдохновляющих бесед, закаты и солнечные проблески. Не стоит волноваться о транспорте – хотя в доме нет привязки к автомобилям, но близость к прибрежной зоне позволит вам наслаждаться прогулками рядом с морем. Этот дом готов стать вашим личным убежищем под бескрайним небом Карибских островов, приглашая вас жить в гармонии с природой, где каждое утро обещает новое приключение.

Характеристики дома

Архитектурный стиль
Европейский
Автоматизированное регулирование параметров теплоносителя
Нет
Балконы/лоджии
Отсутствуют
Чердачное помещение
Нет
Датчики протечки воды
Нет
Эксплуатируемая или зеленая кровля
Нет
Электроснабжение
Центральное
Газоснабжение
Не предусмотрено
Изоляция воздушного шума
Да
Камин
Нет
Класс энергоэффективности
-
Класс энергосбережения
-
Количество надземных этажей
1
Круглогодичное проживание
Да
Материал кровли
Металлические листовые гофрированные профили
Материал перекрытий
Деревянные
Материал внешних стен
Деревянные каркасные
Материал внутренних перегородок
Деревянные
Модульное строительство с конструкциями заводского изготовления
Нет
Объем надземной части
-
Основной материал фасадов
Дерево
Отопление
Индивидуальное
Площадь дома
156 м2
Площадь застройки
192 м2
Подвальное помещение
Нет
Показатель компактности здания
-
Приборы учета тепловой энергии
Нет
Пристроенный гараж/крытая автостоянка
Нет
Противопожарная система
Нет
Санузлы
2
Совмещенная кухня-гостиная
Да
Спальни
3
Терраса
Да
Тип фундамента
Свайный
Тип кровли
Комбинированная
Толщина внешних стен
220 мм
Толщина внутренних перегородок
105 мм
Улучшенные шумовые характеристики
Да
Вентиляция
Естественная
Веранда
Нет
Водоотведение
Локальные очистные сооружения
Водоснабжение
Индивидуальное
Высота дома
-
Высота потолков
3 м

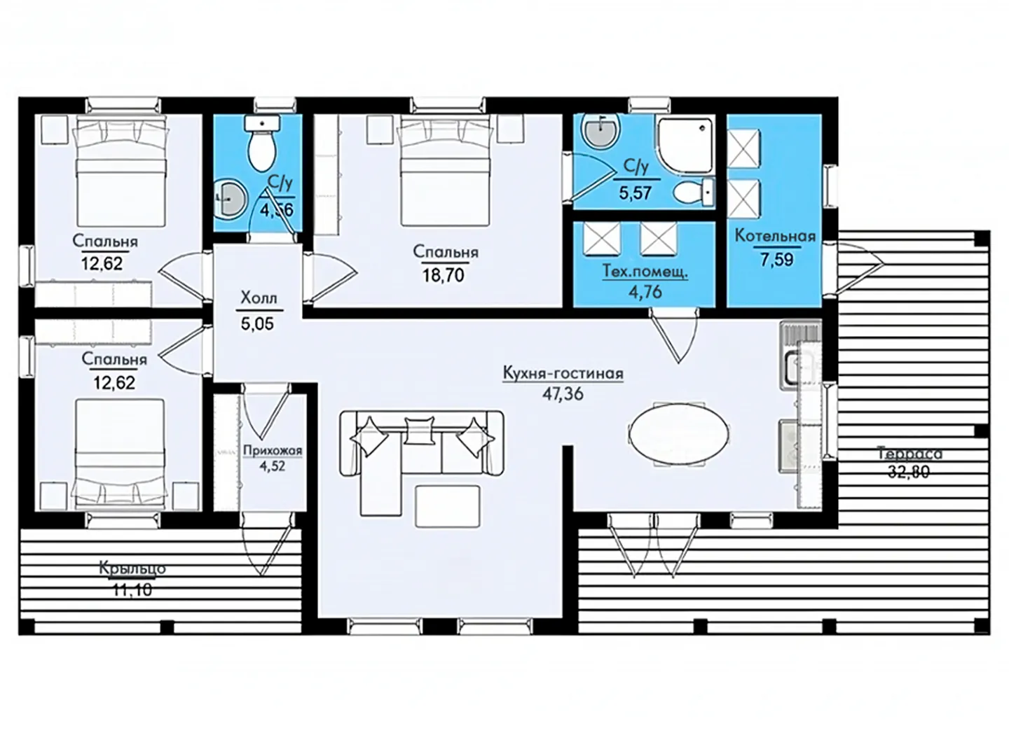
Планировка

Фасад дома

Александр

Закажите выезд инженера

Александр

Выездной инженер
Закажите выезд инженера для точной диагностики и профессиональной консультации по инженерным системам. Специалист приедет в удобное время, проведёт осмотр, рассчитает стоимость работ и подберёт оптимальные решения для вашего дома.


    Похожие проекты

    Ипотека и
    рассрочка
    Одноэтажный дом «Тулуза» 100м2
    Стоимость от:
    6 636 740
    Проект от: 43 650
    Этажей 1
    Санузлы 3
    Спальни 3
    Смотреть
    Ипотека и
    рассрочка
    Каркасный дом по проекту Мальта
    Стоимость от:
    3 246 320
    Проект от: 25 200
    Этажей 1
    Санузлы 1
    Спальни 1
    Смотреть
    Ипотека и
    рассрочка
    Дом из бревна №1
    Стоимость от:
    7 121 520
    Проект от: 48 600
    Этажей 2
    Санузлы 2
    Спальни 3
    Смотреть
    Ипотека и
    рассрочка
    БарнХаус 68 м²
    Стоимость от:
    3 736 590
    Проект от: 30 150
    Этажей 1
    Санузлы 1
    Спальни 2
    Смотреть
    Ипотека и
    рассрочка
    Марматер 81
    Стоимость от:
    4 851 060
    Проект от: 36 450
    Этажей 2
    Санузлы 2
    Спальни 4
    Смотреть
    Ипотека и
    рассрочка
    Статус 8,5х12 Бином
    Стоимость от:
    4 971 230
    Проект от: 38 700
    Этажей 1
    Санузлы 1
    Спальни 2
    Смотреть

    Как узнать стоимость дома

    back
    Оставляете заявку
    Вы заполняете форму на сайте или звоните нам. Менеджер Лайвкрафт связывается с вами для уточнения деталей: тип дома, площадь, материалы, участок строительства.
    back
    Консультация и подбор решения
    Наш специалист помогает выбрать оптимальный тип дома и конструкцию с учётом бюджета, сроков и целей — будь то дом для постоянного проживания или дача.
    back
    Расчёт предварительной стоимости
    Инженер делает первичный расчёт стоимости строительства по вашим параметрам: фундамент, коробка, кровля, отделка. Вы получаете смету с разбивкой по этапам.
    back
    Корректировка и утверждение сметы
    При необходимости вносим изменения — например, замену материалов или сокращение этапов. После согласования формируется окончательная фиксированная смета.
    back
    Заключение договора и старт работ
    После утверждения сметы заключаем официальный договор с гарантией. Вы получаете прозрачный график и точную стоимость — без скрытых расходов.

    Заказать конусльтацию по:КАРИБСКИЙ КОРАБЛЬ

    Фото 1 КАРИБСКИЙ КОРАБЛЬ


      Наши
      контакты

      Дмитров
      Опорный проезд 28Б
      (индустриальный парк Ниагара)
      9:00 до 18:00