4.9
Рейтинг на основании 120 отзывов
Дмитров
Опорный проезд 28Б
(индустриальный парк Ниагара)
Бренд "Дмитров-Дело" c 2008 года на рынке строительства в Дмитрове
Звоните 9:00 до 18:00 8 (915) 055-33-61
Бренд "Дмитров-Дело" c 2008 года на рынке строительства в Дмитрове

Каркасный дом №24

Стоимость проекта от:
60 750 ₽
БЕСПЛАТНО! ПРИ ЗАКАЗЕ СТРОИТЕЛЬСТВА
Стоимость строительства от:
8 095 200 ₽
Артикул ART-20747
Дата 26.12.2025
Архитектурный стиль Классический
Количество надземных этажей 2
Круглогодичное проживание Да
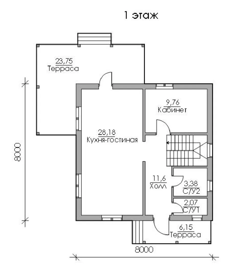
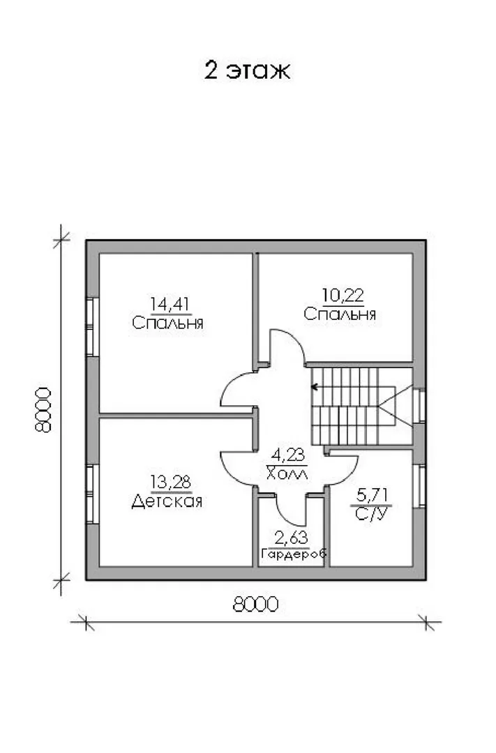
Площадь дома 135 м2
Санузлы 3
Спальни 3

Описание

Гармонично сочетая простоту и изысканность, наш каркасный дом № 24 станет идеальной тёплой обителью для всей семьи. Двухэтажное строительство, выполненное полностью из дерева, гарантирует прочность и тепло, а классический архитектурный стиль привносит атмосферу уюта и вечной элегантности. Благодаря наличию круглогодичного утепления и правильной ориентации, в доме всегда комфортно, а яркая естественная светлость наполняет каждый уголок при любом внешнем освещении. Среди особенностей этого дома – просторный чердак, который можно превратить в дополнительное жилое помещение, кабинет или место для хобби, а также современная терраса с открытой площадкой – идеальное место для летних барбекю, чтения за чашкой кофе в прохладное утро или вечерних соблазных встреч с близкими. Дизайн «без балконов и веранд» подчеркивает лаконичность и классический стиль, а отсутствие пристроенного гаража позволяет сохранить всю площадь участка для сада или игрового пространства. Если вы мечтаете об уютном уголке, где сочетание традиционного строительства и современных удобств превратит каждый день в маленькое удовольствие – наш дом № 24 ждёт именно вас.

Характеристики дома

Архитектурный стиль
Автоматизированное регулирование параметров теплоносителя
Нет
Балконы/лоджии
Отсутствуют
Чердачное помещение
Да
Датчики протечки воды
Нет
Эксплуатируемая или зеленая кровля
Нет
Электроснабжение
Центральное
Газоснабжение
Центральное
Изоляция воздушного шума
Нет
Камин
Нет
Класс энергоэффективности
-
Класс энергосбережения
-
Количество надземных этажей
2
Круглогодичное проживание
Да
Материал кровли
Металлочерепица
Материал перекрытий
Деревянные
Материал внешних стен
Материал внутренних перегородок
Деревянные
Модульное строительство с конструкциями заводского изготовления
Нет
Объем надземной части
441 м3
Основной материал фасадов
Дерево
Отопление
Индивидуальное
Площадь дома
135 м2
Площадь застройки
126 м2
Подвальное помещение
Нет
Показатель компактности здания
-
Приборы учета тепловой энергии
Нет
Пристроенный гараж/крытая автостоянка
Нет
Противопожарная система
Нет
Санузлы
3
Совмещенная кухня-гостиная
Да
Спальни
3
Терраса
Да
Тип фундамента
Свайный
Тип кровли
Толщина внешних стен
200 мм
Толщина внутренних перегородок
100 мм
Улучшенные шумовые характеристики
Нет
Вентиляция
Естественная
Веранда
Нет
Водоотведение
Локальные очистные сооружения
Водоснабжение
Индивидуальное
Высота дома
6.9 м
Высота потолков
2.7 м

Планировка

Фасад дома

Александр

Закажите выезд инженера

Александр

Выездной инженер
Закажите выезд инженера для точной диагностики и профессиональной консультации по инженерным системам. Специалист приедет в удобное время, проведёт осмотр, рассчитает стоимость работ и подберёт оптимальные решения для вашего дома.


    Похожие проекты

    Ипотека и
    рассрочка
    Загородный дом «Большая семья»
    Стоимость от:
    14 847 360
    Проект от: 102 600
    Этажей 1
    Санузлы 3
    Спальни 6
    Смотреть
    Ипотека и
    рассрочка
    CUBA 70м² – Модульный дом под ключ
    Стоимость от:
    3 903 900
    Проект от: 31 500
    Этажей 1
    Санузлы 2
    Спальни 3
    Смотреть
    Ипотека и
    рассрочка
    FOREST 146
    Стоимость от:
    9 989 320
    Проект от: 65 700
    Этажей 1
    Санузлы 2
    Спальни 3
    Смотреть
    Ипотека и
    рассрочка
    Семейный Дом
    Стоимость от:
    8 666 240
    Проект от: 50 400
    Этажей 1
    Санузлы 1
    Спальни 2
    Смотреть
    Ипотека и
    рассрочка
    Барнхаус L
    Стоимость от:
    4 740 450
    Проект от: 38 250
    Этажей 1
    Санузлы 1
    Спальни 2
    Смотреть
    Ипотека и
    рассрочка
    Загородный дом «Фазенда» ТИП2
    Стоимость от:
    6 990 060
    Проект от: 41 850
    Этажей 1
    Санузлы 1
    Спальни 3
    Смотреть

    Как узнать стоимость дома

    back
    Оставляете заявку
    Вы заполняете форму на сайте или звоните нам. Менеджер Лайвкрафт связывается с вами для уточнения деталей: тип дома, площадь, материалы, участок строительства.
    back
    Консультация и подбор решения
    Наш специалист помогает выбрать оптимальный тип дома и конструкцию с учётом бюджета, сроков и целей — будь то дом для постоянного проживания или дача.
    back
    Расчёт предварительной стоимости
    Инженер делает первичный расчёт стоимости строительства по вашим параметрам: фундамент, коробка, кровля, отделка. Вы получаете смету с разбивкой по этапам.
    back
    Корректировка и утверждение сметы
    При необходимости вносим изменения — например, замену материалов или сокращение этапов. После согласования формируется окончательная фиксированная смета.
    back
    Заключение договора и старт работ
    После утверждения сметы заключаем официальный договор с гарантией. Вы получаете прозрачный график и точную стоимость — без скрытых расходов.

    Заказать конусльтацию по:Каркасный дом №24

    Фото 1 Каркасный дом №24


      Наши
      контакты

      Дмитров
      Опорный проезд 28Б
      (индустриальный парк Ниагара)
      9:00 до 18:00

      Корзина