4.9
Рейтинг на основании 120 отзывов
Дмитров
Опорный проезд 28Б
(индустриальный парк Ниагара)
Бренд "Дмитров-Дело" c 2008 года на рынке строительства в Дмитрове
Звоните 9:00 до 18:00 8 (915) 055-33-61
Бренд "Дмитров-Дело" c 2008 года на рынке строительства в Дмитрове

Каркасный дом Адаль 80

Стоимость проекта от:
37 350 ₽
БЕСПЛАТНО! ПРИ ЗАКАЗЕ СТРОИТЕЛЬСТВА
Стоимость строительства от:
4 797 815 ₽
Артикул ART-11941
Дата 25.12.2025
Архитектурный стиль Скандинавский
Количество надземных этажей 1
Круглогодичное проживание Да
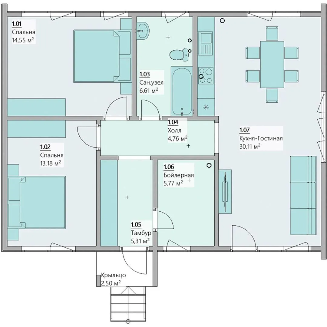
Площадь дома 83 м2
Санузлы 1
Спальни 2

Описание

Наслаждайтесь спокойствием и уединением в просторном 80‑квадратном каркасном доме «Adal 80», выполненном в элегантном скандинавском стиле. Его единственный надземный этаж полностью пропитан приятной, естественной теплотой деревянных стен и комбинированной кровли, что позволяет комфортно проживать здесь круглый год. Просторные открытые помещения, залитые мягким светом, создают ощущение простора и свежести, а лаконичные линии стиля подчёркивают его современную эстетику. В каждом уголке «Adal 80» раскрывается гармония природы и уюта. Тёплая, поросшая древесиной конструкция обеспечивает отличную тепло- и звукоизоляцию, позволяя наслаждаться моментом вне зависимости от погоды. В доме отсутствуют лишние отделения и громоздкие элементы: балконы, лоджии, веранда, гараж и терраса – они не нужны, когда в интерьере уже присутствует всю необходимую функциональность. Простота и минимализм делают каждый квадратный метр максимально удобным и пригодным для жизни семьи, пары или творческого единоличного дома. Оцените истинную красоту деревянных стен и функциональное пространство, сочетающееся с современными удобствами. Дом «Adal 80» — это воплощение идеального баланса между комфортом и стилем, готовое стать вашим тихим уголком уюта и вдохновения.

Характеристики дома

Архитектурный стиль
Автоматизированное регулирование параметров теплоносителя
Нет
Балконы/лоджии
Отсутствуют
Чердачное помещение
Нет
Датчики протечки воды
Нет
Эксплуатируемая или зеленая кровля
Нет
Электроснабжение
Не предусмотрено
Газоснабжение
Не предусмотрено
Изоляция воздушного шума
Да
Камин
Нет
Класс энергоэффективности
-
Класс энергосбережения
-
Количество надземных этажей
1
Круглогодичное проживание
Да
Материал кровли
Металлочерепица
Материал перекрытий
Деревянные
Материал внешних стен
Материал внутренних перегородок
Деревянные
Модульное строительство с конструкциями заводского изготовления
Нет
Объем надземной части
282 м3
Основной материал фасадов
Дерево
Отопление
Не предусмотрено
Площадь дома
83 м2
Площадь застройки
93 м2
Подвальное помещение
Нет
Показатель компактности здания
-
Приборы учета тепловой энергии
Нет
Пристроенный гараж/крытая автостоянка
Нет
Противопожарная система
Нет
Санузлы
1
Совмещенная кухня-гостиная
Да
Спальни
2
Терраса
Нет
Тип фундамента
Свайно-винтовой
Тип кровли
Толщина внешних стен
190 мм
Толщина внутренних перегородок
145 мм
Улучшенные шумовые характеристики
Да
Вентиляция
Естественная
Веранда
Нет
Водоотведение
Не предусмотрено
Водоснабжение
Не предусмотрено
Высота дома
4.5 м
Высота потолков
2.1 м

Планировка

Фасад дома

Александр

Закажите выезд инженера

Александр

Выездной инженер
Закажите выезд инженера для точной диагностики и профессиональной консультации по инженерным системам. Специалист приедет в удобное время, проведёт осмотр, рассчитает стоимость работ и подберёт оптимальные решения для вашего дома.


    Похожие проекты

    Ипотека и
    рассрочка
    Проект «Икар»
    Стоимость от:
    6 847 720
    Проект от: 38 700
    Этажей 1
    Санузлы 1
    Спальни 3
    Смотреть
    Ипотека и
    рассрочка
    Стильный дом с мансардой S-211
    Стоимость от:
    15 780 240
    Проект от: 94 950
    Этажей 2
    Санузлы 3
    Спальни 4
    Смотреть
    Ипотека и
    рассрочка
    Проект ГБ-158
    Стоимость от:
    11 034 720
    Проект от: 71 100
    Этажей 2
    Санузлы 3
    Спальни 4
    Смотреть
    Ипотека и
    рассрочка
    ТН-131
    Стоимость от:
    8 416 200
    Проект от: 58 500
    Этажей 2
    Санузлы 3
    Спальни 3
    Смотреть
    Ипотека и
    рассрочка
    Млечный путь
    Стоимость от:
    12 260 160
    Проект от: 73 800
    Этажей 2
    Санузлы 3
    Спальни 7
    Смотреть
    Ипотека и
    рассрочка
    S88
    Стоимость от:
    14 722 840
    Проект от: 90 900
    Этажей 1
    Санузлы 2
    Спальни 3
    Смотреть

    Как узнать стоимость дома

    back
    Оставляете заявку
    Вы заполняете форму на сайте или звоните нам. Менеджер Лайвкрафт связывается с вами для уточнения деталей: тип дома, площадь, материалы, участок строительства.
    back
    Консультация и подбор решения
    Наш специалист помогает выбрать оптимальный тип дома и конструкцию с учётом бюджета, сроков и целей — будь то дом для постоянного проживания или дача.
    back
    Расчёт предварительной стоимости
    Инженер делает первичный расчёт стоимости строительства по вашим параметрам: фундамент, коробка, кровля, отделка. Вы получаете смету с разбивкой по этапам.
    back
    Корректировка и утверждение сметы
    При необходимости вносим изменения — например, замену материалов или сокращение этапов. После согласования формируется окончательная фиксированная смета.
    back
    Заключение договора и старт работ
    После утверждения сметы заключаем официальный договор с гарантией. Вы получаете прозрачный график и точную стоимость — без скрытых расходов.

    Заказать конусльтацию по:Каркасный дом Адаль 80

    Фото 1 Каркасный дом Адаль 80


      Наши
      контакты

      Дмитров
      Опорный проезд 28Б
      (индустриальный парк Ниагара)
      9:00 до 18:00

      Корзина