4.9
Рейтинг на основании 120 отзывов
Дмитров
Опорный проезд 28Б
(индустриальный парк Ниагара)
Бренд "Дмитров-Дело" c 2008 года на рынке строительства в Дмитрове
Звоните 9:00 до 18:00 8 (915) 055-33-61
Бренд "Дмитров-Дело" c 2008 года на рынке строительства в Дмитрове

Каркасный дом «Барн 62»

Стоимость проекта от:
27 900 ₽
БЕСПЛАТНО! ПРИ ЗАКАЗЕ СТРОИТЕЛЬСТВА
Стоимость строительства от:
3 594 140 ₽
Артикул ART-15859
Дата 25.12.2025
Архитектурный стиль Барнхаус
Количество надземных этажей 1
Круглогодичное проживание Да
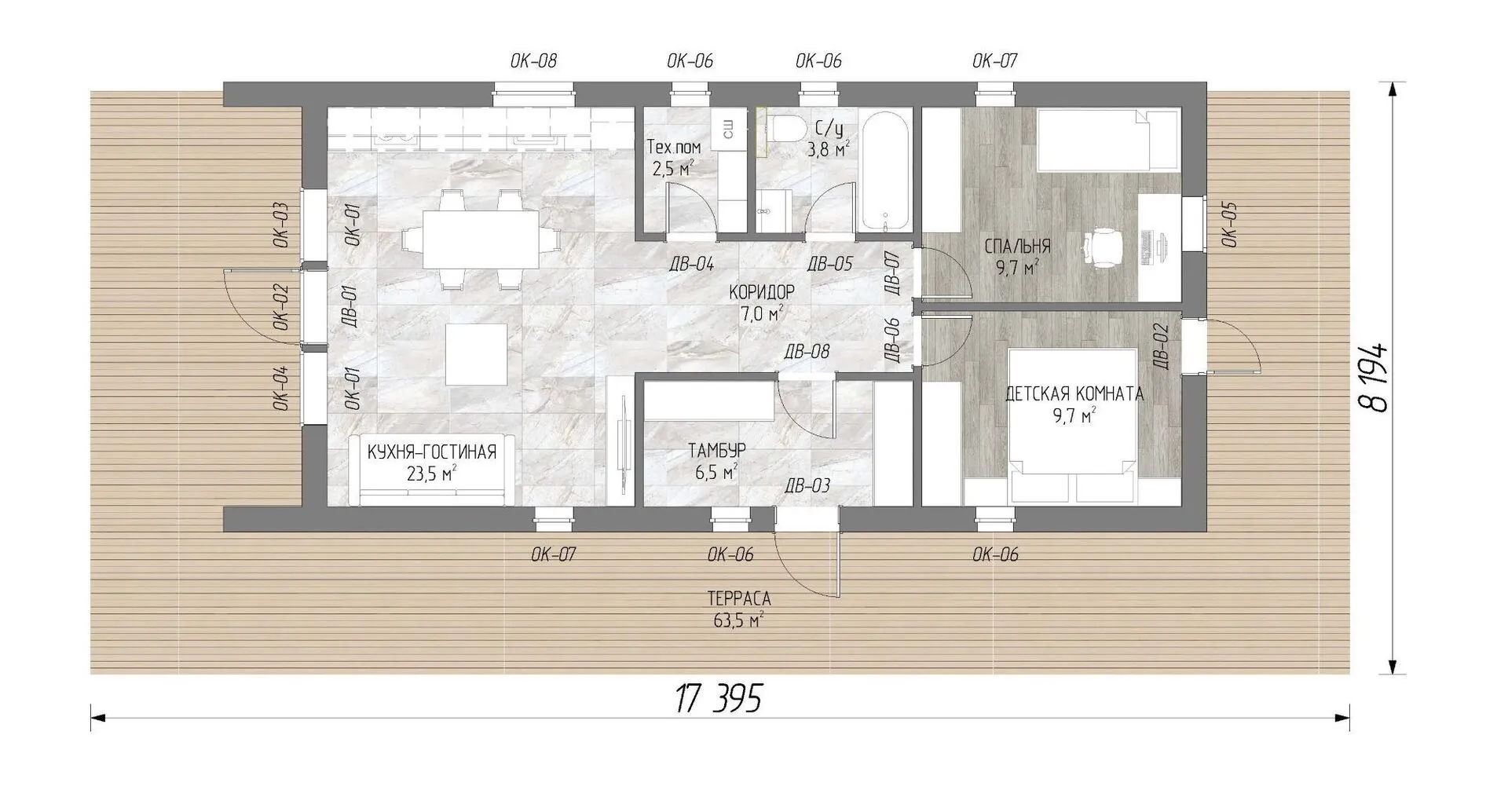
Площадь дома 62 м2
Санузлы 1
Спальни 2

Описание

Идеальная комбинация традиций и современного уюта – это наш каркасный дом «Барн 62». Он приглашает вас обитать в круглогодичного комфорте, наслаждаясь душевной атмосферой уютного загородного уголка. Стиль Барнхаус раскрывает в каждой детали элегантную простоту: обшивка деревянными панелями, классическая двускатная крыша и просторный живой уголок создают ощущение гармоничного притяжения к природе. Внутри – единственный надземный этаж, где планировка продумана так, чтобы каждая зона служила вам и вашей семье. Семья, которая ценит искреннюю красоту простых материалов, обязательно оценит простоту обслуживания и энергоэффективность крошенных стен. Теплые деревянные каркасы не только украшают фасад, но и сохраняют уют даже в самые холодные дни, создавая ощущение тепла и дома. Отсутствие балконов и веранд делает пространство более открытым, а просторная терраса предлагает идеальное место для завтраков на свежем воздухе или вечерних бесед с друзьями. Весь комфорт и практичность сочетаются с простотой в обслуживании: отсутствие прицепленных гаражей, чердака или придомовых помещений делает дом легким в уходе и свободным от лишних забот. «Барн 62» – это не просто строение, а место, где каждая деталь говорит о заботе и внимании к семейным ценностям. Приходите и почувствуйте уют этого уникального дома, где каждый день начинается с надежного спокойствия и вдохновляет на новые свершения.

Характеристики дома

Архитектурный стиль
Автоматизированное регулирование параметров теплоносителя
Нет
Балконы/лоджии
Отсутствуют
Чердачное помещение
Нет
Датчики протечки воды
Нет
Эксплуатируемая или зеленая кровля
Нет
Электроснабжение
Центральное
Газоснабжение
Не предусмотрено
Изоляция воздушного шума
Нет
Камин
Нет
Класс энергоэффективности
-
Класс энергосбережения
-
Количество надземных этажей
1
Круглогодичное проживание
Да
Материал кровли
Металлочерепица
Материал перекрытий
Деревянные
Материал внешних стен
Материал внутренних перегородок
Гипсокартонные
Модульное строительство с конструкциями заводского изготовления
Нет
Объем надземной части
337 м3
Основной материал фасадов
Сайдинг
Отопление
Индивидуальное
Площадь дома
62 м2
Площадь застройки
120 м2
Подвальное помещение
Нет
Показатель компактности здания
-
Приборы учета тепловой энергии
Нет
Пристроенный гараж/крытая автостоянка
Нет
Противопожарная система
Нет
Санузлы
1
Совмещенная кухня-гостиная
Да
Спальни
2
Терраса
Да
Тип фундамента
Свайный
Тип кровли
Толщина внешних стен
200 мм
Толщина внутренних перегородок
100 мм
Улучшенные шумовые характеристики
Нет
Вентиляция
Естественная
Веранда
Нет
Водоотведение
Локальные очистные сооружения
Водоснабжение
Индивидуальное
Высота дома
5 м
Высота потолков
3 м

Планировка

Фасад дома

Александр

Закажите выезд инженера

Александр

Выездной инженер
Закажите выезд инженера для точной диагностики и профессиональной консультации по инженерным системам. Специалист приедет в удобное время, проведёт осмотр, рассчитает стоимость работ и подберёт оптимальные решения для вашего дома.


    Похожие проекты

    Ипотека и
    рассрочка
    СКАНДИ 144
    Стоимость от:
    10 056 960
    Проект от: 64 800
    Этажей 2
    Санузлы 2
    Спальни 4
    Смотреть
    Ипотека и
    рассрочка
    ГРАНД К
    Стоимость от:
    6 990 060
    Проект от: 41 850
    Этажей 1
    Санузлы 1
    Спальни 3
    Смотреть
    Ипотека и
    рассрочка
    Одноэтажный Барнхаус №2
    Стоимость от:
    6 759 280
    Проект от: 42 300
    Этажей 1
    Санузлы 2
    Спальни 2
    Смотреть
    Ипотека и
    рассрочка
    Двухэтажный коттедж С95
    Стоимость от:
    9 062 640
    Проект от: 54 450
    Этажей 2
    Санузлы 2
    Спальни 3
    Смотреть
    Ипотека и
    рассрочка
    70 кв.м. (2 комнаты_баварка)
    Стоимость от:
    5 110 600
    Проект от: 31 500
    Этажей 1
    Санузлы 1
    Спальни 2
    Смотреть
    Ипотека и
    рассрочка
    Одноэтажный БарнХаус. Проект 50-21КД2.
    Стоимость от:
    5 847 930
    Проект от: 44 550
    Этажей 1
    Санузлы 1
    Спальни 2
    Смотреть

    Как узнать стоимость дома

    back
    Оставляете заявку
    Вы заполняете форму на сайте или звоните нам. Менеджер Лайвкрафт связывается с вами для уточнения деталей: тип дома, площадь, материалы, участок строительства.
    back
    Консультация и подбор решения
    Наш специалист помогает выбрать оптимальный тип дома и конструкцию с учётом бюджета, сроков и целей — будь то дом для постоянного проживания или дача.
    back
    Расчёт предварительной стоимости
    Инженер делает первичный расчёт стоимости строительства по вашим параметрам: фундамент, коробка, кровля, отделка. Вы получаете смету с разбивкой по этапам.
    back
    Корректировка и утверждение сметы
    При необходимости вносим изменения — например, замену материалов или сокращение этапов. После согласования формируется окончательная фиксированная смета.
    back
    Заключение договора и старт работ
    После утверждения сметы заключаем официальный договор с гарантией. Вы получаете прозрачный график и точную стоимость — без скрытых расходов.

    Заказать конусльтацию по:Каркасный дом «Барн 62»

    Фото 1 Каркасный дом «Барн 62»


      Наши
      контакты

      Дмитров
      Опорный проезд 28Б
      (индустриальный парк Ниагара)
      9:00 до 18:00

      Корзина