4.9
Рейтинг на основании 120 отзывов
Дмитров
Опорный проезд 28Б
(индустриальный парк Ниагара)
Бренд "Дмитров-Дело" c 2008 года на рынке строительства в Дмитрове
Звоните 9:00 до 18:00 8 (915) 055-33-61
Бренд "Дмитров-Дело" c 2008 года на рынке строительства в Дмитрове

Каркасный дом ДСС-002

Стоимость проекта от:
28 350 ₽
БЕСПЛАТНО! ПРИ ЗАКАЗЕ СТРОИТЕЛЬСТВА
Стоимость строительства от:
3 503 115 ₽
Артикул ART-19419
Дата 26.12.2025
Архитектурный стиль Барнхаус
Количество надземных этажей 1
Круглогодичное проживание Да
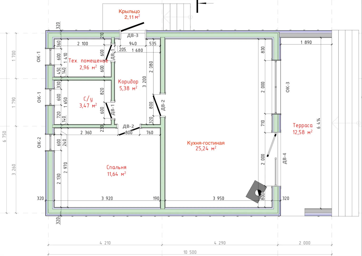
Площадь дома 63 м2
Санузлы 1
Спальни 1

Описание

**Каркасный дом «ДСС‑002» – ваш собственный уголок благодати** В этом уютном доме с единственным надземным этажом каждая деталь говорит о гармонии простоты и современного комфорта. Архитектурный стиль барнхаус, с его открытым пространством, массивными деревянными каркасами и традиционной двускатной крышей, создаёт атмосферу тепла и надёжности, словно вы живёте в обитель уединения, но при этом в полной гармонии с природой. Благодаря круглогодичному проживанию и продуманной изоляции, дом остаётся светлым и комфортным в любую погоду, а просторные помещения наполняются естественным светом. Терраса, выходящая от главного входа, становится идеальным местом для завтраков с видом на зелёные просторы и вечерних прогулок. Здесь можно устроить уютные пикники, читать у камина или наслаждаться ароматом свежего хлеба в тишине собственных стен. Внутри дом раскрывает простую, но функциональную планировку: открытая кухня, светлые комнаты, где легко создать свою собственную гармонию и уединение. Именно такой дом – это не просто место проживания, а стиль жизни. Его деревянные стены дарят натуральный характер, а уютный барнхаусный дизайн делает каждый день особенным. Приглашаем вас открыть для себя ощущение домашнего тепла, где каждая ветка дерева шепчет историю о простых радостях и о гармоничном взаимодействии с природой.

Характеристики дома

Архитектурный стиль
Автоматизированное регулирование параметров теплоносителя
Нет
Балконы/лоджии
Отсутствуют
Чердачное помещение
Нет
Датчики протечки воды
Нет
Эксплуатируемая или зеленая кровля
Нет
Электроснабжение
Центральное
Газоснабжение
Не предусмотрено
Изоляция воздушного шума
Нет
Камин
Нет
Класс энергоэффективности
-
Класс энергосбережения
-
Количество надземных этажей
1
Круглогодичное проживание
Да
Материал кровли
Металлические листовые гофрированные профили
Материал перекрытий
Деревянные
Материал внешних стен
Материал внутренних перегородок
Деревянные
Модульное строительство с конструкциями заводского изготовления
Нет
Объем надземной части
335 м3
Основной материал фасадов
Сайдинг
Отопление
Индивидуальное
Площадь дома
63 м2
Площадь застройки
76 м2
Подвальное помещение
Нет
Показатель компактности здания
-
Приборы учета тепловой энергии
Нет
Пристроенный гараж/крытая автостоянка
Нет
Противопожарная система
Нет
Санузлы
1
Совмещенная кухня-гостиная
Да
Спальни
1
Терраса
Да
Тип фундамента
Свайно-винтовой
Тип кровли
Толщина внешних стен
320 мм
Толщина внутренних перегородок
140 мм
Улучшенные шумовые характеристики
Нет
Вентиляция
Принудительная
Веранда
Нет
Водоотведение
Локальные очистные сооружения
Водоснабжение
Индивидуальное
Высота дома
4.38 м
Высота потолков
3.95 м

Планировка

Фасад дома

Александр

Закажите выезд инженера

Александр

Выездной инженер
Закажите выезд инженера для точной диагностики и профессиональной консультации по инженерным системам. Специалист приедет в удобное время, проведёт осмотр, рассчитает стоимость работ и подберёт оптимальные решения для вашего дома.


    Похожие проекты

    Ипотека и
    рассрочка
    Двухэтажный дом с пристроенным гаражом ДМ-02
    Стоимость от:
    8 102 760
    Проект от: 55 350
    Этажей 2
    Санузлы 2
    Спальни 4
    Смотреть
    Ипотека и
    рассрочка
    Акватория
    Стоимость от:
    4 789 400
    Проект от: 31 500
    Этажей 1
    Санузлы 1
    Спальни 2
    Смотреть
    Ипотека и
    рассрочка
    Одноэтажный кирпичный дом GS-89
    Стоимость от:
    6 089 820
    Проект от: 36 450
    Этажей 1
    Санузлы 1
    Спальни 3
    Смотреть
    Ипотека и
    рассрочка
    Одноэтажный дом ПГ — 4
    Стоимость от:
    5 414 640
    Проект от: 32 400
    Этажей 1
    Санузлы 1
    Спальни 2
    Смотреть
    Ипотека и
    рассрочка
    Двухэтажный каменный дом ДГ-5
    Стоимость от:
    10 704 720
    Проект от: 64 350
    Этажей 2
    Санузлы 3
    Спальни 3
    Смотреть
    Ипотека и
    рассрочка
    EFFECT LIGHT 88
    Стоимость от:
    5 689 200
    Проект от: 39 600
    Этажей 2
    Санузлы 2
    Спальни 3
    Смотреть

    Как узнать стоимость дома

    back
    Оставляете заявку
    Вы заполняете форму на сайте или звоните нам. Менеджер Лайвкрафт связывается с вами для уточнения деталей: тип дома, площадь, материалы, участок строительства.
    back
    Консультация и подбор решения
    Наш специалист помогает выбрать оптимальный тип дома и конструкцию с учётом бюджета, сроков и целей — будь то дом для постоянного проживания или дача.
    back
    Расчёт предварительной стоимости
    Инженер делает первичный расчёт стоимости строительства по вашим параметрам: фундамент, коробка, кровля, отделка. Вы получаете смету с разбивкой по этапам.
    back
    Корректировка и утверждение сметы
    При необходимости вносим изменения — например, замену материалов или сокращение этапов. После согласования формируется окончательная фиксированная смета.
    back
    Заключение договора и старт работ
    После утверждения сметы заключаем официальный договор с гарантией. Вы получаете прозрачный график и точную стоимость — без скрытых расходов.

    Заказать конусльтацию по:Каркасный дом ДСС-002

    Фото 1 Каркасный дом ДСС-002


      Наши
      контакты

      Дмитров
      Опорный проезд 28Б
      (индустриальный парк Ниагара)
      9:00 до 18:00

      Корзина