4.9
Рейтинг на основании 120 отзывов
Дмитров
Опорный проезд 28Б
(индустриальный парк Ниагара)
Бренд "Дмитров-Дело" c 2008 года на рынке строительства в Дмитрове
Звоните 9:00 до 18:00 8 (915) 055-33-61
Бренд "Дмитров-Дело" c 2008 года на рынке строительства в Дмитрове

Каркасный дом Фараон 5

Стоимость проекта от:
61 650 ₽
БЕСПЛАТНО! ПРИ ЗАКАЗЕ СТРОИТЕЛЬСТВА
Стоимость строительства от:
8 049 480 ₽
Артикул ART-20346
Дата 26.12.2025
Архитектурный стиль Классический
Количество надземных этажей 2
Круглогодичное проживание Да
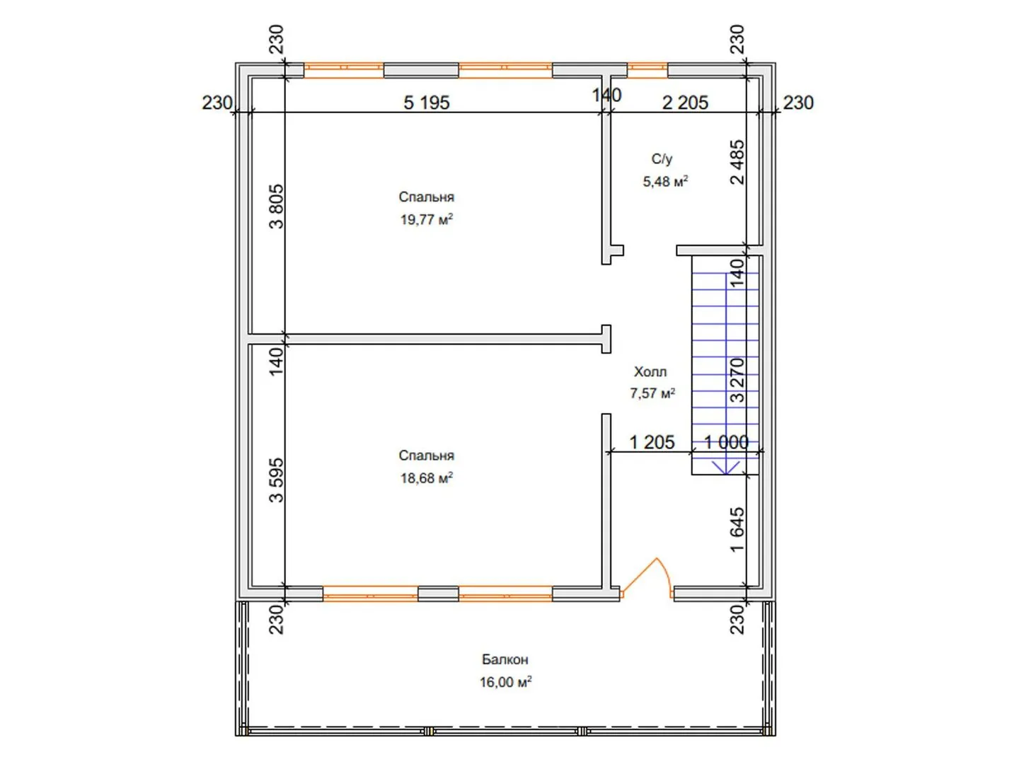
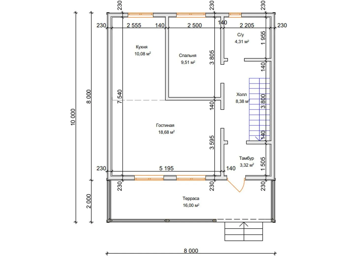
Площадь дома 137 м2
Санузлы 2
Спальни 3

Описание

Насладитесь уютом и стилем в каркасном доме «Фараон 5», где каждый элемент продуман для вашего комфорта. Двухуровневый дом в классическом исполнении объединяет в себе элегантную простоту с теплом натурального дерева. Крыша с двумя скатами подчеркивает элегантный силуэт, а большие окна пропускают свет, создавая атмосферу благородной лёгкости. Годовое проживание гарантирует, что вы всегда будете окружены комфортом, независимо от погоды, а просторные внутренние помещения позволяют устроить себе маленький уголок уюта в любой комнате. В «Фараоне 5» есть всё, что нужно для активной и спокойной жизни: балкон или лоджия, где можно наслаждаться рассветом в чашке кофе, а открытая терраса приглашает к летним барбекю и вечерам за чтением. Отсутствие прицепов и гаражей упрощает архитектурный ансамбль, а отсутствие чердака делает дома более живыми и открытыми. Деревянный каркас создаёт природную теплоизоляцию, а современная технология строительства обеспечивает прочность и экономичность эксплуатации. Такой дом – идеальный выбор для тех, кто ценит традиционный вид скандинавского дизайна, но при этом хочет жить в современном и энергоэффективном пространстве. «Фараон 5» сочетает в себе качество, практичность и эстетическое удовольствие: это ваш шанс создать настоящий оазис уюта, где каждая деталь отвечает требованиям сегодняшнего дня.

Характеристики дома

Архитектурный стиль
Автоматизированное регулирование параметров теплоносителя
Да
Балконы/лоджии
1
Чердачное помещение
Нет
Датчики протечки воды
Нет
Эксплуатируемая или зеленая кровля
Нет
Электроснабжение
Центральное
Газоснабжение
Центральное
Изоляция воздушного шума
Да
Камин
Нет
Класс энергоэффективности
-
Класс энергосбережения
-
Количество надземных этажей
2
Круглогодичное проживание
Да
Материал кровли
Металлические листовые гофрированные профили
Материал перекрытий
Деревянные
Материал внешних стен
Материал внутренних перегородок
Деревянные
Модульное строительство с конструкциями заводского изготовления
Нет
Объем надземной части
-
Основной материал фасадов
Дерево
Отопление
Индивидуальное
Площадь дома
137 м2
Площадь застройки
80 м2
Подвальное помещение
Нет
Показатель компактности здания
-
Приборы учета тепловой энергии
Нет
Пристроенный гараж/крытая автостоянка
Нет
Противопожарная система
Нет
Санузлы
2
Совмещенная кухня-гостиная
Да
Спальни
3
Терраса
Да
Тип фундамента
Свайный
Тип кровли
Толщина внешних стен
280 мм
Толщина внутренних перегородок
180 мм
Улучшенные шумовые характеристики
Да
Вентиляция
3 варианта
Веранда
Нет
Водоотведение
Центральное
Водоснабжение
Центральное
Высота дома
8 м
Высота потолков
2.8 м

Планировка

Фасад дома

Александр

Закажите выезд инженера

Александр

Выездной инженер
Закажите выезд инженера для точной диагностики и профессиональной консультации по инженерным системам. Специалист приедет в удобное время, проведёт осмотр, рассчитает стоимость работ и подберёт оптимальные решения для вашего дома.


    Похожие проекты

    Ипотека и
    рассрочка
    Альматея
    Стоимость от:
    3 460 380
    Проект от: 22 050
    Этажей 1
    Санузлы 1
    Спальни 2
    Смотреть
    Ипотека и
    рассрочка
    Каркасный, одноэтажный дом «ДК 306»
    Стоимость от:
    4 624 400
    Проект от: 36 000
    Этажей 1
    Санузлы 1
    Спальни 3
    Смотреть
    Ипотека и
    рассрочка
    S 2-125
    Стоимость от:
    8 972 160
    Проект от: 55 800
    Этажей 2
    Санузлы 2
    Спальни 4
    Смотреть
    Ипотека и
    рассрочка
    КД «Краснодар №9-22»
    Стоимость от:
    8 139 600
    Проект от: 61 200
    Этажей 2
    Санузлы 2
    Спальни 4
    Смотреть
    Ипотека и
    рассрочка
    Загородный дом Кермит
    Стоимость от:
    8 757 760
    Проект от: 57 600
    Этажей 1
    Санузлы 2
    Спальни 3
    Смотреть
    Ипотека и
    рассрочка
    Hill Park XS
    Стоимость от:
    15 783 560
    Проект от: 112 950
    Этажей 3
    Санузлы 3
    Спальни 2
    Смотреть

    Как узнать стоимость дома

    back
    Оставляете заявку
    Вы заполняете форму на сайте или звоните нам. Менеджер Лайвкрафт связывается с вами для уточнения деталей: тип дома, площадь, материалы, участок строительства.
    back
    Консультация и подбор решения
    Наш специалист помогает выбрать оптимальный тип дома и конструкцию с учётом бюджета, сроков и целей — будь то дом для постоянного проживания или дача.
    back
    Расчёт предварительной стоимости
    Инженер делает первичный расчёт стоимости строительства по вашим параметрам: фундамент, коробка, кровля, отделка. Вы получаете смету с разбивкой по этапам.
    back
    Корректировка и утверждение сметы
    При необходимости вносим изменения — например, замену материалов или сокращение этапов. После согласования формируется окончательная фиксированная смета.
    back
    Заключение договора и старт работ
    После утверждения сметы заключаем официальный договор с гарантией. Вы получаете прозрачный график и точную стоимость — без скрытых расходов.

    Заказать конусльтацию по:Каркасный дом Фараон 5

    Фото 1 Каркасный дом Фараон 5


      Наши
      контакты

      Дмитров
      Опорный проезд 28Б
      (индустриальный парк Ниагара)
      9:00 до 18:00

      Корзина