4.9
Рейтинг на основании 120 отзывов
Дмитров
Опорный проезд 28Б
(индустриальный парк Ниагара)
Бренд "Дмитров-Дело" c 2008 года на рынке строительства в Дмитрове
Звоните 9:00 до 18:00 8 (915) 055-33-61
Бренд "Дмитров-Дело" c 2008 года на рынке строительства в Дмитрове

Каркасный дом К-262

Стоимость проекта от:
62 550 ₽
Стоимость строительства от:
8 057 830 ₽
Артикул ART-12766
Дата 25.12.2025
Архитектурный стиль Американский/Канадский
Количество надземных этажей 1
Круглогодичное проживание Да
Площадь дома 139 м2
Санузлы 2
Спальни 3

Описание

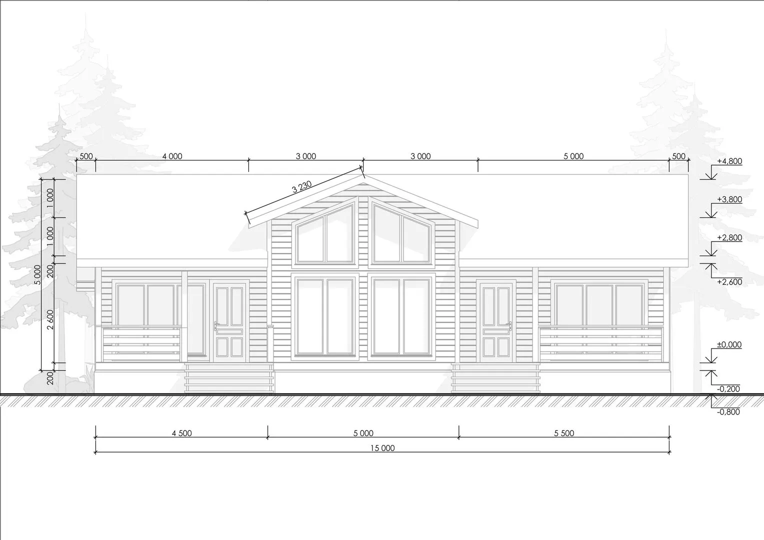
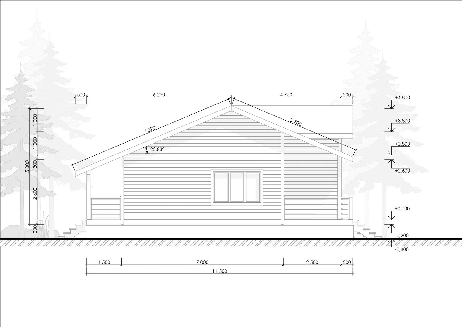
**Откройте для себя уют в стиле Америки и Канады** Каркасный дом К‑262 – это идеальное сочетание тепла, комфорта и современного дизайна. У него один надземный этаж, на котором удобно разместить все зоны вашего домашнего уюта, а архитектурный стиль, вдохновленный живописными глиняными и деревянными усадьбами Северной Америки, привносит в дом нотки семейного очарования и просторной гармонии. Кровля в типичном «двускатном» варианте не только придаёт элегантный силуэт, но и обеспечивает отличное тепло- и влагозащитное исполнение, благодаря чему ваш дом будет радовать вас круглогодично. **Простор, где каждый элемент радует глаз** Никаких балконов и веранд, но у дома есть просторная терраса, которая приглашает проводить солнечные обеды, гриль-вечера или просто наслаждаться видом на природу. Внутрь вас ждёт светлое и открытое планировочное решение – здесь легко организовать уютную гостиную, современную кухню с барной стойкой и всё, что нужно для динамичной семьи. С деревянным каркасом и тщательно выбранными материалами внешних стен наш дом сочетает в себе легкость конструкции и долговечность, а утепление гарантирует энергоэффективность и экономию на коммунальных платежах. **Строим с вами индивидуальный уют** Если вам важна свобода в планировании пространства, вы всегда можете добавить прицепной гараж, расширить жилые зоны или создать дополнительный чердачный уголок – наш каркасный дом легко адаптируется под ваши пожелания. Он уже готов к жизни, но при этом открывает все возможности для вашего творчества, чтобы этот дом стал вашим любимым местом на свете. Приглашаем вас открыть двери в новый стиль жизни, где каждый день полон уюта, тепла и вдохновения.

Характеристики дома

Архитектурный стиль
Американский/Канадский
Автоматизированное регулирование параметров теплоносителя
Нет
Балконы/лоджии
Отсутствуют
Чердачное помещение
Нет
Датчики протечки воды
Нет
Эксплуатируемая или зеленая кровля
Нет
Электроснабжение
Не предусмотрено
Газоснабжение
Не предусмотрено
Изоляция воздушного шума
Нет
Камин
Нет
Класс энергоэффективности
-
Класс энергосбережения
-
Количество надземных этажей
1
Круглогодичное проживание
Да
Материал кровли
Металлочерепица
Материал перекрытий
Деревянные
Материал внешних стен
Деревянные каркасные
Материал внутренних перегородок
Деревянные
Модульное строительство с конструкциями заводского изготовления
Нет
Объем надземной части
-
Основной материал фасадов
Дерево
Отопление
Не предусмотрено
Площадь дома
139 м2
Площадь застройки
152 м2
Подвальное помещение
Нет
Показатель компактности здания
-
Приборы учета тепловой энергии
Нет
Пристроенный гараж/крытая автостоянка
Нет
Противопожарная система
Нет
Санузлы
2
Совмещенная кухня-гостиная
Да
Спальни
3
Терраса
Да
Тип фундамента
Свайный
Тип кровли
Двускатная
Толщина внешних стен
150 мм
Толщина внутренних перегородок
100 мм
Улучшенные шумовые характеристики
Нет
Вентиляция
Естественная
Веранда
Нет
Водоотведение
Не предусмотрено
Водоснабжение
Не предусмотрено
Высота дома
5 м
Высота потолков
2.6 м

Планировка

Фасад дома

Александр

Закажите выезд инженера

Александр

Выездной инженер
Закажите выезд инженера для точной диагностики и профессиональной консультации по инженерным системам. Специалист приедет в удобное время, проведёт осмотр, рассчитает стоимость работ и подберёт оптимальные решения для вашего дома.


    Похожие проекты

    Ипотека и
    рассрочка
    Одноэтажный дом с тремя спальнями SS-113
    Стоимость от:
    7 980 060
    Проект от: 50 850
    Этажей 1
    Санузлы 2
    Спальни 3
    Смотреть
    Ипотека и
    рассрочка
    Urman-169
    Стоимость от:
    16 831 320
    Проект от: 110 700
    Этажей 1
    Санузлы 3
    Спальни 3
    Смотреть
    Ипотека и
    рассрочка
    Теплый дом из СИП панелей — Гарант-1
    Стоимость от:
    3 924 910
    Проект от: 27 900
    Этажей 1
    Санузлы 1
    Спальни 2
    Смотреть
    Ипотека и
    рассрочка
    Одноэтажный дом О-122
    Стоимость от:
    10 898 140
    Проект от: 61 650
    Этажей 1
    Санузлы 2
    Спальни 3
    Смотреть
    Ипотека и
    рассрочка
    Одноэтажный дом по проекту «Ника»
    Стоимость от:
    6 497 040
    Проект от: 41 400
    Этажей 1
    Санузлы 1
    Спальни 3
    Смотреть
    Ипотека и
    рассрочка
    Магдебург-133
    Стоимость от:
    10 767 360
    Проект от: 64 800
    Этажей 2
    Санузлы 3
    Спальни 3
    Смотреть

    Как узнать стоимость дома

    back
    Оставляете заявку
    Вы заполняете форму на сайте или звоните нам. Менеджер Лайвкрафт связывается с вами для уточнения деталей: тип дома, площадь, материалы, участок строительства.
    back
    Консультация и подбор решения
    Наш специалист помогает выбрать оптимальный тип дома и конструкцию с учётом бюджета, сроков и целей — будь то дом для постоянного проживания или дача.
    back
    Расчёт предварительной стоимости
    Инженер делает первичный расчёт стоимости строительства по вашим параметрам: фундамент, коробка, кровля, отделка. Вы получаете смету с разбивкой по этапам.
    back
    Корректировка и утверждение сметы
    При необходимости вносим изменения — например, замену материалов или сокращение этапов. После согласования формируется окончательная фиксированная смета.
    back
    Заключение договора и старт работ
    После утверждения сметы заключаем официальный договор с гарантией. Вы получаете прозрачный график и точную стоимость — без скрытых расходов.

    Заказать конусльтацию по:Каркасный дом К-262

    Фото 1 Каркасный дом К-262


      Наши
      контакты

      Дмитров
      Опорный проезд 28Б
      (индустриальный парк Ниагара)
      9:00 до 18:00