4.9
Рейтинг на основании 120 отзывов
Дмитров
Опорный проезд 28Б
(индустриальный парк Ниагара)
Бренд "Дмитров-Дело" c 2008 года на рынке строительства в Дмитрове
Звоните 9:00 до 18:00 8 (915) 055-33-61
Бренд "Дмитров-Дело" c 2008 года на рынке строительства в Дмитрове

Каркасный дом «Релим»

Стоимость проекта от:
27 000 ₽
БЕСПЛАТНО! ПРИ ЗАКАЗЕ СТРОИТЕЛЬСТВА
Стоимость строительства от:
3 596 400 ₽
Артикул ART-19319
Дата 26.12.2025
Архитектурный стиль Американский/Канадский
Количество надземных этажей 2
Круглогодичное проживание Да
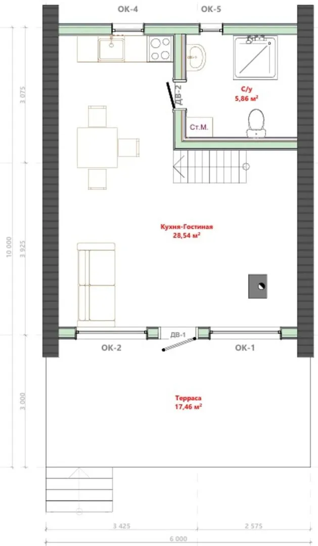
Площадь дома 60 м2
Санузлы 1
Спальни 1

Описание

Выбирая новый дом, вы выбираете образ жизни. Каркасный дом «Релим» воплощает в себе лёгкость и тепло сибирской природа, но при этом держит в основе классический американский/канадский стиль, придающий простор и свободу. Двухэтажная конструкция и двускатная крыша создают уютный внутренний мир, где каждый угол наполнен естественным светом. Благодаря круглогодичному проживанию, вы ощутите тепло даже в самые прохладные дни, а деревянный каркас придаёт дому живую, натуральную атмосферу, которую ценят многие семьи. На первом этаже вас встретит просторный холл, открывающийся на светлую открытую кухню‑гостиную, где каждый момент будет полон вдохновения. На втором этаже — три уютных спальни, в каждой из которых царит спокойствие и гармония. Сторонний выход к террасе приглашает провести вечер в тени зелени, наслаждаясь вечерним закатом: она – ваш личный уголок спокойствия и общения. «Релим» – это дом, где комфорт сочетается с простотой строительства, а американская классика встречается с современными удобствами. Здесь нет лишних деталей, которые только отвлекают внимание. Этот дом создан для тех, кто ценит качественную жизнь, простоту и близость к природе, не жертвуя стилем и уютом. Вы откроете для себя новую главу в своей жизни, где каждый день будет как маленькое чудо.

Характеристики дома

Архитектурный стиль
Автоматизированное регулирование параметров теплоносителя
Да
Балконы/лоджии
Отсутствуют
Чердачное помещение
Нет
Датчики протечки воды
Нет
Эксплуатируемая или зеленая кровля
Нет
Электроснабжение
Центральное
Газоснабжение
Не предусмотрено
Изоляция воздушного шума
Нет
Камин
Нет
Класс энергоэффективности
-
Класс энергосбережения
-
Количество надземных этажей
2
Круглогодичное проживание
Да
Материал кровли
Металлочерепица
Материал перекрытий
Деревянные
Материал внешних стен
Материал внутренних перегородок
Деревянные
Модульное строительство с конструкциями заводского изготовления
Нет
Объем надземной части
272 м3
Основной материал фасадов
Дерево
Отопление
Индивидуальное
Площадь дома
60 м2
Площадь застройки
69 м2
Подвальное помещение
Нет
Показатель компактности здания
-
Приборы учета тепловой энергии
Да
Пристроенный гараж/крытая автостоянка
Нет
Противопожарная система
Нет
Санузлы
1
Совмещенная кухня-гостиная
Да
Спальни
1
Терраса
Да
Тип фундамента
Свайный
Тип кровли
Толщина внешних стен
200 мм
Толщина внутренних перегородок
150 мм
Улучшенные шумовые характеристики
Нет
Вентиляция
Принудительная
Веранда
Нет
Водоотведение
Локальные очистные сооружения
Водоснабжение
Индивидуальное
Высота дома
6.56 м
Высота потолков
2.5 м

Планировка

Фасад дома

Александр

Закажите выезд инженера

Александр

Выездной инженер
Закажите выезд инженера для точной диагностики и профессиональной консультации по инженерным системам. Специалист приедет в удобное время, проведёт осмотр, рассчитает стоимость работ и подберёт оптимальные решения для вашего дома.


    Похожие проекты

    Ипотека и
    рассрочка
    Арина
    Стоимость от:
    5 881 920
    Проект от: 43 200
    Этажей 1
    Санузлы 1
    Спальни 3
    Смотреть
    Ипотека и
    рассрочка
    Каркасный дом В-50-120
    Стоимость от:
    4 378 920
    Проект от: 32 850
    Этажей 2
    Санузлы 1
    Спальни 3
    Смотреть
    Ипотека и
    рассрочка
    Д-201
    Стоимость от:
    10 982 400
    Проект от: 72 000
    Этажей 2
    Санузлы 2
    Спальни 4
    Смотреть
    Ипотека и
    рассрочка
    Одноэтажный дом К-220
    Стоимость от:
    15 395 160
    Проект от: 98 100
    Этажей 1
    Санузлы 2
    Спальни 3
    Смотреть
    Ипотека и
    рассрочка
    Одноэтажный дом 90 кв.м КБ-054
    Стоимость от:
    6 765 000
    Проект от: 40 500
    Этажей 1
    Санузлы 1
    Спальни 3
    Смотреть
    Ипотека и
    рассрочка
    Твоя территория Фёдоровское серия 1
    Стоимость от:
    10 605 100
    Проект от: 69 750
    Этажей 1
    Санузлы 3
    Спальни 4
    Смотреть

    Как узнать стоимость дома

    back
    Оставляете заявку
    Вы заполняете форму на сайте или звоните нам. Менеджер Лайвкрафт связывается с вами для уточнения деталей: тип дома, площадь, материалы, участок строительства.
    back
    Консультация и подбор решения
    Наш специалист помогает выбрать оптимальный тип дома и конструкцию с учётом бюджета, сроков и целей — будь то дом для постоянного проживания или дача.
    back
    Расчёт предварительной стоимости
    Инженер делает первичный расчёт стоимости строительства по вашим параметрам: фундамент, коробка, кровля, отделка. Вы получаете смету с разбивкой по этапам.
    back
    Корректировка и утверждение сметы
    При необходимости вносим изменения — например, замену материалов или сокращение этапов. После согласования формируется окончательная фиксированная смета.
    back
    Заключение договора и старт работ
    После утверждения сметы заключаем официальный договор с гарантией. Вы получаете прозрачный график и точную стоимость — без скрытых расходов.

    Заказать конусльтацию по:Каркасный дом «Релим»

    Фото 1 Каркасный дом «Релим»


      Наши
      контакты

      Дмитров
      Опорный проезд 28Б
      (индустриальный парк Ниагара)
      9:00 до 18:00

      Корзина