4.9
Рейтинг на основании 120 отзывов
Дмитров
Опорный проезд 28Б
(индустриальный парк Ниагара)
Бренд "Дмитров-Дело" c 2008 года на рынке строительства в Дмитрове
Звоните 9:00 до 18:00 8 (915) 055-33-61
Бренд "Дмитров-Дело" c 2008 года на рынке строительства в Дмитрове

Каркасный дом Шведский 99

Стоимость проекта от:
58 950 ₽
БЕСПЛАТНО! ПРИ ЗАКАЗЕ СТРОИТЕЛЬСТВА
Стоимость строительства от:
7 697 040 ₽
Артикул ART-20544
Дата 26.12.2025
Архитектурный стиль Классический
Количество надземных этажей 2
Круглогодичное проживание Да
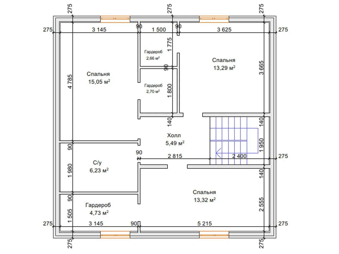
Площадь дома 131 м2
Санузлы 2
Спальни 4

Описание

Каркасный дом **«Шведский 99»** — это воплощение традиционной европейской элегантности, созданное для тех, кто ценит уют и надёжность. Его двухэтажная планировка в классическом стиле, украшенная строгой деревянной кладкой и ажурной двускатной крышей, создаёт ощущение домашнего уюта даже в полной автономности. Выстроенный из качественного деревянного каркаса, дом гармонично вписывается в любой природный пейзаж, при этом оставаясь энергоэффективным и пригодным для круглогодичного проживания. Просторные комнаты с обилием света и тёплой деревянной отделкой позволяют вам насладиться комфортом и тишиной, а отсутствие балконов, лоджей и веранд делает интерьер более строгим и одновременно изящным. Особое внимание стоит уделить просторной террасе, открытой площадке, где можно устроить уютный столик для завтраков на рассвете, а вечером насладиться звёздным небом и ароматом свежих полей. Дом обустроен так, чтобы каждый уголок был функционален и одновременно мило смотрелся: открытая кухня, светлые коридоры, уютные спальни. Вместе с этим, в доме нет прикладного гаража или крытой автопарковки, что позволяет вам открыть пространство для новых идей в дизайне экстерьера и оставить место для сада, огорода или мини‑поляника. Если вы ищете место, где каждый день начинается и заканчивается в теплом, гармоничном доме, где классический стиль встречается с современными материалами и комфортом, **«Шведский 99»** ждет вас. Это не просто жильё, а стиль жизни: сочетание изящества, практичности и уюта, которое станет вашим личным убежищем от суеты большого города.

Характеристики дома

Архитектурный стиль
Автоматизированное регулирование параметров теплоносителя
Да
Балконы/лоджии
Отсутствуют
Чердачное помещение
Нет
Датчики протечки воды
Нет
Эксплуатируемая или зеленая кровля
Нет
Электроснабжение
Центральное
Газоснабжение
Центральное
Изоляция воздушного шума
Да
Камин
Нет
Класс энергоэффективности
-
Класс энергосбережения
-
Количество надземных этажей
2
Круглогодичное проживание
Да
Материал кровли
Металлические листовые гофрированные профили
Материал перекрытий
Деревянные
Материал внешних стен
Материал внутренних перегородок
Деревянные
Модульное строительство с конструкциями заводского изготовления
Нет
Объем надземной части
-
Основной материал фасадов
Дерево
Отопление
Индивидуальное
Площадь дома
131 м2
Площадь застройки
106 м2
Подвальное помещение
Нет
Показатель компактности здания
-
Приборы учета тепловой энергии
Нет
Пристроенный гараж/крытая автостоянка
Нет
Противопожарная система
Нет
Санузлы
2
Совмещенная кухня-гостиная
Да
Спальни
4
Терраса
Да
Тип фундамента
Свайный
Тип кровли
Толщина внешних стен
300 мм
Толщина внутренних перегородок
180 мм
Улучшенные шумовые характеристики
Да
Вентиляция
3 варианта
Веранда
Нет
Водоотведение
2 варианта
Водоснабжение
2 варианта
Высота дома
8 м
Высота потолков
3 м

Планировка

Фасад дома

Александр

Закажите выезд инженера

Александр

Выездной инженер
Закажите выезд инженера для точной диагностики и профессиональной консультации по инженерным системам. Специалист приедет в удобное время, проведёт осмотр, рассчитает стоимость работ и подберёт оптимальные решения для вашего дома.


    Похожие проекты

    Ипотека и
    рассрочка
    БарнХаус «Просторный». Проект 60-23КД4.
    Стоимость от:
    6 984 780
    Проект от: 51 300
    Этажей 1
    Санузлы 2
    Спальни 3
    Смотреть
    Ипотека и
    рассрочка
    Дом с двухскатной крышей и двумя спальнями
    Стоимость от:
    8 023 400
    Проект от: 49 500
    Этажей 1
    Санузлы 1
    Спальни 2
    Смотреть
    Ипотека и
    рассрочка
    Карабула
    Стоимость от:
    12 334 080
    Проект от: 84 150
    Этажей 2
    Санузлы 2
    Спальни 2
    Смотреть
    Ипотека и
    рассрочка
    Авторский проект «Памир»
    Стоимость от:
    8 520 480
    Проект от: 54 900
    Этажей 2
    Санузлы 2
    Спальни 5
    Смотреть
    Ипотека и
    рассрочка
    Проект №298
    Стоимость от:
    9 994 320
    Проект от: 64 350
    Этажей 2
    Санузлы 3
    Спальни 4
    Смотреть
    Ипотека и
    рассрочка
    Загородный дом ВС-118
    Стоимость от:
    28 279 680
    Проект от: 185 400
    Этажей 2
    Санузлы 3
    Спальни 4
    Смотреть

    Как узнать стоимость дома

    back
    Оставляете заявку
    Вы заполняете форму на сайте или звоните нам. Менеджер Лайвкрафт связывается с вами для уточнения деталей: тип дома, площадь, материалы, участок строительства.
    back
    Консультация и подбор решения
    Наш специалист помогает выбрать оптимальный тип дома и конструкцию с учётом бюджета, сроков и целей — будь то дом для постоянного проживания или дача.
    back
    Расчёт предварительной стоимости
    Инженер делает первичный расчёт стоимости строительства по вашим параметрам: фундамент, коробка, кровля, отделка. Вы получаете смету с разбивкой по этапам.
    back
    Корректировка и утверждение сметы
    При необходимости вносим изменения — например, замену материалов или сокращение этапов. После согласования формируется окончательная фиксированная смета.
    back
    Заключение договора и старт работ
    После утверждения сметы заключаем официальный договор с гарантией. Вы получаете прозрачный график и точную стоимость — без скрытых расходов.

    Заказать конусльтацию по:Каркасный дом Шведский 99

    Фото 1 Каркасный дом Шведский 99


      Наши
      контакты

      Дмитров
      Опорный проезд 28Б
      (индустриальный парк Ниагара)
      9:00 до 18:00

      Корзина