4.9
Рейтинг на основании 120 отзывов
Дмитров
Опорный проезд 28Б
(индустриальный парк Ниагара)
Бренд "Дмитров-Дело" c 2008 года на рынке строительства в Дмитрове
Звоните 9:00 до 18:00 8 (915) 055-33-61
Бренд "Дмитров-Дело" c 2008 года на рынке строительства в Дмитрове

Каркасный дом Спенсер v.43473

Стоимость проекта от:
70 200 ₽
БЕСПЛАТНО! ПРИ ЗАКАЗЕ СТРОИТЕЛЬСТВА
Стоимость строительства от:
10 347 840 ₽
Артикул ART-18359
Дата 26.12.2025
Архитектурный стиль Американский/Канадский
Количество надземных этажей 2
Круглогодичное проживание Да
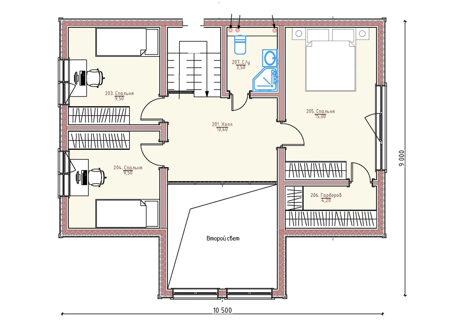
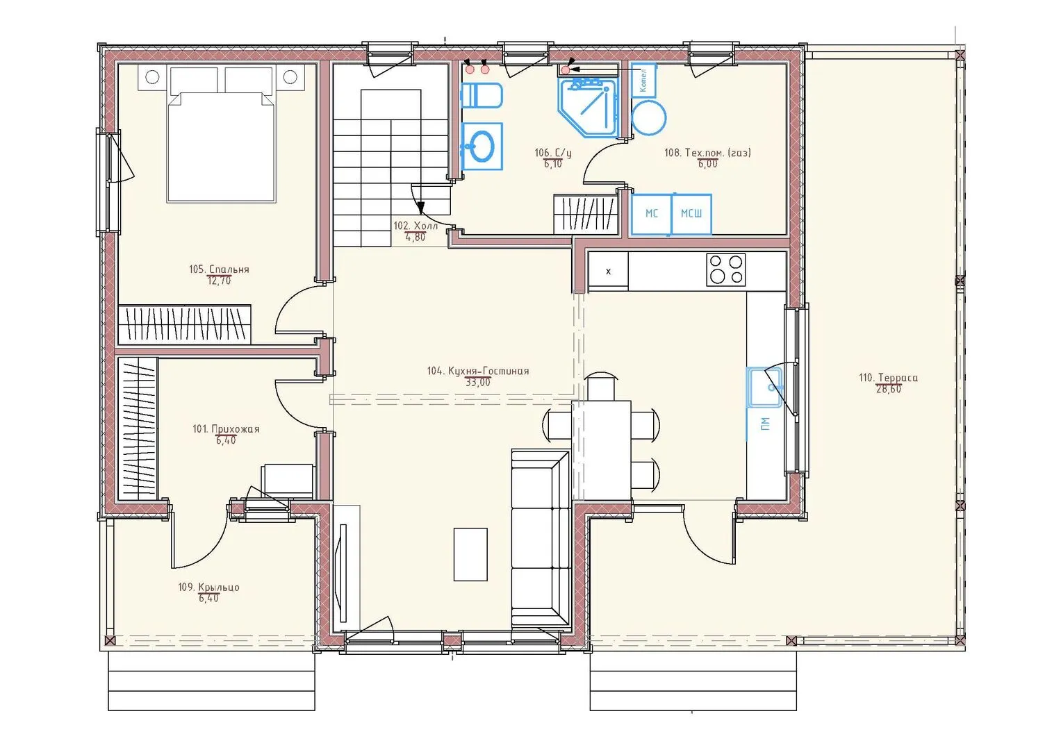
Площадь дома 156 м2
Санузлы 2
Спальни 4

Описание

Здесь, в сердце уютного уголка природы, стоит деревянный каркасный дом Спенсер V‑43473 – настоящий шедевр сочетания традиций и современной инженерии. С двумя надземными этажами и многощипковой кровлей вы получите идеальный баланс приватности и светопропускания: просторные комнаты, большие окна и тихий покой, где каждый день становится маленьким праздником. Характеристика «Круглогодичное проживание» говорит о том, что этот дом рассчитан на все сезоны – от зимних уютных вечеров до летних барбекю на свежем воздухе. Архитектурный стиль – американский/канадский – воплощает в себе лаконичность и функциональность: простые линии, открытые планировки и природные материалы создают атмосферу гармонии и спокойствия. Вырезанные из дерева стены придают теплоту, а просторная терраса приглашает вас проводить время на свежем воздухе, наслаждаясь панорамой и видом на окружение. Протяжённые балконы и верандные павильоны здесь не предусмотрены, но это лишь подчеркивает фокус на открытой, обширной террасе, где вы можете устроить пикник, расслабиться в шезлонге или наблюдать за звездами. Дом спроектирован как идеальный выбор для семей, ищущих сочетание уюта, функциональности и эстетики. Отсутствие прикрытых гаражей и чердачных помещений не умаляет его преимуществ: пространство внутри легко адаптируется под спальни, кабинет, игровую комнату или творческий уголок. Простой, но элегантный дизайн, экологичные материалы и продуманная планировка делают Спенсер V‑43473 уникальным предложением для тех, кто ценит качество, комфорт и связь с природой. В этот дом вы войдёте, а в дом войдёте с удовольствием, желая вернуться снова и снова.

Характеристики дома

Архитектурный стиль
Автоматизированное регулирование параметров теплоносителя
Да
Балконы/лоджии
Отсутствуют
Чердачное помещение
Нет
Датчики протечки воды
Нет
Эксплуатируемая или зеленая кровля
Нет
Электроснабжение
Индивидуальное
Газоснабжение
Не предусмотрено
Изоляция воздушного шума
Да
Камин
Нет
Класс энергоэффективности
A
Класс энергосбережения
A+
Количество надземных этажей
2
Круглогодичное проживание
Да
Материал кровли
Металлочерепица
Материал перекрытий
Деревянные
Материал внешних стен
Материал внутренних перегородок
Деревянные
Модульное строительство с конструкциями заводского изготовления
Нет
Объем надземной части
749 м3
Основной материал фасадов
Фасадная плитка
Отопление
Индивидуальное
Площадь дома
156 м2
Площадь застройки
117 м2
Подвальное помещение
Нет
Показатель компактности здания
1
Приборы учета тепловой энергии
Нет
Пристроенный гараж/крытая автостоянка
Нет
Противопожарная система
Нет
Санузлы
2
Совмещенная кухня-гостиная
Да
Спальни
4
Терраса
Да
Тип фундамента
Свайно-ростверковый
Тип кровли
Толщина внешних стен
225 мм
Толщина внутренних перегородок
200 мм
Улучшенные шумовые характеристики
Да
Вентиляция
2 варианта
Веранда
Нет
Водоотведение
Локальные очистные сооружения
Водоснабжение
Индивидуальное
Высота дома
7 м
Высота потолков
2.6 м

Планировка

Фасад дома

Александр

Закажите выезд инженера

Александр

Выездной инженер
Закажите выезд инженера для точной диагностики и профессиональной консультации по инженерным системам. Специалист приедет в удобное время, проведёт осмотр, рассчитает стоимость работ и подберёт оптимальные решения для вашего дома.


    Похожие проекты

    Ипотека и
    рассрочка
    Барн 3/009
    Стоимость от:
    5 338 080
    Проект от: 43 200
    Этажей 1
    Санузлы 1
    Спальни 2
    Смотреть
    Ипотека и
    рассрочка
    Загородный дом «Кристел»
    Стоимость от:
    8 978 970
    Проект от: 72 450
    Этажей 1
    Санузлы 2
    Спальни 3
    Смотреть
    Ипотека и
    рассрочка
    Загородный дом СД130
    Стоимость от:
    9 079 200
    Проект от: 58 500
    Этажей 2
    Санузлы 2
    Спальни 5
    Смотреть
    Ипотека и
    рассрочка
    ЭС-82
    Стоимость от:
    10 024 520
    Проект от: 56 700
    Этажей 1
    Санузлы 1
    Спальни 2
    Смотреть
    Ипотека и
    рассрочка
    QF-127
    Стоимость от:
    7 676 240
    Проект от: 54 900
    Этажей 1
    Санузлы 2
    Спальни 3
    Смотреть
    Ипотека и
    рассрочка
    23ЕК04.00 KAUSHTA
    Стоимость от:
    4 003 560
    Проект от: 32 400
    Этажей 1
    Санузлы 1
    Спальни 2
    Смотреть

    Как узнать стоимость дома

    back
    Оставляете заявку
    Вы заполняете форму на сайте или звоните нам. Менеджер Лайвкрафт связывается с вами для уточнения деталей: тип дома, площадь, материалы, участок строительства.
    back
    Консультация и подбор решения
    Наш специалист помогает выбрать оптимальный тип дома и конструкцию с учётом бюджета, сроков и целей — будь то дом для постоянного проживания или дача.
    back
    Расчёт предварительной стоимости
    Инженер делает первичный расчёт стоимости строительства по вашим параметрам: фундамент, коробка, кровля, отделка. Вы получаете смету с разбивкой по этапам.
    back
    Корректировка и утверждение сметы
    При необходимости вносим изменения — например, замену материалов или сокращение этапов. После согласования формируется окончательная фиксированная смета.
    back
    Заключение договора и старт работ
    После утверждения сметы заключаем официальный договор с гарантией. Вы получаете прозрачный график и точную стоимость — без скрытых расходов.

    Заказать конусльтацию по:Каркасный дом Спенсер v.43473

    Фото 1 Каркасный дом Спенсер v.43473


      Наши
      контакты

      Дмитров
      Опорный проезд 28Б
      (индустриальный парк Ниагара)
      9:00 до 18:00

      Корзина