4.9
Рейтинг на основании 120 отзывов
Дмитров
Опорный проезд 28Б
(индустриальный парк Ниагара)
Бренд "Дмитров-Дело" c 2008 года на рынке строительства в Дмитрове
Звоните 9:00 до 18:00 8 (915) 055-33-61
Бренд "Дмитров-Дело" c 2008 года на рынке строительства в Дмитрове

Каркасный дом «Вильфор»

Стоимость проекта от:
63 450 ₽
БЕСПЛАТНО! ПРИ ЗАКАЗЕ СТРОИТЕЛЬСТВА
Стоимость строительства от:
8 454 840 ₽
Артикул ART-18973
Дата 26.12.2025
Архитектурный стиль Европейский
Количество надземных этажей 2
Круглогодичное проживание Да
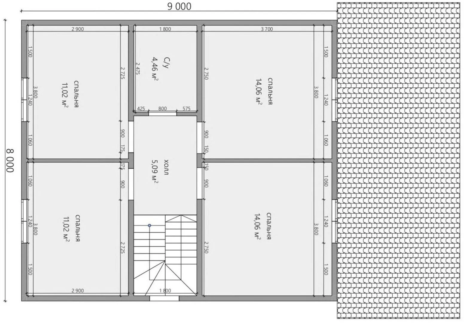
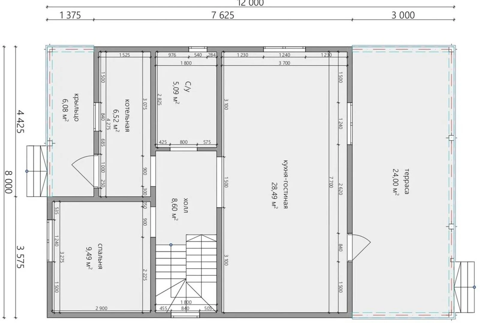
Площадь дома 141 м2
Санузлы 2
Спальни 5

Описание

**Каркасный дом «Вильфор»** – это воплощение европейского стиля, олицетворяющее гармонию между традициями и современным комфортом. Его два надземных этажа открывают простор, где каждый сантиметр наполнен теплом и светом. Круглогодичное проживание здесь не просто возможно, оно становится привычкой: изогнутые балки, качественные окна и утепленные деревянные стены создают уют даже в самые холодные дни. Несмотря на нежный внешний облик из классических деревянных рам, «Вильфор» сочетает практичность и эстетику. Без лишних балконов и веранд, но с просторной террасой, он предлагает идеальное место для вечерних посиделок и семейных пикников. Двускатная крыша не только придает дому выразительный силуэт, но и защищает от непогод, обеспечивая надежность и долговечность. Внутри помещения продумано до мелочей – светлые зоны, открытая планировка, высокие потолки и качественные финальные отделочные работы, которые делают каждый день прожитый в доме настоящим удовольствием. Выбирая «Вильфор», вы открываете дверь в атмосферу уюта, где каждая деталь подчёркнута в духе европейского дизайна, а дом становится безопасным и удобным убежищем для всей семьи. Приглашаем вас окунуться в мир тепла и комфорта, который ждёт вас уже сегодня.

Характеристики дома

Архитектурный стиль
Автоматизированное регулирование параметров теплоносителя
Нет
Балконы/лоджии
Отсутствуют
Чердачное помещение
Нет
Датчики протечки воды
Нет
Эксплуатируемая или зеленая кровля
Нет
Электроснабжение
Центральное
Газоснабжение
Не предусмотрено
Изоляция воздушного шума
Да
Камин
Нет
Класс энергоэффективности
-
Класс энергосбережения
-
Количество надземных этажей
2
Круглогодичное проживание
Да
Материал кровли
Металлочерепица
Материал перекрытий
Деревянные
Материал внешних стен
Материал внутренних перегородок
Деревянные
Модульное строительство с конструкциями заводского изготовления
Нет
Объем надземной части
510 м3
Основной материал фасадов
Дерево
Отопление
Индивидуальное
Площадь дома
141 м2
Площадь застройки
122 м2
Подвальное помещение
Нет
Показатель компактности здания
-
Приборы учета тепловой энергии
Нет
Пристроенный гараж/крытая автостоянка
Нет
Противопожарная система
Нет
Санузлы
2
Совмещенная кухня-гостиная
Да
Спальни
5
Терраса
Да
Тип фундамента
Свайный
Тип кровли
Толщина внешних стен
150 мм
Толщина внутренних перегородок
150 мм
Улучшенные шумовые характеристики
Да
Вентиляция
Принудительная
Веранда
Нет
Водоотведение
Локальные очистные сооружения
Водоснабжение
Индивидуальное
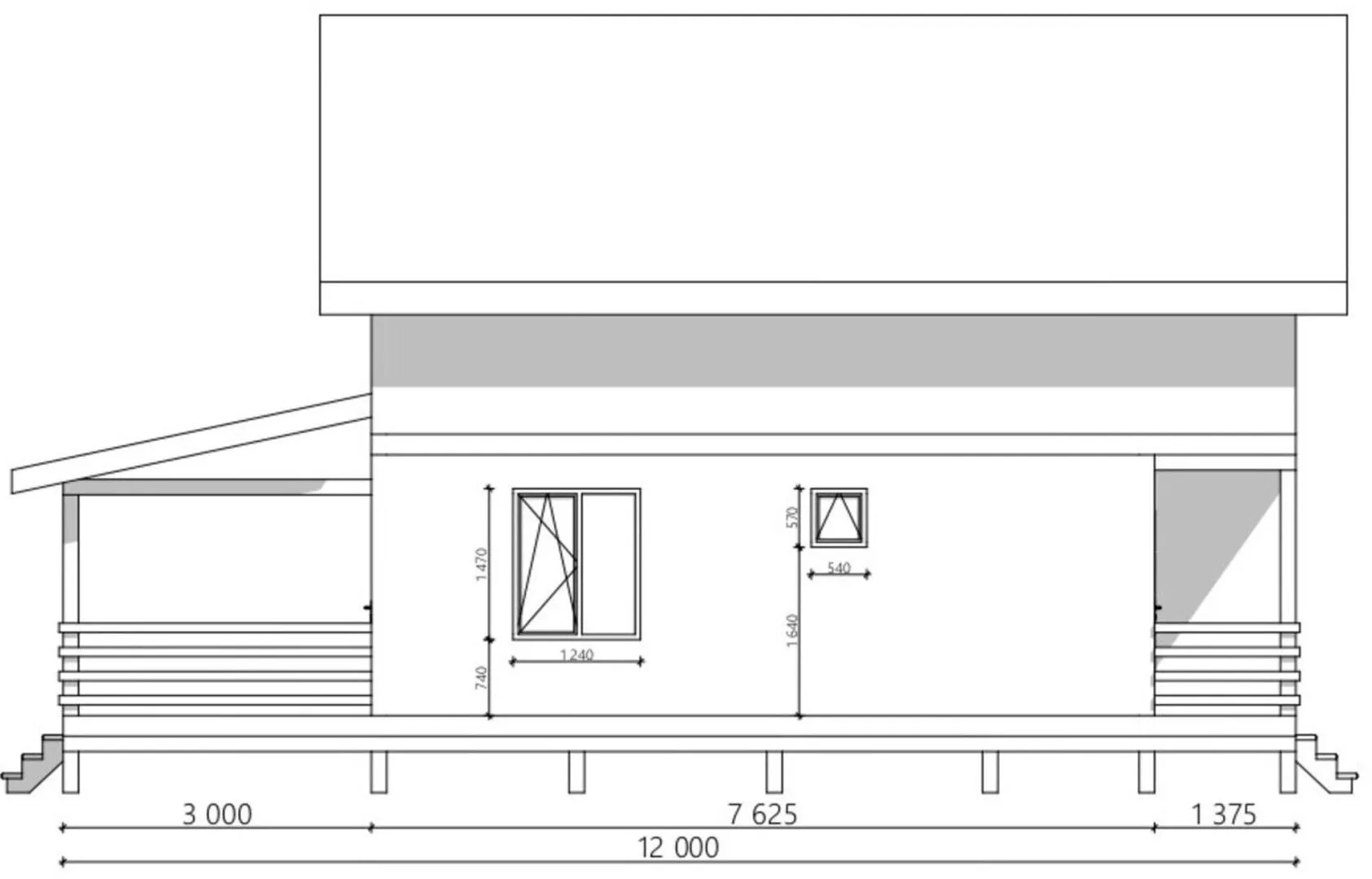
Высота дома
7.09 м
Высота потолков
2.5 м

Планировка

Фасад дома

Александр

Закажите выезд инженера

Александр

Выездной инженер
Закажите выезд инженера для точной диагностики и профессиональной консультации по инженерным системам. Специалист приедет в удобное время, проведёт осмотр, рассчитает стоимость работ и подберёт оптимальные решения для вашего дома.


    Похожие проекты

    Ипотека и
    рассрочка
    Одноэтажный дом ELLIS
    Стоимость от:
    5 339 620
    Проект от: 31 950
    Этажей 1
    Санузлы 1
    Спальни 3
    Смотреть
    Ипотека и
    рассрочка
    Современный одноэтажный коттедж с встроенным гаражом S3-162-1 (Zx160)
    Стоимость от:
    15 616 040
    Проект от: 90 900
    Этажей 1
    Санузлы 3
    Спальни 3
    Смотреть
    Ипотека и
    рассрочка
    Мансардный дом «Пилион 1.0»
    Стоимость от:
    7 822 080
    Проект от: 50 400
    Этажей 2
    Санузлы 2
    Спальни 3
    Смотреть
    Ипотека и
    рассрочка
    Дом из бруса БД-45
    Стоимость от:
    12 450 020
    Проект от: 72 450
    Этажей 1
    Санузлы 2
    Спальни 4
    Смотреть
    Ипотека и
    рассрочка
    Евпатория 1.1
    Стоимость от:
    6 704 640
    Проект от: 43 200
    Этажей 2
    Санузлы 1
    Спальни 2
    Смотреть
    Ипотека и
    рассрочка
    Васту Дом
    Стоимость от:
    5 547 520
    Проект от: 34 200
    Этажей 1
    Санузлы 1
    Спальни 2
    Смотреть

    Как узнать стоимость дома

    back
    Оставляете заявку
    Вы заполняете форму на сайте или звоните нам. Менеджер Лайвкрафт связывается с вами для уточнения деталей: тип дома, площадь, материалы, участок строительства.
    back
    Консультация и подбор решения
    Наш специалист помогает выбрать оптимальный тип дома и конструкцию с учётом бюджета, сроков и целей — будь то дом для постоянного проживания или дача.
    back
    Расчёт предварительной стоимости
    Инженер делает первичный расчёт стоимости строительства по вашим параметрам: фундамент, коробка, кровля, отделка. Вы получаете смету с разбивкой по этапам.
    back
    Корректировка и утверждение сметы
    При необходимости вносим изменения — например, замену материалов или сокращение этапов. После согласования формируется окончательная фиксированная смета.
    back
    Заключение договора и старт работ
    После утверждения сметы заключаем официальный договор с гарантией. Вы получаете прозрачный график и точную стоимость — без скрытых расходов.

    Заказать конусльтацию по:Каркасный дом «Вильфор»

    Фото 1 Каркасный дом «Вильфор»


      Наши
      контакты

      Дмитров
      Опорный проезд 28Б
      (индустриальный парк Ниагара)
      9:00 до 18:00

      Корзина