4.9
Рейтинг на основании 120 отзывов
Дмитров
Опорный проезд 28Б
(индустриальный парк Ниагара)
Бренд "Дмитров-Дело" c 2008 года на рынке строительства в Дмитрове
Звоните 9:00 до 18:00 8 (915) 055-33-61
Бренд "Дмитров-Дело" c 2008 года на рынке строительства в Дмитрове

Каркасный одноэтажный дом 20ЧА04.00

Стоимость проекта от:
34 650 ₽
Стоимость строительства от:
4 450 985 ₽
Артикул ART-6546
Дата 26.12.2025
Архитектурный стиль Барнхаус
Количество надземных этажей 1
Круглогодичное проживание Да
Площадь дома 77 м2
Санузлы 1
Спальни 2

Описание

Идеальная симфония сочетания традиций и современности – это наш одноэтажный каркасный дом в стиле бакХаус. Его деревянная оболочка, украшенная тонкими рамами, мягко обнимает просторное жизнеобеспечиваемое пространство, где каждая деталь продумана для комфорта и уюта. Солнечные лучи проникают в открытые зоны, подчёркивая тепло естественных материалов и создавая атмосферу, словно вы живёте в сердце природы, но не отрываясь от городских удобств. Отсутствие балконов и веранд не мешает дому раскрывать свои уникальные черты: огромная терраса приглашает устраивать вечерние посиделки с друзьями, а чердачное помещение можно превратить в стильную мастерскую, домашний кабинет или уютный детский уголок. Двускатная крыша придаёт фасаду элегантную простоту, а изящные деревянные стены легко вписываются в любой ландшафт, от городских дворов до загородных участков. Благодаря одноэтажной планировке, дом становится идеальным для круглогодичного проживания, обеспечивая удобный доступ ко всем помещениям и простое решение вопросов хранения и обслуживания. Выбирая наш дом, вы инвестируете в пространство, где каждая деталь работает на ваше благополучие: от продуманной вентиляции и теплоизоляции до гибкого использования чердачей и террасы. Это место, где можно не только жить, но и создавать воспоминания: от завтраков на террасе до романтических вечеров за уютным камином. Окунитесь в атмосферу Barnhouse, где природа встречается с комфортом, а каждый уголок радует глаз и сердце.

Характеристики дома

Архитектурный стиль
Барнхаус
Автоматизированное регулирование параметров теплоносителя
Нет
Балконы/лоджии
Отсутствуют
Чердачное помещение
Да
Датчики протечки воды
Нет
Эксплуатируемая или зеленая кровля
Нет
Электроснабжение
Индивидуальное
Газоснабжение
Индивидуальное
Изоляция воздушного шума
Нет
Камин
Нет
Класс энергоэффективности
-
Класс энергосбережения
-
Количество надземных этажей
1
Круглогодичное проживание
Да
Материал кровли
Металлочерепица
Материал перекрытий
Деревянные
Материал внешних стен
Деревянные каркасные
Материал внутренних перегородок
Деревянные
Модульное строительство с конструкциями заводского изготовления
Нет
Объем надземной части
241 м3
Основной материал фасадов
Фальцевая кровля кликфальц
Отопление
Индивидуальное
Площадь дома
77 м2
Площадь застройки
91 м2
Подвальное помещение
Нет
Показатель компактности здания
-
Приборы учета тепловой энергии
Нет
Пристроенный гараж/крытая автостоянка
Нет
Противопожарная система
Нет
Санузлы
1
Совмещенная кухня-гостиная
Да
Спальни
2
Терраса
Да
Тип фундамента
Свайно-винтовой
Тип кровли
Двускатная
Толщина внешних стен
200 мм
Толщина внутренних перегородок
150 мм
Улучшенные шумовые характеристики
Нет
Вентиляция
3 варианта
Веранда
Нет
Водоотведение
Локальные очистные сооружения
Водоснабжение
Индивидуальное
Высота дома
4.55 м
Высота потолков
2.5 м

Планировка

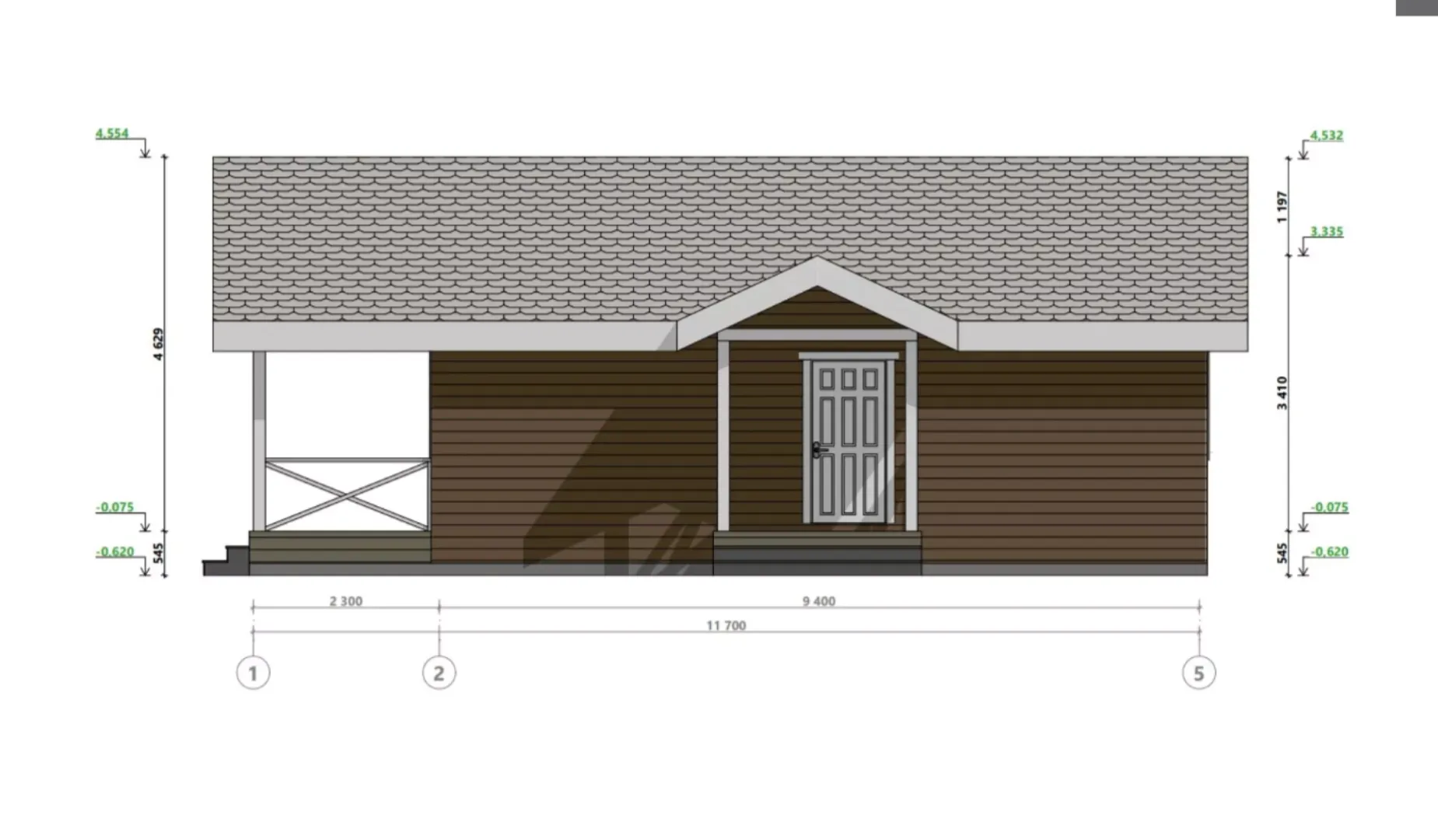
Фасад дома

Александр

Закажите выезд инженера

Александр

Выездной инженер
Закажите выезд инженера для точной диагностики и профессиональной консультации по инженерным системам. Специалист приедет в удобное время, проведёт осмотр, рассчитает стоимость работ и подберёт оптимальные решения для вашего дома.


    Похожие проекты

    Ипотека и
    рассрочка
    Одноэтажный дом в современном стиле THS-0014
    Стоимость от:
    8 940 580
    Проект от: 53 550
    Этажей 1
    Санузлы 2
    Спальни 3
    Смотреть
    Ипотека и
    рассрочка
    Меркурий 80
    Стоимость от:
    5 564 680
    Проект от: 33 300
    Этажей 1
    Санузлы 2
    Спальни 3
    Смотреть
    Ипотека и
    рассрочка
    Дом из газобетона Вали
    Стоимость от:
    5 418 160
    Проект от: 30 600
    Этажей 1
    Санузлы 2
    Спальни 2
    Смотреть
    Ипотека и
    рассрочка
    ИЖС «Уютное»
    Стоимость от:
    8 048 480
    Проект от: 46 800
    Этажей 1
    Санузлы 2
    Спальни 2
    Смотреть
    Ипотека и
    рассрочка
    Ермак
    Стоимость от:
    8 615 640
    Проект от: 54 900
    Этажей 1
    Санузлы 1
    Спальни 3
    Смотреть
    Ипотека и
    рассрочка
    Двухэтажный дом «КОРТ»
    Стоимость от:
    19 701 120
    Проект от: 120 600
    Этажей 2
    Санузлы 3
    Спальни 5
    Смотреть

    Как узнать стоимость дома

    back
    Оставляете заявку
    Вы заполняете форму на сайте или звоните нам. Менеджер Лайвкрафт связывается с вами для уточнения деталей: тип дома, площадь, материалы, участок строительства.
    back
    Консультация и подбор решения
    Наш специалист помогает выбрать оптимальный тип дома и конструкцию с учётом бюджета, сроков и целей — будь то дом для постоянного проживания или дача.
    back
    Расчёт предварительной стоимости
    Инженер делает первичный расчёт стоимости строительства по вашим параметрам: фундамент, коробка, кровля, отделка. Вы получаете смету с разбивкой по этапам.
    back
    Корректировка и утверждение сметы
    При необходимости вносим изменения — например, замену материалов или сокращение этапов. После согласования формируется окончательная фиксированная смета.
    back
    Заключение договора и старт работ
    После утверждения сметы заключаем официальный договор с гарантией. Вы получаете прозрачный график и точную стоимость — без скрытых расходов.

    Заказать конусльтацию по:Каркасный одноэтажный дом 20ЧА04.00

    Фото 1 Каркасный одноэтажный дом 20ЧА04.00


      Наши
      контакты

      Дмитров
      Опорный проезд 28Б
      (индустриальный парк Ниагара)
      9:00 до 18:00

      Корзина