4.9
Рейтинг на основании 120 отзывов
Дмитров
Опорный проезд 28Б
(индустриальный парк Ниагара)
Бренд "Дмитров-Дело" c 2008 года на рынке строительства в Дмитрове
Звоните 9:00 до 18:00 8 (915) 055-33-61
Бренд "Дмитров-Дело" c 2008 года на рынке строительства в Дмитрове

КД 22-22 «Ленск»

Стоимость проекта от:
38 250 ₽
БЕСПЛАТНО! ПРИ ЗАКАЗЕ СТРОИТЕЛЬСТВА
Стоимость строительства от:
4 927 450 ₽
Артикул ART-6565
Дата 26.12.2025
Архитектурный стиль Скандинавский
Количество надземных этажей 1
Круглогодичное проживание Да
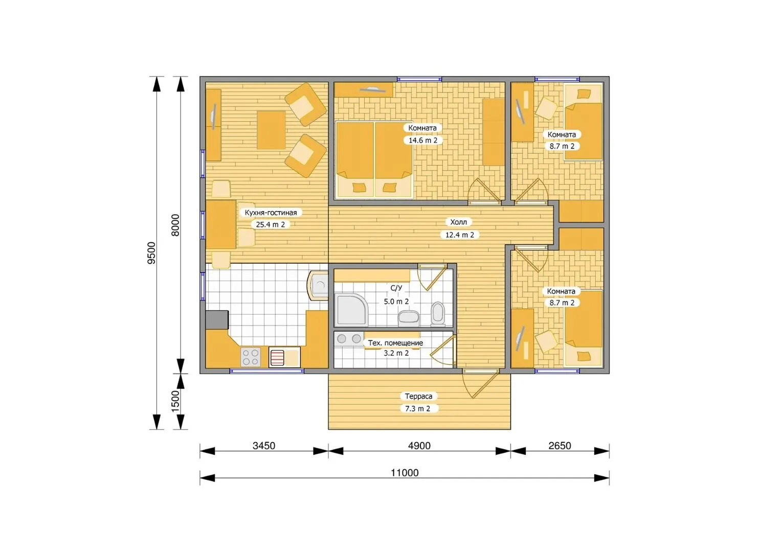
Площадь дома 85 м2
Санузлы 1
Спальни 3

Описание

Идеальное сочетание простоты и современности — дом КД 22‑22 «Ленск», построенный в скандинавском стиле, где каждая деталь пронизана заботой об уюте и функциональности. Благодаря своему одностайному исполнению этот дом легко интегрируется в любой ландшафт: натуральные материалы и приглушённые оттенки создают гармонию с природой вокруг. Круглогодичное проживание становится реальностью благодаря теплому деревянному каркасу и качественной глиняной фасадной отделке, которые обеспечивают отличную звуко- и теплоизоляцию. Внутри вас ждёт просторный холл, в котором свет проникает из открытых окон, а под ним — практичный чердачный этаж, который можно использовать как гостиную, студию или пространство для хранения. Трапецийный двускатный кровельный профиль подчеркивает чистоту линий и придает дому особый шарм. Отсутствие балконов и веранды не мешает почувствовать связь с окружающим пространством: веранды в скандинавском стиле обычно слишком громоздки, в то время как простые, открывшиеся в окно помещения дарят более частую и живую атмосферу. Красивая траса, раскинувшаяся рядом с домом, приглашает к прогулкам, а открытый доступ к лесу или водным объектам делает «Ленск» идеальным выбором для тех, кто ценит простое, но насыщенное жизнью ощущение уединения и свободы. Это дом, где не каждая линия – просто конструкция, а часть вашего дома.

Характеристики дома

Архитектурный стиль
Автоматизированное регулирование параметров теплоносителя
Нет
Балконы/лоджии
Отсутствуют
Чердачное помещение
Да
Датчики протечки воды
Нет
Эксплуатируемая или зеленая кровля
Нет
Электроснабжение
Индивидуальное
Газоснабжение
Не предусмотрено
Изоляция воздушного шума
Нет
Камин
Нет
Класс энергоэффективности
A
Класс энергосбережения
A
Количество надземных этажей
1
Круглогодичное проживание
Да
Материал кровли
Металлочерепица
Материал перекрытий
Деревянные
Материал внешних стен
Материал внутренних перегородок
Деревянные
Модульное строительство с конструкциями заводского изготовления
Нет
Объем надземной части
237 м3
Основной материал фасадов
Дерево
Отопление
2 варианта
Площадь дома
85 м2
Площадь застройки
95 м2
Подвальное помещение
Нет
Показатель компактности здания
1
Приборы учета тепловой энергии
Нет
Пристроенный гараж/крытая автостоянка
Нет
Противопожарная система
Нет
Санузлы
1
Совмещенная кухня-гостиная
Да
Спальни
3
Терраса
Да
Тип фундамента
Свайный
Тип кровли
Толщина внешних стен
150 мм
Толщина внутренних перегородок
100 мм
Улучшенные шумовые характеристики
Да
Вентиляция
2 варианта
Веранда
Нет
Водоотведение
2 варианта
Водоснабжение
2 варианта
Высота дома
4.75 м
Высота потолков
2.7 м

Планировка

Фасад дома

Александр

Закажите выезд инженера

Александр

Выездной инженер
Закажите выезд инженера для точной диагностики и профессиональной консультации по инженерным системам. Специалист приедет в удобное время, проведёт осмотр, рассчитает стоимость работ и подберёт оптимальные решения для вашего дома.


    Похожие проекты

    Ипотека и
    рассрочка
    Проект «Добрыня»
    Стоимость от:
    8 509 560
    Проект от: 58 050
    Этажей 2
    Санузлы 2
    Спальни 3
    Смотреть
    Ипотека и
    рассрочка
    Индивидуальный жилой дом
    Стоимость от:
    11 930 600
    Проект от: 67 500
    Этажей 1
    Санузлы 3
    Спальни 3
    Смотреть
    Ипотека и
    рассрочка
    Двухэтажный проект Визе 118
    Стоимость от:
    8 099 520
    Проект от: 53 100
    Этажей 2
    Санузлы 2
    Спальни 4
    Смотреть
    Ипотека и
    рассрочка
    Каркасный дом Адаль 83
    Стоимость от:
    4 797 815
    Проект от: 37 350
    Этажей 1
    Санузлы 1
    Спальни 2
    Смотреть
    Ипотека и
    рассрочка
    Небольшой одноуровневый частный дом S3-100 (Z191)
    Стоимость от:
    7 959 600
    Проект от: 45 000
    Этажей 1
    Санузлы 1
    Спальни 2
    Смотреть
    Ипотека и
    рассрочка
    Теплый дом из СИП панелей — Гарант-1
    Стоимость от:
    3 924 910
    Проект от: 27 900
    Этажей 1
    Санузлы 1
    Спальни 2
    Смотреть

    Как узнать стоимость дома

    back
    Оставляете заявку
    Вы заполняете форму на сайте или звоните нам. Менеджер Лайвкрафт связывается с вами для уточнения деталей: тип дома, площадь, материалы, участок строительства.
    back
    Консультация и подбор решения
    Наш специалист помогает выбрать оптимальный тип дома и конструкцию с учётом бюджета, сроков и целей — будь то дом для постоянного проживания или дача.
    back
    Расчёт предварительной стоимости
    Инженер делает первичный расчёт стоимости строительства по вашим параметрам: фундамент, коробка, кровля, отделка. Вы получаете смету с разбивкой по этапам.
    back
    Корректировка и утверждение сметы
    При необходимости вносим изменения — например, замену материалов или сокращение этапов. После согласования формируется окончательная фиксированная смета.
    back
    Заключение договора и старт работ
    После утверждения сметы заключаем официальный договор с гарантией. Вы получаете прозрачный график и точную стоимость — без скрытых расходов.

    Заказать конусльтацию по:КД 22-22 «Ленск»

    Фото 1 КД 22-22 «Ленск»


      Наши
      контакты

      Дмитров
      Опорный проезд 28Б
      (индустриальный парк Ниагара)
      9:00 до 18:00

      Корзина