4.9
Рейтинг на основании 120 отзывов
Дмитров
Опорный проезд 28Б
(индустриальный парк Ниагара)
Бренд "Дмитров-Дело" c 2008 года на рынке строительства в Дмитрове
Звоните 9:00 до 18:00 8 (915) 055-33-61
Бренд "Дмитров-Дело" c 2008 года на рынке строительства в Дмитрове

КД «Краснодар №9-22»

Стоимость проекта от:
61 200 ₽
Стоимость строительства от:
8 139 600 ₽
Артикул ART-12583
Дата 25.12.2025
Архитектурный стиль Европейский
Количество надземных этажей 2
Круглогодичное проживание Да
Площадь дома 136 м2
Санузлы 2
Спальни 4

Описание

**Дом «Краснодар №9‑22» – воплощение европейского уюта в живописном уголке.** Величественно возвышается два надземных этажа, каждый из них пронизан светом, а архитектурный стиль, вдохновленный классическим европейским обликом, делает его истинным центром эстетики и гармонии. Внутреннее пространство идеально подходит для круглогодичного проживания: здесь вы ощутите тепло своего дома даже в самые прохладные дни, благодаря качественной теплоизоляции и надежной многощипковой крыше, которая держит прохладу и защищает от дождя, ветра и снега. Дом построен на прочном деревянном каркасе, что гарантирует натуральную вентиляцию и долгий срок эксплуатации. Окружительный дизайн, без балконов и веранд, подчеркивает простоту и лаконичность, а открытая терраса внизу создаст идеальное место для прогулок, отдыха на свежем воздухе и выращивания любимых растений. Здесь нет лишних пространств – каждый уголок задуман до мелочей для комфорта и уюта вашего семейного гнездышка. Если вы ищете место, где сочетание классической эстетики, натуральных материалов и практичности создают идеальное пространство для жизни, «Краснодар №9‑22» подарит вам именно это.

Характеристики дома

Архитектурный стиль
Европейский
Автоматизированное регулирование параметров теплоносителя
Нет
Балконы/лоджии
Отсутствуют
Чердачное помещение
Нет
Датчики протечки воды
Нет
Эксплуатируемая или зеленая кровля
Нет
Электроснабжение
Центральное
Газоснабжение
Не предусмотрено
Изоляция воздушного шума
Да
Камин
Нет
Класс энергоэффективности
A
Класс энергосбережения
A
Количество надземных этажей
2
Круглогодичное проживание
Да
Материал кровли
Металлочерепица
Материал перекрытий
Деревянные
Материал внешних стен
Деревянные каркасные
Материал внутренних перегородок
Деревянные
Модульное строительство с конструкциями заводского изготовления
Нет
Объем надземной части
410 м3
Основной материал фасадов
Дерево
Отопление
Индивидуальное
Площадь дома
136 м2
Площадь застройки
90 м2
Подвальное помещение
Нет
Показатель компактности здания
0.98
Приборы учета тепловой энергии
Нет
Пристроенный гараж/крытая автостоянка
Нет
Противопожарная система
Нет
Санузлы
2
Совмещенная кухня-гостиная
Нет
Спальни
4
Терраса
Да
Тип фундамента
Свайно-винтовой
Тип кровли
Многощипковая
Толщина внешних стен
150 мм
Толщина внутренних перегородок
150 мм
Улучшенные шумовые характеристики
Да
Вентиляция
Естественная
Веранда
Нет
Водоотведение
Локальные очистные сооружения
Водоснабжение
Индивидуальное
Высота дома
7.61 м
Высота потолков
2.7 м

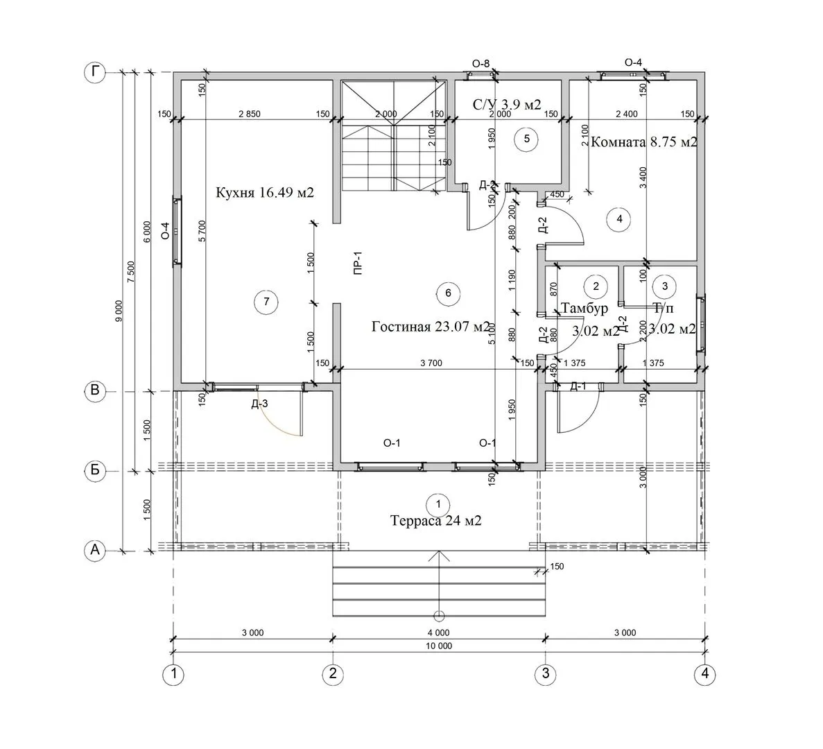
Планировка

Фасад дома

Александр

Закажите выезд инженера

Александр

Выездной инженер
Закажите выезд инженера для точной диагностики и профессиональной консультации по инженерным системам. Специалист приедет в удобное время, проведёт осмотр, рассчитает стоимость работ и подберёт оптимальные решения для вашего дома.


    Похожие проекты

    Ипотека и
    рассрочка
    Одноэтажный дом 100м2
    Стоимость от:
    8 039 020
    Проект от: 45 450
    Этажей 1
    Санузлы 1
    Спальни 3
    Смотреть
    Ипотека и
    рассрочка
    Жилой дом
    Стоимость от:
    7 149 560
    Проект от: 44 100
    Этажей 1
    Санузлы 2
    Спальни 3
    Смотреть
    Ипотека и
    рассрочка
    ЭДЕМ каменный с гаражом
    Стоимость от:
    10 381 140
    Проект от: 66 150
    Этажей 1
    Санузлы 2
    Спальни 3
    Смотреть
    Ипотека и
    рассрочка
    Одноэтажный дом ЦМС Руан
    Стоимость от:
    5 084 640
    Проект от: 32 400
    Этажей 1
    Санузлы 1
    Спальни 3
    Смотреть
    Ипотека и
    рассрочка
    Барн-хаус
    Стоимость от:
    3 725 535
    Проект от: 30 150
    Этажей 1
    Санузлы 1
    Спальни 2
    Смотреть
    Ипотека и
    рассрочка
    Одноэтажный дом
    Стоимость от:
    8 125 700
    Проект от: 47 250
    Этажей 1
    Санузлы 2
    Спальни 3
    Смотреть

    Как узнать стоимость дома

    back
    Оставляете заявку
    Вы заполняете форму на сайте или звоните нам. Менеджер Лайвкрафт связывается с вами для уточнения деталей: тип дома, площадь, материалы, участок строительства.
    back
    Консультация и подбор решения
    Наш специалист помогает выбрать оптимальный тип дома и конструкцию с учётом бюджета, сроков и целей — будь то дом для постоянного проживания или дача.
    back
    Расчёт предварительной стоимости
    Инженер делает первичный расчёт стоимости строительства по вашим параметрам: фундамент, коробка, кровля, отделка. Вы получаете смету с разбивкой по этапам.
    back
    Корректировка и утверждение сметы
    При необходимости вносим изменения — например, замену материалов или сокращение этапов. После согласования формируется окончательная фиксированная смета.
    back
    Заключение договора и старт работ
    После утверждения сметы заключаем официальный договор с гарантией. Вы получаете прозрачный график и точную стоимость — без скрытых расходов.

    Заказать конусльтацию по:КД «Краснодар №9-22»

    Фото 1 КД «Краснодар №9-22»


      Наши
      контакты

      Дмитров
      Опорный проезд 28Б
      (индустриальный парк Ниагара)
      9:00 до 18:00