4.9
Рейтинг на основании 120 отзывов
Дмитров
Опорный проезд 28Б
(индустриальный парк Ниагара)
Бренд "Дмитров-Дело" c 2008 года на рынке строительства в Дмитрове
Звоните 9:00 до 18:00 8 (915) 055-33-61
Бренд "Дмитров-Дело" c 2008 года на рынке строительства в Дмитрове

Кедровик 6

Стоимость проекта от:
44 100 ₽
Стоимость строительства от:
7 149 560 ₽
Артикул ART-12329
Дата 25.12.2025
Архитектурный стиль Классический
Количество надземных этажей 1
Круглогодичное проживание Да
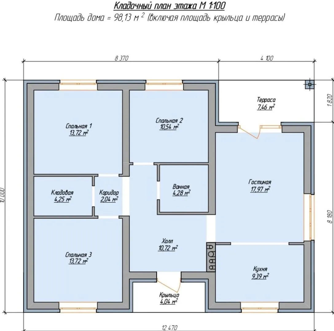
Площадь дома 98 м2
Санузлы 1
Спальни 3

Описание

Уютный уголок на улице Кедровика, где с первого взгляда ощущается традиционность и гармония. Этот одноэтажный особняк, выполненный в классическом стиле, сочетает в себе простоту и элегантность: стены из керамзитобетонных блоков придают дому тёплый и изолированный вид, а комбинированная крыша дарит защиту и стержн в любую погоду. Утончённый фасад без вежливых балконов и лоджий подчёркивает строгую геометрическую красоту, а в отсутствие веранд и пристроенного гаража вы полностью наслаждаете атмосферой непорождённого пространства. Сразу в сердце дома раскрывается просторное чердачное помещение – идеальное место для хранилища или личного хобби. На задней части застройки располагается небольшая, но ухоженная терраса, позволяющая поглощать солнечные лучи и открывать лёгкое бризовое настроение. Круглогодичное проживание в этом доме – как комфортный кокон, где уют сочетается с функциональностью: простые, но практичные решения обеспечат комфортный дом даже в холодные дни. Если вы ищете сочетание традиций и комфорта, кедровик 6 – ваш выбор.

Характеристики дома

Архитектурный стиль
Классический
Автоматизированное регулирование параметров теплоносителя
Нет
Балконы/лоджии
Отсутствуют
Чердачное помещение
Да
Датчики протечки воды
Нет
Эксплуатируемая или зеленая кровля
Нет
Электроснабжение
Не предусмотрено
Газоснабжение
Не предусмотрено
Изоляция воздушного шума
Нет
Камин
Нет
Класс энергоэффективности
-
Класс энергосбережения
-
Количество надземных этажей
1
Круглогодичное проживание
Да
Материал кровли
Битумная черепица
Материал перекрытий
Деревянные
Материал внешних стен
Керамзитобетонные блоки
Материал внутренних перегородок
Блочные
Модульное строительство с конструкциями заводского изготовления
Нет
Объем надземной части
588 м3
Основной материал фасадов
Облицовочный кирпич
Отопление
Не предусмотрено
Площадь дома
98 м2
Площадь застройки
124 м2
Подвальное помещение
Нет
Показатель компактности здания
-
Приборы учета тепловой энергии
Нет
Пристроенный гараж/крытая автостоянка
Нет
Противопожарная система
Нет
Санузлы
1
Совмещенная кухня-гостиная
Да
Спальни
3
Терраса
Да
Тип фундамента
Свайно-ростверковый
Тип кровли
Комбинированная
Толщина внешних стен
420 мм
Толщина внутренних перегородок
120 мм
Улучшенные шумовые характеристики
Нет
Вентиляция
Естественная
Веранда
Нет
Водоотведение
Не предусмотрено
Водоснабжение
Не предусмотрено
Высота дома
6 м
Высота потолков
2.75 м

Планировка

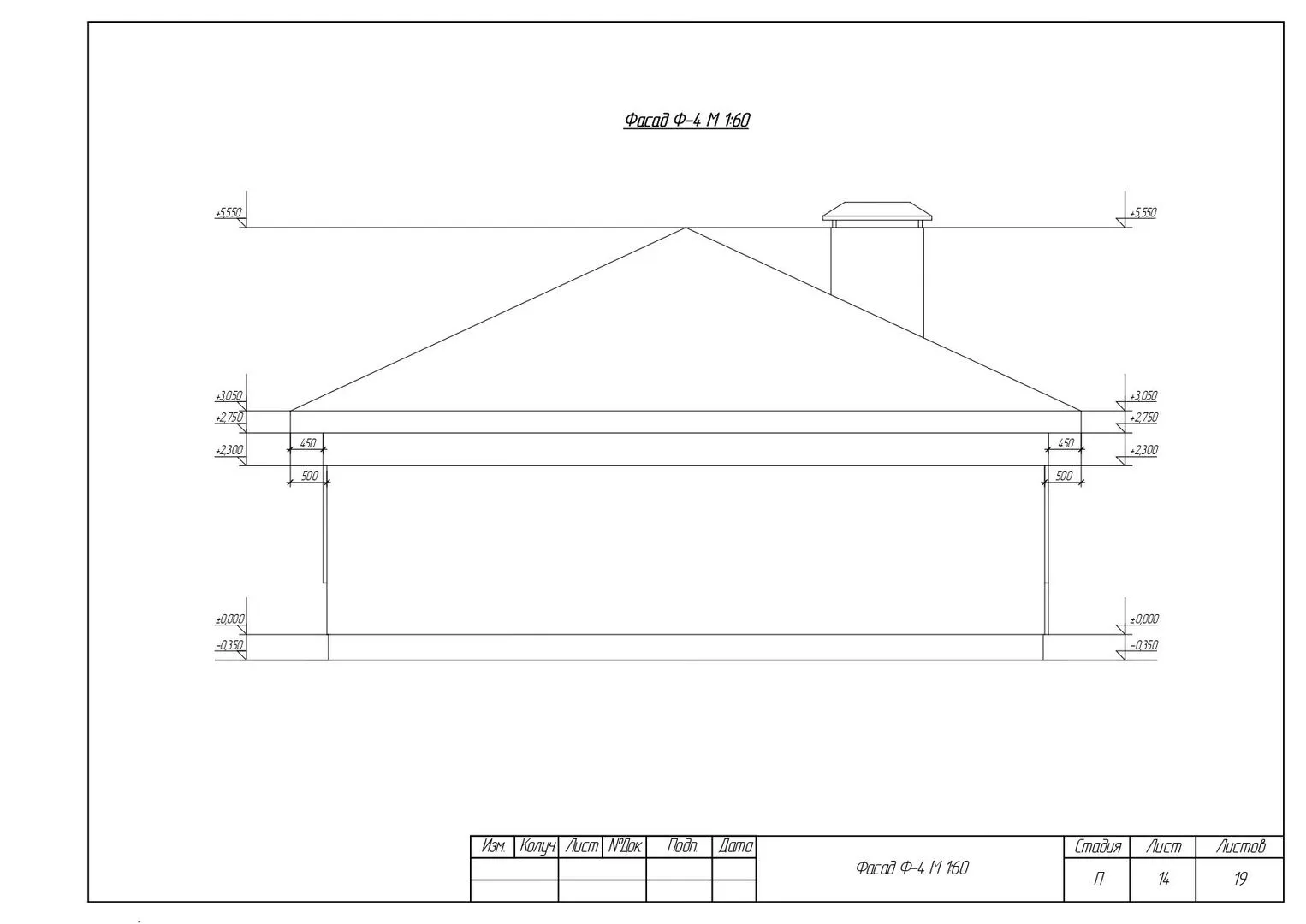
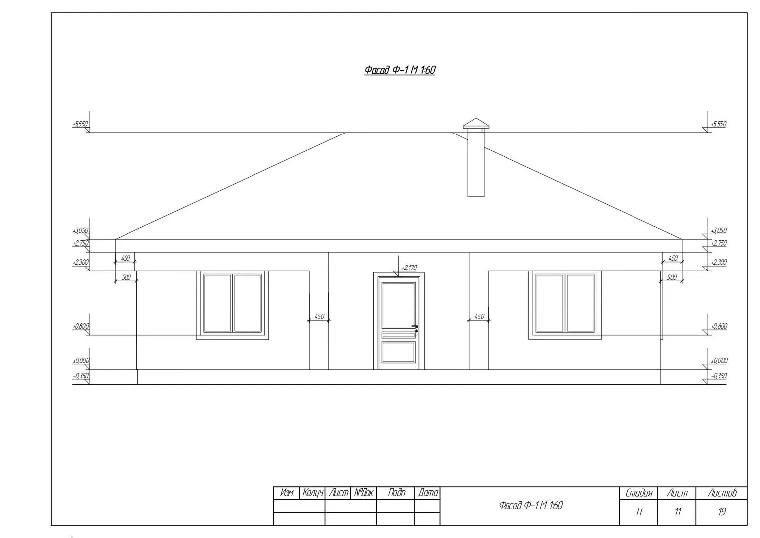
Фасад дома

Александр

Закажите выезд инженера

Александр

Выездной инженер
Закажите выезд инженера для точной диагностики и профессиональной консультации по инженерным системам. Специалист приедет в удобное время, проведёт осмотр, рассчитает стоимость работ и подберёт оптимальные решения для вашего дома.


    Похожие проекты

    Ипотека и
    рассрочка
    Двухэтажный дом Floors 100
    Стоимость от:
    5 874 000
    Проект от: 45 000
    Этажей 2
    Санузлы 1
    Спальни 4
    Смотреть
    Ипотека и
    рассрочка
    Загородный дом Шиль 265
    Стоимость от:
    15 242 260
    Проект от: 91 350
    Этажей 1
    Санузлы 2
    Спальни 3
    Смотреть
    Ипотека и
    рассрочка
    Евпатория
    Стоимость от:
    8 101 440
    Проект от: 52 200
    Этажей 2
    Санузлы 1
    Спальни 2
    Смотреть
    Ипотека и
    рассрочка
    Одноэтажный дом Уно
    Стоимость от:
    11 882 860
    Проект от: 73 350
    Этажей 1
    Санузлы 2
    Спальни 3
    Смотреть
    Ипотека и
    рассрочка
    Одноэтажный дом: Проект Сказка
    Стоимость от:
    7 065 080
    Проект от: 42 300
    Этажей 1
    Санузлы 1
    Спальни 2
    Смотреть
    Ипотека и
    рассрочка
    Двухэтажный дом из бревна с балконом
    Стоимость от:
    9 062 640
    Проект от: 54 450
    Этажей 2
    Санузлы 1
    Спальни 3
    Смотреть

    Как узнать стоимость дома

    back
    Оставляете заявку
    Вы заполняете форму на сайте или звоните нам. Менеджер Лайвкрафт связывается с вами для уточнения деталей: тип дома, площадь, материалы, участок строительства.
    back
    Консультация и подбор решения
    Наш специалист помогает выбрать оптимальный тип дома и конструкцию с учётом бюджета, сроков и целей — будь то дом для постоянного проживания или дача.
    back
    Расчёт предварительной стоимости
    Инженер делает первичный расчёт стоимости строительства по вашим параметрам: фундамент, коробка, кровля, отделка. Вы получаете смету с разбивкой по этапам.
    back
    Корректировка и утверждение сметы
    При необходимости вносим изменения — например, замену материалов или сокращение этапов. После согласования формируется окончательная фиксированная смета.
    back
    Заключение договора и старт работ
    После утверждения сметы заключаем официальный договор с гарантией. Вы получаете прозрачный график и точную стоимость — без скрытых расходов.

    Заказать конусльтацию по:Кедровик 6

    Фото 1 Кедровик 6


      Наши
      контакты

      Дмитров
      Опорный проезд 28Б
      (индустриальный парк Ниагара)
      9:00 до 18:00