4.9
Рейтинг на основании 120 отзывов
Дмитров
Опорный проезд 28Б
(индустриальный парк Ниагара)
Бренд "Дмитров-Дело" c 2008 года на рынке строительства в Дмитрове
Звоните 9:00 до 18:00 8 (915) 055-33-61
Бренд "Дмитров-Дело" c 2008 года на рынке строительства в Дмитрове

Кейптаун

Стоимость проекта от:
45 450 ₽
БЕСПЛАТНО! ПРИ ЗАКАЗЕ СТРОИТЕЛЬСТВА
Стоимость строительства от:
5 854 970 ₽
Артикул ART-13691
Дата 25.12.2025
Архитектурный стиль Скандинавский
Количество надземных этажей 1
Круглогодичное проживание Да
Площадь дома 101 м2
Санузлы 2
Спальни 3

Описание

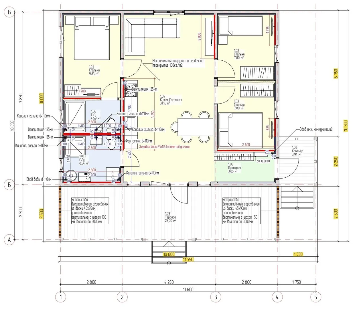
Добро пожаловать в небольшое, но изысканное шедевральное пространство – ваш новый уголок у моря в Кейптауне. Это одноэтажное скандинавское жилье обрамлено деревянными каркасными стенами, которые придают дому тёплый, естественный вид, а двойчатая крыша с плавными крутниями добавляет лёгкость и воздушность. Здесь царит гармония простоты и функциональности: открытая планировка позволяет наслаждаться свободой пространства, а большие окна впускают в дом море света, создавая ощущение бытия вне времени. Сразу при входе открывается просторный внутренний двор, а на фоне – просторная, удобная терраса, где можно проводит вечера под звёздным небом или наслаждаться ароматом свежего кофе утром. Внутри дома есть полезное чердачное помещение, которое легко превратить в студию творчества, небольшую мастерскую или уютный уголок для хобби. Благодаря круглогодичному обогреву и утепленным стенам, вы будете чувствовать себя комфортно независимо от погоды и сезонов: от солёного бриза до прохладной весны. Эта квартира – идеальный выбор для тех, кто ценит минимализм, лаконичность и эстетику скандинавского дизайна, при том чтобы не отрекаться от естественной связи с природой. Здесь нет лишних громоздких гаражей или веранд, а всё, что нужно для современного, удобного проживания, интегрировано в простую, но функциональную структуру. Если мечтаете о тихом, но в то же время живописном месте для жизни, наш дом в Кейптауне станет вашими идеальными стенами, открывающими путь к новому уровню комфорта и вдохновения.

Характеристики дома

Архитектурный стиль
Автоматизированное регулирование параметров теплоносителя
Нет
Балконы/лоджии
Отсутствуют
Чердачное помещение
Да
Датчики протечки воды
Нет
Эксплуатируемая или зеленая кровля
Нет
Электроснабжение
Центральное
Газоснабжение
Не предусмотрено
Изоляция воздушного шума
Нет
Камин
Нет
Класс энергоэффективности
-
Класс энергосбережения
-
Количество надземных этажей
1
Круглогодичное проживание
Да
Материал кровли
Металлочерепица
Материал перекрытий
Деревянные
Материал внешних стен
Материал внутренних перегородок
Деревянные
Модульное строительство с конструкциями заводского изготовления
Нет
Объем надземной части
357 м3
Основной материал фасадов
Дерево
Отопление
Индивидуальное
Площадь дома
101 м2
Площадь застройки
108 м2
Подвальное помещение
Нет
Показатель компактности здания
-
Приборы учета тепловой энергии
Нет
Пристроенный гараж/крытая автостоянка
Нет
Противопожарная система
Нет
Санузлы
2
Совмещенная кухня-гостиная
Да
Спальни
3
Терраса
Да
Тип фундамента
Свайный
Тип кровли
Толщина внешних стен
200 мм
Толщина внутренних перегородок
100 мм
Улучшенные шумовые характеристики
Нет
Вентиляция
Естественная
Веранда
Нет
Водоотведение
Локальные очистные сооружения
Водоснабжение
Индивидуальное
Высота дома
4.67 м
Высота потолков
2.7 м

Планировка

Фасад дома

Александр

Закажите выезд инженера

Александр

Выездной инженер
Закажите выезд инженера для точной диагностики и профессиональной консультации по инженерным системам. Специалист приедет в удобное время, проведёт осмотр, рассчитает стоимость работ и подберёт оптимальные решения для вашего дома.


    Похожие проекты

    Ипотека и
    рассрочка
    Ю-2-79
    Стоимость от:
    5 114 560
    Проект от: 30 600
    Этажей 1
    Санузлы 1
    Спальни 3
    Смотреть
    Ипотека и
    рассрочка
    GEO 48
    Стоимость от:
    4 892 140
    Проект от: 30 150
    Этажей 1
    Санузлы 1
    Спальни 2
    Смотреть
    Ипотека и
    рассрочка
    Дачник 6х7 с крыльцом
    Стоимость от:
    3 710 700
    Проект от: 27 900
    Этажей 2
    Санузлы 1
    Спальни 3
    Смотреть
    Ипотека и
    рассрочка
    Авторский проект «Актау 2.0»
    Стоимость от:
    5 437 740
    Проект от: 34 650
    Этажей 1
    Санузлы 1
    Спальни 2
    Смотреть
    Ипотека и
    рассрочка
    Проект дома КС-28
    Стоимость от:
    12 708 000
    Проект от: 76 500
    Этажей 2
    Санузлы 2
    Спальни 4
    Смотреть
    Ипотека и
    рассрочка
    Цюрих
    Стоимость от:
    5 500 220
    Проект от: 31 950
    Этажей 1
    Санузлы 1
    Спальни 3
    Смотреть

    Как узнать стоимость дома

    back
    Оставляете заявку
    Вы заполняете форму на сайте или звоните нам. Менеджер Лайвкрафт связывается с вами для уточнения деталей: тип дома, площадь, материалы, участок строительства.
    back
    Консультация и подбор решения
    Наш специалист помогает выбрать оптимальный тип дома и конструкцию с учётом бюджета, сроков и целей — будь то дом для постоянного проживания или дача.
    back
    Расчёт предварительной стоимости
    Инженер делает первичный расчёт стоимости строительства по вашим параметрам: фундамент, коробка, кровля, отделка. Вы получаете смету с разбивкой по этапам.
    back
    Корректировка и утверждение сметы
    При необходимости вносим изменения — например, замену материалов или сокращение этапов. После согласования формируется окончательная фиксированная смета.
    back
    Заключение договора и старт работ
    После утверждения сметы заключаем официальный договор с гарантией. Вы получаете прозрачный график и точную стоимость — без скрытых расходов.

    Заказать конусльтацию по:Кейптаун

    Фото 1 Кейптаун


      Наши
      контакты

      Дмитров
      Опорный проезд 28Б
      (индустриальный парк Ниагара)
      9:00 до 18:00

      Корзина