4.9
Рейтинг на основании 120 отзывов
Дмитров
Опорный проезд 28Б
(индустриальный парк Ниагара)
Бренд "Дмитров-Дело" c 2008 года на рынке строительства в Дмитрове
Звоните 9:00 до 18:00 8 (915) 055-33-61
Бренд "Дмитров-Дело" c 2008 года на рынке строительства в Дмитрове

Хайтек-86

Стоимость проекта от:
33 750 ₽
Стоимость строительства от:
5 474 700 ₽
Артикул ART-16272
Дата 26.12.2025
Архитектурный стиль Хайтек
Количество надземных этажей 1
Круглогодичное проживание Да
Площадь дома 75 м2
Санузлы 2
Спальни 2

Описание

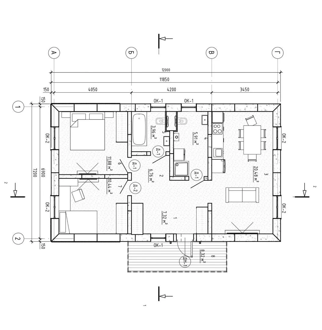
Дом «Хайтек‑86» – это воплощение современного комфорта в минималистичном стиле. Одна надземная этажа открывает пространство, которое с первого взгляда ощущается как просторный, светлый уголок, где каждый квадратный метр служит вам. Внутренняя планировка продумана до мелочей: открытые зоны, высокие потолки и большие стеклянные фасады создают ощущение лёгкости и свободы, позволяя природному свету обогревать помещение в любое время года. Теплоизоляция теплоблока гарантирует, что дома всегда уютно и тепло, даже в холодную пору. Стиль «Хайтек» не ограничивается внешним обликом: здесь применены инновационные материалы и элементы, делающие жизнь на дому управлением и удобством. Плоская крыша не только придаёт дому безмятежный силуэт, но и даёт возможность интегрировать солнечные панели, благодаря чему вы можете экономить на электроэнергии и использовать её даже в ночные часы. В доме предусмотрены интеллектуальные системы автоматизации, позволяющие управлять освещением, климатом и безопасностью прямо с телефона. Дом «Хайтек‑86» – это идеальный выбор для тех, кто ценит чистоту линий, функциональность и технологичность в сочетании с теплоизоляцией и энергоэффективностью. Он открывает вам новые горизонты современной жизни, где каждый день начинается с уютного света и заканчивается комфортом чистого, беззагрязнённого пространства. Ваша новая обитель, где минимализм встречается с инновациями — ждёт вас.

Характеристики дома

Архитектурный стиль
Хайтек
Автоматизированное регулирование параметров теплоносителя
Нет
Балконы/лоджии
Отсутствуют
Чердачное помещение
Нет
Датчики протечки воды
Да
Эксплуатируемая или зеленая кровля
Нет
Электроснабжение
Центральное
Газоснабжение
Центральное
Изоляция воздушного шума
Да
Камин
Нет
Класс энергоэффективности
-
Класс энергосбережения
-
Количество надземных этажей
1
Круглогодичное проживание
Да
Материал кровли
ПВХ мембраны
Материал перекрытий
Иной вид материалов перекрытий
Материал внешних стен
Теплоблок
Материал внутренних перегородок
Полистиролбетон
Модульное строительство с конструкциями заводского изготовления
Нет
Объем надземной части
276 м3
Основной материал фасадов
Искусственный камень
Отопление
Индивидуальное
Площадь дома
75 м2
Площадь застройки
94 м2
Подвальное помещение
Нет
Показатель компактности здания
-
Приборы учета тепловой энергии
Нет
Пристроенный гараж/крытая автостоянка
Нет
Противопожарная система
Нет
Санузлы
2
Совмещенная кухня-гостиная
Да
Спальни
2
Терраса
Нет
Тип фундамента
Свайно-ростверковый
Тип кровли
Плоская
Толщина внешних стен
400 мм
Толщина внутренних перегородок
200 мм
Улучшенные шумовые характеристики
Да
Вентиляция
Рекуперация
Веранда
Нет
Водоотведение
Центральное
Водоснабжение
Центральное
Высота дома
4 м
Высота потолков
3 м

Планировка

Фасад дома

Александр

Закажите выезд инженера

Александр

Выездной инженер
Закажите выезд инженера для точной диагностики и профессиональной консультации по инженерным системам. Специалист приедет в удобное время, проведёт осмотр, рассчитает стоимость работ и подберёт оптимальные решения для вашего дома.


    Похожие проекты

    Ипотека и
    рассрочка
    Одноэтажный жилой дом «РФ-116»
    Стоимость от:
    8 191 920
    Проект от: 52 200
    Этажей 1
    Санузлы 1
    Спальни 3
    Смотреть
    Ипотека и
    рассрочка
    Загородный дом «Фазенда» ТИП2
    Стоимость от:
    6 990 060
    Проект от: 41 850
    Этажей 1
    Санузлы 1
    Спальни 3
    Смотреть
    Ипотека и
    рассрочка
    Одноэтажный дом «Бали»
    Стоимость от:
    314 600
    Проект от: 58 500
    Этажей 1
    Санузлы 2
    Спальни 3
    Смотреть
    Ипотека и
    рассрочка
    Двухэтажный дом в стиле Хай Тек «Сорум»
    Стоимость от:
    10 296 000
    Проект от: 67 500
    Этажей 2
    Санузлы 2
    Спальни 3
    Смотреть
    Ипотека и
    рассрочка
    Одноэтажный просторный Барн хаус с 4 спальнями Г-117
    Стоимость от:
    7 842 560
    Проект от: 57 600
    Этажей 1
    Санузлы 2
    Спальни 4
    Смотреть
    Ипотека и
    рассрочка
    Проект мансардного дома №15
    Стоимость от:
    7 271 280
    Проект от: 43 650
    Этажей 2
    Санузлы 4
    Спальни 4
    Смотреть

    Как узнать стоимость дома

    back
    Оставляете заявку
    Вы заполняете форму на сайте или звоните нам. Менеджер Лайвкрафт связывается с вами для уточнения деталей: тип дома, площадь, материалы, участок строительства.
    back
    Консультация и подбор решения
    Наш специалист помогает выбрать оптимальный тип дома и конструкцию с учётом бюджета, сроков и целей — будь то дом для постоянного проживания или дача.
    back
    Расчёт предварительной стоимости
    Инженер делает первичный расчёт стоимости строительства по вашим параметрам: фундамент, коробка, кровля, отделка. Вы получаете смету с разбивкой по этапам.
    back
    Корректировка и утверждение сметы
    При необходимости вносим изменения — например, замену материалов или сокращение этапов. После согласования формируется окончательная фиксированная смета.
    back
    Заключение договора и старт работ
    После утверждения сметы заключаем официальный договор с гарантией. Вы получаете прозрачный график и точную стоимость — без скрытых расходов.

    Заказать конусльтацию по:Хайтек-86

    Фото 1 Хайтек-86


      Наши
      контакты

      Дмитров
      Опорный проезд 28Б
      (индустриальный парк Ниагара)
      9:00 до 18:00