4.9
Рейтинг на основании 120 отзывов
Дмитров
Опорный проезд 28Б
(индустриальный парк Ниагара)
Бренд "Дмитров-Дело" c 2008 года на рынке строительства в Дмитрове
Звоните 9:00 до 18:00 8 (915) 055-33-61
Бренд "Дмитров-Дело" c 2008 года на рынке строительства в Дмитрове

Классический проект двухэтажного дома 8,0х11,0

Стоимость проекта от:
55 800 ₽
БЕСПЛАТНО! ПРИ ЗАКАЗЕ СТРОИТЕЛЬСТВА
Стоимость строительства от:
7 432 560 ₽
Артикул ART-15088
Дата 25.12.2025
Архитектурный стиль Классический
Количество надземных этажей 2
Круглогодичное проживание Да
Площадь дома 124 м2
Санузлы 1
Спальни 3

Описание

Погрузитесь в атмосферу настоящего уюта с нашим классическим двухэтажным домом, проектный план – 8 м × 11 м. Каждый сантиметр этого жилья продуман так, чтобы вы ощутили гармонию традиций и комфорта. Стены выполнены из прочного деревянного каркаса, а готический двускатный покров не только защищает от непогоды, но и придаёт дому элегантность, которая будет радовать глаз уже много лет. Внутреннее пространство гармонично разделено на две уровни, обеспечивая идеальное сочетание функциональности и эстетики. Дом создан для круглогодичной жизни: в тёплое лето, а также в прохладную зиму ваш дом будет радовать вас уютом и теплом. Отсутствие внешних ограждений, таких как балконы или веранда, делает фасад чистым и лаконичным, подчеркнув строгую архитектурную линию. Но в этом отсутствие не приукрашивает! Внутри вас ждёт просторная терраса, где можно наслаждаться свежим воздухом, а высокий чердачний зал открывает возможности для уютных семейных вечеров или творческой лаборатории. Выбор нашего проекта – это выбор в пользу качественного исполнения, удобства и неповторимого стиля. Дом, где каждая деталь говорит о благородстве и внимании к деталям – ваш новый оазис в сердце современного города. Приходите, чтобы увидеть, как классика и современность встречаются в гармонии вашей будущей жизни.

Характеристики дома

Архитектурный стиль
Автоматизированное регулирование параметров теплоносителя
Нет
Балконы/лоджии
Отсутствуют
Чердачное помещение
Да
Датчики протечки воды
Нет
Эксплуатируемая или зеленая кровля
Нет
Электроснабжение
Не предусмотрено
Газоснабжение
Не предусмотрено
Изоляция воздушного шума
Нет
Камин
Нет
Класс энергоэффективности
-
Класс энергосбережения
-
Количество надземных этажей
2
Круглогодичное проживание
Да
Материал кровли
Металлочерепица
Материал перекрытий
Деревянные
Материал внешних стен
Материал внутренних перегородок
Деревянные
Модульное строительство с конструкциями заводского изготовления
Нет
Объем надземной части
420 м3
Основной материал фасадов
Дерево
Отопление
Не предусмотрено
Площадь дома
124 м2
Площадь застройки
95 м2
Подвальное помещение
Нет
Показатель компактности здания
-
Приборы учета тепловой энергии
Нет
Пристроенный гараж/крытая автостоянка
Нет
Противопожарная система
Нет
Санузлы
1
Совмещенная кухня-гостиная
Да
Спальни
3
Терраса
Да
Тип фундамента
Свайный
Тип кровли
Толщина внешних стен
200 мм
Толщина внутренних перегородок
100 мм
Улучшенные шумовые характеристики
Нет
Вентиляция
Естественная
Веранда
Нет
Водоотведение
Не предусмотрено
Водоснабжение
Не предусмотрено
Высота дома
9.26 м
Высота потолков
2.8 м

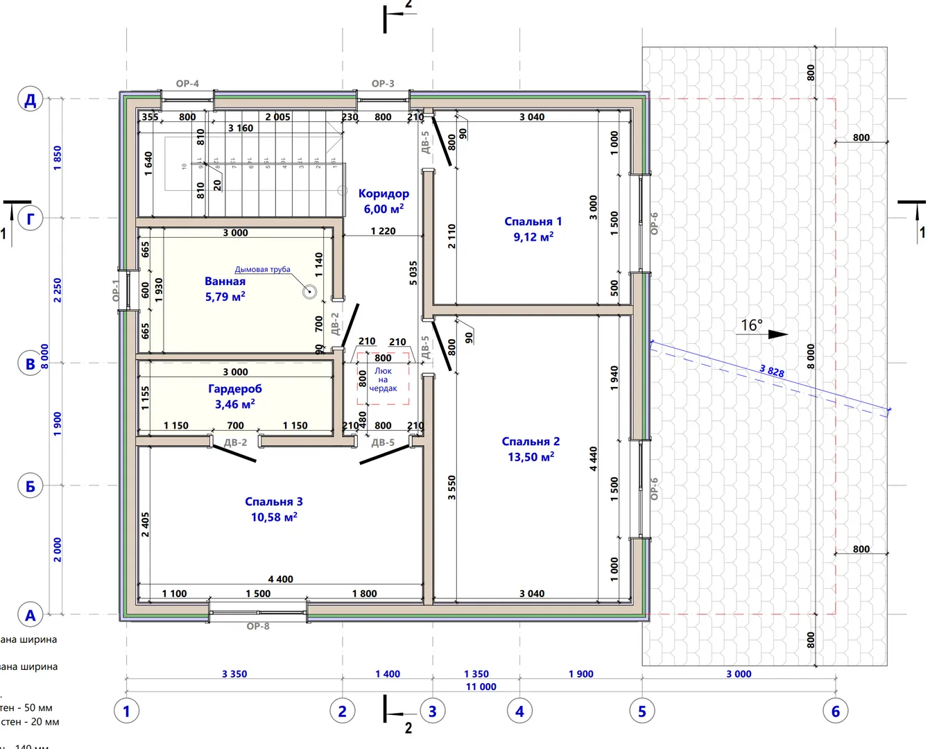
Планировка

Фасад дома

Александр

Закажите выезд инженера

Александр

Выездной инженер
Закажите выезд инженера для точной диагностики и профессиональной консультации по инженерным системам. Специалист приедет в удобное время, проведёт осмотр, рассчитает стоимость работ и подберёт оптимальные решения для вашего дома.


    Похожие проекты

    Ипотека и
    рассрочка
    ГБ-091
    Стоимость от:
    6 773 580
    Проект от: 44 550
    Этажей 1
    Санузлы 1
    Спальни 2
    Смотреть
    Ипотека и
    рассрочка
    Одноэтажный дом Финляндия 150
    Стоимость от:
    14 725 040
    Проект от: 104 400
    Этажей 1
    Санузлы 3
    Спальни 3
    Смотреть
    Ипотека и
    рассрочка
    Дом из клееного бруса «Бостон»
    Стоимость от:
    8 113 920
    Проект от: 55 350
    Этажей 2
    Санузлы 2
    Спальни 4
    Смотреть
    Ипотека и
    рассрочка
    Танхаус для 2х семей с навесом ,в стиле «BARN»
    Стоимость от:
    24 815 760
    Проект от: 157 050
    Этажей 2
    Санузлы 2
    Спальни 6
    Смотреть
    Ипотека и
    рассрочка
    А 18
    Стоимость от:
    5 577 000
    Проект от: 31 500
    Этажей 1
    Санузлы 1
    Спальни 2
    Смотреть
    Ипотека и
    рассрочка
    Дом 107м2
    Стоимость от:
    8 515 540
    Проект от: 48 150
    Этажей 1
    Санузлы 2
    Спальни 3
    Смотреть

    Как узнать стоимость дома

    back
    Оставляете заявку
    Вы заполняете форму на сайте или звоните нам. Менеджер Лайвкрафт связывается с вами для уточнения деталей: тип дома, площадь, материалы, участок строительства.
    back
    Консультация и подбор решения
    Наш специалист помогает выбрать оптимальный тип дома и конструкцию с учётом бюджета, сроков и целей — будь то дом для постоянного проживания или дача.
    back
    Расчёт предварительной стоимости
    Инженер делает первичный расчёт стоимости строительства по вашим параметрам: фундамент, коробка, кровля, отделка. Вы получаете смету с разбивкой по этапам.
    back
    Корректировка и утверждение сметы
    При необходимости вносим изменения — например, замену материалов или сокращение этапов. После согласования формируется окончательная фиксированная смета.
    back
    Заключение договора и старт работ
    После утверждения сметы заключаем официальный договор с гарантией. Вы получаете прозрачный график и точную стоимость — без скрытых расходов.

    Заказать конусльтацию по:Классический проект двухэтажного дома 8,0х11,0

    Фото 1 Классический проект двухэтажного дома 8,0х11,0


      Наши
      контакты

      Дмитров
      Опорный проезд 28Б
      (индустриальный парк Ниагара)
      9:00 до 18:00

      Корзина