4.9
Рейтинг на основании 120 отзывов
Дмитров
Опорный проезд 28Б
(индустриальный парк Ниагара)
Бренд "Дмитров-Дело" c 2008 года на рынке строительства в Дмитрове
Звоните 9:00 до 18:00 8 (915) 055-33-61
Бренд "Дмитров-Дело" c 2008 года на рынке строительства в Дмитрове

Классик

Стоимость проекта от:
29 700 ₽
БЕСПЛАТНО! ПРИ ЗАКАЗЕ СТРОИТЕЛЬСТВА
Стоимость строительства от:
3 680 820 ₽
Артикул ART-19999
Дата 26.12.2025
Архитектурный стиль Русский
Количество надземных этажей 1
Круглогодичное проживание Да
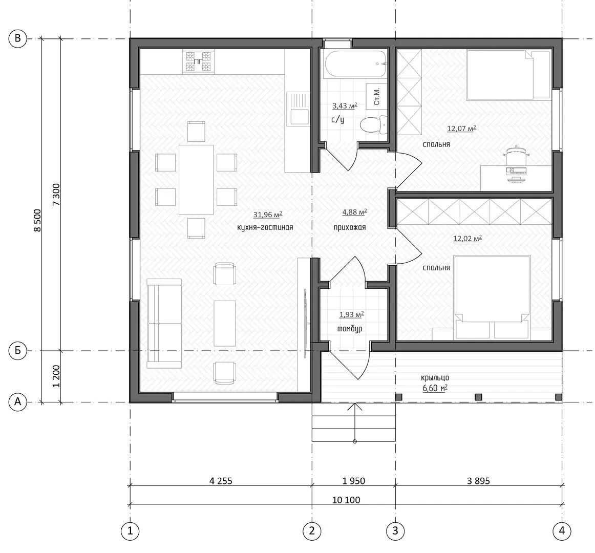
Площадь дома 66 м2
Санузлы 1
Спальни 2

Описание

Сердце этого дома — его уютный, современно адаптированный к всем временам года, русский классический интерьер. Одиннадцатая лестница, которая осталась в прошлом, заменит её простое, открытое пространство под двускатной крышей из надёжных материалов. Внешний облик, выполненный в традиционном деревянном каркасе, придаёт дому теплый, семейный характер, гармонируя с любой природной средой. Входя во внутренний двор, вы сразу ощущаете атмосферу домашнего уюта: светлый, просторный фасад приглашает раскрыться к новым возможностям. Отсутствие балконов, лоджий и веранд, как бы, делает пространство более целостным и защищённым от погодных капризов. Внутреннее пространство, наполненное мягким светом, идеально подходит для круглогодичного проживания: каждая деталь проработана для того, чтобы дарить комфорт, а просторное чердачное помещение открывает перспективы для хранения, создания дополнительных комнат или уютного уголка для творчества. Отдельный гараж в комплекте не предусмотрен, но в свободных участках легко разместить небольшую автозаправку или велосипедную полку, дополняя общий функционал дома. Гаражных и террасных площадей может не быть, но это вовсе не ограничивает ваш образ жизни: здесь воссоздана привычка к дому, где каждый уголок продуман и гармонично вписан в общее видение. Двускатная крыша, сочетающая традицию и надёжность, дополнена прочным каркасом, гарантируя долгий срок эксплуатации. Откройте для себя идеальный баланс русской элегантности и практичности, и превратите этот дом в ваше личное убежище от суеты городской жизни.

Характеристики дома

Архитектурный стиль
Автоматизированное регулирование параметров теплоносителя
Нет
Балконы/лоджии
Отсутствуют
Чердачное помещение
Да
Датчики протечки воды
Нет
Эксплуатируемая или зеленая кровля
Нет
Электроснабжение
Центральное
Газоснабжение
Центральное
Изоляция воздушного шума
Да
Камин
Нет
Класс энергоэффективности
A+
Класс энергосбережения
A+
Количество надземных этажей
1
Круглогодичное проживание
Да
Материал кровли
Битумная черепица
Материал перекрытий
Деревянные
Материал внешних стен
Материал внутренних перегородок
Деревянные
Модульное строительство с конструкциями заводского изготовления
Нет
Объем надземной части
303 м3
Основной материал фасадов
Фасадная плитка
Отопление
Индивидуальное
Площадь дома
66 м2
Площадь застройки
86 м2
Подвальное помещение
Нет
Показатель компактности здания
1.1
Приборы учета тепловой энергии
Нет
Пристроенный гараж/крытая автостоянка
Нет
Противопожарная система
Нет
Санузлы
1
Совмещенная кухня-гостиная
Да
Спальни
2
Терраса
Нет
Тип фундамента
Свайный
Тип кровли
Толщина внешних стен
200 мм
Толщина внутренних перегородок
150 мм
Улучшенные шумовые характеристики
Да
Вентиляция
Естественная
Веранда
Нет
Водоотведение
2 варианта
Водоснабжение
2 варианта
Высота дома
5.2 м
Высота потолков
2.9 м

Планировка

Фасад дома

Александр

Закажите выезд инженера

Александр

Выездной инженер
Закажите выезд инженера для точной диагностики и профессиональной консультации по инженерным системам. Специалист приедет в удобное время, проведёт осмотр, рассчитает стоимость работ и подберёт оптимальные решения для вашего дома.


    Похожие проекты

    Ипотека и
    рассрочка
    Модульный дом FL 103 (МИ103)
    Стоимость от:
    6 803 940
    Проект от: 54 900
    Этажей 1
    Санузлы 1
    Спальни 4
    Смотреть
    Ипотека и
    рассрочка
    Patio
    Стоимость от:
    2 063 490
    Проект от: 16 650
    Этажей 1
    Санузлы 1
    Спальни 2
    Смотреть
    Ипотека и
    рассрочка
    Каркасный дом Шведский 29
    Стоимость от:
    6 971 250
    Проект от: 56 250
    Этажей 1
    Санузлы 2
    Спальни 4
    Смотреть
    Ипотека и
    рассрочка
    Дом из CLT «Береговое»
    Стоимость от:
    601 920
    Проект от: 43 200
    Этажей 1
    Санузлы 1
    Спальни 1
    Смотреть
    Ипотека и
    рассрочка
    EL-81
    Стоимость от:
    6 779 520
    Проект от: 43 200
    Этажей 1
    Санузлы 1
    Спальни 3
    Смотреть
    Ипотека и
    рассрочка
    Фолк Village 130
    Стоимость от:
    7 250 100
    Проект от: 58 500
    Этажей 1
    Санузлы 1
    Спальни 3
    Смотреть

    Как узнать стоимость дома

    back
    Оставляете заявку
    Вы заполняете форму на сайте или звоните нам. Менеджер Лайвкрафт связывается с вами для уточнения деталей: тип дома, площадь, материалы, участок строительства.
    back
    Консультация и подбор решения
    Наш специалист помогает выбрать оптимальный тип дома и конструкцию с учётом бюджета, сроков и целей — будь то дом для постоянного проживания или дача.
    back
    Расчёт предварительной стоимости
    Инженер делает первичный расчёт стоимости строительства по вашим параметрам: фундамент, коробка, кровля, отделка. Вы получаете смету с разбивкой по этапам.
    back
    Корректировка и утверждение сметы
    При необходимости вносим изменения — например, замену материалов или сокращение этапов. После согласования формируется окончательная фиксированная смета.
    back
    Заключение договора и старт работ
    После утверждения сметы заключаем официальный договор с гарантией. Вы получаете прозрачный график и точную стоимость — без скрытых расходов.

    Заказать конусльтацию по:Классик

    Фото 1 Классик


      Наши
      контакты

      Дмитров
      Опорный проезд 28Б
      (индустриальный парк Ниагара)
      9:00 до 18:00

      Корзина