4.9
Рейтинг на основании 120 отзывов
Дмитров
Опорный проезд 28Б
(индустриальный парк Ниагара)
Бренд "Дмитров-Дело" c 2008 года на рынке строительства в Дмитрове
Звоните 9:00 до 18:00 8 (915) 055-33-61
Бренд "Дмитров-Дело" c 2008 года на рынке строительства в Дмитрове

Кода-73

Стоимость проекта от:
27 900 ₽
БЕСПЛАТНО! ПРИ ЗАКАЗЕ СТРОИТЕЛЬСТВА
Стоимость строительства от:
3 935 140 ₽
Артикул ART-12605
Дата 25.12.2025
Архитектурный стиль Европейский
Количество надземных этажей 1
Круглогодичное проживание Да
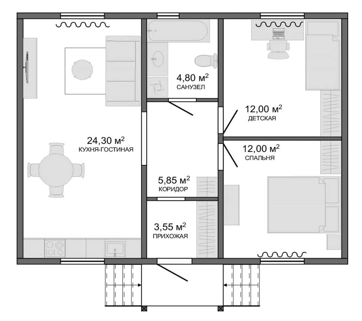
Площадь дома 62 м2
Санузлы 1
Спальни 2

Описание

Добро пожаловать в уютный уголок европейского стиля — дом «Кода‑73», который обитает только одного этажа, но вмещает в себя все, что требуется для комфортной жизни круглый год. Здесь каждая деталь продумана: от ровных стен, построенных из SIP‑панелей, обеспечивающих термо- и звукоизоляцию, до классической двускатной крыши, которую обрамляет аккуратный чердачный уголок. Такой антураж идеально подходит как для семейного отдыха, так и для тех, кто ценит спокойствие и простоту в повседневной жизни. Отсутствие балконов, веранд и придомового гаража делает «Кода‑73» лаконичным и элегантным, при этом просторный чердак превращается в дополнительное место для хранения или создания уютного мастер‑зала. Все зонирование внутри дома адаптировано под ваши потребности: светлые комнаты, открытая планировка, а на кухне присутствует функциональный барный уголок, который станет местом встреч и уюта. Доступ к дому из любой точки территории прост и безопасен, а гable‑roof позволяет легко интегрировать элементы современного дизайна. Если вы ищете жилье, в котором сочетаются современные технологии строительства, классический европейский шарм и свобода от лишних удобств, дом «Кода‑73» станет идеальным выбором. Здесь каждый день начинается с солнечного света, а уютная атмосфера делает возвращение домой всегда желанным. Это ваш шанс создать неповторимый образ жизни в простом, но в то же время элегантном доме, который уже ждёт своего нового хозяина.

Характеристики дома

Архитектурный стиль
Автоматизированное регулирование параметров теплоносителя
Да
Балконы/лоджии
Отсутствуют
Чердачное помещение
Да
Датчики протечки воды
Нет
Эксплуатируемая или зеленая кровля
Нет
Электроснабжение
Центральное
Газоснабжение
Не предусмотрено
Изоляция воздушного шума
Нет
Камин
Нет
Класс энергоэффективности
-
Класс энергосбережения
-
Количество надземных этажей
1
Круглогодичное проживание
Да
Материал кровли
Металлочерепица
Материал перекрытий
Деревянные
Материал внешних стен
Материал внутренних перегородок
Гипсокартонные
Модульное строительство с конструкциями заводского изготовления
Нет
Объем надземной части
175 м3
Основной материал фасадов
Сайдинг
Отопление
Индивидуальное
Площадь дома
62 м2
Площадь застройки
73 м2
Подвальное помещение
Нет
Показатель компактности здания
-
Приборы учета тепловой энергии
Да
Пристроенный гараж/крытая автостоянка
Нет
Противопожарная система
Нет
Санузлы
1
Совмещенная кухня-гостиная
Да
Спальни
2
Терраса
Нет
Тип фундамента
Свайный
Тип кровли
Толщина внешних стен
192 мм
Толщина внутренних перегородок
150 мм
Улучшенные шумовые характеристики
Нет
Вентиляция
Принудительная
Веранда
Нет
Водоотведение
Локальные очистные сооружения
Водоснабжение
Центральное
Высота дома
4.4 м
Высота потолков
2.8 м

Планировка

Фасад дома

Александр

Закажите выезд инженера

Александр

Выездной инженер
Закажите выезд инженера для точной диагностики и профессиональной консультации по инженерным системам. Специалист приедет в удобное время, проведёт осмотр, рассчитает стоимость работ и подберёт оптимальные решения для вашего дома.


    Похожие проекты

    Ипотека и
    рассрочка
    БарнХаус 117 м²
    Стоимость от:
    6 874 680
    Проект от: 52 650
    Этажей 2
    Санузлы 1
    Спальни 3
    Смотреть
    Ипотека и
    рассрочка
    Академик
    Стоимость от:
    7 432 560
    Проект от: 55 800
    Этажей 2
    Санузлы 2
    Спальни 5
    Смотреть
    Ипотека и
    рассрочка
    Проект дома «Лайт МАХ»
    Стоимость от:
    7 682 400
    Проект от: 49 500
    Этажей 2
    Санузлы 2
    Спальни 4
    Смотреть
    Ипотека и
    рассрочка
    Багульник
    Стоимость от:
    5 621 660
    Проект от: 41 400
    Этажей 1
    Санузлы 1
    Спальни 2
    Смотреть
    Ипотека и
    рассрочка
    Загородный жилой дом №6
    Стоимость от:
    8 940 580
    Проект от: 53 550
    Этажей 1
    Санузлы 3
    Спальни 2
    Смотреть
    Ипотека и
    рассрочка
    Одноэтажный дом FIXPLANS — 1664
    Стоимость от:
    11 136 400
    Проект от: 63 000
    Этажей 1
    Санузлы 2
    Спальни 3
    Смотреть

    Как узнать стоимость дома

    back
    Оставляете заявку
    Вы заполняете форму на сайте или звоните нам. Менеджер Лайвкрафт связывается с вами для уточнения деталей: тип дома, площадь, материалы, участок строительства.
    back
    Консультация и подбор решения
    Наш специалист помогает выбрать оптимальный тип дома и конструкцию с учётом бюджета, сроков и целей — будь то дом для постоянного проживания или дача.
    back
    Расчёт предварительной стоимости
    Инженер делает первичный расчёт стоимости строительства по вашим параметрам: фундамент, коробка, кровля, отделка. Вы получаете смету с разбивкой по этапам.
    back
    Корректировка и утверждение сметы
    При необходимости вносим изменения — например, замену материалов или сокращение этапов. После согласования формируется окончательная фиксированная смета.
    back
    Заключение договора и старт работ
    После утверждения сметы заключаем официальный договор с гарантией. Вы получаете прозрачный график и точную стоимость — без скрытых расходов.

    Заказать конусльтацию по:Кода-73

    Фото 1 Кода-73


      Наши
      контакты

      Дмитров
      Опорный проезд 28Б
      (индустриальный парк Ниагара)
      9:00 до 18:00

      Корзина