4.9
Рейтинг на основании 120 отзывов
Дмитров
Опорный проезд 28Б
(индустриальный парк Ниагара)
Бренд "Дмитров-Дело" c 2008 года на рынке строительства в Дмитрове
Звоните 9:00 до 18:00 8 (915) 055-33-61
Бренд "Дмитров-Дело" c 2008 года на рынке строительства в Дмитрове

Комарова

Стоимость проекта от:
28 800 ₽
БЕСПЛАТНО! ПРИ ЗАКАЗЕ СТРОИТЕЛЬСТВА
Стоимость строительства от:
3 921 280 ₽
Артикул ART-19621
Дата 26.12.2025
Архитектурный стиль Классический
Количество надземных этажей 1
Круглогодичное проживание Да
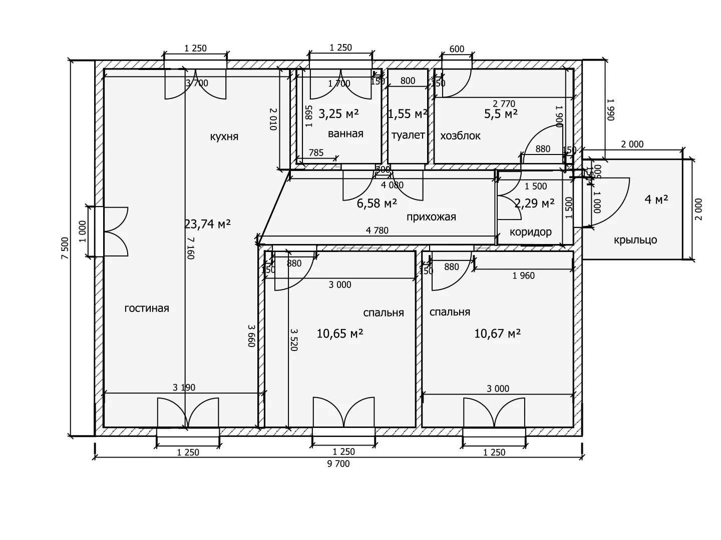
Площадь дома 64 м2
Санузлы 2
Спальни 2

Описание

Погрузитесь в атмосферу уюта и гармонии, которую дарит уникальный одноэтажный дом «Комарова». Классический фасад, выполненный из современных SIP‑панелей, соединяет тепло традиционного и энергоэффективность современности, создавая крепкую, почти непроницаемую стену, которая сохраняет тепло в каждом уголке. Двускатная крыша придает дому лёгкую элегантность, при этом обеспечивая надёжную защиту от непогоды и долгосрочную долговечность. Внутреннее пространство продумано до мелочей: открытый план в коридоре и гостиной обеспечивает простоту перемещения и свободный поток света. Просторные комнаты легко подстраиваются под ваши потребности – будь то активный семейный быт или спокойный отдых. Отсутствие балконов, веранды и прицепного гаража позволяет сконцентрироваться на внутреннем уюте, создавая ощущение бесконечного простора. Дом «Комарова» – идеальный выбор для тех, кто ценит комфорт круглый год, в сочетании с элегантностью классического стиля и надёжностью современных технологий. Позвольте себе жить в месте, где каждый элемент, от материала стен до формы крыши, говорит о вашем вкусе и стремлении к качеству.

Характеристики дома

Архитектурный стиль
Автоматизированное регулирование параметров теплоносителя
Да
Балконы/лоджии
Отсутствуют
Чердачное помещение
Нет
Датчики протечки воды
Нет
Эксплуатируемая или зеленая кровля
Нет
Электроснабжение
Центральное
Газоснабжение
Не предусмотрено
Изоляция воздушного шума
Да
Камин
Нет
Класс энергоэффективности
A+
Класс энергосбережения
A+
Количество надземных этажей
1
Круглогодичное проживание
Да
Материал кровли
Битумная черепица
Материал перекрытий
Деревянные
Материал внешних стен
Материал внутренних перегородок
Деревянные
Модульное строительство с конструкциями заводского изготовления
Да
Объем надземной части
840 м3
Основной материал фасадов
Фасадная плитка
Отопление
Индивидуальное
Площадь дома
64 м2
Площадь застройки
72 м2
Подвальное помещение
Нет
Показатель компактности здания
1.02
Приборы учета тепловой энергии
Нет
Пристроенный гараж/крытая автостоянка
Нет
Противопожарная система
Нет
Санузлы
2
Совмещенная кухня-гостиная
Да
Спальни
2
Терраса
Нет
Тип фундамента
Свайный
Тип кровли
Толщина внешних стен
174 мм
Толщина внутренних перегородок
124 мм
Улучшенные шумовые характеристики
Нет
Вентиляция
2 варианта
Веранда
Нет
Водоотведение
Центральное
Водоснабжение
Центральное
Высота дома
7.11 м
Высота потолков
2.75 м

Планировка

Фасад дома

Александр

Закажите выезд инженера

Александр

Выездной инженер
Закажите выезд инженера для точной диагностики и профессиональной консультации по инженерным системам. Специалист приедет в удобное время, проведёт осмотр, рассчитает стоимость работ и подберёт оптимальные решения для вашего дома.


    Похожие проекты

    Ипотека и
    рассрочка
    Солгард-2
    Стоимость от:
    5 255 030
    Проект от: 38 700
    Этажей 1
    Санузлы 1
    Спальни 2
    Смотреть
    Ипотека и
    рассрочка
    Загородный дом ВС-113
    Стоимость от:
    15 022 800
    Проект от: 96 750
    Этажей 2
    Санузлы 2
    Спальни 6
    Смотреть
    Ипотека и
    рассрочка
    Каркасный дом Валенсия 98
    Стоимость от:
    6 703 200
    Проект от: 50 400
    Этажей 2
    Санузлы 2
    Спальни 4
    Смотреть
    Ипотека и
    рассрочка
    Каркасный дом «Джейн»
    Стоимость от:
    348 480
    Проект от: 59 400
    Этажей 2
    Санузлы 2
    Спальни 4
    Смотреть
    Ипотека и
    рассрочка
    Одноэтажный дом СД-107
    Стоимость от:
    9 099 860
    Проект от: 59 850
    Этажей 1
    Санузлы 2
    Спальни 3
    Смотреть
    Ипотека и
    рассрочка
    Андромеда
    Стоимость от:
    8 415 440
    Проект от: 50 400
    Этажей 1
    Санузлы 2
    Спальни 3
    Смотреть

    Как узнать стоимость дома

    back
    Оставляете заявку
    Вы заполняете форму на сайте или звоните нам. Менеджер Лайвкрафт связывается с вами для уточнения деталей: тип дома, площадь, материалы, участок строительства.
    back
    Консультация и подбор решения
    Наш специалист помогает выбрать оптимальный тип дома и конструкцию с учётом бюджета, сроков и целей — будь то дом для постоянного проживания или дача.
    back
    Расчёт предварительной стоимости
    Инженер делает первичный расчёт стоимости строительства по вашим параметрам: фундамент, коробка, кровля, отделка. Вы получаете смету с разбивкой по этапам.
    back
    Корректировка и утверждение сметы
    При необходимости вносим изменения — например, замену материалов или сокращение этапов. После согласования формируется окончательная фиксированная смета.
    back
    Заключение договора и старт работ
    После утверждения сметы заключаем официальный договор с гарантией. Вы получаете прозрачный график и точную стоимость — без скрытых расходов.

    Заказать конусльтацию по:Комарова

    Фото 1 Комарова


      Наши
      контакты

      Дмитров
      Опорный проезд 28Б
      (индустриальный парк Ниагара)
      9:00 до 18:00

      Корзина