4.9
Рейтинг на основании 120 отзывов
Дмитров
Опорный проезд 28Б
(индустриальный парк Ниагара)
Бренд "Дмитров-Дело" c 2008 года на рынке строительства в Дмитрове
Звоните 9:00 до 18:00 8 (915) 055-33-61
Бренд "Дмитров-Дело" c 2008 года на рынке строительства в Дмитрове

Комфорт-128

Стоимость проекта от:
57 600 ₽
Стоимость строительства от:
10 183 360 ₽
Артикул ART-14293
Дата 25.12.2025
Архитектурный стиль Классический
Количество надземных этажей 1
Круглогодичное проживание Да
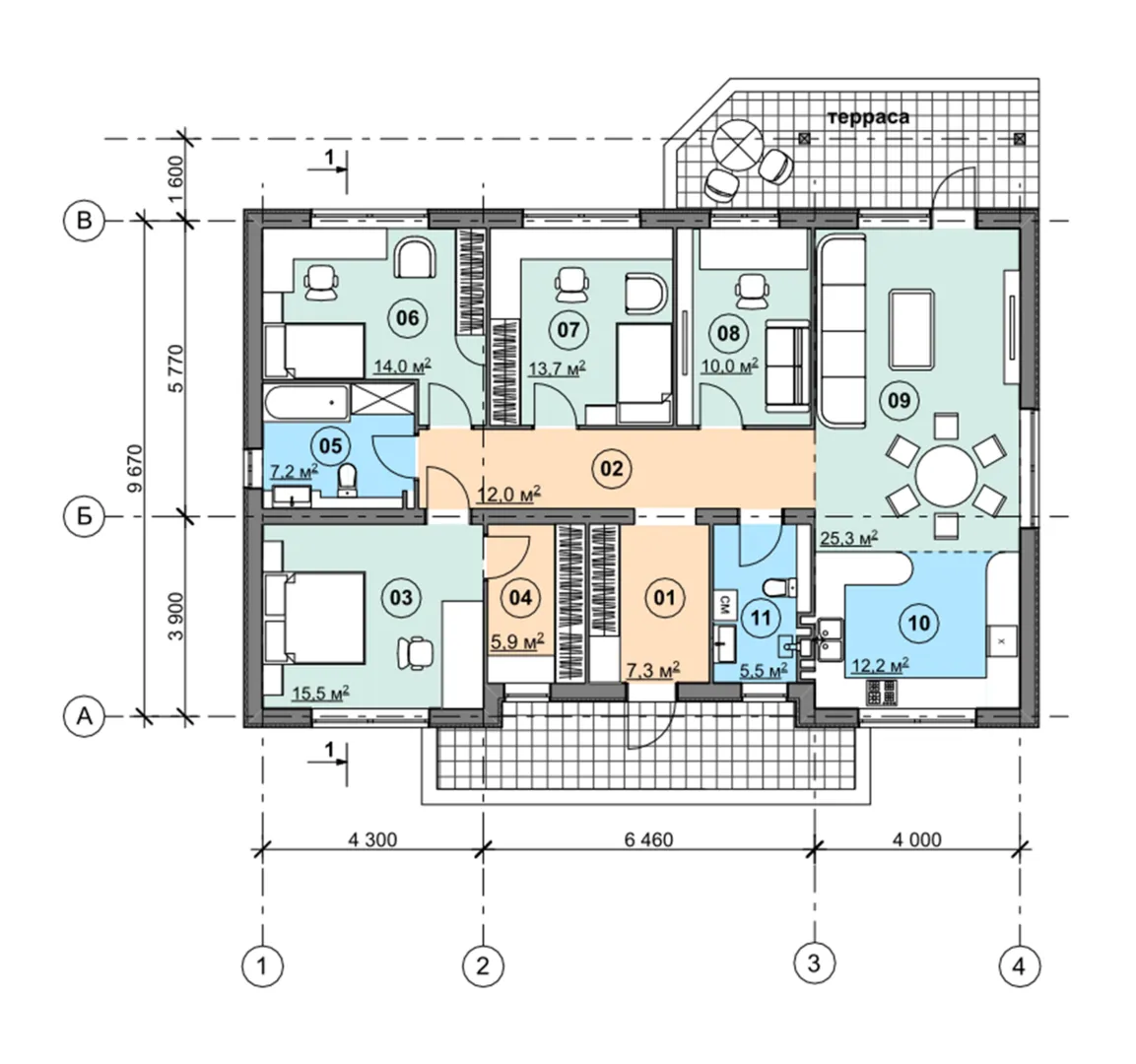
Площадь дома 128 м2
Санузлы 2
Спальни 3

Описание

**Комфорт‑128** — это ваш новый уголок уюта и стиля, созданный, чтобы каждый день приносил радость домашнего очага. Вдохновлённая классическим архитектурным обликом, эта квартира сочетает в себе строгую симметрию фасада и аккуратный дизайн интерьера, где линии лаконичны, а материалы высшего качества. Одноэтажный дом рассчитан на круглогодичное проживание: изысканная двускатная крыша надёжно защитит ваши покои от непогоды, а изоляционные газобетонные блоки дарят тепло и тихий ночной покой. Внутри уют раскрывается сквозь продуманную планировку и мягкое освещение. Зал, оформленный в светлых тонах, плавно переходит в открытую кухню, где легко собраться всей семьёй за чашкой ароматного кофе. Окна, выходящие на безмятежный ландшафт, наполняют пространство естественным светом и создают ощущение простора. Отдельные спальни удобно расположены, чтобы вам было комфортно и тихо, а ванная комната выполнена в современной стилистике с элементами дерева. Возможности для создания личного пространства ограничены лишь вашими мечтами: в комнате открывается тихий уголок для чтения, а балконов и веранд нет, чтобы вы могли полностью погрузиться в атмосферу уединения. Отсутствие прикрепленной автомойки делает жильё идеальным для тех, кто ценит чистоту и порядок. **Комфорт‑128** — это точный баланс практичности и элегантности, который станет вашим идеальным домом в любое время года.

Характеристики дома

Архитектурный стиль
Классический
Автоматизированное регулирование параметров теплоносителя
Нет
Балконы/лоджии
Отсутствуют
Чердачное помещение
Нет
Датчики протечки воды
Нет
Эксплуатируемая или зеленая кровля
Нет
Электроснабжение
Индивидуальное
Газоснабжение
Индивидуальное
Изоляция воздушного шума
Нет
Камин
Нет
Класс энергоэффективности
-
Класс энергосбережения
-
Количество надземных этажей
1
Круглогодичное проживание
Да
Материал кровли
Металлочерепица
Материал перекрытий
Деревянные
Материал внешних стен
Газобетонные блоки
Материал внутренних перегородок
Блочные
Модульное строительство с конструкциями заводского изготовления
Нет
Объем надземной части
352 м3
Основной материал фасадов
Штукатурка
Отопление
Индивидуальное
Площадь дома
128 м2
Площадь застройки
135 м2
Подвальное помещение
Нет
Показатель компактности здания
-
Приборы учета тепловой энергии
Нет
Пристроенный гараж/крытая автостоянка
Нет
Противопожарная система
Нет
Санузлы
2
Совмещенная кухня-гостиная
Да
Спальни
3
Терраса
Нет
Тип фундамента
Ленточный
Тип кровли
Двускатная
Толщина внешних стен
350 мм
Толщина внутренних перегородок
100 мм
Улучшенные шумовые характеристики
Нет
Вентиляция
Естественная
Веранда
Нет
Водоотведение
Локальные очистные сооружения
Водоснабжение
Индивидуальное
Высота дома
6.5 м
Высота потолков
2.75 м

Планировка

Фасад дома

Александр

Закажите выезд инженера

Александр

Выездной инженер
Закажите выезд инженера для точной диагностики и профессиональной консультации по инженерным системам. Специалист приедет в удобное время, проведёт осмотр, рассчитает стоимость работ и подберёт оптимальные решения для вашего дома.


    Похожие проекты

    Ипотека и
    рассрочка
    Одноэтажный деревянный дом «Вистлер»
    Стоимость от:
    5 405 180
    Проект от: 35 550
    Этажей 1
    Санузлы 1
    Спальни 1
    Смотреть
    Ипотека и
    рассрочка
    Дом из клееного бруса по проекту БД-105
    Стоимость от:
    6 791 290
    Проект от: 48 150
    Этажей 1
    Санузлы 1
    Спальни 3
    Смотреть
    Ипотека и
    рассрочка
    Двухэтажный дом «Джимара»
    Стоимость от:
    9 777 600
    Проект от: 63 000
    Этажей 2
    Санузлы 2
    Спальни 5
    Смотреть
    Ипотека и
    рассрочка
    ВН-1085
    Стоимость от:
    4 684 680
    Проект от: 37 800
    Этажей 1
    Санузлы 1
    Спальни 2
    Смотреть
    Ипотека и
    рассрочка
    Веселовка 70 м2
    Стоимость от:
    5 577 000
    Проект от: 31 500
    Этажей 1
    Санузлы 1
    Спальни 2
    Смотреть
    Ипотека и
    рассрочка
    Дом Каролина
    Стоимость от:
    4 682 205
    Проект от: 36 450
    Этажей 1
    Санузлы 1
    Спальни 2
    Смотреть

    Как узнать стоимость дома

    back
    Оставляете заявку
    Вы заполняете форму на сайте или звоните нам. Менеджер Лайвкрафт связывается с вами для уточнения деталей: тип дома, площадь, материалы, участок строительства.
    back
    Консультация и подбор решения
    Наш специалист помогает выбрать оптимальный тип дома и конструкцию с учётом бюджета, сроков и целей — будь то дом для постоянного проживания или дача.
    back
    Расчёт предварительной стоимости
    Инженер делает первичный расчёт стоимости строительства по вашим параметрам: фундамент, коробка, кровля, отделка. Вы получаете смету с разбивкой по этапам.
    back
    Корректировка и утверждение сметы
    При необходимости вносим изменения — например, замену материалов или сокращение этапов. После согласования формируется окончательная фиксированная смета.
    back
    Заключение договора и старт работ
    После утверждения сметы заключаем официальный договор с гарантией. Вы получаете прозрачный график и точную стоимость — без скрытых расходов.

    Заказать конусльтацию по:Комфорт-128

    Фото 1 Комфорт-128


      Наши
      контакты

      Дмитров
      Опорный проезд 28Б
      (индустриальный парк Ниагара)
      9:00 до 18:00