4.9
Рейтинг на основании 120 отзывов
Дмитров
Опорный проезд 28Б
(индустриальный парк Ниагара)
Бренд "Дмитров-Дело" c 2008 года на рынке строительства в Дмитрове
Звоните 9:00 до 18:00 8 (915) 055-33-61
Бренд "Дмитров-Дело" c 2008 года на рынке строительства в Дмитрове

Комфорт

Стоимость проекта от:
40 500 ₽
БЕСПЛАТНО! ПРИ ЗАКАЗЕ СТРОИТЕЛЬСТВА
Стоимость строительства от:
6 355 800 ₽
Артикул ART-19311
Дата 26.12.2025
Архитектурный стиль Классический
Количество надземных этажей 1
Круглогодичное проживание Да
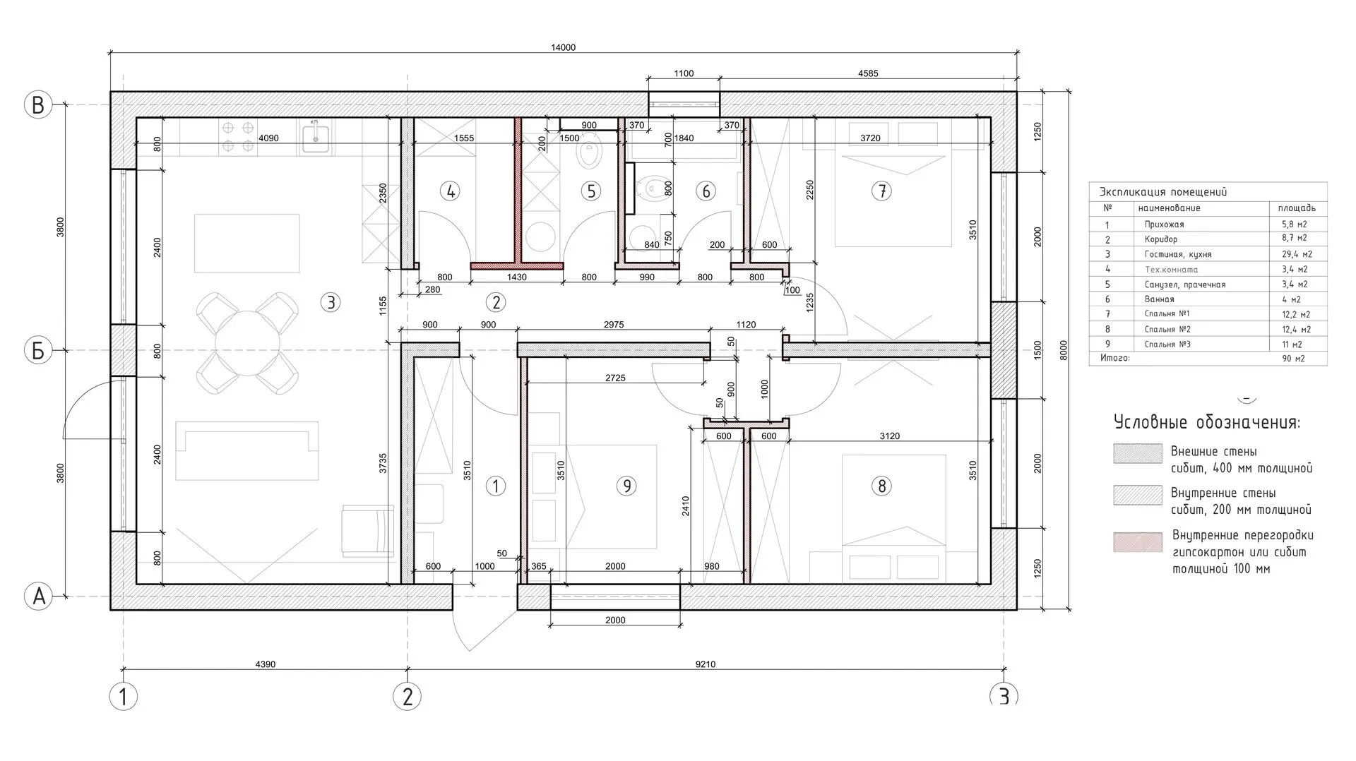
Площадь дома 90 м2
Санузлы 2
Спальни 3

Описание

В этом уютном одноэтажном доме вы почувствуете истинный комфорт круглый год. Его классический архитектурный стиль сочетает в себе изысканную простоту и традиционную элегантность: аккуратные линии крыши и строгие пороги создают ощущение домашнего уюта в любой сезон. Полностью из газобетонных блоков стены не только изолируют от холода и шума, но и дарят тепло и долговечность, а двускатная крыша добавляет дому характерный шарм. Дом открыт для тех, кто ценит пространство и практичность. Отсутствие балконов и веренды не мешает наслаждаться природными краями, ведь здесь предусмотрено чердачное помещение, которое можно превратить в личный мастер‑студийный уголок, уютную кабинету или дополнительный жилой коридор. А компактный план и отсутствие пристроенного гаража освобождают от лишних ограничений, позволяя вам использовать площадь дома в максимально свободном и приятном обстановке. Это место, где каждый момент проведённый дома приносит радость и покой.

Характеристики дома

Архитектурный стиль
Автоматизированное регулирование параметров теплоносителя
Да
Балконы/лоджии
Отсутствуют
Чердачное помещение
Да
Датчики протечки воды
Нет
Эксплуатируемая или зеленая кровля
Нет
Электроснабжение
Центральное
Газоснабжение
Не предусмотрено
Изоляция воздушного шума
Да
Камин
Нет
Класс энергоэффективности
A
Класс энергосбережения
A
Количество надземных этажей
1
Круглогодичное проживание
Да
Материал кровли
Металлочерепица
Материал перекрытий
Деревянные
Материал внешних стен
Материал внутренних перегородок
Блочные
Модульное строительство с конструкциями заводского изготовления
Нет
Объем надземной части
504 м3
Основной материал фасадов
Дерево
Отопление
Индивидуальное
Площадь дома
90 м2
Площадь застройки
112 м2
Подвальное помещение
Нет
Показатель компактности здания
1
Приборы учета тепловой энергии
Да
Пристроенный гараж/крытая автостоянка
Нет
Противопожарная система
Нет
Санузлы
2
Совмещенная кухня-гостиная
Да
Спальни
3
Терраса
Нет
Тип фундамента
Плитный
Тип кровли
Толщина внешних стен
400 мм
Толщина внутренних перегородок
200 мм
Улучшенные шумовые характеристики
Да
Вентиляция
Естественная
Веранда
Нет
Водоотведение
Локальные очистные сооружения
Водоснабжение
Центральное
Высота дома
4.5 м
Высота потолков
3 м

Планировка

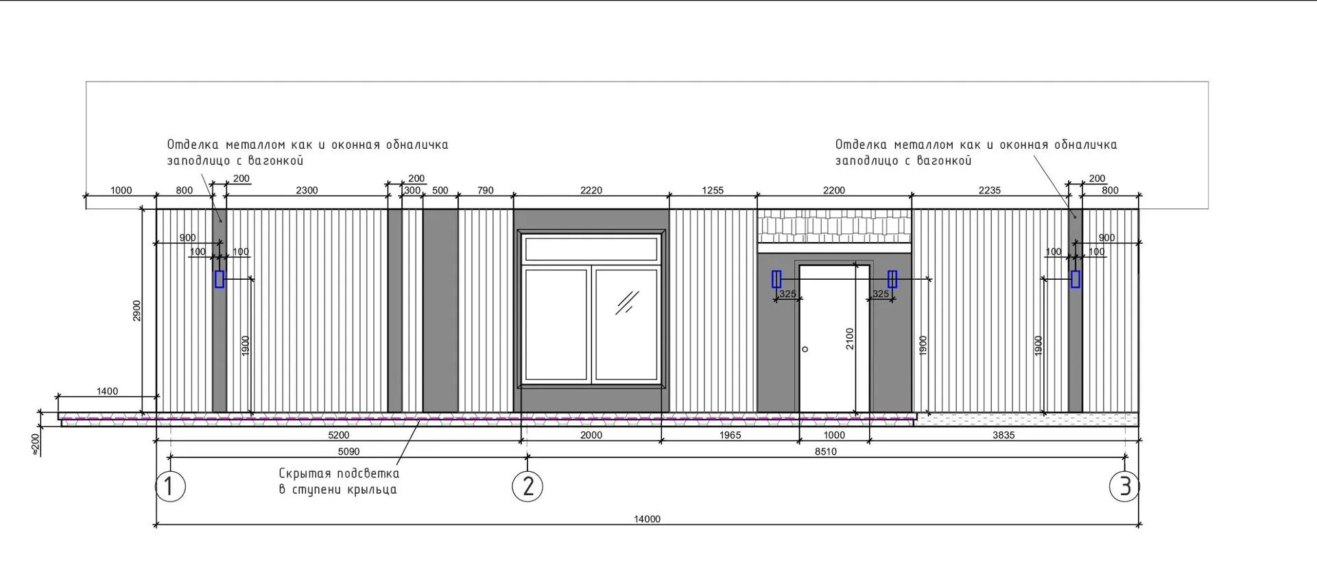
Фасад дома

Александр

Закажите выезд инженера

Александр

Выездной инженер
Закажите выезд инженера для точной диагностики и профессиональной консультации по инженерным системам. Специалист приедет в удобное время, проведёт осмотр, рассчитает стоимость работ и подберёт оптимальные решения для вашего дома.


    Похожие проекты

    Ипотека и
    рассрочка
    Островецкое
    Стоимость от:
    6 669 520
    Проект от: 47 700
    Этажей 1
    Санузлы 2
    Спальни 1
    Смотреть
    Ипотека и
    рассрочка
    Проект «ДК-23». Каркасный дом 1,5 эт. 8,5х10 с балконом
    Стоимость от:
    6 113 880
    Проект от: 45 900
    Этажей 2
    Санузлы 2
    Спальни 3
    Смотреть
    Ипотека и
    рассрочка
    Двухэтажный дом по проекту №8
    Стоимость от:
    8 033 700
    Проект от: 54 900
    Этажей 2
    Санузлы 3
    Спальни 4
    Смотреть
    Ипотека и
    рассрочка
    Скандинавия-5
    Стоимость от:
    4 675 320
    Проект от: 35 100
    Этажей 2
    Санузлы 1
    Спальни 2
    Смотреть
    Ипотека и
    рассрочка
    Загородный дом по проекту «Борис».
    Стоимость от:
    8 043 840
    Проект от: 56 700
    Этажей 2
    Санузлы 1
    Спальни 5
    Смотреть
    Ипотека и
    рассрочка
    Двухэтажный Дом А-019
    Стоимость от:
    5 215 680
    Проект от: 32 400
    Этажей 2
    Санузлы 2
    Спальни 2
    Смотреть

    Как узнать стоимость дома

    back
    Оставляете заявку
    Вы заполняете форму на сайте или звоните нам. Менеджер Лайвкрафт связывается с вами для уточнения деталей: тип дома, площадь, материалы, участок строительства.
    back
    Консультация и подбор решения
    Наш специалист помогает выбрать оптимальный тип дома и конструкцию с учётом бюджета, сроков и целей — будь то дом для постоянного проживания или дача.
    back
    Расчёт предварительной стоимости
    Инженер делает первичный расчёт стоимости строительства по вашим параметрам: фундамент, коробка, кровля, отделка. Вы получаете смету с разбивкой по этапам.
    back
    Корректировка и утверждение сметы
    При необходимости вносим изменения — например, замену материалов или сокращение этапов. После согласования формируется окончательная фиксированная смета.
    back
    Заключение договора и старт работ
    После утверждения сметы заключаем официальный договор с гарантией. Вы получаете прозрачный график и точную стоимость — без скрытых расходов.

    Заказать конусльтацию по:Комфорт

    Фото 1 Комфорт


      Наши
      контакты

      Дмитров
      Опорный проезд 28Б
      (индустриальный парк Ниагара)
      9:00 до 18:00

      Корзина