4.9
Рейтинг на основании 120 отзывов
Дмитров
Опорный проезд 28Б
(индустриальный парк Ниагара)
Бренд "Дмитров-Дело" c 2008 года на рынке строительства в Дмитрове
Звоните 9:00 до 18:00 8 (915) 055-33-61
Бренд "Дмитров-Дело" c 2008 года на рынке строительства в Дмитрове

Комфорт К

Стоимость проекта от:
31 500 ₽
БЕСПЛАТНО! ПРИ ЗАКАЗЕ СТРОИТЕЛЬСТВА
Стоимость строительства от:
5 264 600 ₽
Артикул ART-14173
Дата 25.12.2025
Архитектурный стиль Классический
Количество надземных этажей 1
Круглогодичное проживание Да
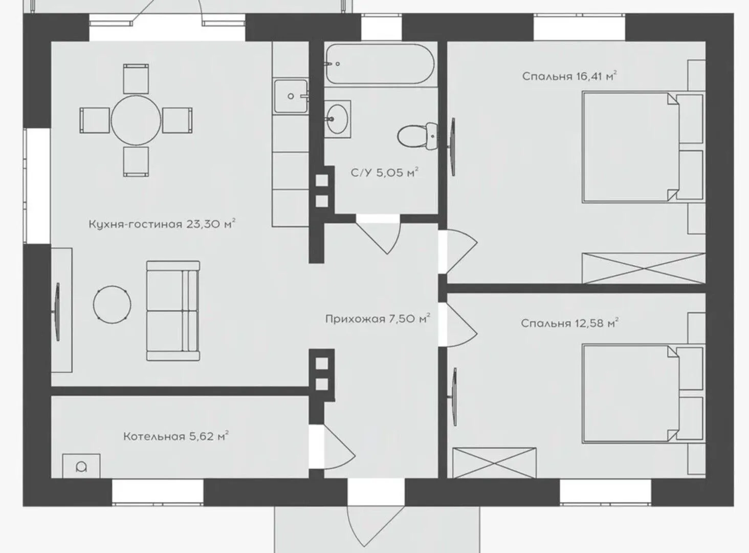
Площадь дома 70 м2
Санузлы 1
Спальни 2

Описание

Приятный уголок уюта, где каждый день будет наполнен теплом и гармонией. Этот одноэтажный дом в классическом стиле сочетает в себе изящные формы и практичность, создавая неповторимую атмосферу уюта. Керамическое утепление внешних стен из керамзитобетонных блоков обеспечивает непревзойденную тепло- и шумоизоляцию, а вальмовая кровля, выполненная в традиционном четырехскатном корпусе, добавляет нотки благородства и стиля. В течение всего года его обитатели будут наслаждаться стабильным микроклиматом – дом полностью закрыт от суровых температур и влажности, благодаря продуманной конструкции и качественным материалам. Гостеприимные комнаты располагают к семейным уютам и спокойному отдыху. Внутренний план открывает просторные зоны для совместных встреч, а вместительный чердачный уголок становится идеальным местом для хранения сезонного оборудования, хобби-специлов и творчества. Несмотря на отсутствие ярких открытых площадок, дом компенсирует это своим внутренним уютом, который обрадует даже тех, кто особенно ценит тепло своих стен. Здесь каждый уголок наполняется заботой о комфорте и благополучии – ведь в этом доме создаются воспоминания, а не just a place to live.

Характеристики дома

Архитектурный стиль
Автоматизированное регулирование параметров теплоносителя
Да
Балконы/лоджии
Отсутствуют
Чердачное помещение
Да
Датчики протечки воды
Нет
Эксплуатируемая или зеленая кровля
Нет
Электроснабжение
Центральное
Газоснабжение
Не предусмотрено
Изоляция воздушного шума
Нет
Камин
Нет
Класс энергоэффективности
-
Класс энергосбережения
-
Количество надземных этажей
1
Круглогодичное проживание
Да
Материал кровли
Металлочерепица
Материал перекрытий
Деревянные
Материал внешних стен
Материал внутренних перегородок
Блочные
Модульное строительство с конструкциями заводского изготовления
Нет
Объем надземной части
500 м3
Основной материал фасадов
Штукатурка
Отопление
Индивидуальное
Площадь дома
70 м2
Площадь застройки
75 м2
Подвальное помещение
Нет
Показатель компактности здания
-
Приборы учета тепловой энергии
Да
Пристроенный гараж/крытая автостоянка
Нет
Противопожарная система
Нет
Санузлы
1
Совмещенная кухня-гостиная
Да
Спальни
2
Терраса
Нет
Тип фундамента
Свайно-ростверковый
Толщина внешних стен
530 мм
Толщина внутренних перегородок
120 мм
Улучшенные шумовые характеристики
Да
Вентиляция
2 варианта
Веранда
Нет
Водоотведение
Локальные очистные сооружения
Водоснабжение
Индивидуальное
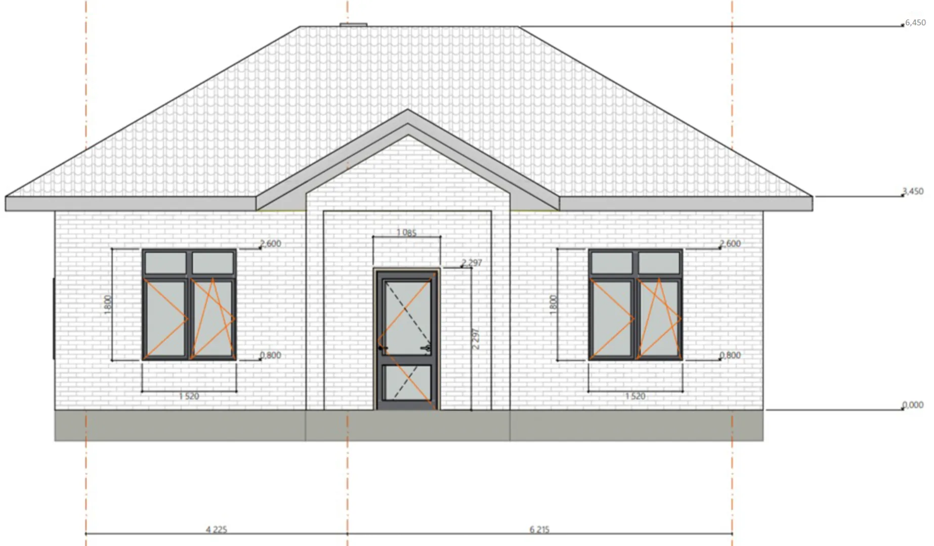
Высота дома
6.45 м
Высота потолков
2.95 м

Планировка

Фасад дома

Александр

Закажите выезд инженера

Александр

Выездной инженер
Закажите выезд инженера для точной диагностики и профессиональной консультации по инженерным системам. Специалист приедет в удобное время, проведёт осмотр, рассчитает стоимость работ и подберёт оптимальные решения для вашего дома.


    Похожие проекты

    Ипотека и
    рассрочка
    МОДУС-М
    Стоимость от:
    8 520 480
    Проект от: 54 900
    Этажей 2
    Санузлы 1
    Спальни 1
    Смотреть
    Ипотека и
    рассрочка
    Двухэтажный дом ЭС-252
    Стоимость от:
    14 638 680
    Проект от: 99 900
    Этажей 2
    Санузлы 2
    Спальни 7
    Смотреть
    Ипотека и
    рассрочка
    007
    Стоимость от:
    6 847 720
    Проект от: 38 700
    Этажей 1
    Санузлы 1
    Спальни 2
    Смотреть
    Ипотека и
    рассрочка
    Минибарн 76
    Стоимость от:
    4 407 600
    Проект от: 33 750
    Этажей 2
    Санузлы 1
    Спальни 2
    Смотреть
    Ипотека и
    рассрочка
    Загородный дом BARN136
    Стоимость от:
    9 101 400
    Проект от: 60 750
    Этажей 1
    Санузлы 2
    Спальни 3
    Смотреть
    Ипотека и
    рассрочка
    Индивидуальный проект — Проводник
    Стоимость от:
    12 645 380
    Проект от: 71 550
    Этажей 1
    Санузлы 3
    Спальни 4
    Смотреть

    Как узнать стоимость дома

    back
    Оставляете заявку
    Вы заполняете форму на сайте или звоните нам. Менеджер Лайвкрафт связывается с вами для уточнения деталей: тип дома, площадь, материалы, участок строительства.
    back
    Консультация и подбор решения
    Наш специалист помогает выбрать оптимальный тип дома и конструкцию с учётом бюджета, сроков и целей — будь то дом для постоянного проживания или дача.
    back
    Расчёт предварительной стоимости
    Инженер делает первичный расчёт стоимости строительства по вашим параметрам: фундамент, коробка, кровля, отделка. Вы получаете смету с разбивкой по этапам.
    back
    Корректировка и утверждение сметы
    При необходимости вносим изменения — например, замену материалов или сокращение этапов. После согласования формируется окончательная фиксированная смета.
    back
    Заключение договора и старт работ
    После утверждения сметы заключаем официальный договор с гарантией. Вы получаете прозрачный график и точную стоимость — без скрытых расходов.

    Заказать конусльтацию по:Комфорт К

    Фото 1 Комфорт К


      Наши
      контакты

      Дмитров
      Опорный проезд 28Б
      (индустриальный парк Ниагара)
      9:00 до 18:00

      Корзина