4.9
Рейтинг на основании 120 отзывов
Дмитров
Опорный проезд 28Б
(индустриальный парк Ниагара)
Бренд "Дмитров-Дело" c 2008 года на рынке строительства в Дмитрове
Звоните 9:00 до 18:00 8 (915) 055-33-61
Бренд "Дмитров-Дело" c 2008 года на рынке строительства в Дмитрове

Комфорт

Стоимость проекта от:
56 250 ₽
БЕСПЛАТНО! ПРИ ЗАКАЗЕ СТРОИТЕЛЬСТВА
Стоимость строительства от:
8 234 460 ₽
Артикул ART-1271
Дата 25.12.2025
Архитектурный стиль Классический
Количество надземных этажей 2
Круглогодичное проживание Да
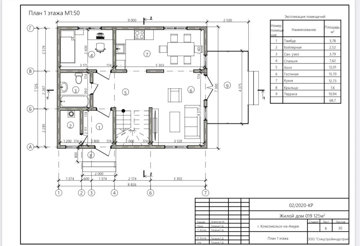
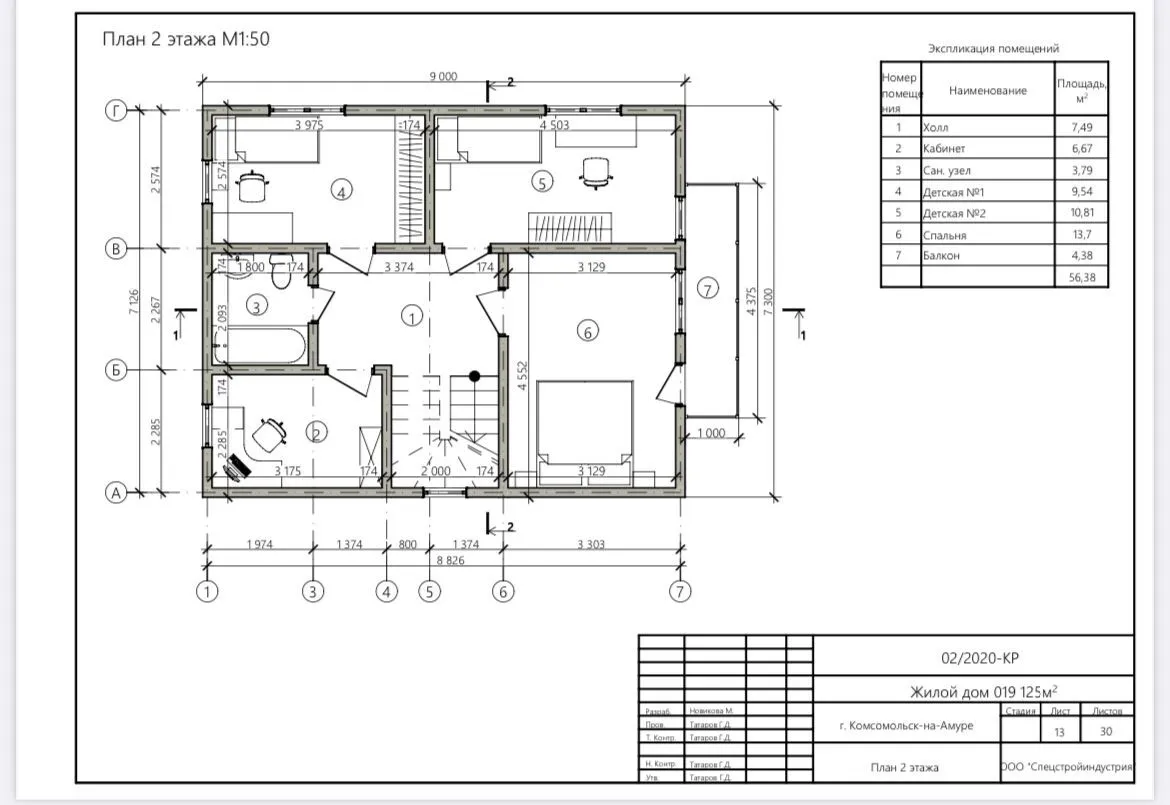
Площадь дома 125 м2
Санузлы 2
Спальни 4

Описание

Прямо за углом в живописном пригороде располагается чудесное двухэтажное загородное поместье, созданное для тех, кто ценит гармонию между уютом и великолепной архитектурой. Классический фасад, украшенный элементами резной отделки и элегантными портиками, сразу же сообщает о статусе дома. Внутри – уют и свет в каждом уголке: просторные открытые пространства, высокие потолки и большие окна, слагающие идеальный баланс между внешней природой и комфортом проживания круглый год. Вы будете поражены практичностью и продуманностью каждой детали: от продуманного расположения единственного балкона/лоджии, где можно наслаждаться закатами, до просторной веранды, идеально подходящей для вечеринок и семейных сборов. Поскольку здесь нет прицепного гаража или крытой автостоянки, всё внимание уделено открытым пространствам, а отсутствие чердака и террас позволяет максимально использовать внутренняя площадь дома. Внешние стены построены из SIP‑панелей – инновационного материала, который гарантирует теплоизоляцию, прочность и быструю сборку, а традиционная двускатная крыша придаёт зданию солидный силуэт и защищает от непогоды. Этот дом – идеальная комбинация современного комфорта и классической элегантности. Он создан как место, где можно отдыхать и наслаждаться жизнью, не отказываясь от удобств и тепла современного дома. Если вы ищете место, где будете жить и отдыхать с семьёй, а также приглашать друзей, этот дом уже ждёт своих новых хозяев, готовый превратить ваши мечты в реальность.

Характеристики дома

Архитектурный стиль
Автоматизированное регулирование параметров теплоносителя
-
Балконы/лоджии
1
Чердачное помещение
Нет
Датчики протечки воды
-
Эксплуатируемая или зеленая кровля
-
Электроснабжение
Индивидуальное
Газоснабжение
Не предусмотрено
Изоляция воздушного шума
-
Камин
Нет
Класс энергоэффективности
-
Класс энергосбережения
-
Количество надземных этажей
2
Круглогодичное проживание
Да
Материал кровли
Металлочерепица
Материал перекрытий
Деревянные
Материал внешних стен
Материал внутренних перегородок
Деревянные
Модульное строительство с конструкциями заводского изготовления
Нет
Объем надземной части
760 м3
Основной материал фасадов
Сайдинг
Отопление
Индивидуальное
Площадь дома
125 м2
Площадь застройки
77 м2
Подвальное помещение
Нет
Показатель компактности здания
-
Приборы учета тепловой энергии
-
Пристроенный гараж/крытая автостоянка
Нет
Противопожарная система
Нет
Санузлы
2
Совмещенная кухня-гостиная
Да
Спальни
4
Терраса
Нет
Тип фундамента
Свайно-винтовой
Тип кровли
Толщина внешних стен
174 мм
Толщина внутренних перегородок
124 мм
Улучшенные шумовые характеристики
-
Вентиляция
Принудительная
Веранда
Да
Водоотведение
Локальные очистные сооружения
Водоснабжение
Индивидуальное
Высота дома
7 м
Высота потолков
2.5 м

Планировка

Фасад дома

Александр

Закажите выезд инженера

Александр

Выездной инженер
Закажите выезд инженера для точной диагностики и профессиональной консультации по инженерным системам. Специалист приедет в удобное время, проведёт осмотр, рассчитает стоимость работ и подберёт оптимальные решения для вашего дома.


    Похожие проекты

    Ипотека и
    рассрочка
    Дом из бруса БД-45
    Стоимость от:
    12 450 020
    Проект от: 72 450
    Этажей 1
    Санузлы 2
    Спальни 4
    Смотреть
    Ипотека и
    рассрочка
    Двухэтажный дом 130 кв.м. РП-2
    Стоимость от:
    9 079 200
    Проект от: 58 500
    Этажей 2
    Санузлы 2
    Спальни 3
    Смотреть
    Ипотека и
    рассрочка
    92
    Стоимость от:
    7 665 240
    Проект от: 45 900
    Этажей 1
    Санузлы 2
    Спальни 2
    Смотреть
    Ипотека и
    рассрочка
    Проект загородного дома NHD-156
    Стоимость от:
    7 238 400
    Проект от: 45 000
    Этажей 2
    Санузлы 2
    Спальни 3
    Смотреть
    Ипотека и
    рассрочка
    1-этажный жилой дом №11-09-24
    Стоимость от:
    9 916 720
    Проект от: 61 200
    Этажей 1
    Санузлы 2
    Спальни 2
    Смотреть
    Ипотека и
    рассрочка
    Проект загородного дома NHD-108
    Стоимость от:
    8 640 500
    Проект от: 51 750
    Этажей 1
    Санузлы 2
    Спальни 3
    Смотреть

    Как узнать стоимость дома

    back
    Оставляете заявку
    Вы заполняете форму на сайте или звоните нам. Менеджер Лайвкрафт связывается с вами для уточнения деталей: тип дома, площадь, материалы, участок строительства.
    back
    Консультация и подбор решения
    Наш специалист помогает выбрать оптимальный тип дома и конструкцию с учётом бюджета, сроков и целей — будь то дом для постоянного проживания или дача.
    back
    Расчёт предварительной стоимости
    Инженер делает первичный расчёт стоимости строительства по вашим параметрам: фундамент, коробка, кровля, отделка. Вы получаете смету с разбивкой по этапам.
    back
    Корректировка и утверждение сметы
    При необходимости вносим изменения — например, замену материалов или сокращение этапов. После согласования формируется окончательная фиксированная смета.
    back
    Заключение договора и старт работ
    После утверждения сметы заключаем официальный договор с гарантией. Вы получаете прозрачный график и точную стоимость — без скрытых расходов.

    Заказать конусльтацию по:Комфорт

    Фото 1 Комфорт


      Наши
      контакты

      Дмитров
      Опорный проезд 28Б
      (индустриальный парк Ниагара)
      9:00 до 18:00

      Корзина