4.9
Рейтинг на основании 120 отзывов
Дмитров
Опорный проезд 28Б
(индустриальный парк Ниагара)
Бренд "Дмитров-Дело" c 2008 года на рынке строительства в Дмитрове
Звоните 9:00 до 18:00 8 (915) 055-33-61
Бренд "Дмитров-Дело" c 2008 года на рынке строительства в Дмитрове

Компактный дом ДМ-05

Стоимость проекта от:
29 250 ₽
БЕСПЛАТНО! ПРИ ЗАКАЗЕ СТРОИТЕЛЬСТВА
Стоимость строительства от:
4 283 460 ₽
Артикул ART-17961
Дата 26.12.2025
Архитектурный стиль Классический
Количество надземных этажей 2
Круглогодичное проживание Да
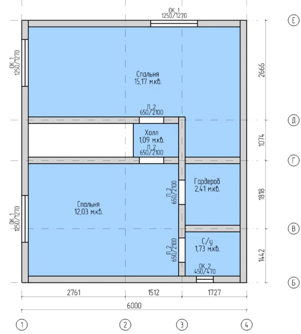
Площадь дома 65 м2
Санузлы 3
Спальни 3

Описание

Компактный дом‑проект ДМ‑05 – это настоящий образец современного классического стиля в компактном исполнении. Два надземных этажа создают уютный и функциональный внутренний план: открытая гостиная, светлая кухня, несколько уютных спальных уголков и современный санузел. Благодаря использованию SIP‑панелей, стены дома обладают отличной изоляцией, а конструкция обеспечивает быструю сборку и надёжную структуру, что гарантирует комфортное круг­логодичное проживание без лишних затрат на отопление и кондиционирование. Отсутствие балконов, лоджий и веранды подчёркивает лаконичность и строгую геометрию дизайна, а два‑скатная кровля добавляет эстетической изысканности, создавая классический силуэт. Внутреннее пространство обогащено чердачным помещением, которое даёт дополнительное место для хранения вещей, проектов или творческой деятельности. Дом предназначен для тех, кто ценит уют, эстетику и функциональность в компактном формате: идеальный вариант для молодой семьи, пары или тех, кто ищет спокойное, но современное место для жизни.

Характеристики дома

Архитектурный стиль
Автоматизированное регулирование параметров теплоносителя
Да
Балконы/лоджии
Отсутствуют
Чердачное помещение
Да
Датчики протечки воды
Нет
Эксплуатируемая или зеленая кровля
Нет
Электроснабжение
Центральное
Газоснабжение
Центральное
Изоляция воздушного шума
Да
Камин
Нет
Класс энергоэффективности
A++
Класс энергосбережения
A++
Количество надземных этажей
2
Круглогодичное проживание
Да
Материал кровли
Металлочерепица
Материал перекрытий
Деревянные
Материал внешних стен
Материал внутренних перегородок
Деревянные
Модульное строительство с конструкциями заводского изготовления
Нет
Объем надземной части
265 м3
Основной материал фасадов
Дерево
Отопление
Индивидуальное
Площадь дома
65 м2
Площадь застройки
43 м2
Подвальное помещение
Нет
Показатель компактности здания
0.9
Приборы учета тепловой энергии
Да
Пристроенный гараж/крытая автостоянка
Нет
Противопожарная система
Нет
Санузлы
3
Совмещенная кухня-гостиная
Да
Спальни
3
Терраса
Нет
Тип фундамента
Свайно-винтовой
Тип кровли
Толщина внешних стен
174 мм
Толщина внутренних перегородок
174 мм
Улучшенные шумовые характеристики
Да
Вентиляция
Принудительная
Веранда
Нет
Водоотведение
Локальные очистные сооружения
Водоснабжение
Индивидуальное
Высота дома
7.4 м
Высота потолков
2.5 м

Планировка

Фасад дома

Александр

Закажите выезд инженера

Александр

Выездной инженер
Закажите выезд инженера для точной диагностики и профессиональной консультации по инженерным системам. Специалист приедет в удобное время, проведёт осмотр, рассчитает стоимость работ и подберёт оптимальные решения для вашего дома.


    Похожие проекты

    Ипотека и
    рассрочка
    KDR-201
    Стоимость от:
    7 403 660
    Проект от: 41 850
    Этажей 1
    Санузлы 1
    Спальни 2
    Смотреть
    Ипотека и
    рассрочка
    Авторский проект «Готфел»
    Стоимость от:
    7 619 760
    Проект от: 49 050
    Этажей 2
    Санузлы 1
    Спальни 2
    Смотреть
    Ипотека и
    рассрочка
    Одноэтажный дом с крыльцом
    Стоимость от:
    4 439 380
    Проект от: 26 550
    Этажей 1
    Санузлы 2
    Спальни 2
    Смотреть
    Ипотека и
    рассрочка
    Таунхаус двухэтажный Окала 200 кв.м.
    Стоимость от:
    14 462 400
    Проект от: 90 000
    Этажей 2
    Санузлы 4
    Спальни 5
    Смотреть
    Ипотека и
    рассрочка
    Одноэтажный дом в классическом стиле К-87
    Стоимость от:
    5 331 480
    Проект от: 37 800
    Этажей 1
    Санузлы 2
    Спальни 3
    Смотреть
    Ипотека и
    рассрочка
    «Южный»
    Стоимость от:
    528 000
    Проект от: 90 000
    Этажей 2
    Санузлы 2
    Спальни 3
    Смотреть

    Как узнать стоимость дома

    back
    Оставляете заявку
    Вы заполняете форму на сайте или звоните нам. Менеджер Лайвкрафт связывается с вами для уточнения деталей: тип дома, площадь, материалы, участок строительства.
    back
    Консультация и подбор решения
    Наш специалист помогает выбрать оптимальный тип дома и конструкцию с учётом бюджета, сроков и целей — будь то дом для постоянного проживания или дача.
    back
    Расчёт предварительной стоимости
    Инженер делает первичный расчёт стоимости строительства по вашим параметрам: фундамент, коробка, кровля, отделка. Вы получаете смету с разбивкой по этапам.
    back
    Корректировка и утверждение сметы
    При необходимости вносим изменения — например, замену материалов или сокращение этапов. После согласования формируется окончательная фиксированная смета.
    back
    Заключение договора и старт работ
    После утверждения сметы заключаем официальный договор с гарантией. Вы получаете прозрачный график и точную стоимость — без скрытых расходов.

    Заказать конусльтацию по:Компактный дом ДМ-05

    Фото 1 Компактный дом ДМ-05


      Наши
      контакты

      Дмитров
      Опорный проезд 28Б
      (индустриальный парк Ниагара)
      9:00 до 18:00

      Корзина