4.9
Рейтинг на основании 120 отзывов
Дмитров
Опорный проезд 28Б
(индустриальный парк Ниагара)
Бренд "Дмитров-Дело" c 2008 года на рынке строительства в Дмитрове
Звоните 9:00 до 18:00 8 (915) 055-33-61
Бренд "Дмитров-Дело" c 2008 года на рынке строительства в Дмитрове

LAGOM

Стоимость проекта от:
51 300 ₽
БЕСПЛАТНО! ПРИ ЗАКАЗЕ СТРОИТЕЛЬСТВА
Стоимость строительства от:
6 338 970 ₽
Артикул ART-15364
Дата 25.12.2025
Архитектурный стиль Барнхаус
Количество надземных этажей 1
Круглогодичное проживание Да
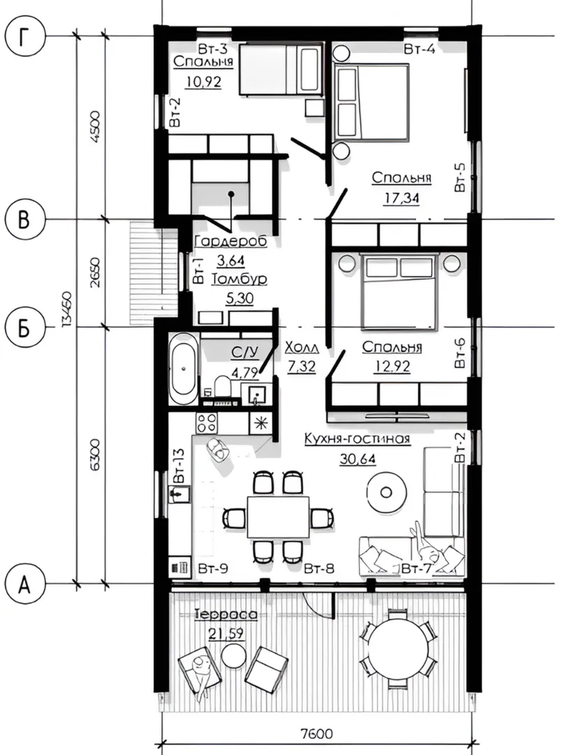
Площадь дома 114 м2
Санузлы 1
Спальни 3

Описание

*LAGOM – это не просто дом, это уединённый уголок, где каждая деталь говорит о гармонии и уюте. С одним надземным этажом, построенным в традиционном барнхаус‑стиле, жилище ощущается как сочетание современного комфорта и душевного деревенского шарма. Деревянный каркас, обрамляющий просторную комнату, пропитан теплом и светом, а двухскатная крыша придаёт дому характерные формы, отсылающие к классическим пиварям, но при этом воплощающие современную элегантность. *Круглогодичное проживание стало реальностью благодаря тщательно продуманной изоляции и энергоэффективным материалам. Легко адаптируясь к капризам погоды, дом сохраняет мягкую теплоту в зимний холод и прохладу в летний жар, позволяя вам наслаждаться комфортом в любой сезон. Просторная терраса приглашает к медитативным вечерам под звёздным небом или весёлым встречам с друзьями, а открытая планировка внутри раскрывает неограниченные возможности для творчества и семейного уюта. *В LAGOM нет лишних украшений – нет балконов, веранд, парковок, и даже чердака. Это чистый и лаконичный дизайн, который делает пространство лёгким и непринуждённым. Каждый уголок этого дома – это возможность сосредоточиться на том, что действительно важно: семье, близким и собственным мечтам. Поздравляем вас с выбором – место, где каждый день начинается и заканчивается теплом, уютом и безмятежной атмосферой, поднимающей дух и наполняющей душу уверенностью.“

Характеристики дома

Архитектурный стиль
Автоматизированное регулирование параметров теплоносителя
Нет
Балконы/лоджии
Отсутствуют
Чердачное помещение
Нет
Датчики протечки воды
Нет
Эксплуатируемая или зеленая кровля
Нет
Электроснабжение
Индивидуальное
Газоснабжение
Не предусмотрено
Изоляция воздушного шума
Нет
Камин
Нет
Класс энергоэффективности
-
Класс энергосбережения
-
Количество надземных этажей
1
Круглогодичное проживание
Да
Материал кровли
Металлические рулонные или листовые материалы
Материал перекрытий
Деревянные
Материал внешних стен
Материал внутренних перегородок
Деревянные
Модульное строительство с конструкциями заводского изготовления
Нет
Объем надземной части
-
Основной материал фасадов
Планкен
Отопление
Индивидуальное
Площадь дома
114 м2
Площадь застройки
114 м2
Подвальное помещение
Нет
Показатель компактности здания
-
Приборы учета тепловой энергии
Нет
Пристроенный гараж/крытая автостоянка
Нет
Противопожарная система
Нет
Санузлы
1
Совмещенная кухня-гостиная
Да
Спальни
3
Терраса
Да
Тип фундамента
Свайно-винтовой
Тип кровли
Толщина внешних стен
250 мм
Толщина внутренних перегородок
100 мм
Улучшенные шумовые характеристики
Нет
Вентиляция
Естественная
Веранда
Нет
Водоотведение
2 варианта
Водоснабжение
2 варианта
Высота дома
4 м
Высота потолков
4 м

Планировка

Фасад дома

Александр

Закажите выезд инженера

Александр

Выездной инженер
Закажите выезд инженера для точной диагностики и профессиональной консультации по инженерным системам. Специалист приедет в удобное время, проведёт осмотр, рассчитает стоимость работ и подберёт оптимальные решения для вашего дома.


    Похожие проекты

    Ипотека и
    рассрочка
    Проект загородного дома М-156
    Стоимость от:
    9 915 840
    Проект от: 59 400
    Этажей 1
    Санузлы 2
    Спальни 3
    Смотреть
    Ипотека и
    рассрочка
    Индивидуальный жилой дом
    Стоимость от:
    10 501 040
    Проект от: 59 400
    Этажей 1
    Санузлы 2
    Спальни 3
    Смотреть
    Ипотека и
    рассрочка
    Каркасный дом для круглогодичного проживания 10,0х9,0
    Стоимость от:
    4 637 600
    Проект от: 36 000
    Этажей 1
    Санузлы 1
    Спальни 1
    Смотреть
    Ипотека и
    рассрочка
    Двухэтажный жилой дом СВ-142
    Стоимость от:
    9 060 480
    Проект от: 59 400
    Этажей 2
    Санузлы 2
    Спальни 3
    Смотреть
    Ипотека и
    рассрочка
    К 1-103
    Стоимость от:
    7 590 220
    Проект от: 45 450
    Этажей 1
    Санузлы 2
    Спальни 3
    Смотреть
    Ипотека и
    рассрочка
    Проект Дом с террасой Просто 154
    Стоимость от:
    10 863 380
    Проект от: 67 050
    Этажей 1
    Санузлы 2
    Спальни 4
    Смотреть

    Как узнать стоимость дома

    back
    Оставляете заявку
    Вы заполняете форму на сайте или звоните нам. Менеджер Лайвкрафт связывается с вами для уточнения деталей: тип дома, площадь, материалы, участок строительства.
    back
    Консультация и подбор решения
    Наш специалист помогает выбрать оптимальный тип дома и конструкцию с учётом бюджета, сроков и целей — будь то дом для постоянного проживания или дача.
    back
    Расчёт предварительной стоимости
    Инженер делает первичный расчёт стоимости строительства по вашим параметрам: фундамент, коробка, кровля, отделка. Вы получаете смету с разбивкой по этапам.
    back
    Корректировка и утверждение сметы
    При необходимости вносим изменения — например, замену материалов или сокращение этапов. После согласования формируется окончательная фиксированная смета.
    back
    Заключение договора и старт работ
    После утверждения сметы заключаем официальный договор с гарантией. Вы получаете прозрачный график и точную стоимость — без скрытых расходов.

    Заказать конусльтацию по:LAGOM

    Фото 1 LAGOM


      Наши
      контакты

      Дмитров
      Опорный проезд 28Б
      (индустриальный парк Ниагара)
      9:00 до 18:00

      Корзина