4.9
Рейтинг на основании 120 отзывов
Дмитров
Опорный проезд 28Б
(индустриальный парк Ниагара)
Бренд "Дмитров-Дело" c 2008 года на рынке строительства в Дмитрове
Звоните 9:00 до 18:00 8 (915) 055-33-61
Бренд "Дмитров-Дело" c 2008 года на рынке строительства в Дмитрове

Лакомица

Стоимость проекта от:
52 650 ₽
БЕСПЛАТНО! ПРИ ЗАКАЗЕ СТРОИТЕЛЬСТВА
Стоимость строительства от:
7 168 590 ₽
Артикул ART-19376
Дата 26.12.2025
Архитектурный стиль Классический
Количество надземных этажей 1
Круглогодичное проживание Да
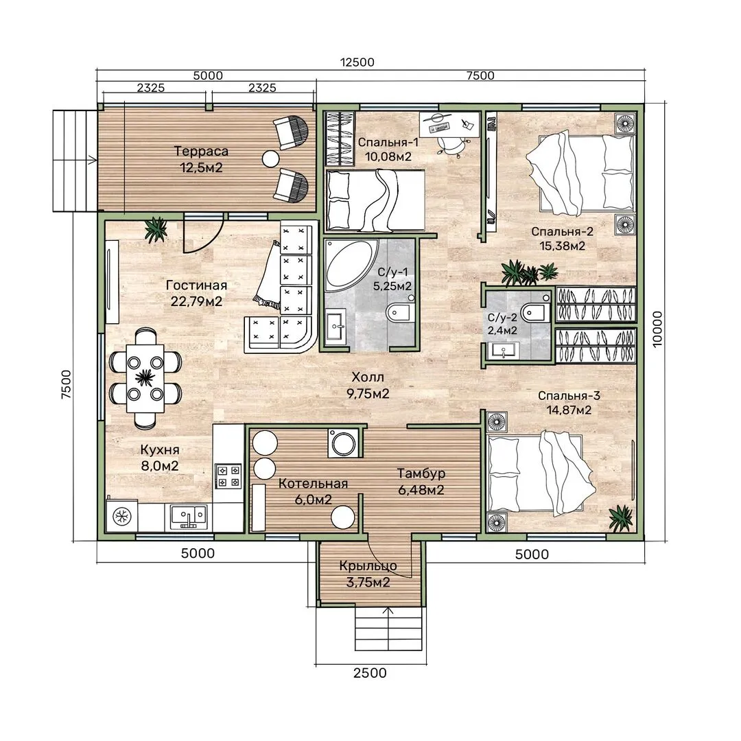
Площадь дома 117 м2
Санузлы 2
Спальни 3

Описание

Представляем вашему вниманию уютный однокровый дом, созданный для тех, кто ценит комфорт и функциональность в элегантной классической эстетике. Стильный фасад из современных SIP‑панелей сочетает в себе тепло и изоляцию, а четыре кривые линии кровли придают зданию традиционный, но при этом современный вид. Естественный поток света и тёплые тона делают пространство живым и уютным, а вневременной дизайн гарантирует, что ваш дом будет выглядеть привлекательно даже через десятилетия. Внутри вас ждёт просторная планировка, где каждая зона продумана до последней детали. Благодаря открытым светлым коридорам и световым входам, жильё ощущается просторным и наполненным солнцем. Квартира рассчитана на круглогодичную жизнь: теплоизоляция и защита от непогоды обеспечивают стабильную комфортную температуру в любой сезон. Отсутствие балконов и веранд не мешает наслаждаться летними днями – в гостиной вам подальше откроется большая терраса, где можно отдыхать в тихой тени дерева, а в верхнем чердачном помещении – уютный уголок для хранения вещей или маленькой мастерской. Этот дом – идеальное решение для небольших семей и индивидуальных покупателей, которые хотят жить в атмосфере классических традиций, но с современными удобствами. Простор, свет, безопасность и уют – всё это собрано в одном доме, чтобы вы могли наслаждаться каждым моментом без лишних хлопот. Создайте свой новый дом и откройте двери новым возможностям!

Характеристики дома

Архитектурный стиль
Автоматизированное регулирование параметров теплоносителя
Нет
Балконы/лоджии
Отсутствуют
Чердачное помещение
Да
Датчики протечки воды
Нет
Эксплуатируемая или зеленая кровля
Нет
Электроснабжение
Центральное
Газоснабжение
Не предусмотрено
Изоляция воздушного шума
Нет
Камин
Нет
Класс энергоэффективности
-
Класс энергосбережения
-
Количество надземных этажей
1
Круглогодичное проживание
Да
Материал кровли
Битумная черепица
Материал перекрытий
Иной вид материалов перекрытий
Материал внешних стен
Материал внутренних перегородок
Деревянные
Модульное строительство с конструкциями заводского изготовления
Нет
Объем надземной части
283 м3
Основной материал фасадов
Фасадная плитка
Отопление
Индивидуальное
Площадь дома
117 м2
Площадь застройки
125 м2
Подвальное помещение
Нет
Показатель компактности здания
-
Приборы учета тепловой энергии
Нет
Пристроенный гараж/крытая автостоянка
Нет
Противопожарная система
Нет
Санузлы
2
Совмещенная кухня-гостиная
Да
Спальни
3
Терраса
Да
Тип фундамента
Свайный
Толщина внешних стен
174 мм
Толщина внутренних перегородок
100 мм
Улучшенные шумовые характеристики
Нет
Вентиляция
Естественная
Веранда
Нет
Водоотведение
Локальные очистные сооружения
Водоснабжение
Индивидуальное
Высота дома
5.1 м
Высота потолков
2.8 м

Планировка

Фасад дома

Александр

Закажите выезд инженера

Александр

Выездной инженер
Закажите выезд инженера для точной диагностики и профессиональной консультации по инженерным системам. Специалист приедет в удобное время, проведёт осмотр, рассчитает стоимость работ и подберёт оптимальные решения для вашего дома.


    Похожие проекты

    Ипотека и
    рассрочка
    Двухэтажный дом со вторым светом №241
    Стоимость от:
    18 158 400
    Проект от: 117 000
    Этажей 2
    Санузлы 3
    Спальни 4
    Смотреть
    Ипотека и
    рассрочка
    Бунгало-135
    Стоимость от:
    14 710 300
    Проект от: 83 250
    Этажей 1
    Санузлы 2
    Спальни 4
    Смотреть
    Ипотека и
    рассрочка
    Дом из клееного бруса Можайск-2
    Стоимость от:
    10 946 040
    Проект от: 74 700
    Этажей 2
    Санузлы 3
    Спальни 4
    Смотреть
    Ипотека и
    рассрочка
    Одноэтажный дом EURO-86B
    Стоимость от:
    6 073 320
    Проект от: 38 700
    Этажей 1
    Санузлы 1
    Спальни 3
    Смотреть
    Ипотека и
    рассрочка
    Strong house
    Стоимость от:
    8 674 380
    Проект от: 49 050
    Этажей 1
    Санузлы 2
    Спальни 3
    Смотреть
    Ипотека и
    рассрочка
    Одноэтажный дом «Маяковский»
    Стоимость от:
    6 499 900
    Проект от: 42 750
    Этажей 1
    Санузлы 2
    Спальни 3
    Смотреть

    Как узнать стоимость дома

    back
    Оставляете заявку
    Вы заполняете форму на сайте или звоните нам. Менеджер Лайвкрафт связывается с вами для уточнения деталей: тип дома, площадь, материалы, участок строительства.
    back
    Консультация и подбор решения
    Наш специалист помогает выбрать оптимальный тип дома и конструкцию с учётом бюджета, сроков и целей — будь то дом для постоянного проживания или дача.
    back
    Расчёт предварительной стоимости
    Инженер делает первичный расчёт стоимости строительства по вашим параметрам: фундамент, коробка, кровля, отделка. Вы получаете смету с разбивкой по этапам.
    back
    Корректировка и утверждение сметы
    При необходимости вносим изменения — например, замену материалов или сокращение этапов. После согласования формируется окончательная фиксированная смета.
    back
    Заключение договора и старт работ
    После утверждения сметы заключаем официальный договор с гарантией. Вы получаете прозрачный график и точную стоимость — без скрытых расходов.

    Заказать конусльтацию по:Лакомица

    Фото 1 Лакомица


      Наши
      контакты

      Дмитров
      Опорный проезд 28Б
      (индустриальный парк Ниагара)
      9:00 до 18:00

      Корзина