4.9
Рейтинг на основании 120 отзывов
Дмитров
Опорный проезд 28Б
(индустриальный парк Ниагара)
Бренд "Дмитров-Дело" c 2008 года на рынке строительства в Дмитрове
Звоните 9:00 до 18:00 8 (915) 055-33-61
Бренд "Дмитров-Дело" c 2008 года на рынке строительства в Дмитрове

ЛАМИНАРНАЯ ДОЛИНА

Стоимость проекта от:
34 650 ₽
БЕСПЛАТНО! ПРИ ЗАКАЗЕ СТРОИТЕЛЬСТВА
Стоимость строительства от:
4 294 290 ₽
Артикул ART-14391
Дата 25.12.2025
Архитектурный стиль Барнхаус
Количество надземных этажей 1
Круглогодичное проживание Да
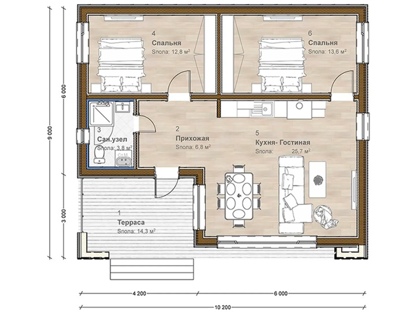
Площадь дома 77 м2
Санузлы 1
Спальни 2

Описание

Ламинарная Долина – это истинное воплощение современного барнхауса, созданное для тех, кто ценит уют, простоту и естественную связь с природой. Дом построен на одном уровне, но при этом ощущается глубина и вместительность благодаря открытой планировке. Плоская крыша, выполненная из лаконичных деревянных каркасных стен, позволяет максимально использовать свет и делает интерьер воздушным, как будто внутри всегда лето. Это место, где каждый уголок излучает тепло и приглашает жить круглый год, ведь здесь предусмотрены всё необходимое для комфорта независимо от погоды. Функциональность сочетается с эстетикой: просторная терраса, выходящая из центральной зоны дома, становится настоящим очагом для семейных посиделок, барбекю в летние вечера или тихой чашки кофе в рассветный час. Снаружи – чистые линии, натуральные материалы и аккуратная геометрия, а внутри – светло-теплый интерьер, плавно переходящий из кухни в гостиную и спальню, где каждая деталь продумана до мелочей. В отсутствии балконов и веранд акцент смещается на комфортное внутреннее пространство, создавая ощущение единства с окружающей средой. Дом – это не просто место для проживания, а стиль жизни, который соединяет в себе очарование деревенского барнхауса с удобствами современной квартиры. Ламинарная Долина приглашает вас открыть для себя новый уровень комфорта: без лишних преград, с полной природной атмосферой и безупречной функциональностью. Если вы ищете дом, который станет вашим прибежищем в любой сезон и подарит ощущение дома, этот уникальный проект точно предназначен для вас.

Характеристики дома

Архитектурный стиль
Автоматизированное регулирование параметров теплоносителя
Нет
Балконы/лоджии
Отсутствуют
Чердачное помещение
Нет
Датчики протечки воды
Нет
Эксплуатируемая или зеленая кровля
Нет
Электроснабжение
Центральное
Газоснабжение
Не предусмотрено
Изоляция воздушного шума
Да
Камин
Нет
Класс энергоэффективности
-
Класс энергосбережения
-
Количество надземных этажей
1
Круглогодичное проживание
Да
Материал кровли
Рулонные полимерные покрытия
Материал перекрытий
Деревянные
Материал внешних стен
Материал внутренних перегородок
Деревянные
Модульное строительство с конструкциями заводского изготовления
Нет
Объем надземной части
-
Основной материал фасадов
Дерево
Отопление
Индивидуальное
Площадь дома
77 м2
Площадь застройки
88 м2
Подвальное помещение
Нет
Показатель компактности здания
-
Приборы учета тепловой энергии
Нет
Пристроенный гараж/крытая автостоянка
Нет
Противопожарная система
Нет
Санузлы
1
Совмещенная кухня-гостиная
Да
Спальни
2
Терраса
Да
Тип фундамента
Свайный
Тип кровли
Толщина внешних стен
220 мм
Толщина внутренних перегородок
105 мм
Улучшенные шумовые характеристики
Да
Вентиляция
Естественная
Веранда
Нет
Водоотведение
Локальные очистные сооружения
Водоснабжение
Индивидуальное
Высота дома
-
Высота потолков
3 м

Планировка

Фасад дома

Александр

Закажите выезд инженера

Александр

Выездной инженер
Закажите выезд инженера для точной диагностики и профессиональной консультации по инженерным системам. Специалист приедет в удобное время, проведёт осмотр, рассчитает стоимость работ и подберёт оптимальные решения для вашего дома.


    Похожие проекты

    Ипотека и
    рассрочка
    Статус 9х11 Аструс
    Стоимость от:
    9 576 000
    Проект от: 72 000
    Этажей 2
    Санузлы 3
    Спальни 4
    Смотреть
    Ипотека и
    рассрочка
    «Загородный дом Емельяныч»
    Стоимость от:
    8 715 520
    Проект от: 52 200
    Этажей 1
    Санузлы 2
    Спальни 3
    Смотреть
    Ипотека и
    рассрочка
    Усадебный деревянный 2х-этажный дом
    Стоимость от:
    13 690 320
    Проект от: 82 350
    Этажей 2
    Санузлы 1
    Спальни 2
    Смотреть
    Ипотека и
    рассрочка
    Дом из клееного бруса «Каспий»
    Стоимость от:
    8 612 520
    Проект от: 59 850
    Этажей 2
    Санузлы 2
    Спальни 4
    Смотреть
    Ипотека и
    рассрочка
    Дом 80
    Стоимость от:
    5 838 800
    Проект от: 36 000
    Этажей 1
    Санузлы 2
    Спальни 3
    Смотреть
    Ипотека и
    рассрочка
    Барн5
    Стоимость от:
    12 629 760
    Проект от: 82 800
    Этажей 2
    Санузлы 2
    Спальни 3
    Смотреть

    Как узнать стоимость дома

    back
    Оставляете заявку
    Вы заполняете форму на сайте или звоните нам. Менеджер Лайвкрафт связывается с вами для уточнения деталей: тип дома, площадь, материалы, участок строительства.
    back
    Консультация и подбор решения
    Наш специалист помогает выбрать оптимальный тип дома и конструкцию с учётом бюджета, сроков и целей — будь то дом для постоянного проживания или дача.
    back
    Расчёт предварительной стоимости
    Инженер делает первичный расчёт стоимости строительства по вашим параметрам: фундамент, коробка, кровля, отделка. Вы получаете смету с разбивкой по этапам.
    back
    Корректировка и утверждение сметы
    При необходимости вносим изменения — например, замену материалов или сокращение этапов. После согласования формируется окончательная фиксированная смета.
    back
    Заключение договора и старт работ
    После утверждения сметы заключаем официальный договор с гарантией. Вы получаете прозрачный график и точную стоимость — без скрытых расходов.

    Заказать конусльтацию по:ЛАМИНАРНАЯ ДОЛИНА

    Фото 1 ЛАМИНАРНАЯ ДОЛИНА


      Наши
      контакты

      Дмитров
      Опорный проезд 28Б
      (индустриальный парк Ниагара)
      9:00 до 18:00

      Корзина